4.9
Рейтинг на основании 120 отзывов
Дмитров
Опорный проезд 28Б
(индустриальный парк Ниагара)
Бренд "Дмитров-Дело" c 2008 года на рынке строительства в Дмитрове
Звоните 9:00 до 18:00 8 (915) 055-33-61
Бренд "Дмитров-Дело" c 2008 года на рынке строительства в Дмитрове

Проект Ольга Ш-71

Стоимость проекта от:
30 600 ₽
БЕСПЛАТНО! ПРИ ЗАКАЗЕ СТРОИТЕЛЬСТВА
Стоимость строительства от:
5 418 160 ₽
Артикул ART-17085
Дата 26.12.2025
Архитектурный стиль Европейский
Количество надземных этажей 1
Круглогодичное проживание Да
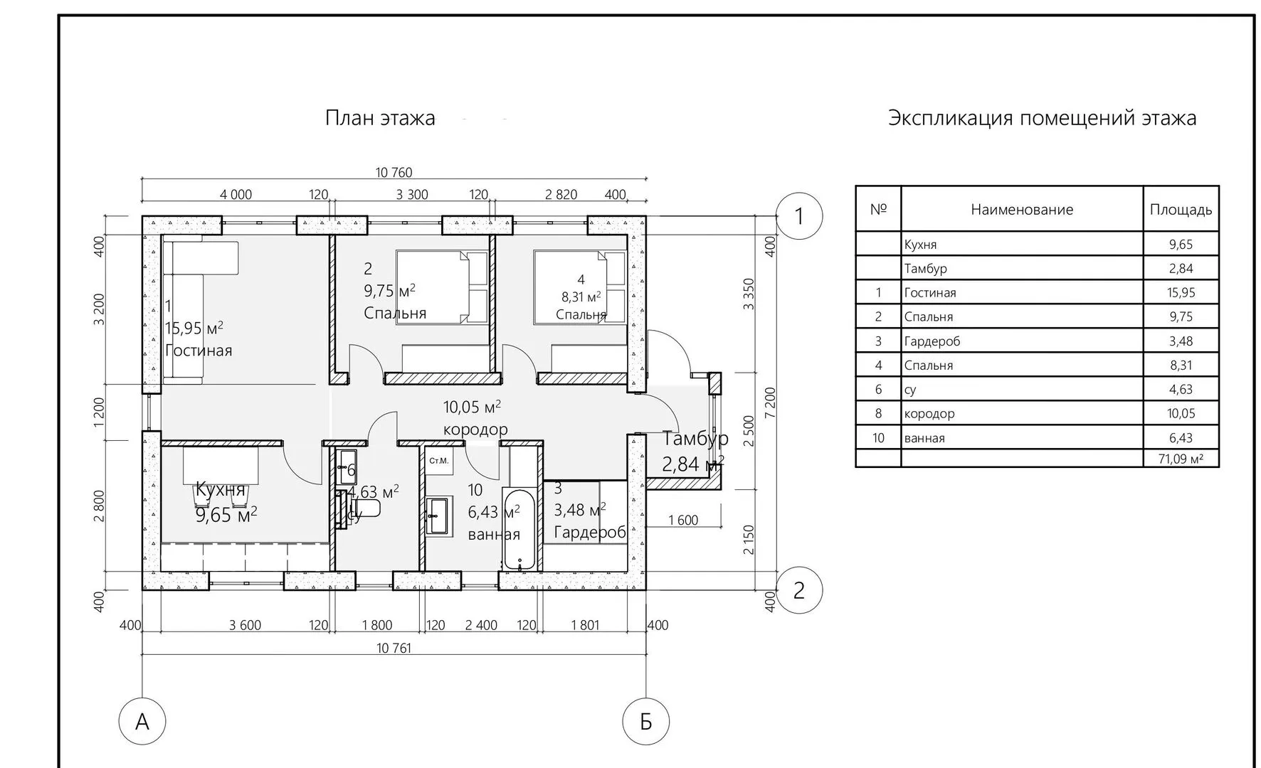
Площадь дома 68 м2
Санузлы 2
Спальни 2

Описание

Любой, кто ищет идеальное сочетание европейской элегантности и современной практичности, найдёт в проекте «Ольга Ш‑71» именно то, что нужно. Дом выполнен в классическом европейском стиле, но при этом отличается простотой и компактностью – всего один надземный этаж, где гармонично расположены уютные зоны для семейной жизни и гостеприимные пространства для отдыха. Экономичный и при этом эстетически привлекательный, он станет идеальным домом как для молодой семьи, так и для тех, кто ценит спокойствие уединённого уголка в сердце природы. Внутри вас ждёт продумываемая до мелочей планировка: открытая кухня-обеденная зона с крупным кованым столом, светлые спальни и просторные ванные комнаты. Важным преимуществом дома является наличие чердачного помещения, которое можно превратить в отдельную мастерскую, игровую комнату для детей или дополнительную спальню – гибкость, которой зачастую не хватает в одноэтажных квартирах. Газобетонные блоки на внешней стене обеспечивают долгую службу и энергоэффективность, а комбинированная кровля гарантирует надёжную защиту от любых погодных условий. «Ольга Ш‑71» предназначена для круглогодичного проживания, поэтому в каждой детали продумана долговечность: прочные и долговечные материалы, эффективная тепло- и звукоизоляция, а также удобная крытая автостоянка, которую можно было бы разместить в придомовом пространстве, если захотите. Это действительно умный и стильный выбор для тех, кто мечтает о доме с характером, где каждое утро начинается с тепла и уюта, а вечер — с ощущения полного спокойствия.

Характеристики дома

Архитектурный стиль
Автоматизированное регулирование параметров теплоносителя
Нет
Балконы/лоджии
Отсутствуют
Чердачное помещение
Да
Датчики протечки воды
Нет
Эксплуатируемая или зеленая кровля
Нет
Электроснабжение
Центральное
Газоснабжение
Не предусмотрено
Изоляция воздушного шума
Нет
Камин
Нет
Класс энергоэффективности
-
Класс энергосбережения
-
Количество надземных этажей
1
Круглогодичное проживание
Да
Материал кровли
Металлочерепица
Материал перекрытий
Деревянные
Материал внешних стен
Материал внутренних перегородок
Блочные
Модульное строительство с конструкциями заводского изготовления
Нет
Объем надземной части
-
Основной материал фасадов
Штукатурка
Отопление
Индивидуальное
Площадь дома
68 м2
Площадь застройки
77 м2
Подвальное помещение
Да
Показатель компактности здания
-
Приборы учета тепловой энергии
Да
Пристроенный гараж/крытая автостоянка
Нет
Противопожарная система
Нет
Санузлы
2
Совмещенная кухня-гостиная
Нет
Спальни
2
Терраса
Нет
Тип фундамента
Ленточный
Тип кровли
Толщина внешних стен
400 мм
Толщина внутренних перегородок
120 мм
Улучшенные шумовые характеристики
Нет
Вентиляция
Естественная
Веранда
Нет
Водоотведение
Локальные очистные сооружения
Водоснабжение
Центральное
Высота дома
5.12 м
Высота потолков
2.8 м

Планировка

Фасад дома

Александр

Закажите выезд инженера

Александр

Выездной инженер
Закажите выезд инженера для точной диагностики и профессиональной консультации по инженерным системам. Специалист приедет в удобное время, проведёт осмотр, рассчитает стоимость работ и подберёт оптимальные решения для вашего дома.


    Похожие проекты

    Ипотека и
    рассрочка
    Фаворит 6х9 П2
    Стоимость от:
    5 506 200
    Проект от: 41 400
    Этажей 2
    Санузлы 2
    Спальни 4
    Смотреть
    Ипотека и
    рассрочка
    Загородный дом «Мансард 100»
    Стоимость от:
    6 689 980
    Проект от: 40 050
    Этажей 1
    Санузлы 1
    Спальни 3
    Смотреть
    Ипотека и
    рассрочка
    Альматея
    Стоимость от:
    3 460 380
    Проект от: 22 050
    Этажей 1
    Санузлы 1
    Спальни 2
    Смотреть
    Ипотека и
    рассрочка
    Дом «Лестер 82» в стиле барнхаус
    Стоимость от:
    4 753 540
    Проект от: 36 900
    Этажей 1
    Санузлы 1
    Спальни 2
    Смотреть
    Ипотека и
    рассрочка
    Двухэтажный коттедж С95
    Стоимость от:
    9 062 640
    Проект от: 54 450
    Этажей 2
    Санузлы 2
    Спальни 3
    Смотреть
    Ипотека и
    рассрочка
    ХИТАЧИ
    Стоимость от:
    4 747 875
    Проект от: 33 750
    Этажей 1
    Санузлы 1
    Спальни 2
    Смотреть

    Как узнать стоимость дома

    back
    Оставляете заявку
    Вы заполняете форму на сайте или звоните нам. Менеджер Лайвкрафт связывается с вами для уточнения деталей: тип дома, площадь, материалы, участок строительства.
    back
    Консультация и подбор решения
    Наш специалист помогает выбрать оптимальный тип дома и конструкцию с учётом бюджета, сроков и целей — будь то дом для постоянного проживания или дача.
    back
    Расчёт предварительной стоимости
    Инженер делает первичный расчёт стоимости строительства по вашим параметрам: фундамент, коробка, кровля, отделка. Вы получаете смету с разбивкой по этапам.
    back
    Корректировка и утверждение сметы
    При необходимости вносим изменения — например, замену материалов или сокращение этапов. После согласования формируется окончательная фиксированная смета.
    back
    Заключение договора и старт работ
    После утверждения сметы заключаем официальный договор с гарантией. Вы получаете прозрачный график и точную стоимость — без скрытых расходов.

    Заказать конусльтацию по:Проект Ольга Ш-71

    Фото 1 Проект Ольга Ш-71


      Наши
      контакты

      Дмитров
      Опорный проезд 28Б
      (индустриальный парк Ниагара)
      9:00 до 18:00

      Корзина