4.9
Рейтинг на основании 120 отзывов
Дмитров
Опорный проезд 28Б
(индустриальный парк Ниагара)
Бренд "Дмитров-Дело" c 2008 года на рынке строительства в Дмитрове
Звоните 9:00 до 18:00 8 (915) 055-33-61
Бренд "Дмитров-Дело" c 2008 года на рынке строительства в Дмитрове

Проект современного двухэтажного дома с террасой S-219

Стоимость проекта от:
98 550 ₽
БЕСПЛАТНО! ПРИ ЗАКАЗЕ СТРОИТЕЛЬСТВА
Стоимость строительства от:
15 302 160 ₽
Артикул ART-3124
Дата 26.12.2025
Архитектурный стиль Барнхаус
Количество надземных этажей 2
Круглогодичное проживание Да
Площадь дома 219 м2
Санузлы 2
Спальни 4

Описание

Добро пожаловать в наш новый проект – современный двухэтажный дом в стиле барнхаус, созданный для тех, кто ценит уют и функциональность без лишних украшений. Уже с первого взгляда вы почувствуете атмосферу тихой сельской идиллии, смягчённой современными материалами и продуманной планировкой. Этот дом – идеальное решение для креативных хозяев, которые хотят жить круглый год в защищённом, тепло- и энергосберегающем пространстве, где каждое пространство наполнено светом и теплом. Внутри у нас сочетается открытость и приватность: на первом месте – большая веранда и светло-распространённая кухня, создающая ощущение единства с природой и возможность легко погружаться в домашний мир. Просторные помещения второго этажа, где расположены спальни и уютные уголки для отдыха, оформлены в лаконичном барнхаус-стиле. Вместо балконов – практичные лоджии, а чердачное помещение предоставляет гибкую возможность для творчества или дополнительной жилой зоны. Теплый газобетонный фасад и традиционная двускатная крыша не только обрамляют дом в характерном стиле, но и обеспечивают надёжную теплоизоляцию и долгую службу. Отличительной особенностью проекта является его универсальность: отсутствие прикреплённого гаража не лишает дома выгоды – внешняя автостоянка легко интегрируется в план участка. Такой подход делает наш дом не только красивым, но и практичным, позволяющим вам наслаждаться жизнью в комфортной и современной обстановке, где каждый сантиметр продуман на пользу вам и вашей семьи.

Характеристики дома

Архитектурный стиль
Автоматизированное регулирование параметров теплоносителя
Нет
Балконы/лоджии
Отсутствуют
Чердачное помещение
Да
Датчики протечки воды
Нет
Эксплуатируемая или зеленая кровля
Нет
Электроснабжение
Центральное
Газоснабжение
Центральное
Изоляция воздушного шума
Нет
Камин
Нет
Класс энергоэффективности
-
Класс энергосбережения
-
Количество надземных этажей
2
Круглогодичное проживание
Да
Материал кровли
Металлочерепица
Материал перекрытий
Деревянные
Материал внешних стен
Материал внутренних перегородок
Блочные
Модульное строительство с конструкциями заводского изготовления
Нет
Объем надземной части
-
Основной материал фасадов
Облицовочный кирпич
Отопление
Центральное
Площадь дома
219 м2
Площадь застройки
236 м2
Подвальное помещение
Нет
Показатель компактности здания
-
Приборы учета тепловой энергии
Нет
Пристроенный гараж/крытая автостоянка
Нет
Противопожарная система
Нет
Санузлы
2
Совмещенная кухня-гостиная
Да
Спальни
4
Терраса
Нет
Тип фундамента
Плитный
Тип кровли
Толщина внешних стен
425 мм
Толщина внутренних перегородок
100 мм
Улучшенные шумовые характеристики
Нет
Вентиляция
Естественная
Веранда
Да
Водоотведение
Локальные очистные сооружения
Водоснабжение
Центральное
Высота дома
-
Высота потолков
4 м

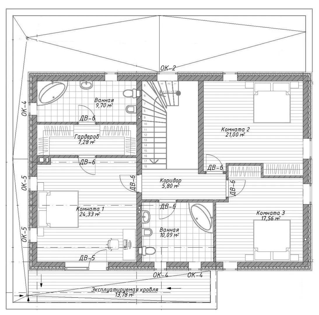
Планировка

Фасад дома

Александр

Закажите выезд инженера

Александр

Выездной инженер
Закажите выезд инженера для точной диагностики и профессиональной консультации по инженерным системам. Специалист приедет в удобное время, проведёт осмотр, рассчитает стоимость работ и подберёт оптимальные решения для вашего дома.


    Похожие проекты

    Ипотека и
    рассрочка
    Дом из бруса 6х10 по проекту №136
    Стоимость от:
    3 798 300
    Проект от: 27 000
    Этажей 1
    Санузлы 1
    Спальни 2
    Смотреть
    Ипотека и
    рассрочка
    Одноэтажный дом из арболита с террасой
    Стоимость от:
    9 042 880
    Проект от: 55 800
    Этажей 1
    Санузлы 1
    Спальни 3
    Смотреть
    Ипотека и
    рассрочка
    Дом Каролина
    Стоимость от:
    4 682 205
    Проект от: 36 450
    Этажей 1
    Санузлы 1
    Спальни 2
    Смотреть
    Ипотека и
    рассрочка
    Авторский проект «Риннес»
    Стоимость от:
    9 218 880
    Проект от: 59 400
    Этажей 2
    Санузлы 2
    Спальни 4
    Смотреть
    Ипотека и
    рассрочка
    Одноэтажный дом АН 122
    Стоимость от:
    8 790 540
    Проект от: 52 650
    Этажей 1
    Санузлы 2
    Спальни 3
    Смотреть
    Ипотека и
    рассрочка
    Двухэтажный дом ОЛИВЕНА
    Стоимость от:
    8 860 560
    Проект от: 58 050
    Этажей 2
    Санузлы 2
    Спальни 4
    Смотреть

    Как узнать стоимость дома

    back
    Оставляете заявку
    Вы заполняете форму на сайте или звоните нам. Менеджер Лайвкрафт связывается с вами для уточнения деталей: тип дома, площадь, материалы, участок строительства.
    back
    Консультация и подбор решения
    Наш специалист помогает выбрать оптимальный тип дома и конструкцию с учётом бюджета, сроков и целей — будь то дом для постоянного проживания или дача.
    back
    Расчёт предварительной стоимости
    Инженер делает первичный расчёт стоимости строительства по вашим параметрам: фундамент, коробка, кровля, отделка. Вы получаете смету с разбивкой по этапам.
    back
    Корректировка и утверждение сметы
    При необходимости вносим изменения — например, замену материалов или сокращение этапов. После согласования формируется окончательная фиксированная смета.
    back
    Заключение договора и старт работ
    После утверждения сметы заключаем официальный договор с гарантией. Вы получаете прозрачный график и точную стоимость — без скрытых расходов.

    Заказать конусльтацию по:Проект современного двухэтажного дома с террасой S-219

    Фото 1 Проект современного двухэтажного дома с террасой S-219


      Наши
      контакты

      Дмитров
      Опорный проезд 28Б
      (индустриальный парк Ниагара)
      9:00 до 18:00

      Корзина