4.9
Рейтинг на основании 120 отзывов
Дмитров
Опорный проезд 28Б
(индустриальный парк Ниагара)
Бренд "Дмитров-Дело" c 2008 года на рынке строительства в Дмитрове
Звоните 9:00 до 18:00 8 (915) 055-33-61
Бренд "Дмитров-Дело" c 2008 года на рынке строительства в Дмитрове

Загородный дом 65

Стоимость проекта от:
35 100 ₽
БЕСПЛАТНО! ПРИ ЗАКАЗЕ СТРОИТЕЛЬСТВА
Стоимость строительства от:
5 864 760 ₽
Артикул ART-16011
Дата 25.12.2025
Архитектурный стиль Классический
Количество надземных этажей 1
Круглогодичное проживание Да
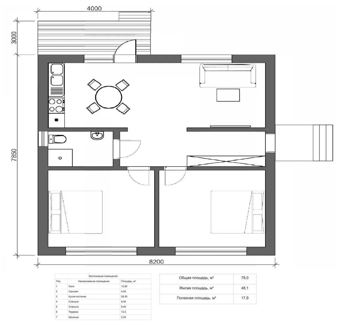
Площадь дома 78 м2
Санузлы 1
Спальни 2

Описание

В сердце живописной сельской местности расположится ваш уголок уюта – загородный дом площадью 65 м², построенный в классическом стиле, который не перестает радовать глаз своим изысканным, но при этом простым дизайном. Единый надземный этаж создаёт ощущение открытости и прозрачности, а строгая, вальмовая крыша обрамляет пространство, подчеркивая его гармонию с природой. Этот дом готов к круглогодичной жизни: уютные стены из керамического блока хорошо удерживают тепло и одновременно дарят особую акустику и тепло в любое время года. Уютный внутренний двор и просторная терраса приглашают насладиться свежим воздухом до самого вечера: обрушивающиеся лучи солнца, звуки природы и ощущение свободы в безмятежной обстановке – всё это скомпилировано в этой небольшой, но невероятно функциональной квартире. Хотя в доме нет веранд и прикрытых площадок для авто, его современная планировка и минимум лишних деталей обеспечивают безупречное сочетание простоты и элегантности. Приглашаем вас сделать этот уютный уголок своим новым домом – здесь каждый день приносит покой и вдохновение, а атмосфера, созданная классическим стилем и вниманием к деталям, будет сопровождать вас всегда. Свяжитесь с нами, чтобы узнать все нюансы и назначить личную встречу: ваш новый дом уже ждёт!

Характеристики дома

Архитектурный стиль
Автоматизированное регулирование параметров теплоносителя
Нет
Балконы/лоджии
Отсутствуют
Чердачное помещение
Нет
Датчики протечки воды
Нет
Эксплуатируемая или зеленая кровля
Нет
Электроснабжение
Центральное
Газоснабжение
Не предусмотрено
Изоляция воздушного шума
Нет
Камин
Нет
Класс энергоэффективности
-
Класс энергосбережения
-
Количество надземных этажей
1
Круглогодичное проживание
Да
Материал кровли
Металлочерепица
Материал перекрытий
Монолитные железобетонные
Материал внешних стен
Материал внутренних перегородок
Блочные
Модульное строительство с конструкциями заводского изготовления
Нет
Объем надземной части
218 м3
Основной материал фасадов
Облицовочный кирпич
Отопление
Индивидуальное
Площадь дома
78 м2
Площадь застройки
80 м2
Подвальное помещение
Нет
Показатель компактности здания
-
Приборы учета тепловой энергии
Нет
Пристроенный гараж/крытая автостоянка
Нет
Противопожарная система
Нет
Санузлы
1
Совмещенная кухня-гостиная
Да
Спальни
2
Терраса
Да
Тип фундамента
Свайно-ростверковый
Толщина внешних стен
470 мм
Толщина внутренних перегородок
120 мм
Улучшенные шумовые характеристики
Нет
Вентиляция
Естественная
Веранда
Нет
Водоотведение
Локальные очистные сооружения
Водоснабжение
Индивидуальное
Высота дома
4.88 м
Высота потолков
2.8 м

Планировка

Фасад дома

Александр

Закажите выезд инженера

Александр

Выездной инженер
Закажите выезд инженера для точной диагностики и профессиональной консультации по инженерным системам. Специалист приедет в удобное время, проведёт осмотр, рассчитает стоимость работ и подберёт оптимальные решения для вашего дома.


    Похожие проекты

    Ипотека и
    рассрочка
    Каркасный дом Флоренция 140
    Стоимость от:
    8 379 000
    Проект от: 63 000
    Этажей 2
    Санузлы 2
    Спальни 4
    Смотреть
    Ипотека и
    рассрочка
    Одноэтажный дом В-205
    Стоимость от:
    8 689 340
    Проект от: 57 150
    Этажей 1
    Санузлы 2
    Спальни 3
    Смотреть
    Ипотека и
    рассрочка
    SVOI-24-1-77 Одноэтажный дом 77 кв.м.
    Стоимость от:
    5 789 740
    Проект от: 34 650
    Этажей 1
    Санузлы 2
    Спальни 2
    Смотреть
    Ипотека и
    рассрочка
    Комфорт-128
    Стоимость от:
    10 183 360
    Проект от: 57 600
    Этажей 1
    Санузлы 2
    Спальни 3
    Смотреть
    Ипотека и
    рассрочка
    РП-171,2/24
    Стоимость от:
    12 650 880
    Проект от: 77 400
    Этажей 2
    Санузлы 2
    Спальни 5
    Смотреть
    Ипотека и
    рассрочка
    Двухэтажный проект Звезда
    Стоимость от:
    10 107 600
    Проект от: 60 750
    Этажей 2
    Санузлы 3
    Спальни 4
    Смотреть

    Как узнать стоимость дома

    back
    Оставляете заявку
    Вы заполняете форму на сайте или звоните нам. Менеджер Лайвкрафт связывается с вами для уточнения деталей: тип дома, площадь, материалы, участок строительства.
    back
    Консультация и подбор решения
    Наш специалист помогает выбрать оптимальный тип дома и конструкцию с учётом бюджета, сроков и целей — будь то дом для постоянного проживания или дача.
    back
    Расчёт предварительной стоимости
    Инженер делает первичный расчёт стоимости строительства по вашим параметрам: фундамент, коробка, кровля, отделка. Вы получаете смету с разбивкой по этапам.
    back
    Корректировка и утверждение сметы
    При необходимости вносим изменения — например, замену материалов или сокращение этапов. После согласования формируется окончательная фиксированная смета.
    back
    Заключение договора и старт работ
    После утверждения сметы заключаем официальный договор с гарантией. Вы получаете прозрачный график и точную стоимость — без скрытых расходов.

    Заказать конусльтацию по:Загородный дом 65

    Фото 1 Загородный дом 65


      Наши
      контакты

      Дмитров
      Опорный проезд 28Б
      (индустриальный парк Ниагара)
      9:00 до 18:00

      Корзина