4.9
Рейтинг на основании 120 отзывов
Дмитров
Опорный проезд 28Б
(индустриальный парк Ниагара)
Бренд "Дмитров-Дело" c 2008 года на рынке строительства в Дмитрове
Звоните 9:00 до 18:00 8 (915) 055-33-61
Бренд "Дмитров-Дело" c 2008 года на рынке строительства в Дмитрове

Проект загородного дома NHD-134

Стоимость проекта от:
66 600 ₽
Стоимость строительства от:
10 705 920 ₽
Артикул ART-16207
Дата 26.12.2025
Архитектурный стиль Классический
Количество надземных этажей 2
Круглогодичное проживание Да
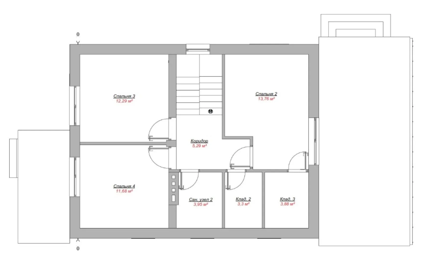
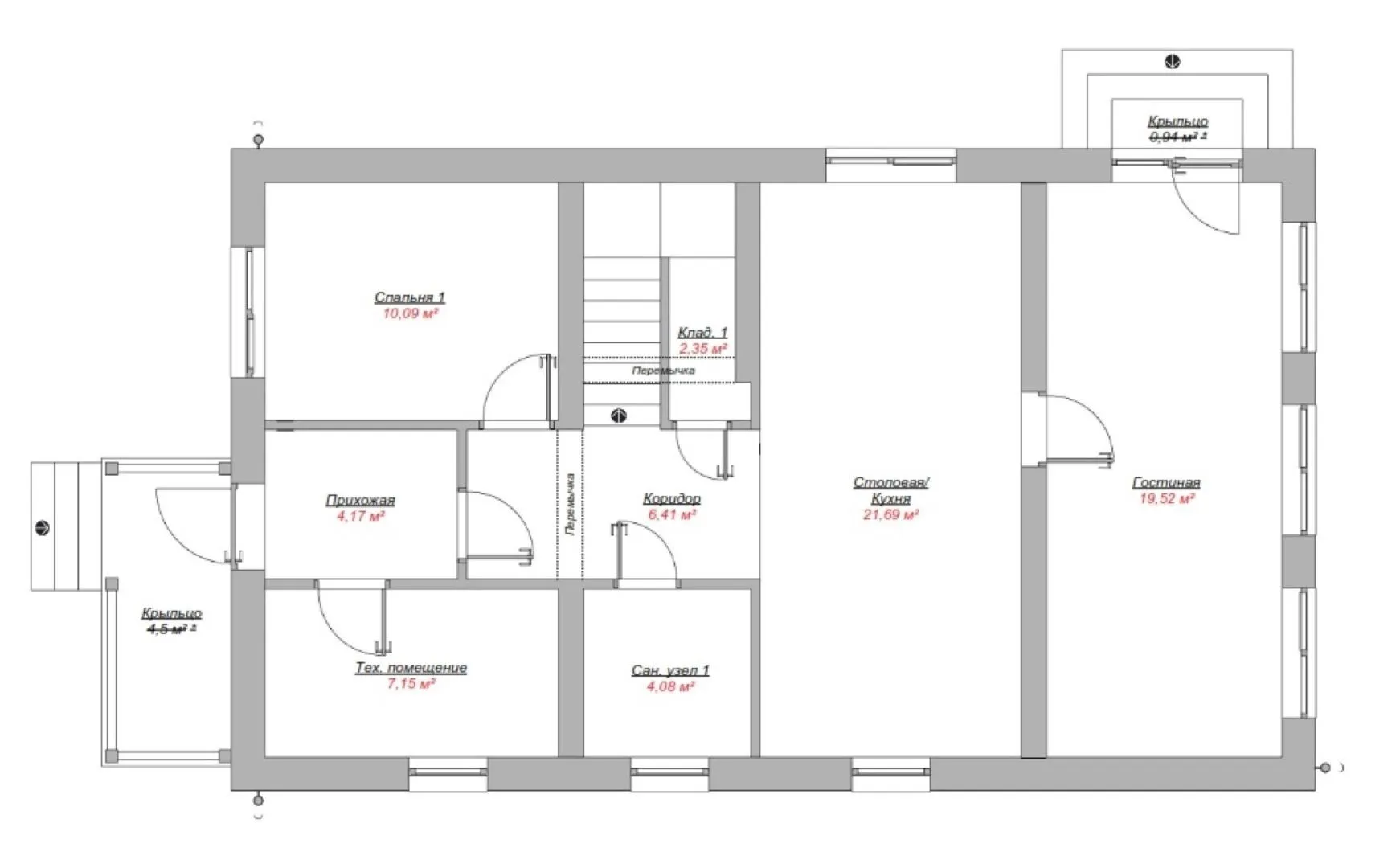
Площадь дома 148 м2
Санузлы 2
Спальни 4

Описание

В этом уютном загородном доме NHD‑134 вы обретаете идеальное сочетание традиций и комфорта. Архитектура в строго классическом стиле, два надземных этажа, двускатная крыша и газобетонные блоки, создают ощущение надёжности и тепла, а приёма‑квартира, сконшёлённая в каждой детали, дарит ощущение спокойного уюта. Пригодный к круглогодичному проживанию, такой дом готов принять вашу семью в любое время года, обеспечив защиту от ветра, дождя и снега, и при этом сохранять мягкую природную атмосферу. Отсутствие балконов, лоджий и веранд не делает его менее живописным: просторные оконные проёмы позволяют впустить в пространство свет, создавая ощущение лёгкости и простора. Внутренний чердачный люфт превращается в удобное пространство для хранения, небольшого хобби‑угла или уютного уголка для чтения, придавая дому функциональности без ущерба для эстетики. Гараж и крытая автостоянка отсутствуют, но это только добавляет дому простора и гибкости, позволяющей свободно планировать прилегающий ландшафт. Пусть ваш новый дом станет местом, где каждый день начинается с ароматов свежего воздуха, а вечера заканчиваются спокойствием и уютом. NHD‑134 — это классика, которая принимает вас в своих объятиях, а простое, но приятное пространство позволяет сосредоточиться на самых важных вещах: в семье, в работе, в собственном отдыхе. Приглашаем вас открыть для себя новый уровень домашнего уюта, где каждый метр наполнен теплом и гармонией.

Характеристики дома

Архитектурный стиль
Классический
Автоматизированное регулирование параметров теплоносителя
Да
Балконы/лоджии
Отсутствуют
Чердачное помещение
Да
Датчики протечки воды
Нет
Эксплуатируемая или зеленая кровля
Нет
Электроснабжение
Центральное
Газоснабжение
Центральное
Изоляция воздушного шума
Да
Камин
Нет
Класс энергоэффективности
A++
Класс энергосбережения
A++
Количество надземных этажей
2
Круглогодичное проживание
Да
Материал кровли
Металлочерепица
Материал перекрытий
Сборные железобетонные предварительно напряженные пустотные плиты
Материал внешних стен
Газобетонные блоки
Материал внутренних перегородок
Блочные
Модульное строительство с конструкциями заводского изготовления
Нет
Объем надземной части
850 м3
Основной материал фасадов
Штукатурка
Отопление
Индивидуальное
Площадь дома
148 м2
Площадь застройки
107 м2
Подвальное помещение
Нет
Показатель компактности здания
0.8
Приборы учета тепловой энергии
Да
Пристроенный гараж/крытая автостоянка
Нет
Противопожарная система
Нет
Санузлы
2
Совмещенная кухня-гостиная
Нет
Спальни
4
Терраса
Нет
Тип фундамента
Свайно-ростверковый
Тип кровли
Двускатная
Толщина внешних стен
400 мм
Толщина внутренних перегородок
100 мм
Улучшенные шумовые характеристики
Да
Вентиляция
Естественная
Веранда
Нет
Водоотведение
Локальные очистные сооружения
Водоснабжение
Индивидуальное
Высота дома
8.5 м
Высота потолков
2.8 м

Планировка

Фасад дома

Александр

Закажите выезд инженера

Александр

Выездной инженер
Закажите выезд инженера для точной диагностики и профессиональной консультации по инженерным системам. Специалист приедет в удобное время, проведёт осмотр, рассчитает стоимость работ и подберёт оптимальные решения для вашего дома.


    Похожие проекты

    Ипотека и
    рассрочка
    Усадебный деревянный дом с эркером
    Стоимость от:
    10 421 620
    Проект от: 58 950
    Этажей 1
    Санузлы 1
    Спальни 1
    Смотреть
    Ипотека и
    рассрочка
    Одноэтажный дом Fixplans-12968
    Стоимость от:
    8 415 660
    Проект от: 55 350
    Этажей 1
    Санузлы 1
    Спальни 2
    Смотреть
    Ипотека и
    рассрочка
    Загородный дом ИСТА 140
    Стоимость от:
    7 697 580
    Проект от: 49 050
    Этажей 1
    Санузлы 1
    Спальни 3
    Смотреть
    Ипотека и
    рассрочка
    Проект Одноэтажный дом из керамзитоблока «Лимна»
    Стоимость от:
    6 638 280
    Проект от: 42 300
    Этажей 1
    Санузлы 1
    Спальни 3
    Смотреть
    Ипотека и
    рассрочка
    ДРЕВЕСНЫЙ КОМФОРТ
    Стоимость от:
    3 820 200
    Проект от: 29 250
    Этажей 2
    Санузлы 1
    Спальни 2
    Смотреть
    Ипотека и
    рассрочка
    Одноэтажный коттедж с четырьмя спальнями S3-153-3 (Z200 BG)
    Стоимость от:
    12 963 060
    Проект от: 73 350
    Этажей 1
    Санузлы 1
    Спальни 4
    Смотреть

    Как узнать стоимость дома

    back
    Оставляете заявку
    Вы заполняете форму на сайте или звоните нам. Менеджер Лайвкрафт связывается с вами для уточнения деталей: тип дома, площадь, материалы, участок строительства.
    back
    Консультация и подбор решения
    Наш специалист помогает выбрать оптимальный тип дома и конструкцию с учётом бюджета, сроков и целей — будь то дом для постоянного проживания или дача.
    back
    Расчёт предварительной стоимости
    Инженер делает первичный расчёт стоимости строительства по вашим параметрам: фундамент, коробка, кровля, отделка. Вы получаете смету с разбивкой по этапам.
    back
    Корректировка и утверждение сметы
    При необходимости вносим изменения — например, замену материалов или сокращение этапов. После согласования формируется окончательная фиксированная смета.
    back
    Заключение договора и старт работ
    После утверждения сметы заключаем официальный договор с гарантией. Вы получаете прозрачный график и точную стоимость — без скрытых расходов.

    Заказать конусльтацию по:Проект загородного дома NHD-134

    Фото 1 Проект загородного дома NHD-134


      Наши
      контакты

      Дмитров
      Опорный проезд 28Б
      (индустриальный парк Ниагара)
      9:00 до 18:00