4.9
Рейтинг на основании 120 отзывов
Дмитров
Опорный проезд 28Б
(индустриальный парк Ниагара)
Бренд "Дмитров-Дело" c 2008 года на рынке строительства в Дмитрове
Звоните 9:00 до 18:00 8 (915) 055-33-61
Бренд "Дмитров-Дело" c 2008 года на рынке строительства в Дмитрове

Проект Загородный дом АС-283

Стоимость проекта от:
78 300 ₽
БЕСПЛАТНО! ПРИ ЗАКАЗЕ СТРОИТЕЛЬСТВА
Стоимость строительства от:
11 753 760 ₽
Артикул ART-18732
Дата 26.12.2025
Архитектурный стиль Европейский
Количество надземных этажей 2
Круглогодичное проживание Да
Площадь дома 174 м2
Санузлы 2
Спальни 4

Описание

**Проект «Загородный дом АС‑283»** – это настоящий оазис уюта и спокойствия, созданный для тех, кто ценит гармонию между европейской эстетикой и природным комфортом. Дом восстает на прочном деревянном каркасе, что обеспечивает естественную теплоизоляцию и мягкую, приятную атмосферу внутри помещений. Плоская крыша не только подчеркивает современный профиль, но и открывает возможности для установки солнечной панели или создания дополнительного пространства в верхней части дома – идеальное решение для тех, кто стремится к экологичности и экономии. Насладитесь просторной семейной жизнью, ведь два надземных этажа предлагают достаточно места для гостиной, больших кухни, комфортабельных спален и уютного рабочего уголка. Веранда с открытыми окнами приглашает проводить вечера под звёздами или за чашкой кофе, создавая ощущение, будто вы уже дома. Пристроенный гараж и крытая автостоянка обеспечат безопасность вашего авто в любую погоду, а круглогодичное проживание гарантирует комфорт даже в самые холодные зимы. Европейский стиль, продуманные детали и внимание к каждой детали делают этот дом настоящим воплощением современного загородного уюта. Если вы ищете безопасный, комфортный и эстетически привлекательный дом, где каждая дверь открывает новый мир, АС‑283 станет вашим идеальным выбором. Вы будете в восторге от его простора, уюта и безупречного сочетания стиля и функциональности.

Характеристики дома

Архитектурный стиль
Автоматизированное регулирование параметров теплоносителя
Нет
Балконы/лоджии
Отсутствуют
Чердачное помещение
Нет
Датчики протечки воды
Нет
Эксплуатируемая или зеленая кровля
Нет
Электроснабжение
Центральное
Газоснабжение
Индивидуальное
Изоляция воздушного шума
Нет
Камин
Нет
Класс энергоэффективности
-
Класс энергосбережения
-
Количество надземных этажей
2
Круглогодичное проживание
Да
Материал кровли
ЭПДМ мембраны
Материал перекрытий
Деревянные
Материал внешних стен
Материал внутренних перегородок
Деревянные
Модульное строительство с конструкциями заводского изготовления
Нет
Объем надземной части
586 м3
Основной материал фасадов
Фасадная плитка
Отопление
Индивидуальное
Площадь дома
174 м2
Площадь застройки
116 м2
Подвальное помещение
Нет
Показатель компактности здания
-
Приборы учета тепловой энергии
Нет
Пристроенный гараж/крытая автостоянка
Да
Противопожарная система
Нет
Санузлы
2
Совмещенная кухня-гостиная
Да
Спальни
4
Терраса
Нет
Тип фундамента
Ленточный
Тип кровли
Толщина внешних стен
145 мм
Толщина внутренних перегородок
100 мм
Улучшенные шумовые характеристики
Нет
Вентиляция
Естественная
Веранда
Да
Водоотведение
Локальные очистные сооружения
Водоснабжение
Центральное
Высота дома
6.5 м
Высота потолков
2.7 м

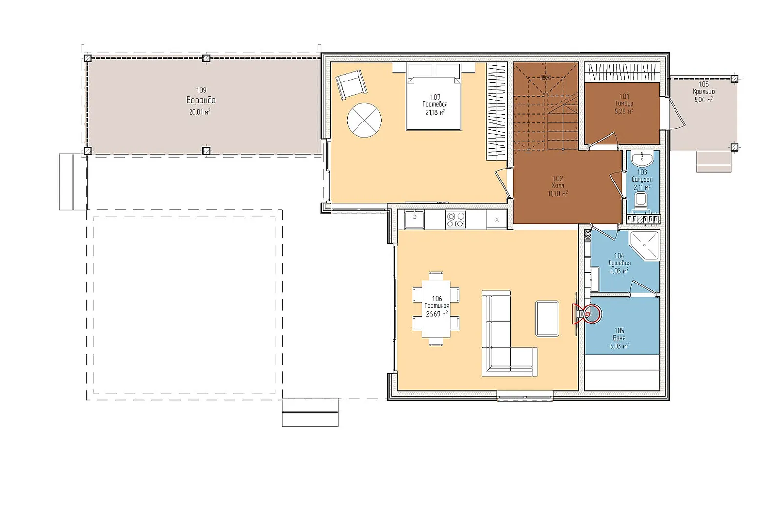
Планировка

Фасад дома

Александр

Закажите выезд инженера

Александр

Выездной инженер
Закажите выезд инженера для точной диагностики и профессиональной консультации по инженерным системам. Специалист приедет в удобное время, проведёт осмотр, рассчитает стоимость работ и подберёт оптимальные решения для вашего дома.


    Похожие проекты

    Ипотека и
    рассрочка
    Одноэтажный каркасный дом с большой террасой
    Стоимость от:
    3 699 520
    Проект от: 28 800
    Этажей 1
    Санузлы 1
    Спальни 1
    Смотреть
    Ипотека и
    рассрочка
    П1-127-сп3
    Стоимость от:
    9 315 680
    Проект от: 55 800
    Этажей 1
    Санузлы 3
    Спальни 3
    Смотреть
    Ипотека и
    рассрочка
    А7-21
    Стоимость от:
    23 963 280
    Проект от: 151 650
    Этажей 2
    Санузлы 3
    Спальни 4
    Смотреть
    Ипотека и
    рассрочка
    Дом 110м2 в скандинавском стиле
    Стоимость от:
    6 981 700
    Проект от: 49 500
    Этажей 1
    Санузлы 2
    Спальни 3
    Смотреть
    Ипотека и
    рассрочка
    Проект загородного дома NHD-125
    Стоимость от:
    14 867 160
    Проект от: 89 100
    Этажей 1
    Санузлы 2
    Спальни 4
    Смотреть
    Ипотека и
    рассрочка
    Одноэтажный дом FIXPLANS — 1655
    Стоимость от:
    10 183 360
    Проект от: 57 600
    Этажей 1
    Санузлы 1
    Спальни 3
    Смотреть

    Как узнать стоимость дома

    back
    Оставляете заявку
    Вы заполняете форму на сайте или звоните нам. Менеджер Лайвкрафт связывается с вами для уточнения деталей: тип дома, площадь, материалы, участок строительства.
    back
    Консультация и подбор решения
    Наш специалист помогает выбрать оптимальный тип дома и конструкцию с учётом бюджета, сроков и целей — будь то дом для постоянного проживания или дача.
    back
    Расчёт предварительной стоимости
    Инженер делает первичный расчёт стоимости строительства по вашим параметрам: фундамент, коробка, кровля, отделка. Вы получаете смету с разбивкой по этапам.
    back
    Корректировка и утверждение сметы
    При необходимости вносим изменения — например, замену материалов или сокращение этапов. После согласования формируется окончательная фиксированная смета.
    back
    Заключение договора и старт работ
    После утверждения сметы заключаем официальный договор с гарантией. Вы получаете прозрачный график и точную стоимость — без скрытых расходов.

    Заказать конусльтацию по:Проект Загородный дом АС-283

    Фото 1 Проект Загородный дом АС-283


      Наши
      контакты

      Дмитров
      Опорный проезд 28Б
      (индустриальный парк Ниагара)
      9:00 до 18:00

      Корзина