4.9
Рейтинг на основании 120 отзывов
Дмитров
Опорный проезд 28Б
(индустриальный парк Ниагара)
Бренд "Дмитров-Дело" c 2008 года на рынке строительства в Дмитрове
Звоните 9:00 до 18:00 8 (915) 055-33-61
Бренд "Дмитров-Дело" c 2008 года на рынке строительства в Дмитрове

РД-85

Стоимость проекта от:
59 400 ₽
БЕСПЛАТНО! ПРИ ЗАКАЗЕ СТРОИТЕЛЬСТВА
Стоимость строительства от:
9 391 680 ₽
Артикул ART-11456
Дата 25.12.2025
Архитектурный стиль Классический
Количество надземных этажей 2
Круглогодичное проживание Да
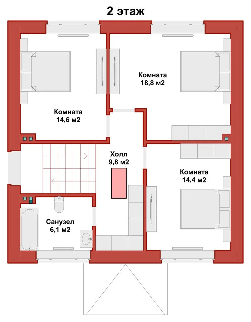
Площадь дома 132 м2
Санузлы 2
Спальни 4

Описание

Добро пожаловать в уютный уголок классической гармонии – дом «РД‑85». Его строгая, но в то же время теплоя душу к архитектуре воплощается в гармоничном кирпичном облике и величественной четырёхскатной кроновой крыше, которая отдает уважение традициям, придавая ему неповторимый шарм. Удобные две надземные этажа предлагают открытые пространства для жизни: просторные комнаты, где свет льётся без преград, создают атмосферу, где каждый день начинается и заканчивается в кругосветной идиллии. Стиль «РД‑85» — это сочетание практичности и изящества. Классический фасад с его симметричными линиями и аккуратными деталями делает дом живописным и в любой погоде привлекательным. На каждом уровне удобно расположенные помещения обеспечивают полный комфорт круглеточной жизни без лишних деталей: нет лишних балконов и веранды, но есть уютная веранда, где можно наслаждаться закатными лучами и звучанием ветра. Теплая кирпичная стена гарантирует шумоизоляцию и тепло в зимний холод, а прочная крыша обеспечивает защиту от непогоды, создавая надежное убежище для вашей семьи. Именно «РД‑85» сочетает простоту современного жизни с величием классики. Просторные комнаты, кирпичный корпус, веранда, уютный двухэтажный уровень и надёжная крышка – всё это создаёт идеальные условия для вашего домашнего уюта и гармонии. Добро пожаловать в дом, где каждый уголок наполнен теплом и заботой – ведь он ваш, и он ждёт, чтобы вы нашли здесь свой новый старт.

Характеристики дома

Архитектурный стиль
Автоматизированное регулирование параметров теплоносителя
Нет
Балконы/лоджии
Отсутствуют
Чердачное помещение
Нет
Датчики протечки воды
Нет
Эксплуатируемая или зеленая кровля
Нет
Электроснабжение
Центральное
Газоснабжение
Центральное
Изоляция воздушного шума
Нет
Камин
Нет
Класс энергоэффективности
-
Класс энергосбережения
-
Количество надземных этажей
2
Круглогодичное проживание
Да
Материал кровли
Битумная черепица
Материал перекрытий
Сборные железобетонные многопустотные плиты
Материал внешних стен
Материал внутренних перегородок
Кирпичные
Модульное строительство с конструкциями заводского изготовления
Нет
Объем надземной части
675 м3
Основной материал фасадов
Облицовочный кирпич
Отопление
Индивидуальное
Площадь дома
132 м2
Площадь застройки
95 м2
Подвальное помещение
Нет
Показатель компактности здания
-
Приборы учета тепловой энергии
Нет
Пристроенный гараж/крытая автостоянка
Нет
Противопожарная система
Нет
Санузлы
2
Совмещенная кухня-гостиная
Да
Спальни
4
Терраса
Нет
Тип фундамента
Свайно-ростверковый
Толщина внешних стен
480 мм
Толщина внутренних перегородок
120 мм
Улучшенные шумовые характеристики
Нет
Вентиляция
Рекуперация
Веранда
Да
Водоотведение
Локальные очистные сооружения
Водоснабжение
Индивидуальное
Высота дома
8.34 м
Высота потолков
3 м

Планировка

Фасад дома

Александр

Закажите выезд инженера

Александр

Выездной инженер
Закажите выезд инженера для точной диагностики и профессиональной консультации по инженерным системам. Специалист приедет в удобное время, проведёт осмотр, рассчитает стоимость работ и подберёт оптимальные решения для вашего дома.


    Похожие проекты

    Ипотека и
    рассрочка
    Загородный дом «Марс»
    Стоимость от:
    10 381 140
    Проект от: 66 150
    Этажей 1
    Санузлы 1
    Спальни 3
    Смотреть
    Ипотека и
    рассрочка
    Одноэтажный загородный дом с террасой Д-2024-97
    Стоимость от:
    8 265 400
    Проект от: 49 500
    Этажей 1
    Санузлы 1
    Спальни 3
    Смотреть
    Ипотека и
    рассрочка
    ФОРОС-123
    Стоимость от:
    8 686 260
    Проект от: 55 350
    Этажей 1
    Санузлы 2
    Спальни 3
    Смотреть
    Ипотека и
    рассрочка
    Торонто
    Стоимость от:
    7 192 800
    Проект от: 54 000
    Этажей 2
    Санузлы 2
    Спальни 4
    Смотреть
    Ипотека и
    рассрочка
    1-этажный жилой дом №11-09-24
    Стоимость от:
    9 916 720
    Проект от: 61 200
    Этажей 1
    Санузлы 2
    Спальни 2
    Смотреть
    Ипотека и
    рассрочка
    «Аревков»
    Стоимость от:
    6 942 600
    Проект от: 52 200
    Этажей 2
    Санузлы 2
    Спальни 3
    Смотреть

    Как узнать стоимость дома

    back
    Оставляете заявку
    Вы заполняете форму на сайте или звоните нам. Менеджер Лайвкрафт связывается с вами для уточнения деталей: тип дома, площадь, материалы, участок строительства.
    back
    Консультация и подбор решения
    Наш специалист помогает выбрать оптимальный тип дома и конструкцию с учётом бюджета, сроков и целей — будь то дом для постоянного проживания или дача.
    back
    Расчёт предварительной стоимости
    Инженер делает первичный расчёт стоимости строительства по вашим параметрам: фундамент, коробка, кровля, отделка. Вы получаете смету с разбивкой по этапам.
    back
    Корректировка и утверждение сметы
    При необходимости вносим изменения — например, замену материалов или сокращение этапов. После согласования формируется окончательная фиксированная смета.
    back
    Заключение договора и старт работ
    После утверждения сметы заключаем официальный договор с гарантией. Вы получаете прозрачный график и точную стоимость — без скрытых расходов.

    Заказать конусльтацию по:РД-85

    Фото 1 РД-85


      Наши
      контакты

      Дмитров
      Опорный проезд 28Б
      (индустриальный парк Ниагара)
      9:00 до 18:00

      Корзина