4.9
Рейтинг на основании 120 отзывов
Дмитров
Опорный проезд 28Б
(индустриальный парк Ниагара)
Бренд "Дмитров-Дело" c 2008 года на рынке строительства в Дмитрове
Звоните 9:00 до 18:00 8 (915) 055-33-61
Бренд "Дмитров-Дело" c 2008 года на рынке строительства в Дмитрове

С1

Стоимость проекта от:
45 000 ₽
БЕСПЛАТНО! ПРИ ЗАКАЗЕ СТРОИТЕЛЬСТВА
Стоимость строительства от:
7 959 600 ₽
Артикул ART-18577
Дата 26.12.2025
Архитектурный стиль Классический
Количество надземных этажей 1
Круглогодичное проживание Да
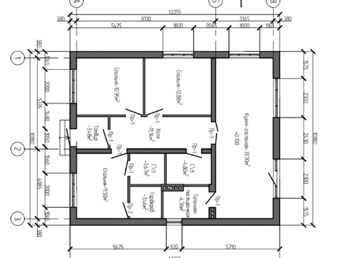
Площадь дома 100 м2
Санузлы 1
Спальни 3

Описание

Вас приглашают в уютный, но в то же время величественный дом, где каждая деталь напоминает о непревзойденном мастерстве классической архитектуры. Просторный, одноквартирный надземный этаж обрамлен тёплой кирпичной стеной, а четыре скатки кровли, выполненные в вальмовой форме, придают фасаду строгий характер и внушают ощущение надёжности и изысканности. Это идеальное место для круглогодичных впечатлений: яркое солнце весной, благородный закат осенью, уютный вечер зимой – всё это здесь будет частью вашей жизни. Интерьер подчёркивает простоту и элегантность. Вместе с открытой планировкой получаем достаточное пространство для хранения, а присутсвие чердачной зоны открывает перспективу на дополнительные варианты жилого или комфортабельного хранения вещей, обеспечивая гибкость использования. Дом не имеет балконов, веранд и прицепного гаража, но именно это лишнее пространство делает его более спокойным и уютным, свободным от лишних деталей и отвлечений. Здесь каждый уголок наполнен светом, а тёплый каминный камин придаст вечернее уют. Независимо от того, ищете ли вы спокойное место для жизни или уютное семейное гнёздко, этот дом по праву станет вашим персональным уголком. Он сочёт в себе функциональность и эстетическое великолепие, создавая при этом гармонию простоты и стиля. Вы будете наслаждаться каждым моментом, проведённым в этом архитектурном произведении.

Характеристики дома

Архитектурный стиль
Автоматизированное регулирование параметров теплоносителя
Нет
Балконы/лоджии
Отсутствуют
Чердачное помещение
Да
Датчики протечки воды
Нет
Эксплуатируемая или зеленая кровля
Нет
Электроснабжение
Центральное
Газоснабжение
Центральное
Изоляция воздушного шума
Нет
Камин
Нет
Класс энергоэффективности
-
Класс энергосбережения
-
Количество надземных этажей
1
Круглогодичное проживание
Да
Материал кровли
Металлочерепица
Материал перекрытий
Деревянные
Материал внешних стен
Материал внутренних перегородок
Кирпичные
Модульное строительство с конструкциями заводского изготовления
Нет
Объем надземной части
399 м3
Основной материал фасадов
Облицовочный кирпич
Отопление
Индивидуальное
Площадь дома
100 м2
Площадь застройки
125 м2
Подвальное помещение
Нет
Показатель компактности здания
-
Приборы учета тепловой энергии
Нет
Пристроенный гараж/крытая автостоянка
Нет
Противопожарная система
Нет
Санузлы
1
Совмещенная кухня-гостиная
Да
Спальни
3
Терраса
Нет
Тип фундамента
Ленточный
Толщина внешних стен
400 мм
Толщина внутренних перегородок
120 мм
Улучшенные шумовые характеристики
Нет
Вентиляция
Естественная
Веранда
Нет
Водоотведение
Локальные очистные сооружения
Водоснабжение
Индивидуальное
Высота дома
5.56 м
Высота потолков
3 м

Планировка

Фасад дома

Александр

Закажите выезд инженера

Александр

Выездной инженер
Закажите выезд инженера для точной диагностики и профессиональной консультации по инженерным системам. Специалист приедет в удобное время, проведёт осмотр, рассчитает стоимость работ и подберёт оптимальные решения для вашего дома.


    Похожие проекты

    Ипотека и
    рассрочка
    Одноэтажный дом Fixplans-0125
    Стоимость от:
    9 816 180
    Проект от: 62 550
    Этажей 1
    Санузлы 2
    Спальни 3
    Смотреть
    Ипотека и
    рассрочка
    Одноэтажный кирпичный дом MIDDLE — 87 m2 (Красный облицовочный кирпич)
    Стоимость от:
    4 941 640
    Проект от: 27 900
    Этажей 1
    Санузлы 1
    Спальни 2
    Смотреть
    Ипотека и
    рассрочка
    Каменный дом Rock
    Стоимость от:
    7 203 240
    Проект от: 45 900
    Этажей 1
    Санузлы 1
    Спальни 3
    Смотреть
    Ипотека и
    рассрочка
    Одноэтажный дом АН 118
    Стоимость от:
    8 790 540
    Проект от: 52 650
    Этажей 1
    Санузлы 2
    Спальни 2
    Смотреть
    Ипотека и
    рассрочка
    Волошина
    Стоимость от:
    5 414 640
    Проект от: 32 400
    Этажей 1
    Санузлы 1
    Спальни 2
    Смотреть
    Ипотека и
    рассрочка
    Двухэтажный дом из клееного бруса БД-46
    Стоимость от:
    13 322 640
    Проект от: 81 450
    Этажей 2
    Санузлы 3
    Спальни 3
    Смотреть

    Как узнать стоимость дома

    back
    Оставляете заявку
    Вы заполняете форму на сайте или звоните нам. Менеджер Лайвкрафт связывается с вами для уточнения деталей: тип дома, площадь, материалы, участок строительства.
    back
    Консультация и подбор решения
    Наш специалист помогает выбрать оптимальный тип дома и конструкцию с учётом бюджета, сроков и целей — будь то дом для постоянного проживания или дача.
    back
    Расчёт предварительной стоимости
    Инженер делает первичный расчёт стоимости строительства по вашим параметрам: фундамент, коробка, кровля, отделка. Вы получаете смету с разбивкой по этапам.
    back
    Корректировка и утверждение сметы
    При необходимости вносим изменения — например, замену материалов или сокращение этапов. После согласования формируется окончательная фиксированная смета.
    back
    Заключение договора и старт работ
    После утверждения сметы заключаем официальный договор с гарантией. Вы получаете прозрачный график и точную стоимость — без скрытых расходов.

    Заказать конусльтацию по:С1

    Фото 1 С1


      Наши
      контакты

      Дмитров
      Опорный проезд 28Б
      (индустриальный парк Ниагара)
      9:00 до 18:00

      Корзина