S173.2
Описание
Характеристики дома
Архитектурный стиль
Автоматизированное регулирование параметров теплоносителя
Нет
Балконы/лоджии
Отсутствуют
Чердачное помещение
Нет
Датчики протечки воды
Нет
Эксплуатируемая или зеленая кровля
Нет
Электроснабжение
Не предусмотрено
Газоснабжение
Не предусмотрено
Изоляция воздушного шума
Нет
Камин
Нет
Класс энергоэффективности
-
Класс энергосбережения
-
Количество надземных этажей
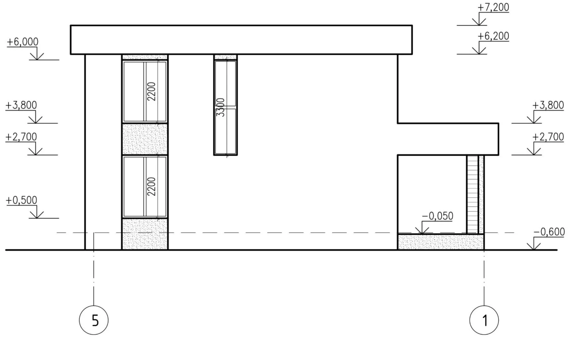
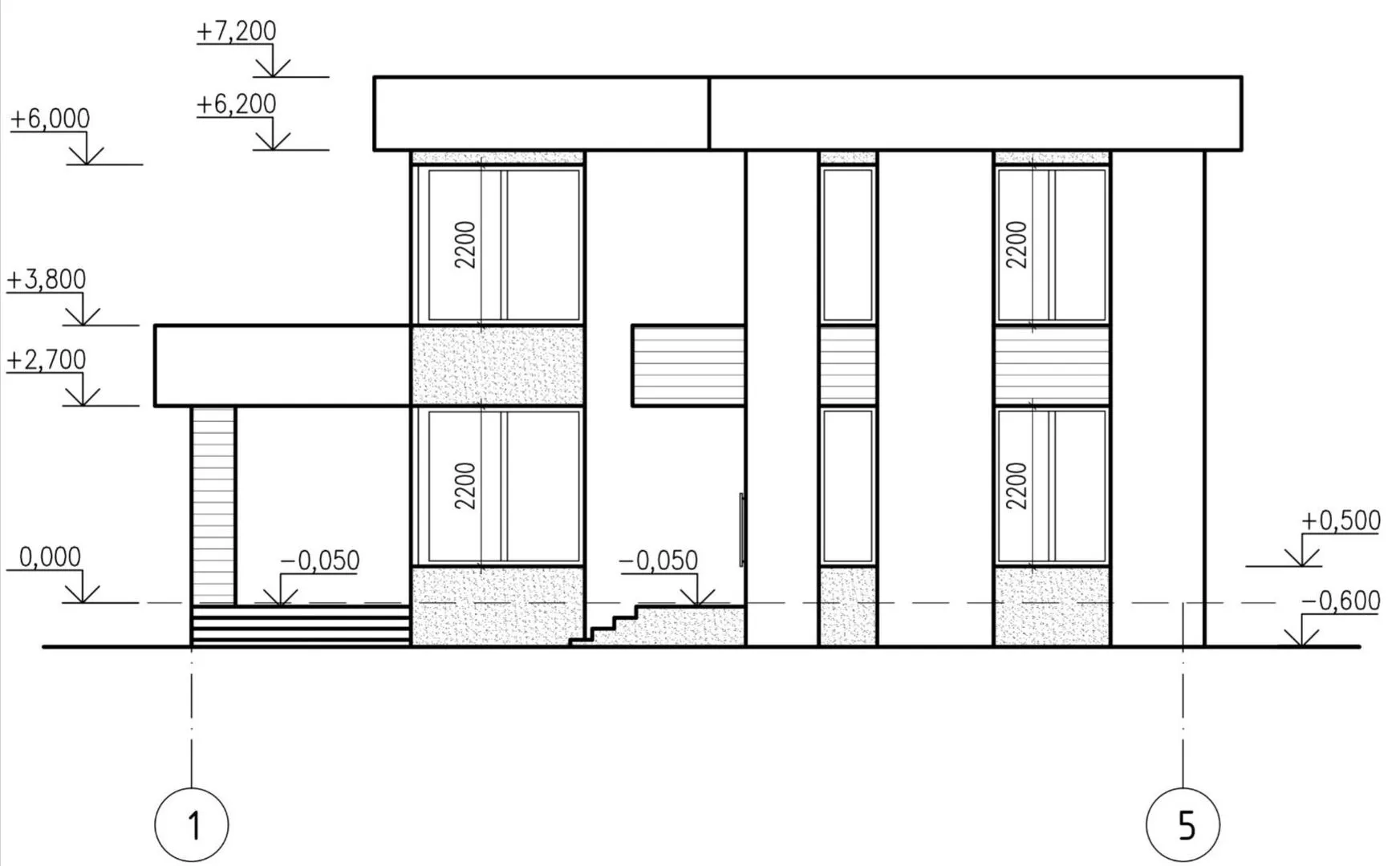
2
Круглогодичное проживание
Да
Материал кровли
Битумно-полимерная или Битумно-резиновая мастика
Материал перекрытий
Монолитные железобетонные
Материал внешних стен
Материал внутренних перегородок
Кирпичные
Модульное строительство с конструкциями заводского изготовления
Нет
Объем надземной части
632 м3
Основной материал фасадов
Штукатурка
Отопление
Не предусмотрено
Площадь дома
172 м2
Площадь застройки
123 м2
Подвальное помещение
Нет
Показатель компактности здания
-
Приборы учета тепловой энергии
Нет
Пристроенный гараж/крытая автостоянка
Нет
Противопожарная система
Нет
Санузлы
2
Совмещенная кухня-гостиная
Да
Спальни
5
Терраса
Да
Тип фундамента
Свайно-ростверковый
Тип кровли
Толщина внешних стен
480 мм
Толщина внутренних перегородок
120 мм
Улучшенные шумовые характеристики
Нет
Вентиляция
Естественная
Веранда
Нет
Водоотведение
Не предусмотрено
Водоснабжение
Не предусмотрено
Высота дома
7.2 м
Высота потолков
3 м
Категории проекта
Строительство двухэтажных домовСтроительство домовСтроительство домов без балкона или лоджииСтроительство домов без гаражаСтроительство домов без чердакаСтроительство домов в стиле ХайтекСтроительство домов для круглогодичного проживанияСтроительство домов из керамических блоковСтроительство домов с верандойСтроительство домов с плоской кровлейСтроительство домов с террасой
Закажите выезд инженера
Александр
Выездной инженер
Закажите выезд инженера для точной диагностики и профессиональной консультации по инженерным
системам. Специалист приедет в удобное время, проведёт осмотр, рассчитает стоимость работ и подберёт
оптимальные решения для вашего дома.
Как узнать стоимость дома
Заказать конусльтацию по:S173.2
Наши
контакты
Дмитров
Опорный проезд 28Б
(индустриальный парк Ниагара)
Опорный проезд 28Б
(индустриальный парк Ниагара)
9:00 до 18:00