4.9
Рейтинг на основании 120 отзывов
Дмитров
Опорный проезд 28Б
(индустриальный парк Ниагара)
Бренд "Дмитров-Дело" c 2008 года на рынке строительства в Дмитрове
Звоните 9:00 до 18:00 8 (915) 055-33-61
Бренд "Дмитров-Дело" c 2008 года на рынке строительства в Дмитрове

S88

Стоимость проекта от:
90 900 ₽
Стоимость строительства от:
14 722 840 ₽
Артикул ART-10169
Дата 25.12.2025
Архитектурный стиль Хайтек
Количество надземных этажей 1
Круглогодичное проживание Да
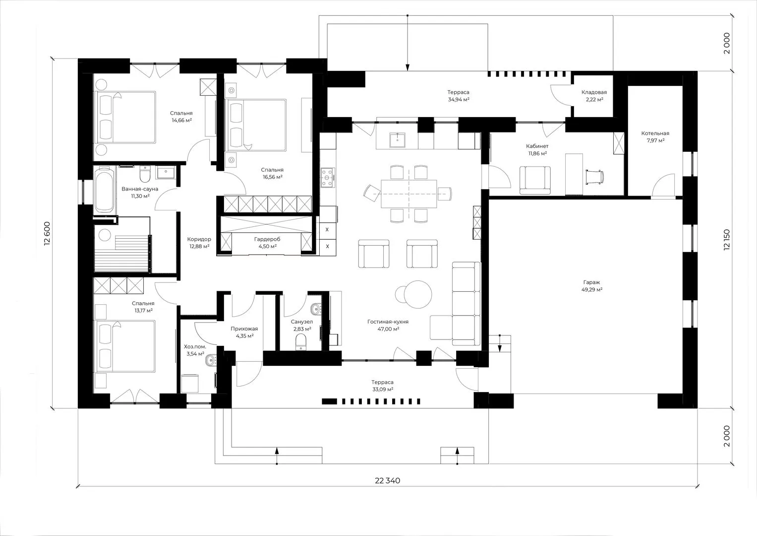
Площадь дома 202 м2
Санузлы 2
Спальни 3

Описание

Прекрасный современный дом S88 – это воплощение стиля хай‑тек, которое сочетает в себе эстетический шарм и все удобства современной жизни. Одноэтажная конструкция с плоской крышей обеспечивает простоту и открывает простор для творческого использования любого коридора. Качественные газобетонные блоки гарантируют тепло‑изоляцию, шумо‑сбережение и долговечность, а строгие линии фасада создают ощущение чистоты и современности. Дом рассчитан на круглогодичное проживание: тепло, комфорт и энергоэффективность – это не просто слова. Внутри вас ждут просторные комнаты, оптимально продуманная планировка и большие окна, которые наполняют все помещения естественным светом. Удобный прицепный гараж делает перемещение автомобилей легким и безопасным, а просторная терраса приглашает наслаждаться свежим воздухом и устраивать уютные посиделки под небом. Не хватает балконов, но это лишь усиливает ощущение открытого пространства и придает дому элегантность. Выбирая S88, вы выбираете место, где каждая деталь продумана до мелочей: от энергоэффективных материалов до продуманного дизайна, создающего ощущение дома, где каждый день начинается с вдохновения современной архитектуры.

Характеристики дома

Архитектурный стиль
Хайтек
Автоматизированное регулирование параметров теплоносителя
-
Балконы/лоджии
Отсутствуют
Чердачное помещение
Нет
Датчики протечки воды
-
Эксплуатируемая или зеленая кровля
-
Электроснабжение
2 варианта
Газоснабжение
2 варианта
Изоляция воздушного шума
-
Камин
Да
Класс энергоэффективности
-
Класс энергосбережения
-
Количество надземных этажей
1
Круглогодичное проживание
Да
Материал кровли
Рулонные битумно-полимерные покрытия
Материал перекрытий
Сборные железобетонные
Материал внешних стен
Газобетонные блоки
Материал внутренних перегородок
Кирпичные
Модульное строительство с конструкциями заводского изготовления
Нет
Объем надземной части
1010 м3
Основной материал фасадов
Штукатурка
Отопление
2 варианта
Площадь дома
202 м2
Площадь застройки
316 м2
Подвальное помещение
Нет
Показатель компактности здания
-
Приборы учета тепловой энергии
-
Пристроенный гараж/крытая автостоянка
Да
Противопожарная система
Нет
Санузлы
2
Совмещенная кухня-гостиная
Да
Спальни
3
Терраса
Да
Тип фундамента
Свайно-ростверковый
Тип кровли
Плоская
Толщина внешних стен
460 мм
Толщина внутренних перегородок
120 мм
Улучшенные шумовые характеристики
-
Вентиляция
3 варианта
Веранда
Нет
Водоотведение
2 варианта
Водоснабжение
2 варианта
Высота дома
5 м
Высота потолков
2.8 м

Планировка

Фасад дома

Александр

Закажите выезд инженера

Александр

Выездной инженер
Закажите выезд инженера для точной диагностики и профессиональной консультации по инженерным системам. Специалист приедет в удобное время, проведёт осмотр, рассчитает стоимость работ и подберёт оптимальные решения для вашего дома.


    Похожие проекты

    Ипотека и
    рассрочка
    Проект дома Цюрупы
    Стоимость от:
    5 331 480
    Проект от: 37 800
    Этажей 1
    Санузлы 2
    Спальни 3
    Смотреть
    Ипотека и
    рассрочка
    Култук
    Стоимость от:
    10 413 360
    Проект от: 67 050
    Этажей 2
    Санузлы 2
    Спальни 4
    Смотреть
    Ипотека и
    рассрочка
    Дом 1 этажный ХайТек 120
    Стоимость от:
    7 320 940
    Проект от: 48 150
    Этажей 1
    Санузлы 2
    Спальни 3
    Смотреть
    Ипотека и
    рассрочка
    «Загородный дом Нептун»
    Стоимость от:
    13 173 050
    Проект от: 96 750
    Этажей 1
    Санузлы 2
    Спальни 4
    Смотреть
    Ипотека и
    рассрочка
    Орбита мини
    Стоимость от:
    6 157 800
    Проект от: 40 500
    Этажей 1
    Санузлы 1
    Спальни 3
    Смотреть
    Ипотека и
    рассрочка
    Индивидуальный жилой дом площадью 132м2 с террасой площадью 15м2
    Стоимость от:
    11 692 340
    Проект от: 66 150
    Этажей 1
    Санузлы 2
    Спальни 3
    Смотреть

    Как узнать стоимость дома

    back
    Оставляете заявку
    Вы заполняете форму на сайте или звоните нам. Менеджер Лайвкрафт связывается с вами для уточнения деталей: тип дома, площадь, материалы, участок строительства.
    back
    Консультация и подбор решения
    Наш специалист помогает выбрать оптимальный тип дома и конструкцию с учётом бюджета, сроков и целей — будь то дом для постоянного проживания или дача.
    back
    Расчёт предварительной стоимости
    Инженер делает первичный расчёт стоимости строительства по вашим параметрам: фундамент, коробка, кровля, отделка. Вы получаете смету с разбивкой по этапам.
    back
    Корректировка и утверждение сметы
    При необходимости вносим изменения — например, замену материалов или сокращение этапов. После согласования формируется окончательная фиксированная смета.
    back
    Заключение договора и старт работ
    После утверждения сметы заключаем официальный договор с гарантией. Вы получаете прозрачный график и точную стоимость — без скрытых расходов.

    Заказать конусльтацию по:S88

    Фото 1 S88


      Наши
      контакты

      Дмитров
      Опорный проезд 28Б
      (индустриальный парк Ниагара)
      9:00 до 18:00

      Корзина