4.9
Рейтинг на основании 120 отзывов
Дмитров
Опорный проезд 28Б
(индустриальный парк Ниагара)
Бренд "Дмитров-Дело" c 2008 года на рынке строительства в Дмитрове
Звоните 9:00 до 18:00 8 (915) 055-33-61
Бренд "Дмитров-Дело" c 2008 года на рынке строительства в Дмитрове

Сахалин 80

Стоимость проекта от:
36 000 ₽
БЕСПЛАТНО! ПРИ ЗАКАЗЕ СТРОИТЕЛЬСТВА
Стоимость строительства от:
5 209 600 ₽
Артикул ART-12986
Дата 25.12.2025
Архитектурный стиль Классический
Количество надземных этажей 1
Круглогодичное проживание Да
Площадь дома 80 м2
Санузлы 1
Спальни 3

Описание

Сахалин 80 – это символ спокойного семейного уюта и надёжной защиты от непогоды. Поскольку квартира рассчитана на одноквартирный цикл в любой сезон, её тепло сохраняется даже в самые холодные зимние дни, а мягкие оттенки классического интерьера создают атмосферу домашнего комфорта, куда хочется возвращаться. Внешние стены, выполненные из плотного деревянного каркаса, дарят естественную теплоизоляцию, а вальмовая четырёхскатная крыша добавляет образу торжественность и элегантность, подчёркивая традицию классического вкуса. Дизайн дома Сахалин 80 тщательно продуман: отсутствие балконов и веранд не только упрощает уход за фасадом, но и позволяет полностью сфокусировать пространство на уютной, открытой планировке с мягкими линиями и светлыми тонами. Внутри вы найдёте просторные комнаты, в которых легко разместиться как одиноким хозяином, так и большой семьёй, а отсутствие чердачных и складских помещений говорит о том, что всё, что нужно, уже подготовлено в уютной и практичной обстановке. Если вы цените традиционную эстетику в сочетании с современной функциональностью и ищете дом, где каждый элемент создан для долгих лет уюта, Сахалин 80 станет вашим идеальным выбором. Свяжитесь с нами уже сегодня и откройте двери в мир комфорта, где каждый уголок рассказывает свою историю.

Характеристики дома

Архитектурный стиль
Автоматизированное регулирование параметров теплоносителя
Нет
Балконы/лоджии
Отсутствуют
Чердачное помещение
Нет
Датчики протечки воды
Нет
Эксплуатируемая или зеленая кровля
Нет
Электроснабжение
Центральное
Газоснабжение
Не предусмотрено
Изоляция воздушного шума
Нет
Камин
Нет
Класс энергоэффективности
-
Класс энергосбережения
-
Количество надземных этажей
1
Круглогодичное проживание
Да
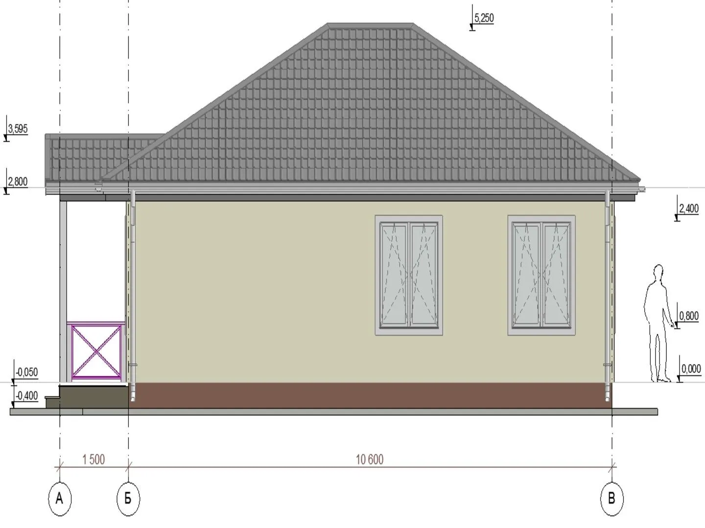
Материал кровли
Металлочерепица
Материал перекрытий
Деревянные
Материал внешних стен
Материал внутренних перегородок
Деревянные
Модульное строительство с конструкциями заводского изготовления
Нет
Объем надземной части
367 м3
Основной материал фасадов
Сайдинг
Отопление
Индивидуальное
Площадь дома
80 м2
Площадь застройки
92 м2
Подвальное помещение
Нет
Показатель компактности здания
-
Приборы учета тепловой энергии
Нет
Пристроенный гараж/крытая автостоянка
Нет
Противопожарная система
Нет
Санузлы
1
Совмещенная кухня-гостиная
Да
Спальни
3
Терраса
Нет
Тип фундамента
Плитный
Толщина внешних стен
200 мм
Толщина внутренних перегородок
100 мм
Улучшенные шумовые характеристики
Нет
Вентиляция
Естественная
Веранда
Нет
Водоотведение
2 варианта
Водоснабжение
2 варианта
Высота дома
6 м
Высота потолков
2.7 м

Планировка

Фасад дома

Александр

Закажите выезд инженера

Александр

Выездной инженер
Закажите выезд инженера для точной диагностики и профессиональной консультации по инженерным системам. Специалист приедет в удобное время, проведёт осмотр, рассчитает стоимость работ и подберёт оптимальные решения для вашего дома.


    Похожие проекты

    Ипотека и
    рассрочка
    ML-90 v2.0.
    Стоимость от:
    6 464 920
    Проект от: 38 700
    Этажей 1
    Санузлы 2
    Спальни 3
    Смотреть
    Ипотека и
    рассрочка
    Одноэтажный дом «Индивидуальный проект»
    Стоимость от:
    13 216 720
    Проект от: 79 200
    Этажей 1
    Санузлы 2
    Спальни 4
    Смотреть
    Ипотека и
    рассрочка
    Двухэтажный В-220
    Стоимость от:
    15 441 840
    Проект от: 99 450
    Этажей 2
    Санузлы 3
    Спальни 4
    Смотреть
    Ипотека и
    рассрочка
    Жилой дом DC 85
    Стоимость от:
    6 371 200
    Проект от: 36 000
    Этажей 1
    Санузлы 1
    Спальни 3
    Смотреть
    Ипотека и
    рассрочка
    Загородный дом-110
    Стоимость от:
    10 140 900
    Проект от: 69 300
    Этажей 2
    Санузлы 2
    Спальни 5
    Смотреть
    Ипотека и
    рассрочка
    Загородный дом Мэрит
    Стоимость от:
    7 686 720
    Проект от: 48 600
    Этажей 2
    Санузлы 2
    Спальни 4
    Смотреть

    Как узнать стоимость дома

    back
    Оставляете заявку
    Вы заполняете форму на сайте или звоните нам. Менеджер Лайвкрафт связывается с вами для уточнения деталей: тип дома, площадь, материалы, участок строительства.
    back
    Консультация и подбор решения
    Наш специалист помогает выбрать оптимальный тип дома и конструкцию с учётом бюджета, сроков и целей — будь то дом для постоянного проживания или дача.
    back
    Расчёт предварительной стоимости
    Инженер делает первичный расчёт стоимости строительства по вашим параметрам: фундамент, коробка, кровля, отделка. Вы получаете смету с разбивкой по этапам.
    back
    Корректировка и утверждение сметы
    При необходимости вносим изменения — например, замену материалов или сокращение этапов. После согласования формируется окончательная фиксированная смета.
    back
    Заключение договора и старт работ
    После утверждения сметы заключаем официальный договор с гарантией. Вы получаете прозрачный график и точную стоимость — без скрытых расходов.

    Заказать конусльтацию по:Сахалин 80

    Фото 1 Сахалин 80


      Наши
      контакты

      Дмитров
      Опорный проезд 28Б
      (индустриальный парк Ниагара)
      9:00 до 18:00

      Корзина