4.9
Рейтинг на основании 120 отзывов
Дмитров
Опорный проезд 28Б
(индустриальный парк Ниагара)
Бренд "Дмитров-Дело" c 2008 года на рынке строительства в Дмитрове
Звоните 9:00 до 18:00 8 (915) 055-33-61
Бренд "Дмитров-Дело" c 2008 года на рынке строительства в Дмитрове

S.Dom-210-2

Стоимость проекта от:
94 500 ₽
БЕСПЛАТНО! ПРИ ЗАКАЗЕ СТРОИТЕЛЬСТВА
Стоимость строительства от:
13 595 400 ₽
Артикул ART-18499
Дата 26.12.2025
Архитектурный стиль Хайтек
Количество надземных этажей 2
Круглогодичное проживание Да
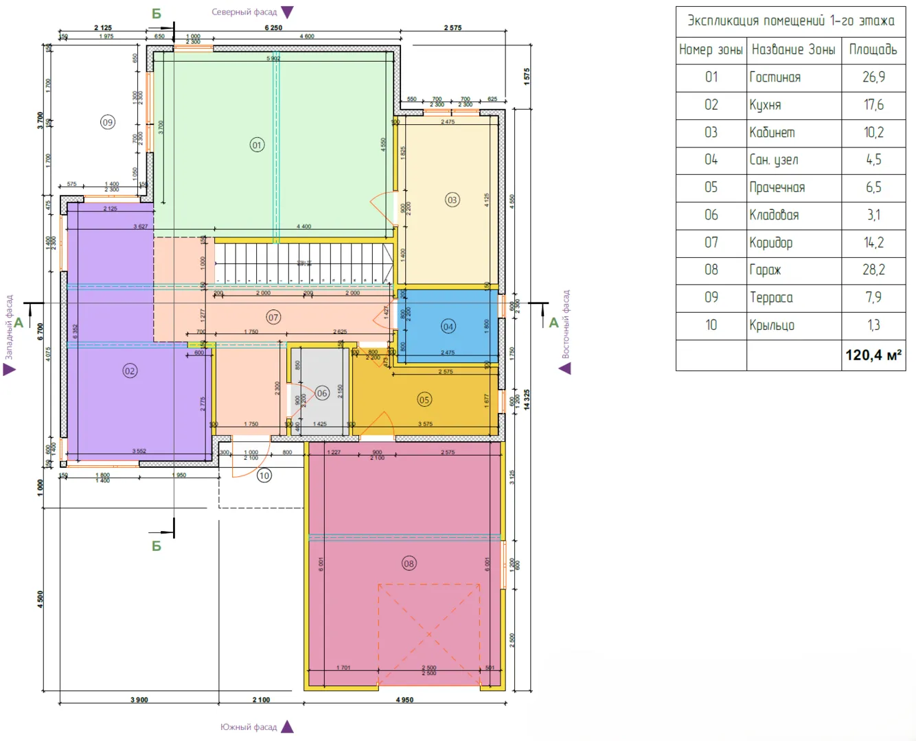
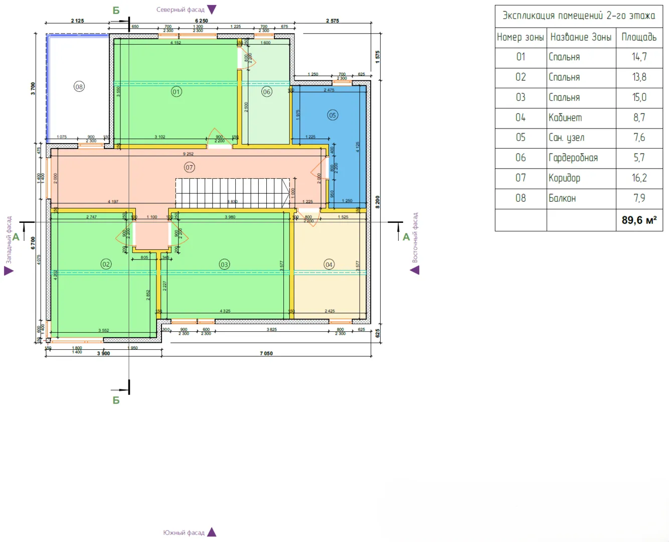
Площадь дома 210 м2
Санузлы 2
Спальни 3

Описание

Добро пожаловать в «S.Dom‑210‑2» — стильный городский дом, в котором гармонично сочетается передовая технология и комфортабельная бытность. Внутри вы найдете две просторные жилые квартиры, оформленные в стиле хай‑тек: прозрачные панельные перегородки, большие панорамные окна, которые излучают свет и создают ощущение открытости. Просторный открытый план позволяет адаптировать пространство под ваши нужды: от домашнего офиса до уютного уголка для отдыха. Каждый этаж снабжен удобными подъездными артериями и собственной стеклянной террасой, где вы сможете наслаждаться тёплым летним ветром или же наблюдать звёзды ночью. Кровельная система плоская, что позволяет использовать пространство для создания мини‑подъездов и дополнительного хранения. Пристроенный гараж и крытая автостоянка избавят вас от лишних забот: парковка дома всегда под рукой, даже в дождливый день. Экологичность и энергоэффективность – ещё один ключевой аспект этого дома. Внешние стены из SIP‑панелей обеспечивают отличную теплоизоляцию при минимальной толщине, а современная вентиляция не оставляет лишний теплопотери. Благодаря этому «S.Dom‑210‑2» идеально подходит как для круглогодичного проживания, так и для активного семейного образа жизни. Выбирая этот дом, вы инвестируете в комфорт, безопасность и инновационный стиль вашей будущей жизни.

Характеристики дома

Архитектурный стиль
Автоматизированное регулирование параметров теплоносителя
Нет
Балконы/лоджии
1
Чердачное помещение
Нет
Датчики протечки воды
Нет
Эксплуатируемая или зеленая кровля
Нет
Электроснабжение
2 варианта
Газоснабжение
Центральное
Изоляция воздушного шума
Нет
Камин
Нет
Класс энергоэффективности
-
Класс энергосбережения
-
Количество надземных этажей
2
Круглогодичное проживание
Да
Материал кровли
ПВХ мембраны
Материал перекрытий
Деревянные
Материал внешних стен
Материал внутренних перегородок
Деревянные
Модульное строительство с конструкциями заводского изготовления
Нет
Объем надземной части
421 м3
Основной материал фасадов
Штукатурка
Отопление
2 варианта
Площадь дома
210 м2
Площадь застройки
139 м2
Подвальное помещение
Нет
Показатель компактности здания
-
Приборы учета тепловой энергии
Нет
Пристроенный гараж/крытая автостоянка
Да
Противопожарная система
Нет
Санузлы
2
Совмещенная кухня-гостиная
Нет
Спальни
3
Терраса
Да
Тип фундамента
Свайный
Тип кровли
Толщина внешних стен
174 мм
Толщина внутренних перегородок
100 мм
Улучшенные шумовые характеристики
Нет
Вентиляция
Естественная
Веранда
Нет
Водоотведение
2 варианта
Водоснабжение
2 варианта
Высота дома
6.5 м
Высота потолков
2.8 м

Планировка

Фасад дома

Александр

Закажите выезд инженера

Александр

Выездной инженер
Закажите выезд инженера для точной диагностики и профессиональной консультации по инженерным системам. Специалист приедет в удобное время, проведёт осмотр, рассчитает стоимость работ и подберёт оптимальные решения для вашего дома.


    Похожие проекты

    Ипотека и
    рассрочка
    Статус 8х8 Гамма
    Стоимость от:
    8 322 360
    Проект от: 62 550
    Этажей 2
    Санузлы 2
    Спальни 3
    Смотреть
    Ипотека и
    рассрочка
    Одноэтажный дом ОТК147
    Стоимость от:
    11 041 140
    Проект от: 66 150
    Этажей 1
    Санузлы 3
    Спальни 4
    Смотреть
    Ипотека и
    рассрочка
    «OKSODOMIK-93 в 1 этаж»
    Стоимость от:
    6 363 060
    Проект от: 41 850
    Этажей 1
    Санузлы 1
    Спальни 3
    Смотреть
    Ипотека и
    рассрочка
    Бест ПБ-2
    Стоимость от:
    6 609 460
    Проект от: 37 350
    Этажей 1
    Санузлы 1
    Спальни 2
    Смотреть
    Ипотека и
    рассрочка
    Двухэтажный дом с гаражом 114-23КД
    Стоимость от:
    9 960 240
    Проект от: 67 950
    Этажей 2
    Санузлы 2
    Спальни 4
    Смотреть
    Ипотека и
    рассрочка
    Загородный дом «со вторым светом» 18/06-2020-АР
    Стоимость от:
    4 760 250
    Проект от: 33 750
    Этажей 1
    Санузлы 1
    Спальни 2
    Смотреть

    Как узнать стоимость дома

    back
    Оставляете заявку
    Вы заполняете форму на сайте или звоните нам. Менеджер Лайвкрафт связывается с вами для уточнения деталей: тип дома, площадь, материалы, участок строительства.
    back
    Консультация и подбор решения
    Наш специалист помогает выбрать оптимальный тип дома и конструкцию с учётом бюджета, сроков и целей — будь то дом для постоянного проживания или дача.
    back
    Расчёт предварительной стоимости
    Инженер делает первичный расчёт стоимости строительства по вашим параметрам: фундамент, коробка, кровля, отделка. Вы получаете смету с разбивкой по этапам.
    back
    Корректировка и утверждение сметы
    При необходимости вносим изменения — например, замену материалов или сокращение этапов. После согласования формируется окончательная фиксированная смета.
    back
    Заключение договора и старт работ
    После утверждения сметы заключаем официальный договор с гарантией. Вы получаете прозрачный график и точную стоимость — без скрытых расходов.

    Заказать конусльтацию по:S.Dom-210-2

    Фото 1 S.Dom-210-2


      Наши
      контакты

      Дмитров
      Опорный проезд 28Б
      (индустриальный парк Ниагара)
      9:00 до 18:00

      Корзина