4.9
Рейтинг на основании 120 отзывов
Дмитров
Опорный проезд 28Б
(индустриальный парк Ниагара)
Бренд "Дмитров-Дело" c 2008 года на рынке строительства в Дмитрове
Звоните 9:00 до 18:00 8 (915) 055-33-61
Бренд "Дмитров-Дело" c 2008 года на рынке строительства в Дмитрове

Статус 8х8 Гамма

Стоимость проекта от:
62 550 ₽
БЕСПЛАТНО! ПРИ ЗАКАЗЕ СТРОИТЕЛЬСТВА
Стоимость строительства от:
8 322 360 ₽
Артикул ART-14834
Дата 25.12.2025
Архитектурный стиль Европейский
Количество надземных этажей 2
Круглогодичное проживание Да
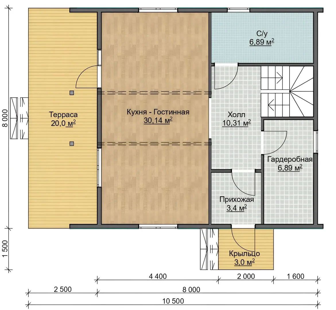
Площадь дома 139 м2
Санузлы 2
Спальни 3

Описание

Незабываемое сочетание стиля и уюта — ваш новый дом из серии **8x8 Gamma**. На два надземных этажа разложены просторные комнаты, которые в любое время года создают ощущение прохлады и тепла благодаря круглогодичному проживанию. Европейский дизайн обрамлен изысканной деревянной рамой, а надёжный двускатный кобель делает крышу не только красивой, но и долговечной. Здесь вы сразу почувствуете атмосферу спокойствия и гармонии: лёгкая атмосфера, где каждый уголок вдохновляет. Особенное внимание привлекает **балкон/лоджия** и обширная **терраса**, которые становятся вашим личным пространством для отдыха. Ощутите свежий утренний воздух, аромат цветов и звуки природы, не выходя за порог. При этом отсутствие прикастого гаража и чердачного помещения освобождает интерьер от лишних ограничений, делая ваш дом более лёгким и просторным. Пространство открывается к жизни, куда можно вписать любые идеи об outfитинге и персонализации. Дом, построенный на деревянных каркасных стенах, дарит неповторимое ощущение тепла, а современная конструкция обеспечивает энергоэффективность и комфорт. Вы получаете полноценный, готовый к жизни дом без лишних вложений. Это шанс открыть новую страницу вашей семейной истории в гармоничном, европейском доме, где каждая деталь продумана до мелочей, а уют находится рядом со свободой выбора.

Характеристики дома

Архитектурный стиль
Автоматизированное регулирование параметров теплоносителя
Нет
Балконы/лоджии
1
Чердачное помещение
Нет
Датчики протечки воды
Нет
Эксплуатируемая или зеленая кровля
Нет
Электроснабжение
Индивидуальное
Газоснабжение
Не предусмотрено
Изоляция воздушного шума
Нет
Камин
Нет
Класс энергоэффективности
-
Класс энергосбережения
-
Количество надземных этажей
2
Круглогодичное проживание
Да
Материал кровли
Металлочерепица
Материал перекрытий
Деревянные
Материал внешних стен
Материал внутренних перегородок
Деревянные
Модульное строительство с конструкциями заводского изготовления
Нет
Объем надземной части
-
Основной материал фасадов
Сайдинг
Отопление
Индивидуальное
Площадь дома
139 м2
Площадь застройки
88 м2
Подвальное помещение
Нет
Показатель компактности здания
-
Приборы учета тепловой энергии
Нет
Пристроенный гараж/крытая автостоянка
Нет
Противопожарная система
Нет
Санузлы
2
Совмещенная кухня-гостиная
Да
Спальни
3
Терраса
Да
Тип фундамента
Свайно-винтовой
Тип кровли
Толщина внешних стен
172 мм
Толщина внутренних перегородок
122 мм
Улучшенные шумовые характеристики
Нет
Вентиляция
Естественная
Веранда
Нет
Водоотведение
Локальные очистные сооружения
Водоснабжение
Индивидуальное
Высота дома
-
Высота потолков
2.53 м

Планировка

Фасад дома

Александр

Закажите выезд инженера

Александр

Выездной инженер
Закажите выезд инженера для точной диагностики и профессиональной консультации по инженерным системам. Специалист приедет в удобное время, проведёт осмотр, рассчитает стоимость работ и подберёт оптимальные решения для вашего дома.


    Похожие проекты

    Ипотека и
    рассрочка
    А-100 combo из газоблока с мастер-спальней
    Стоимость от:
    6 765 000
    Проект от: 40 500
    Этажей 1
    Санузлы 2
    Спальни 3
    Смотреть
    Ипотека и
    рассрочка
    Изумрудные Горки 3
    Стоимость от:
    6 978 840
    Проект от: 45 900
    Этажей 1
    Санузлы 2
    Спальни 4
    Смотреть
    Ипотека и
    рассрочка
    «Шабалина»
    Стоимость от:
    12 758 900
    Проект от: 74 250
    Этажей 1
    Санузлы 2
    Спальни 3
    Смотреть
    Ипотека и
    рассрочка
    К.1.-117
    Стоимость от:
    9 840 820
    Проект от: 58 950
    Этажей 1
    Санузлы 2
    Спальни 4
    Смотреть
    Ипотека и
    рассрочка
    Двухэтажный дом СМ-25
    Стоимость от:
    7 035 360
    Проект от: 42 300
    Этажей 2
    Санузлы 2
    Спальни 3
    Смотреть
    Ипотека и
    рассрочка
    Индивидуальный жилой дом 093-22-АС
    Стоимость от:
    13 017 600
    Проект от: 81 000
    Этажей 2
    Санузлы 2
    Спальни 5
    Смотреть

    Как узнать стоимость дома

    back
    Оставляете заявку
    Вы заполняете форму на сайте или звоните нам. Менеджер Лайвкрафт связывается с вами для уточнения деталей: тип дома, площадь, материалы, участок строительства.
    back
    Консультация и подбор решения
    Наш специалист помогает выбрать оптимальный тип дома и конструкцию с учётом бюджета, сроков и целей — будь то дом для постоянного проживания или дача.
    back
    Расчёт предварительной стоимости
    Инженер делает первичный расчёт стоимости строительства по вашим параметрам: фундамент, коробка, кровля, отделка. Вы получаете смету с разбивкой по этапам.
    back
    Корректировка и утверждение сметы
    При необходимости вносим изменения — например, замену материалов или сокращение этапов. После согласования формируется окончательная фиксированная смета.
    back
    Заключение договора и старт работ
    После утверждения сметы заключаем официальный договор с гарантией. Вы получаете прозрачный график и точную стоимость — без скрытых расходов.

    Заказать конусльтацию по:Статус 8х8 Гамма

    Фото 1 Статус 8х8 Гамма


      Наши
      контакты

      Дмитров
      Опорный проезд 28Б
      (индустриальный парк Ниагара)
      9:00 до 18:00

      Корзина