4.9
Рейтинг на основании 120 отзывов
Дмитров
Опорный проезд 28Б
(индустриальный парк Ниагара)
Бренд "Дмитров-Дело" c 2008 года на рынке строительства в Дмитрове
Звоните 9:00 до 18:00 8 (915) 055-33-61
Бренд "Дмитров-Дело" c 2008 года на рынке строительства в Дмитрове

Шале — 90

Стоимость проекта от:
36 000 ₽
БЕСПЛАТНО! ПРИ ЗАКАЗЕ СТРОИТЕЛЬСТВА
Стоимость строительства от:
4 624 400 ₽
Артикул ART-4400
Дата 26.12.2025
Архитектурный стиль Шале
Количество надземных этажей 1
Круглогодичное проживание Да
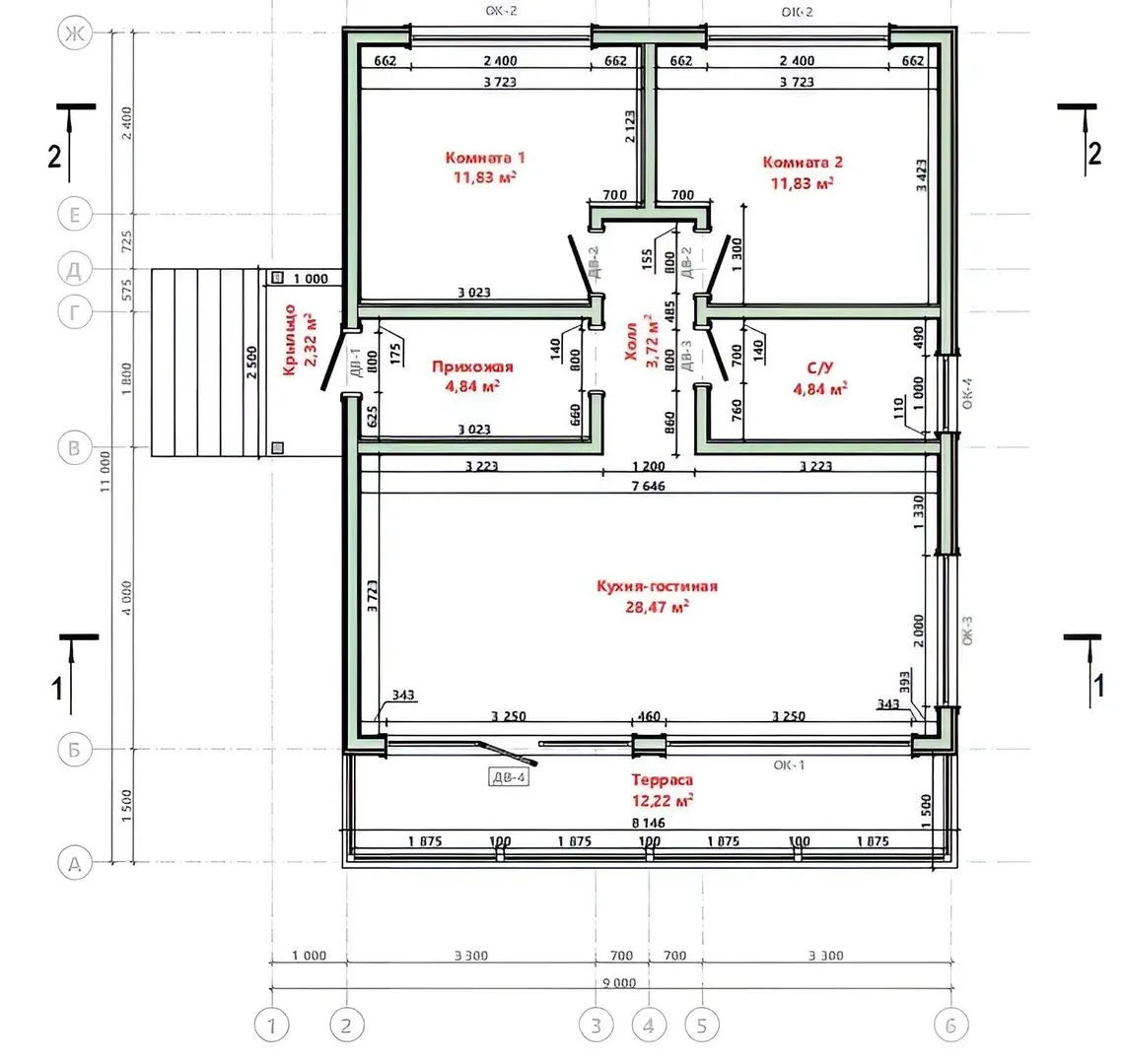
Площадь дома 80 м2
Санузлы 1
Спальни 2

Описание

Вас приветствует уютный шале площадью 90 м², где каждая деталь продумана так, чтобы дарить тепло и комфорт круглый год. Простой, но элегантный деревянный каркас создаёт ощущение связи с природой, а классический двухскатный крыша в традиционном шале‑стиле подчёркивает его аутентичность. Внутреннее пространство, открытое и светлое, располагает к семейному уединению, вечеринкам и просто отдыху, а вместительный чердачное помещение удобно подойдёт для хранения сезонных вещей или как дополнительный рабочий уголок. Пристройка к природе в этом доме воплощена и в просторной террасе, которая приглашает к вечерним беседам под звёздами или жаркой чашке кофе утром. Отсутствие балконов и веранд не делает его менее живописным – наоборот, всё внимание сосредоточено вокруг открытых пространств, создавая ощущение свободного воздуха и открытого пространства. Благодаря отсутствию прилагаетского гаража вы можете насладиться красивыми улицами и проезжими дорогами региона, а сама прогулка к дому будет ещё одним приятным штрихом вашего отдыха. Если вы ищете место, где дом становится частью природы, а каждая деталь радует глаз и сердце, то этот шале – идеальный выбор. Здесь вы найдёте тепло уютного деревянного интерьера, практичность современной планировки и неповторимую красоту традиционного шале‑стиля. Позвольте себе жить в гармонии с природой, при этом сохраняя все удобства современного образа жизни.

Характеристики дома

Архитектурный стиль
Автоматизированное регулирование параметров теплоносителя
-
Балконы/лоджии
Отсутствуют
Чердачное помещение
Да
Датчики протечки воды
-
Эксплуатируемая или зеленая кровля
-
Электроснабжение
Центральное
Газоснабжение
Не предусмотрено
Изоляция воздушного шума
-
Камин
Нет
Класс энергоэффективности
-
Класс энергосбережения
-
Количество надземных этажей
1
Круглогодичное проживание
Да
Материал кровли
Металлочерепица
Материал перекрытий
Деревянные
Материал внешних стен
Материал внутренних перегородок
Деревянные
Модульное строительство с конструкциями заводского изготовления
Нет
Объем надземной части
-
Основной материал фасадов
Планкен
Отопление
Индивидуальное
Площадь дома
80 м2
Площадь застройки
93 м2
Подвальное помещение
Нет
Показатель компактности здания
-
Приборы учета тепловой энергии
-
Пристроенный гараж/крытая автостоянка
Нет
Противопожарная система
Нет
Санузлы
1
Совмещенная кухня-гостиная
Да
Спальни
2
Терраса
Да
Тип фундамента
Свайно-винтовой
Тип кровли
Толщина внешних стен
320 мм
Толщина внутренних перегородок
150 мм
Улучшенные шумовые характеристики
-
Вентиляция
Система кондиционирования
Веранда
Нет
Водоотведение
Локальные очистные сооружения
Водоснабжение
Индивидуальное
Высота дома
5 м
Высота потолков
2.48 м

Планировка

Фасад дома

Александр

Закажите выезд инженера

Александр

Выездной инженер
Закажите выезд инженера для точной диагностики и профессиональной консультации по инженерным системам. Специалист приедет в удобное время, проведёт осмотр, рассчитает стоимость работ и подберёт оптимальные решения для вашего дома.


    Похожие проекты

    Ипотека и
    рассрочка
    Загородный дом Фрита
    Стоимость от:
    8 902 800
    Проект от: 56 250
    Этажей 2
    Санузлы 2
    Спальни 4
    Смотреть
    Ипотека и
    рассрочка
    Одноэтажный дом с тремя спальнями и кухней-гостиной
    Стоимость от:
    7 665 240
    Проект от: 45 900
    Этажей 1
    Санузлы 2
    Спальни 3
    Смотреть
    Ипотека и
    рассрочка
    Трехэтажный дом в английском стиле S-187
    Стоимость от:
    14 904 240
    Проект от: 91 800
    Этажей 3
    Санузлы 2
    Спальни 5
    Смотреть
    Ипотека и
    рассрочка
    Проект Дом с террасой Просто 154
    Стоимость от:
    10 863 380
    Проект от: 67 050
    Этажей 1
    Санузлы 2
    Спальни 4
    Смотреть
    Ипотека и
    рассрочка
    Одноэтажный кирпичный дом BUSINESS — 131m2 Красный облицовочный кирпич
    Стоимость от:
    7 800 760
    Проект от: 44 100
    Этажей 1
    Санузлы 2
    Спальни 3
    Смотреть
    Ипотека и
    рассрочка
    Загородный дом — КР 157
    Стоимость от:
    3 631 680
    Проект от: 23 400
    Этажей 2
    Санузлы 2
    Спальни 4
    Смотреть

    Как узнать стоимость дома

    back
    Оставляете заявку
    Вы заполняете форму на сайте или звоните нам. Менеджер Лайвкрафт связывается с вами для уточнения деталей: тип дома, площадь, материалы, участок строительства.
    back
    Консультация и подбор решения
    Наш специалист помогает выбрать оптимальный тип дома и конструкцию с учётом бюджета, сроков и целей — будь то дом для постоянного проживания или дача.
    back
    Расчёт предварительной стоимости
    Инженер делает первичный расчёт стоимости строительства по вашим параметрам: фундамент, коробка, кровля, отделка. Вы получаете смету с разбивкой по этапам.
    back
    Корректировка и утверждение сметы
    При необходимости вносим изменения — например, замену материалов или сокращение этапов. После согласования формируется окончательная фиксированная смета.
    back
    Заключение договора и старт работ
    После утверждения сметы заключаем официальный договор с гарантией. Вы получаете прозрачный график и точную стоимость — без скрытых расходов.

    Заказать конусльтацию по:Шале — 90

    Фото 1 Шале — 90


      Наши
      контакты

      Дмитров
      Опорный проезд 28Б
      (индустриальный парк Ниагара)
      9:00 до 18:00

      Корзина