4.9
Рейтинг на основании 120 отзывов
Дмитров
Опорный проезд 28Б
(индустриальный парк Ниагара)
Бренд "Дмитров-Дело" c 2008 года на рынке строительства в Дмитрове
Звоните 9:00 до 18:00 8 (915) 055-33-61
Бренд "Дмитров-Дело" c 2008 года на рынке строительства в Дмитрове

Шолохова

Стоимость проекта от:
27 000 ₽
БЕСПЛАТНО! ПРИ ЗАКАЗЕ СТРОИТЕЛЬСТВА
Стоимость строительства от:
4 514 400 ₽
Артикул ART-15770
Дата 25.12.2025
Архитектурный стиль Классический
Количество надземных этажей 1
Круглогодичное проживание Да
Площадь дома 60 м2
Санузлы 1
Спальни 3

Описание

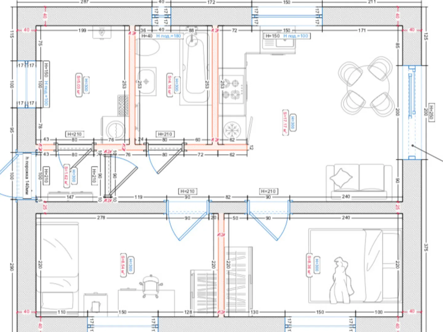
Дом «Шолохова» – это идеальное сочетание классической элегантности и практичности, созданное для тех, кто ценит уют и простоту в повседневной жизни. Единственный надземный этаж располагается в гармоничной архитектурной композиции, а крыша четырехскатного типа, выполненная по традиционной вальмовой схеме, обеспечивает надёжную защиту от атмосферных осадков и добавляет визуальной глубины. Стены, возведённые из газобетонных блоков, гарантируют теплоизоляцию в любое время года, создавая стабильную микроклиматическую среду, а ровные горизонтальные линии подчёркивают строгий, но в то же время благородный стиль. Внутреннее пространство продумано до мелочей: открытая планировка с продуманным расположением перегородок создаёт ощущение простора и свободен в каждой комнате. Лобби с мягкой подсветкой, уютные гостинные и современные кухни с полным спектром встроенной техники делают каждое мгновение в доме особенным. Важным акцентом является чердачное помещение, которое можно превратить в дополнительную спальню, домашний офис или творческую студию, предоставляя гибкость планировочного решения под любые потребности семьи. В «Шолохове» нет лишних деталей, таких как балконы, лоджии или веранда, но есть то, что действительно важно: комфорт и надёжность. Отсутствие пристроенного гаража не умаляет его привлекательности, ведь просторные проемы и удобное расположение в квартале позволяют легко парковаться на близлежащих стоянках. Это идеальный выбор для тех, кто ищет домашнее укрытие, где каждый день начинается с умиротворения и завершается ощущением безопасности и тепла. Приглашаем вас открыть для себя дом, в котором классика встречается с удобством современного бытия.

Характеристики дома

Архитектурный стиль
Автоматизированное регулирование параметров теплоносителя
Нет
Балконы/лоджии
Отсутствуют
Чердачное помещение
Да
Датчики протечки воды
Нет
Эксплуатируемая или зеленая кровля
Нет
Электроснабжение
Не предусмотрено
Газоснабжение
Не предусмотрено
Изоляция воздушного шума
Нет
Камин
Нет
Класс энергоэффективности
-
Класс энергосбережения
-
Количество надземных этажей
1
Круглогодичное проживание
Да
Материал кровли
Металлочерепица
Материал перекрытий
Деревянные
Материал внешних стен
Материал внутренних перегородок
Блочные
Модульное строительство с конструкциями заводского изготовления
Нет
Объем надземной части
300 м3
Основной материал фасадов
Штукатурка
Отопление
Не предусмотрено
Площадь дома
60 м2
Площадь застройки
72 м2
Подвальное помещение
Нет
Показатель компактности здания
-
Приборы учета тепловой энергии
Нет
Пристроенный гараж/крытая автостоянка
Нет
Противопожарная система
Нет
Санузлы
1
Совмещенная кухня-гостиная
Да
Спальни
3
Терраса
Нет
Тип фундамента
Свайно-ростверковый
Толщина внешних стен
300 мм
Толщина внутренних перегородок
100 мм
Улучшенные шумовые характеристики
Нет
Вентиляция
Естественная
Веранда
Нет
Водоотведение
Локальные очистные сооружения
Водоснабжение
Не предусмотрено
Высота дома
5.39 м
Высота потолков
3 м

Планировка

Фасад дома

Александр

Закажите выезд инженера

Александр

Выездной инженер
Закажите выезд инженера для точной диагностики и профессиональной консультации по инженерным системам. Специалист приедет в удобное время, проведёт осмотр, рассчитает стоимость работ и подберёт оптимальные решения для вашего дома.


    Похожие проекты

    Ипотека и
    рассрочка
    River Hall 84
    Стоимость от:
    6 130 080
    Проект от: 37 800
    Этажей 1
    Санузлы 2
    Спальни 3
    Смотреть
    Ипотека и
    рассрочка
    Вереск
    Стоимость от:
    5 275 270
    Проект от: 40 950
    Этажей 1
    Санузлы 1
    Спальни 2
    Смотреть
    Ипотека и
    рассрочка
    Дом с эркером Б039
    Стоимость от:
    6 688 880
    Проект от: 37 800
    Этажей 1
    Санузлы 1
    Спальни 2
    Смотреть
    Ипотека и
    рассрочка
    Скандинавский с террасой 17-23КД.
    Стоимость от:
    5 775 770
    Проект от: 40 950
    Этажей 1
    Санузлы 2
    Спальни 2
    Смотреть
    Ипотека и
    рассрочка
    S.Dom-210-2
    Стоимость от:
    13 595 400
    Проект от: 94 500
    Этажей 2
    Санузлы 2
    Спальни 3
    Смотреть
    Ипотека и
    рассрочка
    Сергелях ПБ
    Стоимость от:
    8 826 720
    Проект от: 53 100
    Этажей 2
    Санузлы 2
    Спальни 4
    Смотреть

    Как узнать стоимость дома

    back
    Оставляете заявку
    Вы заполняете форму на сайте или звоните нам. Менеджер Лайвкрафт связывается с вами для уточнения деталей: тип дома, площадь, материалы, участок строительства.
    back
    Консультация и подбор решения
    Наш специалист помогает выбрать оптимальный тип дома и конструкцию с учётом бюджета, сроков и целей — будь то дом для постоянного проживания или дача.
    back
    Расчёт предварительной стоимости
    Инженер делает первичный расчёт стоимости строительства по вашим параметрам: фундамент, коробка, кровля, отделка. Вы получаете смету с разбивкой по этапам.
    back
    Корректировка и утверждение сметы
    При необходимости вносим изменения — например, замену материалов или сокращение этапов. После согласования формируется окончательная фиксированная смета.
    back
    Заключение договора и старт работ
    После утверждения сметы заключаем официальный договор с гарантией. Вы получаете прозрачный график и точную стоимость — без скрытых расходов.

    Заказать конусльтацию по:Шолохова

    Фото 1 Шолохова


      Наши
      контакты

      Дмитров
      Опорный проезд 28Б
      (индустриальный парк Ниагара)
      9:00 до 18:00

      Корзина