4.9
Рейтинг на основании 120 отзывов
Дмитров
Опорный проезд 28Б
(индустриальный парк Ниагара)
Бренд "Дмитров-Дело" c 2008 года на рынке строительства в Дмитрове
Звоните 9:00 до 18:00 8 (915) 055-33-61
Бренд "Дмитров-Дело" c 2008 года на рынке строительства в Дмитрове

Сибирский шале

Стоимость проекта от:
38 250 ₽
БЕСПЛАТНО! ПРИ ЗАКАЗЕ СТРОИТЕЛЬСТВА
Стоимость строительства от:
5 380 925 ₽
Артикул ART-15708
Дата 25.12.2025
Архитектурный стиль Скандинавский
Количество надземных этажей 1
Круглогодичное проживание Да
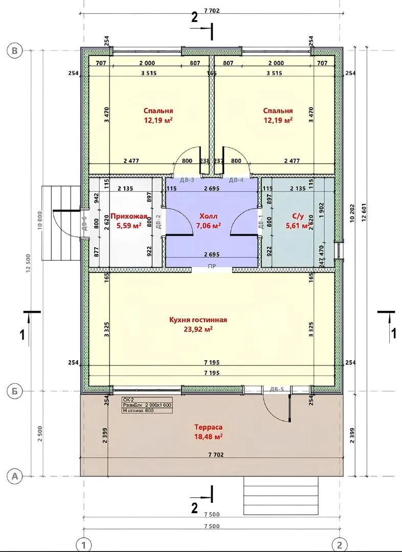
Площадь дома 85 м2
Санузлы 1
Спальни 2

Описание

Представляем вам уютный «Сибирский шале» — сочетание строгой скандинавской простоты и тепла русских традиций. Вышедший на рынок с уникальной конструкцией из SIP‑панелей, он гарантирует энергоэффективность и быстроту возведения, сохраняя при этом безупречный внешний вид. Одноэтажный планировочный вариант позволяет удобно управлять пространством, а приёмная веранда отсутствует, чтобы сохранять целостный, лаконичный вид фасада. Строгий двускатный крыша подчеркивает характер шале и защищает от суровых ветров и снегов, даря жильцу ощущение защищенности и уюта. Круглогодичное проживание стало не только удобством, но и гарантией комфорта в любой климатической зоне. Высокое качество отделки и продуманные теплоизоляционные решения делают эту виллу идеальным местом как для жизни, так и для отдыха. Открытая терраса с панорамным видом открывает простор для летних барбекю, вечерних бесед и простых моментов у камина, когда над головой сияют звёзды. В нашем «Сибирском шале» каждый элемент продуман так, чтобы вдохновлять и радовать. Нет привязыванных гаражей или чердаков, что позволяет сохранить чистый, свободный ландшафт, а просторный внутренний двор приглашает к прогулкам и активному образу жизни. Выбирая эту квартиру, вы выбираете современный комфорт, тепло и простоту – всё, что нужно для полноценной жизни в сибирских просторах.

Характеристики дома

Архитектурный стиль
Автоматизированное регулирование параметров теплоносителя
Нет
Балконы/лоджии
Отсутствуют
Чердачное помещение
Нет
Датчики протечки воды
Нет
Эксплуатируемая или зеленая кровля
Нет
Электроснабжение
Центральное
Газоснабжение
Индивидуальное
Изоляция воздушного шума
Нет
Камин
Нет
Класс энергоэффективности
-
Класс энергосбережения
-
Количество надземных этажей
1
Круглогодичное проживание
Да
Материал кровли
Металлочерепица
Материал перекрытий
Иной вид материалов перекрытий
Материал внешних стен
Материал внутренних перегородок
Гипсокартонные
Модульное строительство с конструкциями заводского изготовления
Нет
Объем надземной части
-
Основной материал фасадов
Сайдинг
Отопление
Индивидуальное
Площадь дома
85 м2
Площадь застройки
97 м2
Подвальное помещение
Нет
Показатель компактности здания
-
Приборы учета тепловой энергии
Нет
Пристроенный гараж/крытая автостоянка
Нет
Противопожарная система
Нет
Санузлы
1
Совмещенная кухня-гостиная
Да
Спальни
2
Терраса
Да
Тип фундамента
Свайно-винтовой
Тип кровли
Толщина внешних стен
299 мм
Толщина внутренних перегородок
222 мм
Улучшенные шумовые характеристики
Нет
Вентиляция
Система кондиционирования
Веранда
Нет
Водоотведение
Центральное
Водоснабжение
Индивидуальное
Высота дома
5 м
Высота потолков
2.58 м

Планировка

Фасад дома

Александр

Закажите выезд инженера

Александр

Выездной инженер
Закажите выезд инженера для точной диагностики и профессиональной консультации по инженерным системам. Специалист приедет в удобное время, проведёт осмотр, рассчитает стоимость работ и подберёт оптимальные решения для вашего дома.


    Похожие проекты

    Ипотека и
    рассрочка
    Дом с мансардой ДБ-831
    Стоимость от:
    7 718 280
    Проект от: 52 650
    Этажей 2
    Санузлы 1
    Спальни 3
    Смотреть
    Ипотека и
    рассрочка
    Загородный дом СД-125
    Стоимость от:
    7 638 125
    Проект от: 56 250
    Этажей 1
    Санузлы 1
    Спальни 4
    Смотреть
    Ипотека и
    рассрочка
    D 244 с террасой
    Стоимость от:
    7 965 320
    Проект от: 47 700
    Этажей 1
    Санузлы 2
    Спальни 4
    Смотреть
    Ипотека и
    рассрочка
    Самара-120
    Стоимость от:
    8 683 200
    Проект от: 54 000
    Этажей 2
    Санузлы 2
    Спальни 3
    Смотреть
    Ипотека и
    рассрочка
    Проект A020
    Стоимость от:
    4 637 760
    Проект от: 28 800
    Этажей 2
    Санузлы 2
    Спальни 2
    Смотреть
    Ипотека и
    рассрочка
    Одноэтажный дом с террасой S-149
    Стоимость от:
    10 522 380
    Проект от: 67 050
    Этажей 1
    Санузлы 2
    Спальни 4
    Смотреть

    Как узнать стоимость дома

    back
    Оставляете заявку
    Вы заполняете форму на сайте или звоните нам. Менеджер Лайвкрафт связывается с вами для уточнения деталей: тип дома, площадь, материалы, участок строительства.
    back
    Консультация и подбор решения
    Наш специалист помогает выбрать оптимальный тип дома и конструкцию с учётом бюджета, сроков и целей — будь то дом для постоянного проживания или дача.
    back
    Расчёт предварительной стоимости
    Инженер делает первичный расчёт стоимости строительства по вашим параметрам: фундамент, коробка, кровля, отделка. Вы получаете смету с разбивкой по этапам.
    back
    Корректировка и утверждение сметы
    При необходимости вносим изменения — например, замену материалов или сокращение этапов. После согласования формируется окончательная фиксированная смета.
    back
    Заключение договора и старт работ
    После утверждения сметы заключаем официальный договор с гарантией. Вы получаете прозрачный график и точную стоимость — без скрытых расходов.

    Заказать конусльтацию по:Сибирский шале

    Фото 1 Сибирский шале


      Наши
      контакты

      Дмитров
      Опорный проезд 28Б
      (индустриальный парк Ниагара)
      9:00 до 18:00

      Корзина