4.9
Рейтинг на основании 120 отзывов
Дмитров
Опорный проезд 28Б
(индустриальный парк Ниагара)
Бренд "Дмитров-Дело" c 2008 года на рынке строительства в Дмитрове
Звоните 9:00 до 18:00 8 (915) 055-33-61
Бренд "Дмитров-Дело" c 2008 года на рынке строительства в Дмитрове

Сидли

Стоимость проекта от:
40 050 ₽
БЕСПЛАТНО! ПРИ ЗАКАЗЕ СТРОИТЕЛЬСТВА
Стоимость строительства от:
6 285 180 ₽
Артикул ART-12972
Дата 25.12.2025
Архитектурный стиль Американский/Канадский
Количество надземных этажей 1
Круглогодичное проживание Да
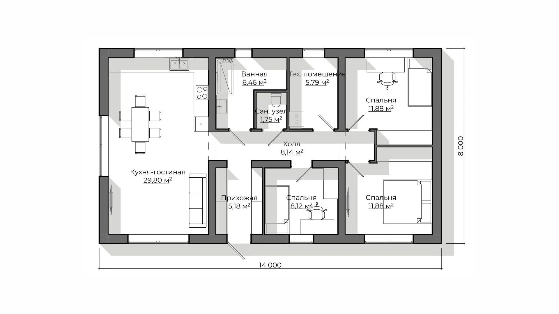
Площадь дома 89 м2
Санузлы 1
Спальни 3

Описание

Сидли – это уютный одноэтажный дом, который воплощает в себе спокойствие и комфорт американского, а также канадского стиля. Он создан для тех, кто ценит простоту и функциональность, но не желает отказываться от элегантного дизайна. Внутреннее пространство открыто, светло и просторно, что делает каждый уголок пригодным для круговорота круглый год. Благодаря газобетонным облицовочным блокам стены дома обеспечивают отличную тепло- и звукоизоляцию, а два скатных крыша добавляет тепла и защищает от непогоды, создавая идеальные условия для семейного уюта. В доме предусмотрена только одна надземная этаже, что облегчает уход и обслуживание, а отсутствие балконов, веранд и приподнятых площадок делает конструкцию более лаконичной и беззаботной. Несмотря на простоту экстерьера, при входе вы сразу чувствуете тёплый, приглушённый свет, подчёркнутый крупной планировкой, где пространство открывает легкость и свободу. Внутри дом разделён на зоны – тихая спальня, светлая гостинная, современная кухня и просторные ванные, что делает его идеальным для семейной жизни и приёма гостей. Сидли — прекрасный выбор для тех, кто мечтает о уюте, простоте и надёжности без лишних изысков. Если вы хотите проживать в доме, где каждый элемент продуман до мелочей, а стиль безупречен и всегда актуален, дайте нам знать — мы с радостью поможем вам сделать первый шаг к реальному, комфортному дому.

Характеристики дома

Архитектурный стиль
Автоматизированное регулирование параметров теплоносителя
Нет
Балконы/лоджии
Отсутствуют
Чердачное помещение
Нет
Датчики протечки воды
Нет
Эксплуатируемая или зеленая кровля
Нет
Электроснабжение
2 варианта
Газоснабжение
Индивидуальное
Изоляция воздушного шума
Нет
Камин
Нет
Класс энергоэффективности
-
Класс энергосбережения
-
Количество надземных этажей
1
Круглогодичное проживание
Да
Материал кровли
Металлочерепица
Материал перекрытий
Деревянные
Материал внешних стен
Материал внутренних перегородок
Блочные
Модульное строительство с конструкциями заводского изготовления
Нет
Объем надземной части
-
Основной материал фасадов
Штукатурка
Отопление
2 варианта
Площадь дома
89 м2
Площадь застройки
112 м2
Подвальное помещение
Нет
Показатель компактности здания
-
Приборы учета тепловой энергии
Нет
Пристроенный гараж/крытая автостоянка
Нет
Противопожарная система
Нет
Санузлы
1
Совмещенная кухня-гостиная
Да
Спальни
3
Терраса
Нет
Тип фундамента
Плитный
Тип кровли
Толщина внешних стен
375 мм
Толщина внутренних перегородок
100 мм
Улучшенные шумовые характеристики
Нет
Вентиляция
2 варианта
Веранда
Нет
Водоотведение
2 варианта
Водоснабжение
2 варианта
Высота дома
5 м
Высота потолков
2.7 м

Планировка

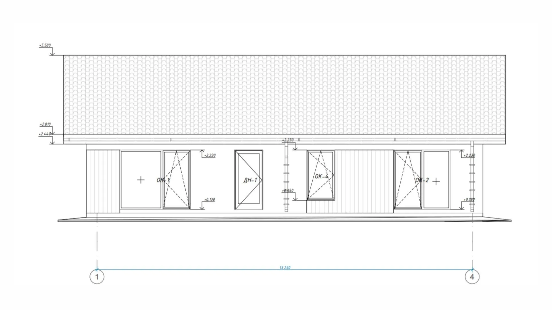
Фасад дома

Александр

Закажите выезд инженера

Александр

Выездной инженер
Закажите выезд инженера для точной диагностики и профессиональной консультации по инженерным системам. Специалист приедет в удобное время, проведёт осмотр, рассчитает стоимость работ и подберёт оптимальные решения для вашего дома.


    Похожие проекты

    Ипотека и
    рассрочка
    Каркасный дом Бергамо 102
    Стоимость от:
    6 474 160
    Проект от: 50 400
    Этажей 1
    Санузлы 1
    Спальни 3
    Смотреть
    Ипотека и
    рассрочка
    Загородный жилой дом №3
    Стоимость от:
    8 940 580
    Проект от: 53 550
    Этажей 1
    Санузлы 3
    Спальни 2
    Смотреть
    Ипотека и
    рассрочка
    Династия
    Стоимость от:
    7 495 800
    Проект от: 56 250
    Этажей 2
    Санузлы 3
    Спальни 4
    Смотреть
    Ипотека и
    рассрочка
    ДомPRO 96-3К-КТ
    Стоимость от:
    7 641 920
    Проект от: 43 200
    Этажей 1
    Санузлы 2
    Спальни 3
    Смотреть
    Ипотека и
    рассрочка
    Одноэтажный кирпичный дом STANDART — 99 m2 (Серый облицовочный кирпич)
    Стоимость от:
    5 815 260
    Проект от: 32 850
    Этажей 1
    Санузлы 2
    Спальни 2
    Смотреть
    Ипотека и
    рассрочка
    Индивидуальный жилой дом СТАН-2в
    Стоимость от:
    7 740 260
    Проект от: 46 350
    Этажей 1
    Санузлы 1
    Спальни 3
    Смотреть

    Как узнать стоимость дома

    back
    Оставляете заявку
    Вы заполняете форму на сайте или звоните нам. Менеджер Лайвкрафт связывается с вами для уточнения деталей: тип дома, площадь, материалы, участок строительства.
    back
    Консультация и подбор решения
    Наш специалист помогает выбрать оптимальный тип дома и конструкцию с учётом бюджета, сроков и целей — будь то дом для постоянного проживания или дача.
    back
    Расчёт предварительной стоимости
    Инженер делает первичный расчёт стоимости строительства по вашим параметрам: фундамент, коробка, кровля, отделка. Вы получаете смету с разбивкой по этапам.
    back
    Корректировка и утверждение сметы
    При необходимости вносим изменения — например, замену материалов или сокращение этапов. После согласования формируется окончательная фиксированная смета.
    back
    Заключение договора и старт работ
    После утверждения сметы заключаем официальный договор с гарантией. Вы получаете прозрачный график и точную стоимость — без скрытых расходов.

    Заказать конусльтацию по:Сидли

    Фото 1 Сидли


      Наши
      контакты

      Дмитров
      Опорный проезд 28Б
      (индустриальный парк Ниагара)
      9:00 до 18:00

      Корзина