4.9
Рейтинг на основании 120 отзывов
Дмитров
Опорный проезд 28Б
(индустриальный парк Ниагара)
Бренд "Дмитров-Дело" c 2008 года на рынке строительства в Дмитрове
Звоните 9:00 до 18:00 8 (915) 055-33-61
Бренд "Дмитров-Дело" c 2008 года на рынке строительства в Дмитрове

Симгоры

Стоимость проекта от:
69 300 ₽
БЕСПЛАТНО! ПРИ ЗАКАЗЕ СТРОИТЕЛЬСТВА
Стоимость строительства от:
9 045 960 ₽
Артикул ART-19995
Дата 26.12.2025
Архитектурный стиль Европейский
Количество надземных этажей 2
Круглогодичное проживание Да
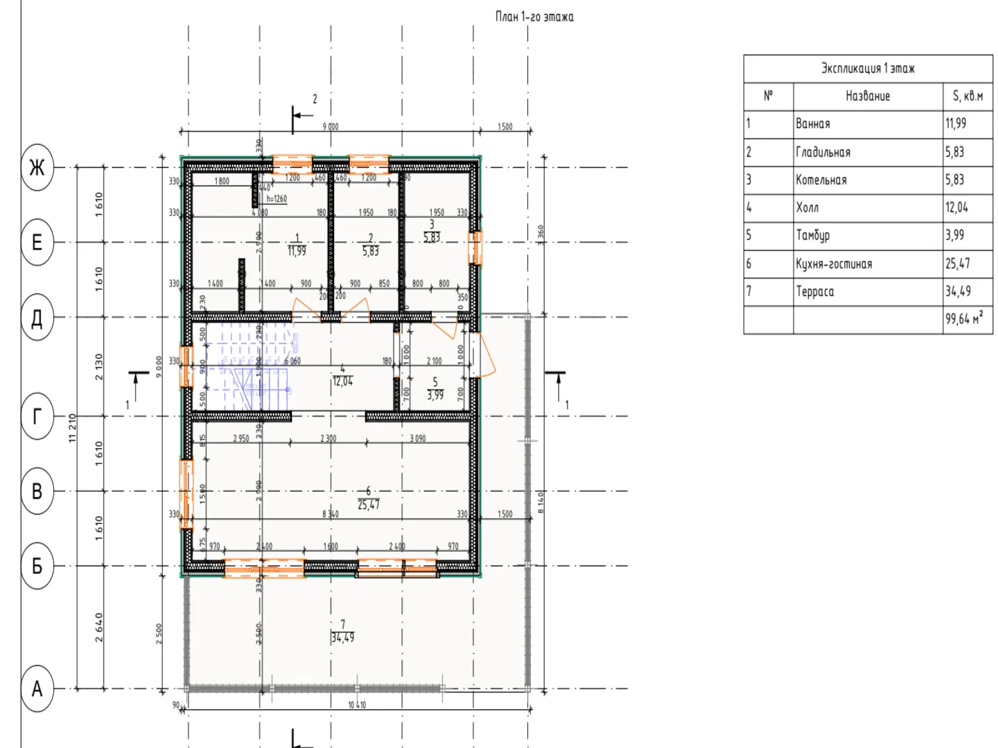
Площадь дома 154 м2
Санузлы 1
Спальни 4

Описание

Ощутите истинный европейский уют, присущий дому “Симгоры”. Двухэтажный деревянный каркасный дом, обрамленный мягкими гнутыми линиями, напоминает живописный коттедж, выросший сквозь века, но при этом полностью адаптированный к современным требованиям быта. Его просторные помещения пропитаны светом: большие окна, простые, но элегантные, открывают вид на живописный сад и позволяют вам наслаждаться каждым часом года. Собственный террасный уголок — это ваша маленькая оазис: здесь можно устроить романтический ужин при свечах, послушать шёпот ветра в листве или просто отдохнуть после долгого дня. Кождывая двускатная крыша не только придаёт дому строго европейский вид, но и служит гарантией тепло- и влагозащитных свойств, что делает «Симгоры» идеальным выбором для круглогодичного проживания. Отсутствие придаточных конструкций, таких как балконы, веранда и прицепленный гараж, подчёркивает чистоту и лаконичность планировки, а отсутствие чердака повышает комфорт и простоту обслуживания. Дом создаёт атмосферу уединённого, но при этом удобного жилища, где каждая деталь пронизана душевным теплом и призывает к непринужденному отдыху. Ваша новая жизнь в “Симгоры” — это сочетание стиля, практичности и гармонии с природой.

Характеристики дома

Архитектурный стиль
Автоматизированное регулирование параметров теплоносителя
Да
Балконы/лоджии
Отсутствуют
Чердачное помещение
Нет
Датчики протечки воды
Да
Эксплуатируемая или зеленая кровля
Нет
Электроснабжение
Индивидуальное
Газоснабжение
Индивидуальное
Изоляция воздушного шума
Нет
Камин
Нет
Класс энергоэффективности
-
Класс энергосбережения
-
Количество надземных этажей
2
Круглогодичное проживание
Да
Материал кровли
Битумная черепица
Материал перекрытий
Деревянные
Материал внешних стен
Материал внутренних перегородок
Деревянные
Модульное строительство с конструкциями заводского изготовления
Нет
Объем надземной части
-
Основной материал фасадов
Дерево
Отопление
Индивидуальное
Площадь дома
154 м2
Площадь застройки
158 м2
Подвальное помещение
Нет
Показатель компактности здания
-
Приборы учета тепловой энергии
Да
Пристроенный гараж/крытая автостоянка
Нет
Противопожарная система
Да
Санузлы
1
Совмещенная кухня-гостиная
Да
Спальни
4
Терраса
Да
Тип фундамента
Свайный
Тип кровли
Толщина внешних стен
150 мм
Толщина внутренних перегородок
100 мм
Улучшенные шумовые характеристики
Нет
Вентиляция
Естественная
Веранда
Нет
Водоотведение
Локальные очистные сооружения
Водоснабжение
Индивидуальное
Высота дома
7.68 м
Высота потолков
2.66 м

Планировка

Фасад дома

Александр

Закажите выезд инженера

Александр

Выездной инженер
Закажите выезд инженера для точной диагностики и профессиональной консультации по инженерным системам. Специалист приедет в удобное время, проведёт осмотр, рассчитает стоимость работ и подберёт оптимальные решения для вашего дома.


    Похожие проекты

    Ипотека и
    рассрочка
    Трехэтажный дом с эксплуатируемой плоской кровлей УП
    Стоимость от:
    10 463 700
    Проект от: 65 250
    Этажей 3
    Санузлы 3
    Спальни 5
    Смотреть
    Ипотека и
    рассрочка
    Дом «Шонди»
    Стоимость от:
    5 759 380
    Проект от: 42 300
    Этажей 1
    Санузлы 1
    Спальни 3
    Смотреть
    Ипотека и
    рассрочка
    МК-01-2024 одноэтажный дом площадь 75 кв.м.
    Стоимость от:
    5 639 700
    Проект от: 33 750
    Этажей 1
    Санузлы 1
    Спальни 2
    Смотреть
    Ипотека и
    рассрочка
    Лерос 2
    Стоимость от:
    9 690 780
    Проект от: 58 050
    Этажей 1
    Санузлы 2
    Спальни 3
    Смотреть
    Ипотека и
    рассрочка
    Рино
    Стоимость от:
    13 328 700
    Проект от: 94 500
    Этажей 1
    Санузлы 2
    Спальни 3
    Смотреть
    Ипотека и
    рассрочка
    БКД-39
    Стоимость от:
    4 811 510
    Проект от: 37 350
    Этажей 1
    Санузлы 1
    Спальни 2
    Смотреть

    Как узнать стоимость дома

    back
    Оставляете заявку
    Вы заполняете форму на сайте или звоните нам. Менеджер Лайвкрафт связывается с вами для уточнения деталей: тип дома, площадь, материалы, участок строительства.
    back
    Консультация и подбор решения
    Наш специалист помогает выбрать оптимальный тип дома и конструкцию с учётом бюджета, сроков и целей — будь то дом для постоянного проживания или дача.
    back
    Расчёт предварительной стоимости
    Инженер делает первичный расчёт стоимости строительства по вашим параметрам: фундамент, коробка, кровля, отделка. Вы получаете смету с разбивкой по этапам.
    back
    Корректировка и утверждение сметы
    При необходимости вносим изменения — например, замену материалов или сокращение этапов. После согласования формируется окончательная фиксированная смета.
    back
    Заключение договора и старт работ
    После утверждения сметы заключаем официальный договор с гарантией. Вы получаете прозрачный график и точную стоимость — без скрытых расходов.

    Заказать конусльтацию по:Симгоры

    Фото 1 Симгоры


      Наши
      контакты

      Дмитров
      Опорный проезд 28Б
      (индустриальный парк Ниагара)
      9:00 до 18:00

      Корзина