4.9
Рейтинг на основании 120 отзывов
Дмитров
Опорный проезд 28Б
(индустриальный парк Ниагара)
Бренд "Дмитров-Дело" c 2008 года на рынке строительства в Дмитрове
Звоните 9:00 до 18:00 8 (915) 055-33-61
Бренд "Дмитров-Дело" c 2008 года на рынке строительства в Дмитрове

Синегорск

Стоимость проекта от:
43 200 ₽
БЕСПЛАТНО! ПРИ ЗАКАЗЕ СТРОИТЕЛЬСТВА
Стоимость строительства от:
6 321 600 ₽
Артикул ART-17920
Дата 26.12.2025
Архитектурный стиль Русский
Количество надземных этажей 2
Круглогодичное проживание Да
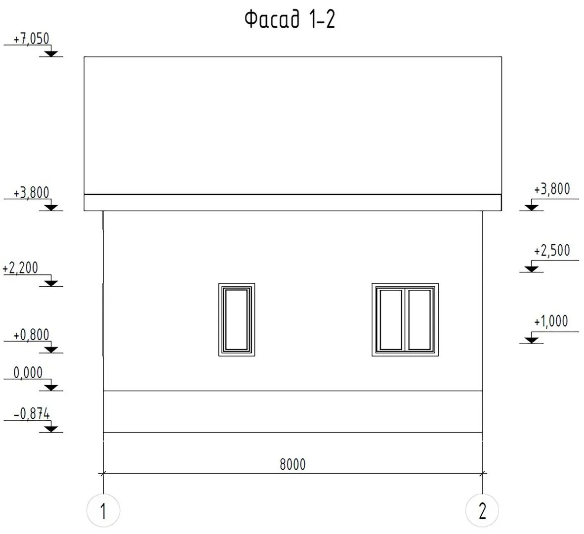
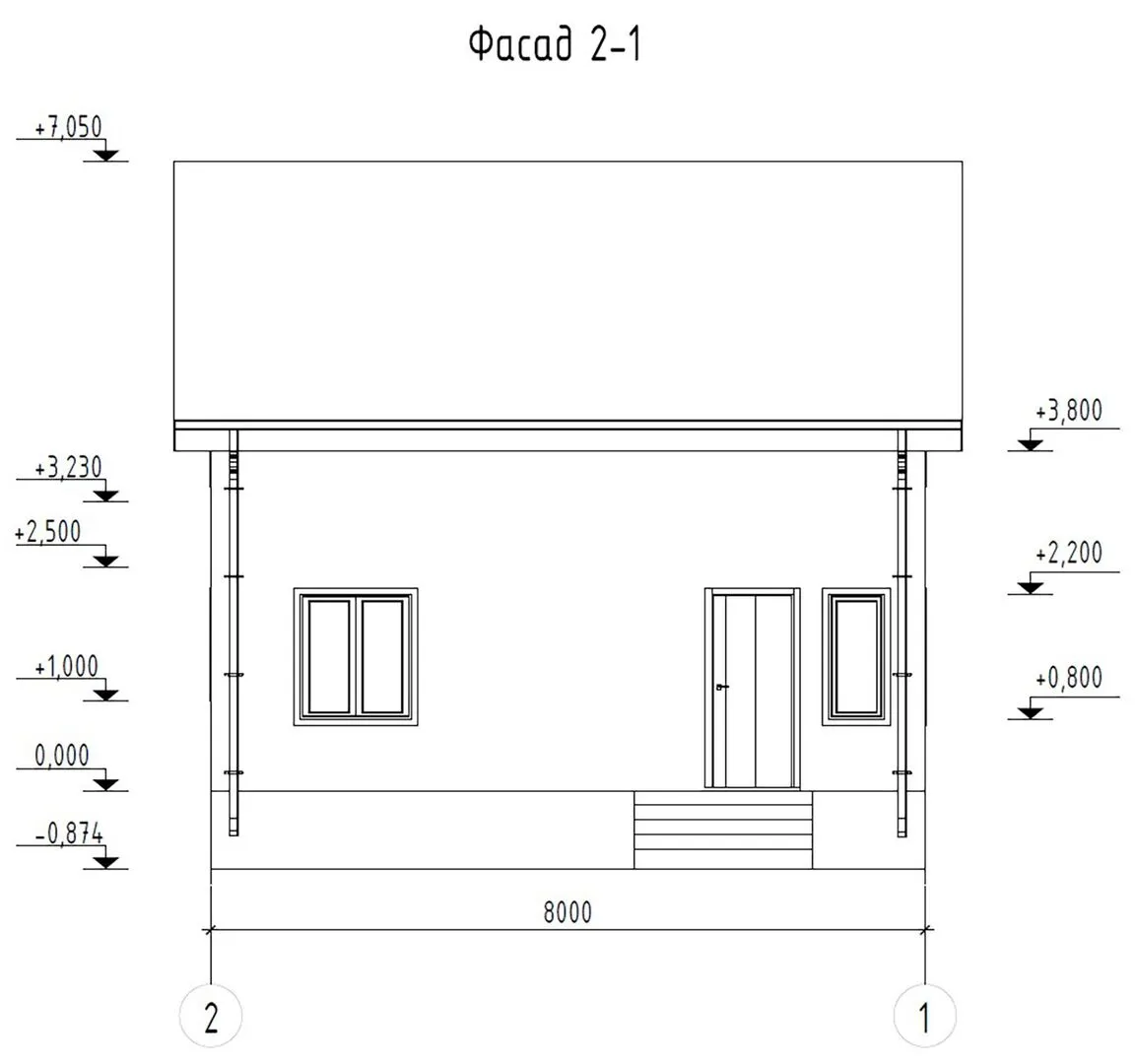
Площадь дома 96 м2
Санузлы 1
Спальни 3

Описание

Синегорск приветствует своих гостей своей уникальной смесью традиций и современности. Этот прекрасный двухэтажный дом, выполненный в классическом русском стиле, гармонично вписывается в обстановку родного края, сохраняя при этом все преимущества новой технологии строительства. Стены из SIP‑панелей гарантируют теплоизоляцию, экономичность и долговечность, а двускатная крыша придает особую элегантность и защищает от любых погодных условий, обеспечивая круглогодичное комфортное проживание. В доме царят простота и уют: просторные комнаты, светлый двор и минимум лишних конструкций создают ощущение открытости и свободы. Здесь нет балконов, веранд и гаражей, что освобождает пространство от лишних деталей и позволяет сосредоточиться на внутреннем тепле и спокойствии. Прекрасный архитектурный план открывает возможность легко адаптировать интерьер под индивидуальные потребности семьи, а современные инженерные системы делают его идеальным выбором для тех, кто ценит надежность и качество жизни на природе. Если вы мечтаете о доме, где традиционный дух России сочетается с комфортом 21 века, этот вариант в Синегорске станет вашим идеальным убежищем.

Характеристики дома

Архитектурный стиль
Автоматизированное регулирование параметров теплоносителя
Нет
Балконы/лоджии
Отсутствуют
Чердачное помещение
Нет
Датчики протечки воды
Нет
Эксплуатируемая или зеленая кровля
Нет
Электроснабжение
Не предусмотрено
Газоснабжение
Не предусмотрено
Изоляция воздушного шума
Нет
Камин
Нет
Класс энергоэффективности
-
Класс энергосбережения
-
Количество надземных этажей
2
Круглогодичное проживание
Да
Материал кровли
Металлочерепица
Материал перекрытий
Деревянные
Материал внешних стен
Материал внутренних перегородок
Деревянные
Модульное строительство с конструкциями заводского изготовления
Нет
Объем надземной части
312 м3
Основной материал фасадов
Дерево
Отопление
Не предусмотрено
Площадь дома
96 м2
Площадь застройки
48 м2
Подвальное помещение
Нет
Показатель компактности здания
-
Приборы учета тепловой энергии
Нет
Пристроенный гараж/крытая автостоянка
Нет
Противопожарная система
Нет
Санузлы
1
Совмещенная кухня-гостиная
Да
Спальни
3
Терраса
Нет
Тип фундамента
Свайно-винтовой
Тип кровли
Толщина внешних стен
174 мм
Толщина внутренних перегородок
124 мм
Улучшенные шумовые характеристики
Нет
Вентиляция
Естественная
Веранда
Нет
Водоотведение
Не предусмотрено
Водоснабжение
Не предусмотрено
Высота дома
6.5 м
Высота потолков
2.5 м

Планировка

Фасад дома

Александр

Закажите выезд инженера

Александр

Выездной инженер
Закажите выезд инженера для точной диагностики и профессиональной консультации по инженерным системам. Специалист приедет в удобное время, проведёт осмотр, рассчитает стоимость работ и подберёт оптимальные решения для вашего дома.


    Похожие проекты

    Ипотека и
    рассрочка
    ПС-164
    Стоимость от:
    11 861 760
    Проект от: 73 800
    Этажей 2
    Санузлы 2
    Спальни 4
    Смотреть
    Ипотека и
    рассрочка
    Тайрон 92
    Стоимость от:
    5 318 060
    Проект от: 41 400
    Этажей 1
    Санузлы 2
    Спальни 3
    Смотреть
    Ипотека и
    рассрочка
    Каркасный дом «Болдино»
    Стоимость от:
    8 151 840
    Проект от: 61 200
    Этажей 2
    Санузлы 2
    Спальни 4
    Смотреть
    Ипотека и
    рассрочка
    ПС-0402
    Стоимость от:
    7 898 160
    Проект от: 49 050
    Этажей 2
    Санузлы 2
    Спальни 3
    Смотреть
    Ипотека и
    рассрочка
    Проект одноэтажного дома «Валерий Андреевич»
    Стоимость от:
    9 786 260
    Проект от: 55 350
    Этажей 1
    Санузлы 2
    Спальни 3
    Смотреть
    Ипотека и
    рассрочка
    Проект мансардного дом №7
    Стоимость от:
    10 020 960
    Проект от: 60 300
    Этажей 2
    Санузлы 2
    Спальни 4
    Смотреть

    Как узнать стоимость дома

    back
    Оставляете заявку
    Вы заполняете форму на сайте или звоните нам. Менеджер Лайвкрафт связывается с вами для уточнения деталей: тип дома, площадь, материалы, участок строительства.
    back
    Консультация и подбор решения
    Наш специалист помогает выбрать оптимальный тип дома и конструкцию с учётом бюджета, сроков и целей — будь то дом для постоянного проживания или дача.
    back
    Расчёт предварительной стоимости
    Инженер делает первичный расчёт стоимости строительства по вашим параметрам: фундамент, коробка, кровля, отделка. Вы получаете смету с разбивкой по этапам.
    back
    Корректировка и утверждение сметы
    При необходимости вносим изменения — например, замену материалов или сокращение этапов. После согласования формируется окончательная фиксированная смета.
    back
    Заключение договора и старт работ
    После утверждения сметы заключаем официальный договор с гарантией. Вы получаете прозрачный график и точную стоимость — без скрытых расходов.

    Заказать конусльтацию по:Синегорск

    Фото 1 Синегорск


      Наши
      контакты

      Дмитров
      Опорный проезд 28Б
      (индустриальный парк Ниагара)
      9:00 до 18:00

      Корзина