4.9
Рейтинг на основании 120 отзывов
Дмитров
Опорный проезд 28Б
(индустриальный парк Ниагара)
Бренд "Дмитров-Дело" c 2008 года на рынке строительства в Дмитрове
Звоните 9:00 до 18:00 8 (915) 055-33-61
Бренд "Дмитров-Дело" c 2008 года на рынке строительства в Дмитрове

Одноэтажный Барнхаус №1

Стоимость проекта от:
50 400 ₽
БЕСПЛАТНО! ПРИ ЗАКАЗЕ СТРОИТЕЛЬСТВА
Стоимость строительства от:
8 050 240 ₽
Артикул ART-13874
Дата 25.12.2025
Архитектурный стиль Барнхаус
Количество надземных этажей 1
Круглогодичное проживание Да
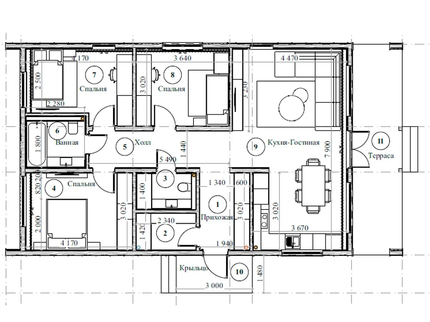
Площадь дома 112 м2
Санузлы 2
Спальни 3

Описание

Небольшой, но уютный одноэтажный барнхаус №1 приглашает в свои теплые объятия даже самые загруженные дни. Деревянный каркас, обрамляющий просторный главный зал, создает ощущение открытости и природной гармонии, а типичная двускатная крыша подчёркивает классический барнхаусный стиль, привнося в интерьер ноту спокойствия и уюта. Круглогодичное проживание подтверждает, что здесь всегда тепло и светло – идеальный вариант как для семейного уединения, так и для творческого пространства. Внутри вас встретит простор, где просторный чердак трансформируется в кладовую или же функциональное рабочее пространство; терраса на задней стороне дома становится местом для вечернего кофе или летних барбекю. Большие окна, проталкивающие к естественному свету, создают атмосферу лёгкости, а отсутствие балконов и веранд делает дом более защищённым от ветра, сохраняя тепло и уют. При желании, гараж можно было бы добавить позже, а рядом возможно разместить сад, который дополнит деревенский колорит этого прекрасного барнхауса.

Характеристики дома

Архитектурный стиль
Автоматизированное регулирование параметров теплоносителя
Да
Балконы/лоджии
Отсутствуют
Чердачное помещение
Да
Датчики протечки воды
Да
Эксплуатируемая или зеленая кровля
Нет
Электроснабжение
Центральное
Газоснабжение
Не предусмотрено
Изоляция воздушного шума
Да
Камин
Нет
Класс энергоэффективности
A
Класс энергосбережения
A+
Количество надземных этажей
1
Круглогодичное проживание
Да
Материал кровли
Фальцевая кровля Кликфальц
Материал перекрытий
Деревянные
Материал внешних стен
Материал внутренних перегородок
Деревянные
Модульное строительство с конструкциями заводского изготовления
Нет
Объем надземной части
491 м3
Основной материал фасадов
Фальцевая кровля кликфальц
Отопление
Индивидуальное
Площадь дома
112 м2
Площадь застройки
137 м2
Подвальное помещение
Нет
Показатель компактности здания
0.95
Приборы учета тепловой энергии
Нет
Пристроенный гараж/крытая автостоянка
Нет
Противопожарная система
Да
Санузлы
2
Совмещенная кухня-гостиная
Да
Спальни
3
Терраса
Да
Тип фундамента
Ленточный
Тип кровли
Толщина внешних стен
200 мм
Толщина внутренних перегородок
130 мм
Улучшенные шумовые характеристики
Да
Вентиляция
Естественная
Веранда
Нет
Водоотведение
Локальные очистные сооружения
Водоснабжение
Индивидуальное
Высота дома
4.76 м
Высота потолков
2.6 м

Планировка

Фасад дома

Александр

Закажите выезд инженера

Александр

Выездной инженер
Закажите выезд инженера для точной диагностики и профессиональной консультации по инженерным системам. Специалист приедет в удобное время, проведёт осмотр, рассчитает стоимость работ и подберёт оптимальные решения для вашего дома.


    Похожие проекты

    Ипотека и
    рассрочка
    Форест 138
    Стоимость от:
    9 043 320
    Проект от: 70 200
    Этажей 1
    Санузлы 2
    Спальни 4
    Смотреть
    Ипотека и
    рассрочка
    С-290 ГБ Ромиро
    Стоимость от:
    11 314 080
    Проект от: 72 900
    Этажей 2
    Санузлы 3
    Спальни 4
    Смотреть
    Ипотека и
    рассрочка
    Лагуна Парк
    Стоимость от:
    17 583 940
    Проект от: 115 650
    Этажей 1
    Санузлы 3
    Спальни 3
    Смотреть
    Ипотека и
    рассрочка
    Нам ОБ-1
    Стоимость от:
    9 125 280
    Проект от: 54 900
    Этажей 2
    Санузлы 2
    Спальни 5
    Смотреть
    Ипотека и
    рассрочка
    M88
    Стоимость от:
    5 064 400
    Проект от: 36 000
    Этажей 1
    Санузлы 2
    Спальни 2
    Смотреть
    Ипотека и
    рассрочка
    КД «Рязань»
    Стоимость от:
    4 378 920
    Проект от: 32 850
    Этажей 2
    Санузлы 1
    Спальни 4
    Смотреть

    Как узнать стоимость дома

    back
    Оставляете заявку
    Вы заполняете форму на сайте или звоните нам. Менеджер Лайвкрафт связывается с вами для уточнения деталей: тип дома, площадь, материалы, участок строительства.
    back
    Консультация и подбор решения
    Наш специалист помогает выбрать оптимальный тип дома и конструкцию с учётом бюджета, сроков и целей — будь то дом для постоянного проживания или дача.
    back
    Расчёт предварительной стоимости
    Инженер делает первичный расчёт стоимости строительства по вашим параметрам: фундамент, коробка, кровля, отделка. Вы получаете смету с разбивкой по этапам.
    back
    Корректировка и утверждение сметы
    При необходимости вносим изменения — например, замену материалов или сокращение этапов. После согласования формируется окончательная фиксированная смета.
    back
    Заключение договора и старт работ
    После утверждения сметы заключаем официальный договор с гарантией. Вы получаете прозрачный график и точную стоимость — без скрытых расходов.

    Заказать конусльтацию по:Одноэтажный Барнхаус №1

    Фото 1 Одноэтажный Барнхаус №1


      Наши
      контакты

      Дмитров
      Опорный проезд 28Б
      (индустриальный парк Ниагара)
      9:00 до 18:00

      Корзина