4.9
Рейтинг на основании 120 отзывов
Дмитров
Опорный проезд 28Б
(индустриальный парк Ниагара)
Бренд "Дмитров-Дело" c 2008 года на рынке строительства в Дмитрове
Звоните 9:00 до 18:00 8 (915) 055-33-61
Бренд "Дмитров-Дело" c 2008 года на рынке строительства в Дмитрове

Загородный дом «Комфорт-1»

Стоимость проекта от:
35 550 ₽
БЕСПЛАТНО! ПРИ ЗАКАЗЕ СТРОИТЕЛЬСТВА
Стоимость строительства от:
5 939 780 ₽
Артикул ART-20211
Дата 26.12.2025
Архитектурный стиль Минимализм
Количество надземных этажей 1
Круглогодичное проживание Да
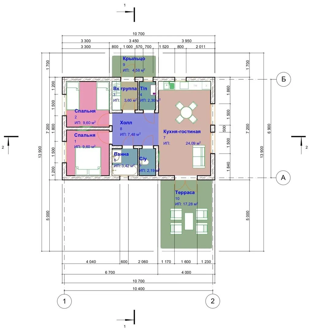
Площадь дома 79 м2
Санузлы 1
Спальни 2

Описание

Дома «Комфорт‑1» — это воплощение элегантного минимализма, который приглушает шум города и открывает дверь в мир спокойствия и уюта. С одной открытой площадью, покрытой простым двускатным крышею, этот дом предлагает идеальный баланс между простотой и функциональностью: ровный этаж, свободные пространства и ровное планирование, позволяющее легко настроить интерьер под любые вкусы. Газобетонные блоки обеспечивают отличную звуко- и теплоизоляцию, гарантируя, что даже в самые холодные и влажные периоды года ваш дом будет ощущаться как крепость тепла, а не как офис без душевного уюта. Маленькая, но яркая терраса служит продолжением вашего жилого пространства, куда можно выйти на свежий воздух и насладиться закатом или подниматься в утренний свет, пока вы не разбудите свой внутренний мир. Отсутствие балконов и веренды, а также приём без лишних пристройков, подчёркивает чистую линию и делает дом особенным: меньше забот о техническом обслуживании и больше времени для того, чтобы провести его с пользой. Внутри царит простота: открытые зоны, которые можно превратить в студию, гостиный зал или домашний офис, а также просторный кухня-столовая, где можно готовить и наслаждаться едой. С «Комфорт‑1» вы не просто покупаете квадратные метры. Вы инвестируете в спокойствие, простоту и безмятежность, которые так необходимы в нашем быстром ритме жизни. Это дом, где каждая деталь продумана, чтобы вы чувствовали себя как дома — без лишних сложностей и без лишних забот. Откройте дверь к новой главе вашей жизни, где минимализм и комфорт идут рука об руку.

Характеристики дома

Архитектурный стиль
Автоматизированное регулирование параметров теплоносителя
Нет
Балконы/лоджии
Отсутствуют
Чердачное помещение
Нет
Датчики протечки воды
Нет
Эксплуатируемая или зеленая кровля
Нет
Электроснабжение
Не предусмотрено
Газоснабжение
Не предусмотрено
Изоляция воздушного шума
Нет
Камин
Нет
Класс энергоэффективности
-
Класс энергосбережения
-
Количество надземных этажей
1
Круглогодичное проживание
Да
Материал кровли
Металлочерепица
Материал перекрытий
Деревянные
Материал внешних стен
Материал внутренних перегородок
Блочные
Модульное строительство с конструкциями заводского изготовления
Нет
Объем надземной части
186 м3
Основной материал фасадов
Штукатурка
Отопление
Не предусмотрено
Площадь дома
79 м2
Площадь застройки
84 м2
Подвальное помещение
Нет
Показатель компактности здания
-
Приборы учета тепловой энергии
Нет
Пристроенный гараж/крытая автостоянка
Нет
Противопожарная система
Нет
Санузлы
1
Совмещенная кухня-гостиная
Да
Спальни
2
Терраса
Да
Тип фундамента
Свайно-ростверковый
Тип кровли
Толщина внешних стен
300 мм
Толщина внутренних перегородок
200 мм
Улучшенные шумовые характеристики
Нет
Вентиляция
Естественная
Веранда
Нет
Водоотведение
Не предусмотрено
Водоснабжение
Не предусмотрено
Высота дома
5.8 м
Высота потолков
3 м

Планировка

Фасад дома

Александр

Закажите выезд инженера

Александр

Выездной инженер
Закажите выезд инженера для точной диагностики и профессиональной консультации по инженерным системам. Специалист приедет в удобное время, проведёт осмотр, рассчитает стоимость работ и подберёт оптимальные решения для вашего дома.


    Похожие проекты

    Ипотека и
    рассрочка
    Индивидуальный жилой дом площадью 99 м2
    Стоимость от:
    7 880 180
    Проект от: 44 550
    Этажей 1
    Санузлы 1
    Спальни 3
    Смотреть
    Ипотека и
    рассрочка
    Плужково
    Стоимость от:
    8 574 720
    Проект от: 64 350
    Этажей 2
    Санузлы 2
    Спальни 4
    Смотреть
    Ипотека и
    рассрочка
    Одноэтажный дом ЭВРИКА
    Стоимость от:
    4 506 370
    Проект от: 31 950
    Этажей 1
    Санузлы 1
    Спальни 2
    Смотреть
    Ипотека и
    рассрочка
    Двухэтажный дом Norway 150
    Стоимость от:
    11 394 240
    Проект от: 74 700
    Этажей 2
    Санузлы 2
    Спальни 3
    Смотреть
    Ипотека и
    рассрочка
    Бунгало
    Стоимость от:
    4 628 910
    Проект от: 37 350
    Этажей 1
    Санузлы 1
    Спальни 2
    Смотреть
    Ипотека и
    рассрочка
    Загородный дом с мансардой
    Стоимость от:
    10 128 000
    Проект от: 63 000
    Этажей 2
    Санузлы 1
    Спальни 2
    Смотреть

    Как узнать стоимость дома

    back
    Оставляете заявку
    Вы заполняете форму на сайте или звоните нам. Менеджер Лайвкрафт связывается с вами для уточнения деталей: тип дома, площадь, материалы, участок строительства.
    back
    Консультация и подбор решения
    Наш специалист помогает выбрать оптимальный тип дома и конструкцию с учётом бюджета, сроков и целей — будь то дом для постоянного проживания или дача.
    back
    Расчёт предварительной стоимости
    Инженер делает первичный расчёт стоимости строительства по вашим параметрам: фундамент, коробка, кровля, отделка. Вы получаете смету с разбивкой по этапам.
    back
    Корректировка и утверждение сметы
    При необходимости вносим изменения — например, замену материалов или сокращение этапов. После согласования формируется окончательная фиксированная смета.
    back
    Заключение договора и старт работ
    После утверждения сметы заключаем официальный договор с гарантией. Вы получаете прозрачный график и точную стоимость — без скрытых расходов.

    Заказать конусльтацию по:Загородный дом «Комфорт-1»

    Фото 1 Загородный дом «Комфорт-1»


      Наши
      контакты

      Дмитров
      Опорный проезд 28Б
      (индустриальный парк Ниагара)
      9:00 до 18:00

      Корзина