4.9
Рейтинг на основании 120 отзывов
Дмитров
Опорный проезд 28Б
(индустриальный парк Ниагара)
Бренд "Дмитров-Дело" c 2008 года на рынке строительства в Дмитрове
Звоните 9:00 до 18:00 8 (915) 055-33-61
Бренд "Дмитров-Дело" c 2008 года на рынке строительства в Дмитрове

Сканди Карелия 164 — Одноэтажный дом Сканди Карелия 164 ВМ

Стоимость проекта от:
73 800 ₽
БЕСПЛАТНО! ПРИ ЗАКАЗЕ СТРОИТЕЛЬСТВА
Стоимость строительства от:
10 409 080 ₽
Артикул ART-13550
Дата 25.12.2025
Архитектурный стиль Скандинавский
Количество надземных этажей 1
Круглогодичное проживание Да
Площадь дома 164 м2
Санузлы 1
Спальни 3

Описание

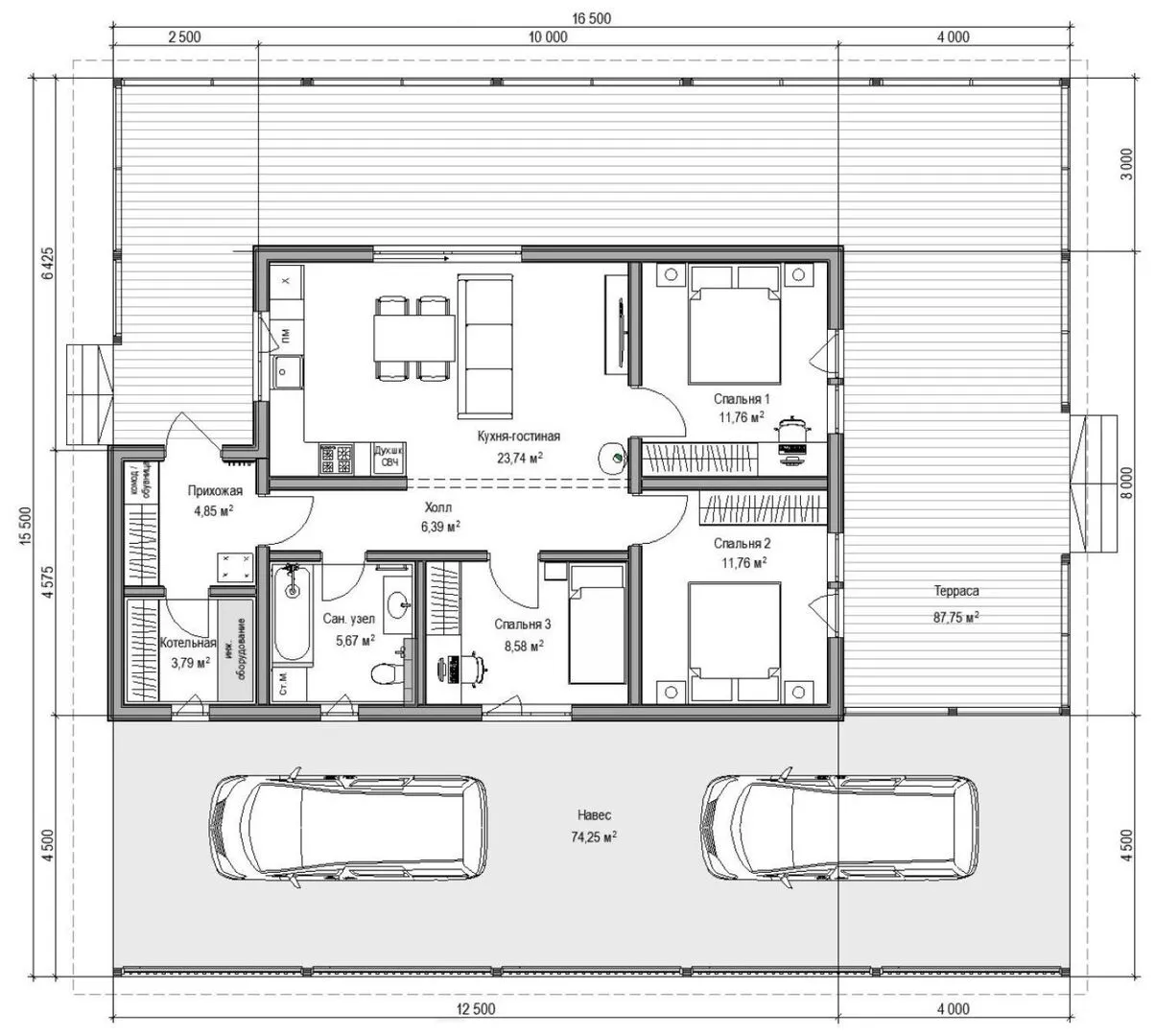
Небольшой, но изысканный, одноэтажный дом «Сканди Карелия 164» – воплощение скандинавского минимализма в сочетании с практичностью и уютом. Его простая, но элегантная композиция, выполненная в каркасно‑панельной технологии, создаёт ощущение лёгкости и прозрачности. Кровля с классическим двускатным профилем подчеркивает строгость линий, а открытые внутренние пространства делают жизнь здесь максимально комфортной, даже в холодные зимние дни. Дом рассчитан на круглогодичное проживание: просторные комнаты, высокие потолки и обилие естественного света дарят ощущение свободы и открытости. Пристроенный гараж обеспечивает безопасность ваших транспортных средств, а крытая автостоянка позволяет бережно хранить машину в любое время года. Чердачное помещение предоставляет дополнительные варианты использования – будь то хранение вещей, отдельная небольшая зона отдыха или даже небольшая мастерская. Летняя терраса, выходящая из главного жилого блока, становится уютным уголком для утреннего кофе или вечерних посиделок под звёздным небом. Благоустроенный двор и тихий внутренний дворок позволяют наслаждаться тихой семейной жизнью, а отсутствие балконов и веранд делает внутреннее пространство максимально функциональным. «Сканди Карелия 164» – это не просто квартира, это стиль жизни, где гармония, простота и тепло сливаются в одном доме.

Характеристики дома

Архитектурный стиль
Автоматизированное регулирование параметров теплоносителя
Нет
Балконы/лоджии
Отсутствуют
Чердачное помещение
Да
Датчики протечки воды
Нет
Эксплуатируемая или зеленая кровля
Нет
Электроснабжение
Не предусмотрено
Газоснабжение
Не предусмотрено
Изоляция воздушного шума
Да
Камин
Да
Класс энергоэффективности
-
Класс энергосбережения
-
Количество надземных этажей
1
Круглогодичное проживание
Да
Материал кровли
Металлочерепица
Материал перекрытий
Деревянные
Материал внешних стен
Материал внутренних перегородок
Деревянные
Модульное строительство с конструкциями заводского изготовления
Нет
Объем надземной части
372 м3
Основной материал фасадов
Дерево
Отопление
Не предусмотрено
Площадь дома
164 м2
Площадь застройки
260 м2
Подвальное помещение
Нет
Показатель компактности здания
-
Приборы учета тепловой энергии
Нет
Пристроенный гараж/крытая автостоянка
Да
Противопожарная система
Нет
Санузлы
1
Совмещенная кухня-гостиная
Да
Спальни
3
Терраса
Да
Тип фундамента
Свайный
Тип кровли
Толщина внешних стен
250 мм
Толщина внутренних перегородок
100 мм
Улучшенные шумовые характеристики
Да
Вентиляция
Естественная
Веранда
Нет
Водоотведение
Не предусмотрено
Водоснабжение
Не предусмотрено
Высота дома
5.3 м
Высота потолков
3 м

Планировка

Фасад дома

Александр

Закажите выезд инженера

Александр

Выездной инженер
Закажите выезд инженера для точной диагностики и профессиональной консультации по инженерным системам. Специалист приедет в удобное время, проведёт осмотр, рассчитает стоимость работ и подберёт оптимальные решения для вашего дома.


    Похожие проекты

    Ипотека и
    рассрочка
    Strong house
    Стоимость от:
    8 674 380
    Проект от: 49 050
    Этажей 1
    Санузлы 2
    Спальни 3
    Смотреть
    Ипотека и
    рассрочка
    Одноэтажный ОД-3
    Стоимость от:
    15 917 440
    Проект от: 95 400
    Этажей 1
    Санузлы 2
    Спальни 4
    Смотреть
    Ипотека и
    рассрочка
    Дом из клееного бруса «Алушта»
    Стоимость от:
    14 827 560
    Проект от: 103 050
    Этажей 2
    Санузлы 2
    Спальни 5
    Смотреть
    Ипотека и
    рассрочка
    Одноэтажный BARN 30
    Стоимость от:
    1 673 100
    Проект от: 13 500
    Этажей 1
    Санузлы 1
    Спальни 1
    Смотреть
    Ипотека и
    рассрочка
    81-12/24С
    Стоимость от:
    8 229 600
    Проект от: 49 500
    Этажей 2
    Санузлы 2
    Спальни 3
    Смотреть
    Ипотека и
    рассрочка
    Шерман 112
    Стоимость от:
    7 663 040
    Проект от: 50 400
    Этажей 1
    Санузлы 1
    Спальни 2
    Смотреть

    Как узнать стоимость дома

    back
    Оставляете заявку
    Вы заполняете форму на сайте или звоните нам. Менеджер Лайвкрафт связывается с вами для уточнения деталей: тип дома, площадь, материалы, участок строительства.
    back
    Консультация и подбор решения
    Наш специалист помогает выбрать оптимальный тип дома и конструкцию с учётом бюджета, сроков и целей — будь то дом для постоянного проживания или дача.
    back
    Расчёт предварительной стоимости
    Инженер делает первичный расчёт стоимости строительства по вашим параметрам: фундамент, коробка, кровля, отделка. Вы получаете смету с разбивкой по этапам.
    back
    Корректировка и утверждение сметы
    При необходимости вносим изменения — например, замену материалов или сокращение этапов. После согласования формируется окончательная фиксированная смета.
    back
    Заключение договора и старт работ
    После утверждения сметы заключаем официальный договор с гарантией. Вы получаете прозрачный график и точную стоимость — без скрытых расходов.

    Заказать конусльтацию по:Сканди Карелия 164 — Одноэтажный дом Сканди Карелия 164 ВМ

    Фото 1 Сканди Карелия 164 — Одноэтажный дом Сканди Карелия 164 ВМ


      Наши
      контакты

      Дмитров
      Опорный проезд 28Б
      (индустриальный парк Ниагара)
      9:00 до 18:00

      Корзина