4.9
Рейтинг на основании 120 отзывов
Дмитров
Опорный проезд 28Б
(индустриальный парк Ниагара)
Бренд "Дмитров-Дело" c 2008 года на рынке строительства в Дмитрове
Звоните 9:00 до 18:00 8 (915) 055-33-61
Бренд "Дмитров-Дело" c 2008 года на рынке строительства в Дмитрове

Скандинавский дом «Ольборг»

Стоимость проекта от:
49 500 ₽
БЕСПЛАТНО! ПРИ ЗАКАЗЕ СТРОИТЕЛЬСТВА
Стоимость строительства от:
6 376 700 ₽
Артикул ART-14632
Дата 25.12.2025
Архитектурный стиль Скандинавский
Количество надземных этажей 1
Круглогодичное проживание Да
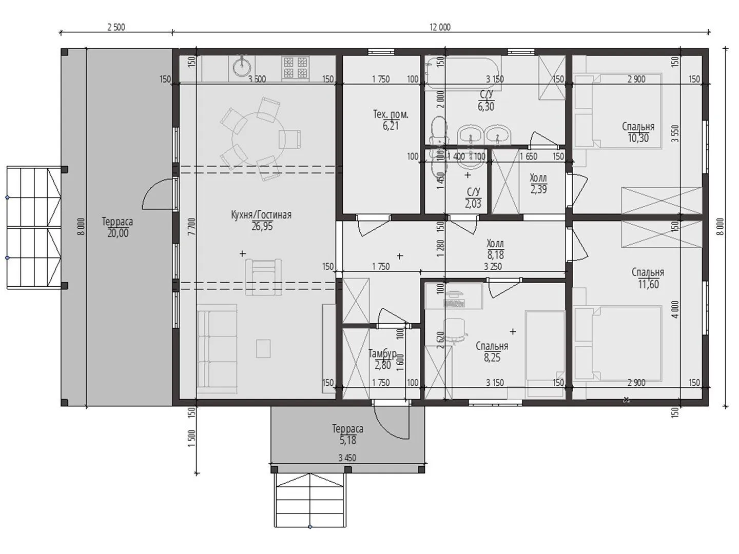
Площадь дома 110 м2
Санузлы 2
Спальни 3

Описание

Скандинавский дом «Ольборг» — это воплощение простоты и уюта, где каждому уголку дано пространство для дыхания. Его современная, но при этом добросердечная архитектура выделяется чистыми линиями и теплотой натурального дерева, обрамляя открытый, светлый план дома. Небольшой, но вместительный одиннадцатий этаж с открытой зоной гостиной и кухни легко адаптируется под любую семейную динамику, а высокие окна наполняют пространство мягким светом, создавая атмосферу спокойствия и гармонии в любое время года. Одной из самых приятных особенностей «Ольборга» является просторная терраса, где вы можете наслаждаться свежим воздухом и закатами, а также чердачное помещение, предоставляющее дополнительное пространство для хранения или уютного уголка творчества. Благодаря двускатной крыше, дом прекрасно пропускает дождь и снег, а безуспешные конструкции, такие как веранда или прицепленный гараж, сделаны так, чтобы не отвлекать от естественной простоты и чистоты дизайна. При этом каждая деталь — от деревянных каркасов до тщательно подогнанных окон — создаёт ощущение, будто вы живёте в сердце спокойного, зимнего и летнего пейзажа. Выбирая «Ольборг», вы выбираете дом, где каждый день начинается и заканчивается ощущением уюта. Его скандинавский дух, присущий каждому элементу, делает его идеальным выбором для тех, кто ищет сочетание современности и традиционных ценностей — гармоничное сочетание, которое становится вторым домом для всей семьи.

Характеристики дома

Архитектурный стиль
Автоматизированное регулирование параметров теплоносителя
Нет
Балконы/лоджии
Отсутствуют
Чердачное помещение
Да
Датчики протечки воды
Нет
Эксплуатируемая или зеленая кровля
Нет
Электроснабжение
Не предусмотрено
Газоснабжение
Не предусмотрено
Изоляция воздушного шума
Нет
Камин
Нет
Класс энергоэффективности
-
Класс энергосбережения
-
Количество надземных этажей
1
Круглогодичное проживание
Да
Материал кровли
Металлочерепица
Материал перекрытий
Деревянные
Материал внешних стен
Материал внутренних перегородок
Деревянные
Модульное строительство с конструкциями заводского изготовления
Нет
Объем надземной части
278 м3
Основной материал фасадов
Дерево
Отопление
Не предусмотрено
Площадь дома
110 м2
Площадь застройки
121 м2
Подвальное помещение
Нет
Показатель компактности здания
-
Приборы учета тепловой энергии
Нет
Пристроенный гараж/крытая автостоянка
Нет
Противопожарная система
Нет
Санузлы
2
Совмещенная кухня-гостиная
Да
Спальни
3
Терраса
Да
Тип фундамента
Свайный
Тип кровли
Толщина внешних стен
203 мм
Толщина внутренних перегородок
125 мм
Улучшенные шумовые характеристики
Нет
Вентиляция
Естественная
Веранда
Нет
Водоотведение
Не предусмотрено
Водоснабжение
Не предусмотрено
Высота дома
4.4 м
Высота потолков
2.5 м

Планировка

Фасад дома

Александр

Закажите выезд инженера

Александр

Выездной инженер
Закажите выезд инженера для точной диагностики и профессиональной консультации по инженерным системам. Специалист приедет в удобное время, проведёт осмотр, рассчитает стоимость работ и подберёт оптимальные решения для вашего дома.


    Похожие проекты

    Ипотека и
    рассрочка
    Каркасный одноэтажный дом КС 74
    Стоимость от:
    4 238 520
    Проект от: 34 200
    Этажей 1
    Санузлы 1
    Спальни 2
    Смотреть
    Ипотека и
    рассрочка
    Двухэтажный дом заводского изготовления Адель
    Стоимость от:
    13 528 080
    Проект от: 88 650
    Этажей 2
    Санузлы 3
    Спальни 5
    Смотреть
    Ипотека и
    рассрочка
    Одноэтажный ОД-2
    Стоимость от:
    13 816 880
    Проект от: 82 800
    Этажей 1
    Санузлы 2
    Спальни 3
    Смотреть
    Ипотека и
    рассрочка
    Сканди 2
    Стоимость от:
    4 517 370
    Проект от: 36 450
    Этажей 1
    Санузлы 1
    Спальни 2
    Смотреть
    Ипотека и
    рассрочка
    Дом ИЖС 98 КР
    Стоимость от:
    8 262 540
    Проект от: 52 650
    Этажей 1
    Санузлы 1
    Спальни 3
    Смотреть
    Ипотека и
    рассрочка
    Дом с мансардным этажом «Акбет»
    Стоимость от:
    7 340 400
    Проект от: 47 250
    Этажей 2
    Санузлы 2
    Спальни 4
    Смотреть

    Как узнать стоимость дома

    back
    Оставляете заявку
    Вы заполняете форму на сайте или звоните нам. Менеджер Лайвкрафт связывается с вами для уточнения деталей: тип дома, площадь, материалы, участок строительства.
    back
    Консультация и подбор решения
    Наш специалист помогает выбрать оптимальный тип дома и конструкцию с учётом бюджета, сроков и целей — будь то дом для постоянного проживания или дача.
    back
    Расчёт предварительной стоимости
    Инженер делает первичный расчёт стоимости строительства по вашим параметрам: фундамент, коробка, кровля, отделка. Вы получаете смету с разбивкой по этапам.
    back
    Корректировка и утверждение сметы
    При необходимости вносим изменения — например, замену материалов или сокращение этапов. После согласования формируется окончательная фиксированная смета.
    back
    Заключение договора и старт работ
    После утверждения сметы заключаем официальный договор с гарантией. Вы получаете прозрачный график и точную стоимость — без скрытых расходов.

    Заказать конусльтацию по:Скандинавский дом «Ольборг»

    Фото 1 Скандинавский дом «Ольборг»


      Наши
      контакты

      Дмитров
      Опорный проезд 28Б
      (индустриальный парк Ниагара)
      9:00 до 18:00

      Корзина