4.9
Рейтинг на основании 120 отзывов
Дмитров
Опорный проезд 28Б
(индустриальный парк Ниагара)
Бренд "Дмитров-Дело" c 2008 года на рынке строительства в Дмитрове
Звоните 9:00 до 18:00 8 (915) 055-33-61
Бренд "Дмитров-Дело" c 2008 года на рынке строительства в Дмитрове

Сказка 160

Стоимость проекта от:
68 850 ₽
БЕСПЛАТНО! ПРИ ЗАКАЗЕ СТРОИТЕЛЬСТВА
Стоимость строительства от:
10 891 920 ₽
Артикул ART-11086
Дата 25.12.2025
Архитектурный стиль Европейский
Количество надземных этажей 2
Круглогодичное проживание Да
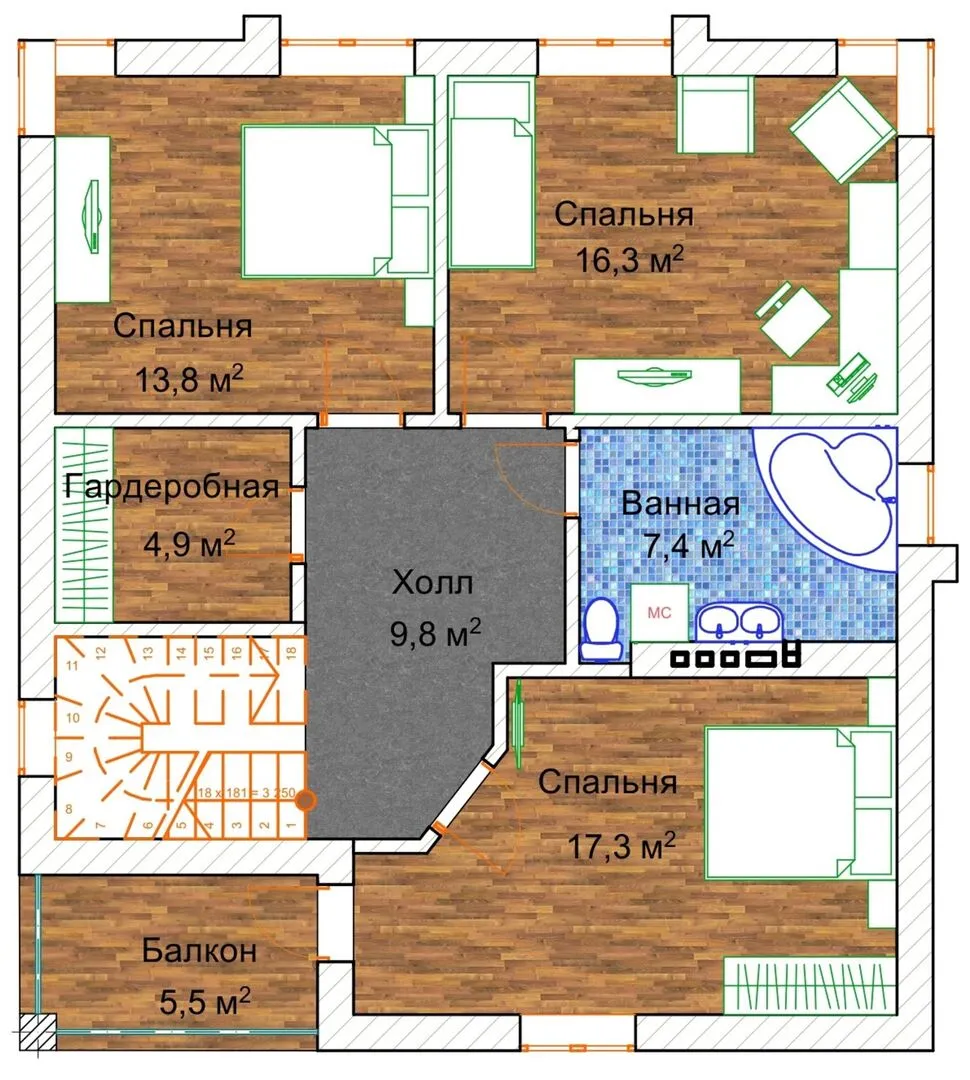
Площадь дома 153 м2
Санузлы 2
Спальни 4

Описание

Сказочная атмосфера «Сказки 160» перенесёт вас в реальный дом, где каждая деталь продумана до мелочей. Европейский стиль архитектуры, со свящённым уважением к классике и изящным линиям, создаёт ощущение живого произведения искусства, а вальмовая крыша придаёт дому элегантный и утончённый облик. Этот двухуровневый объект идеально подходит для круглогодичного проживания. Потрясающая терраса приглашает к утренним кофейным размышлениям, а уютный балкон станет вашим личным оазисом, где можно насладиться вечерним ветерком. Стены из газобетонных блоков обеспечивают тепло в любой сезон, а плотные фасады гарантируют тишину и спокойствие, а беззеркальная крыша защищает от непогоды, словно надёжный кобылёнок сказочного крыльев. Если вы ищете надёжное, приятное и эстетичное место, где ваш дом будет ощущаться как второе дыхание под небесным сводом, «Сказка 160» ждёт именно вас. Не упустите шанс стать владельцем этого неповторимого уголка, где гармония стилей и практичность сочетаются в идеальном единстве.

Характеристики дома

Архитектурный стиль
Автоматизированное регулирование параметров теплоносителя
-
Балконы/лоджии
1
Чердачное помещение
Нет
Датчики протечки воды
-
Эксплуатируемая или зеленая кровля
-
Электроснабжение
Центральное
Газоснабжение
Центральное
Изоляция воздушного шума
-
Камин
Нет
Класс энергоэффективности
-
Класс энергосбережения
-
Количество надземных этажей
2
Круглогодичное проживание
Да
Материал кровли
Битумная черепица
Материал перекрытий
Сборные железобетонные
Материал внешних стен
Материал внутренних перегородок
Блочные
Модульное строительство с конструкциями заводского изготовления
Нет
Объем надземной части
897 м3
Основной материал фасадов
Дерево
Отопление
Индивидуальное
Площадь дома
153 м2
Площадь застройки
99 м2
Подвальное помещение
Нет
Показатель компактности здания
-
Приборы учета тепловой энергии
-
Пристроенный гараж/крытая автостоянка
Нет
Противопожарная система
Нет
Санузлы
2
Совмещенная кухня-гостиная
Да
Спальни
4
Терраса
Да
Тип фундамента
Свайно-ростверковый
Толщина внешних стен
375 мм
Толщина внутренних перегородок
150 мм
Улучшенные шумовые характеристики
-
Вентиляция
Принудительная
Веранда
Нет
Водоотведение
Локальные очистные сооружения
Водоснабжение
Индивидуальное
Высота дома
9 м
Высота потолков
3 м

Планировка

Фасад дома

Александр

Закажите выезд инженера

Александр

Выездной инженер
Закажите выезд инженера для точной диагностики и профессиональной консультации по инженерным системам. Специалист приедет в удобное время, проведёт осмотр, рассчитает стоимость работ и подберёт оптимальные решения для вашего дома.


    Похожие проекты

    Ипотека и
    рассрочка
    Одноэтажный дом FIXPLANS — 1628
    Стоимость от:
    10 977 560
    Проект от: 62 100
    Этажей 1
    Санузлы 2
    Спальни 3
    Смотреть
    Ипотека и
    рассрочка
    Двухэтажный дом «Джимара»
    Стоимость от:
    9 777 600
    Проект от: 63 000
    Этажей 2
    Санузлы 2
    Спальни 5
    Смотреть
    Ипотека и
    рассрочка
    Загородный дом АС-206
    Стоимость от:
    8 050 680
    Проект от: 51 300
    Этажей 1
    Санузлы 2
    Спальни 3
    Смотреть
    Ипотека и
    рассрочка
    Одноэтажный дом Авангард 1.120
    Стоимость от:
    9 188 520
    Проект от: 56 700
    Этажей 1
    Санузлы 2
    Спальни 3
    Смотреть
    Ипотека и
    рассрочка
    Одноэтажный дом FIXPLANS — 1682
    Стоимость от:
    12 247 180
    Проект от: 80 550
    Этажей 1
    Санузлы 2
    Спальни 3
    Смотреть
    Ипотека и
    рассрочка
    Одноэтажный дом Ильинский
    Стоимость от:
    8 415 440
    Проект от: 50 400
    Этажей 1
    Санузлы 1
    Спальни 3
    Смотреть

    Как узнать стоимость дома

    back
    Оставляете заявку
    Вы заполняете форму на сайте или звоните нам. Менеджер Лайвкрафт связывается с вами для уточнения деталей: тип дома, площадь, материалы, участок строительства.
    back
    Консультация и подбор решения
    Наш специалист помогает выбрать оптимальный тип дома и конструкцию с учётом бюджета, сроков и целей — будь то дом для постоянного проживания или дача.
    back
    Расчёт предварительной стоимости
    Инженер делает первичный расчёт стоимости строительства по вашим параметрам: фундамент, коробка, кровля, отделка. Вы получаете смету с разбивкой по этапам.
    back
    Корректировка и утверждение сметы
    При необходимости вносим изменения — например, замену материалов или сокращение этапов. После согласования формируется окончательная фиксированная смета.
    back
    Заключение договора и старт работ
    После утверждения сметы заключаем официальный договор с гарантией. Вы получаете прозрачный график и точную стоимость — без скрытых расходов.

    Заказать конусльтацию по:Сказка 160

    Фото 1 Сказка 160


      Наши
      контакты

      Дмитров
      Опорный проезд 28Б
      (индустриальный парк Ниагара)
      9:00 до 18:00

      Корзина