4.9
Рейтинг на основании 120 отзывов
Дмитров
Опорный проезд 28Б
(индустриальный парк Ниагара)
Бренд "Дмитров-Дело" c 2008 года на рынке строительства в Дмитрове
Звоните 9:00 до 18:00 8 (915) 055-33-61
Бренд "Дмитров-Дело" c 2008 года на рынке строительства в Дмитрове

СЛИП-1

Стоимость проекта от:
31 500 ₽
БЕСПЛАТНО! ПРИ ЗАКАЗЕ СТРОИТЕЛЬСТВА
Стоимость строительства от:
5 423 000 ₽
Артикул ART-17521
Дата 26.12.2025
Архитектурный стиль Европейский
Количество надземных этажей 1
Круглогодичное проживание Да
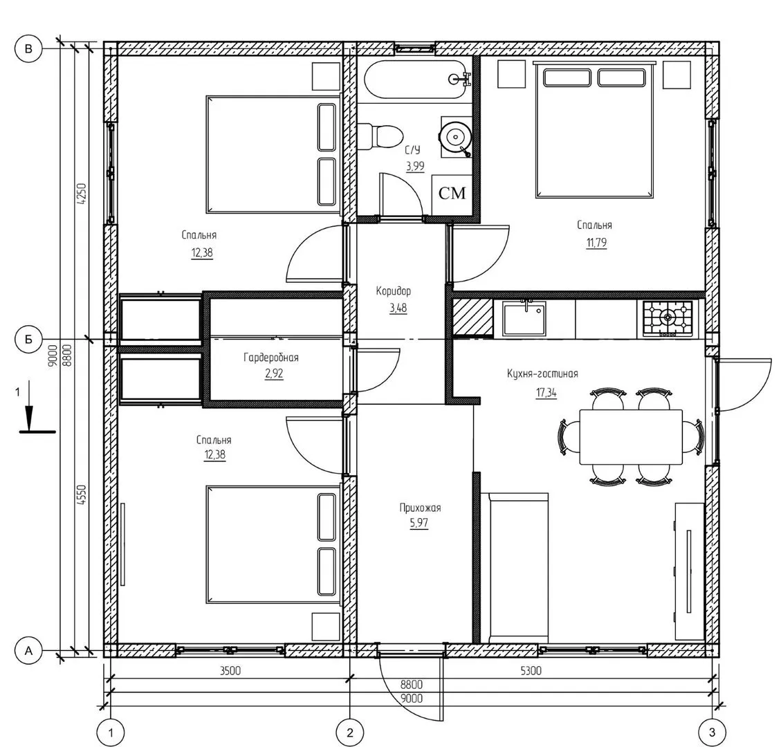
Площадь дома 70 м2
Санузлы 1
Спальни 3

Описание

Почувствуйте атмосферу европейского уюта в этом современном одноквартирном доме, построенном с вниманием к каждой детали. Его открытая планировка, выполненная в классическом европейском стиле, создаёт светлое и просторное пространство, где каждая зона живёт в гармонии с природой. Отчистите ум от ежедневных забот: уютные комнаты, где мягкое солнце льется через большие окна, и тихий звук шелеста листьев за око́м – это настоящий оазис для круглогодичного проживания. Дом представляет собой единственный надземный этаж, что обеспечивает не только экономию места, но и лёгкую доступность, а также экономию тепла в холодные зимние дни. Здания выполнено из высококачественных газобетонных блоков, что обеспечивает отличную тепло- и звукоизоляцию, а также долгий срок службы. Крыша – четыре ската в традиционном вальмовом стиле, подчеркивающие европейскую элегантность и защищающая жильё от непогоды. Внутреннее пространство включает практичную чердачную комнату, превращённую в уютный уголок для хобби, чтения или дополнительного хранения. Несмотря на отсутствие подвижных наружных элементов, интерьер компенсируется обилием естественного света и продуманным планированием. Если вы ищете место, где стиль сочетается с комфортом, а уют встречает природу, этот дом – идеальный выбор. Позвольте себе ощутить европейскую гармонию в вашей повседневной жизни – ваше новое убежище ждет вас!

Характеристики дома

Архитектурный стиль
Автоматизированное регулирование параметров теплоносителя
Да
Балконы/лоджии
Отсутствуют
Чердачное помещение
Да
Датчики протечки воды
Нет
Эксплуатируемая или зеленая кровля
Нет
Электроснабжение
Центральное
Газоснабжение
Индивидуальное
Изоляция воздушного шума
Нет
Камин
Нет
Класс энергоэффективности
B
Класс энергосбережения
A
Количество надземных этажей
1
Круглогодичное проживание
Да
Материал кровли
Битумная черепица
Материал перекрытий
Деревянные
Материал внешних стен
Материал внутренних перегородок
Блочные
Модульное строительство с конструкциями заводского изготовления
Нет
Объем надземной части
536 м3
Основной материал фасадов
Штукатурка
Отопление
Индивидуальное
Площадь дома
70 м2
Площадь застройки
81 м2
Подвальное помещение
Нет
Показатель компактности здания
-
Приборы учета тепловой энергии
Да
Пристроенный гараж/крытая автостоянка
Нет
Противопожарная система
Нет
Санузлы
1
Совмещенная кухня-гостиная
Да
Спальни
3
Терраса
Нет
Тип фундамента
Ленточный
Толщина внешних стен
200 мм
Толщина внутренних перегородок
100 мм
Улучшенные шумовые характеристики
Да
Вентиляция
Естественная
Веранда
Нет
Водоотведение
Локальные очистные сооружения
Водоснабжение
Индивидуальное
Высота дома
5.3 м
Высота потолков
2.75 м

Планировка

Фасад дома

Александр

Закажите выезд инженера

Александр

Выездной инженер
Закажите выезд инженера для точной диагностики и профессиональной консультации по инженерным системам. Специалист приедет в удобное время, проведёт осмотр, рассчитает стоимость работ и подберёт оптимальные решения для вашего дома.


    Похожие проекты

    Ипотека и
    рассрочка
    Проект Соломко 2
    Стоимость от:
    7 721 340
    Проект от: 43 650
    Этажей 1
    Санузлы 2
    Спальни 3
    Смотреть
    Ипотека и
    рассрочка
    Проект дома КС-21
    Стоимость от:
    11 533 500
    Проект от: 65 250
    Этажей 1
    Санузлы 2
    Спальни 3
    Смотреть
    Ипотека и
    рассрочка
    Проект «ДК-23». Каркасный дом 1,5 эт. 8,5х10 с балконом
    Стоимость от:
    6 113 880
    Проект от: 45 900
    Этажей 2
    Санузлы 2
    Спальни 3
    Смотреть
    Ипотека и
    рассрочка
    Двухэтажный барн «МАКСИМ»
    Стоимость от:
    4 176 960
    Проект от: 28 800
    Этажей 2
    Санузлы 1
    Спальни 3
    Смотреть
    Ипотека и
    рассрочка
    Стандарт-100 ТИП-3
    Стоимость от:
    8 340 420
    Проект от: 49 950
    Этажей 1
    Санузлы 1
    Спальни 3
    Смотреть
    Ипотека и
    рассрочка
    Проект современного двухэтажного дома с террасой S-219
    Стоимость от:
    15 302 160
    Проект от: 98 550
    Этажей 2
    Санузлы 2
    Спальни 4
    Смотреть

    Как узнать стоимость дома

    back
    Оставляете заявку
    Вы заполняете форму на сайте или звоните нам. Менеджер Лайвкрафт связывается с вами для уточнения деталей: тип дома, площадь, материалы, участок строительства.
    back
    Консультация и подбор решения
    Наш специалист помогает выбрать оптимальный тип дома и конструкцию с учётом бюджета, сроков и целей — будь то дом для постоянного проживания или дача.
    back
    Расчёт предварительной стоимости
    Инженер делает первичный расчёт стоимости строительства по вашим параметрам: фундамент, коробка, кровля, отделка. Вы получаете смету с разбивкой по этапам.
    back
    Корректировка и утверждение сметы
    При необходимости вносим изменения — например, замену материалов или сокращение этапов. После согласования формируется окончательная фиксированная смета.
    back
    Заключение договора и старт работ
    После утверждения сметы заключаем официальный договор с гарантией. Вы получаете прозрачный график и точную стоимость — без скрытых расходов.

    Заказать конусльтацию по:СЛИП-1

    Фото 1 СЛИП-1


      Наши
      контакты

      Дмитров
      Опорный проезд 28Б
      (индустриальный парк Ниагара)
      9:00 до 18:00

      Корзина