4.9
Рейтинг на основании 120 отзывов
Дмитров
Опорный проезд 28Б
(индустриальный парк Ниагара)
Бренд "Дмитров-Дело" c 2008 года на рынке строительства в Дмитрове
Звоните 9:00 до 18:00 8 (915) 055-33-61
Бренд "Дмитров-Дело" c 2008 года на рынке строительства в Дмитрове

Современное шале -Электрогорск

Стоимость проекта от:
33 300 ₽
БЕСПЛАТНО! ПРИ ЗАКАЗЕ СТРОИТЕЛЬСТВА
Стоимость строительства от:
5 063 080 ₽
Артикул ART-12103
Дата 25.12.2025
Архитектурный стиль Шале
Количество надземных этажей 1
Круглогодичное проживание Да
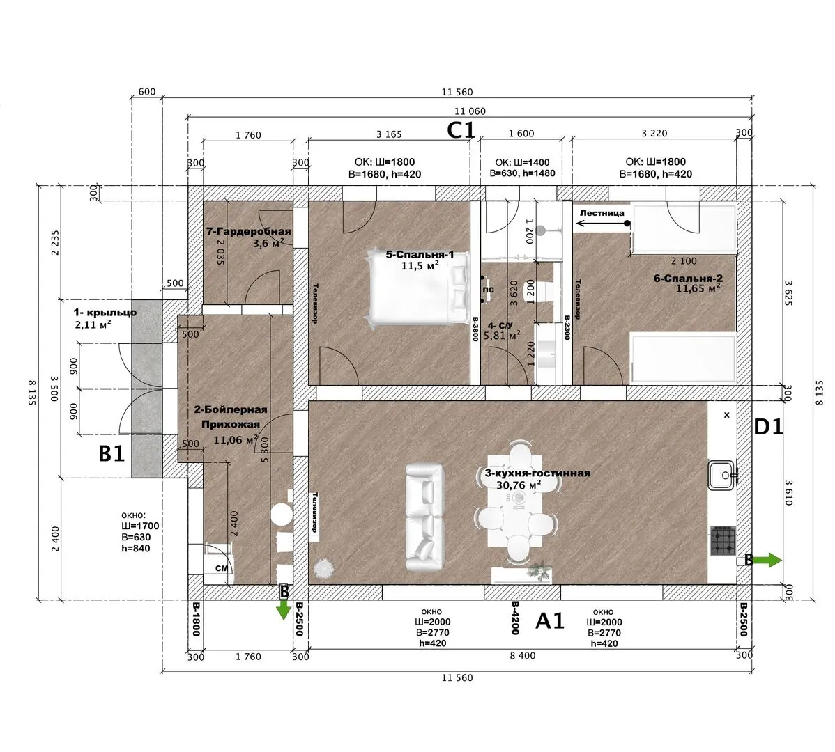
Площадь дома 74 м2
Санузлы 1
Спальни 2

Описание

Одинокий, но при этом невероятно уютный дом в стиле шале, расположенный в живописном уголке Электрогорска, приглашает к круглогодичному уединению с природой без потери комфорта современного жилья. Его простая, но элегантная форма с двойными скатными крышами создаёт ощущение традиционного горного убежища, а стены из премиального материала Арболит дарят непревзойденную теплоизоляцию и надёжность даже в самые суровые морозы. Полностью открытая центральная часть и большие панорамные окна наполняют пространство светом, а мягкие текстуры шале‑стиля привносят тепло, словно в домашний очаг. Каждый элемент интерьера продуман до мелочей: от просторного гостиной-кухонного пространства, где можно проводить вечера в кругу друзей и семьи, до уютных спальных зон, где мягкость постельного белья и высокие потолки создают атмосферу спокойствия. Без балконов и веранд, но с удобной внутренней терракой, дом идеально подходит для тихих моментов, когда хочется просто посидеть за чашкой горячего какао и наблюдать за мягким снегом, падающим за окнами. Этот шале — идеальный уголок для тех, кто ценит сочетание современного качества и традиционного уюта, а также мечтает о месте, где можно жить, отдыхать и вдохновляться каждым днём.

Характеристики дома

Архитектурный стиль
Автоматизированное регулирование параметров теплоносителя
Нет
Балконы/лоджии
Отсутствуют
Чердачное помещение
Нет
Датчики протечки воды
Нет
Эксплуатируемая или зеленая кровля
Нет
Электроснабжение
Центральное
Газоснабжение
2 варианта
Изоляция воздушного шума
Да
Камин
Нет
Класс энергоэффективности
-
Класс энергосбережения
-
Количество надземных этажей
1
Круглогодичное проживание
Да
Материал кровли
Битумная черепица
Материал перекрытий
Деревянные
Материал внешних стен
Материал внутренних перегородок
Блочные
Модульное строительство с конструкциями заводского изготовления
Нет
Объем надземной части
-
Основной материал фасадов
Штукатурка
Отопление
Индивидуальное
Площадь дома
74 м2
Площадь застройки
96 м2
Подвальное помещение
Нет
Показатель компактности здания
-
Приборы учета тепловой энергии
Нет
Пристроенный гараж/крытая автостоянка
Нет
Противопожарная система
Нет
Санузлы
1
Совмещенная кухня-гостиная
Да
Спальни
2
Терраса
Нет
Тип фундамента
Плитный
Тип кровли
Толщина внешних стен
300 мм
Толщина внутренних перегородок
200 мм
Улучшенные шумовые характеристики
Да
Вентиляция
2 варианта
Веранда
Нет
Водоотведение
2 варианта
Водоснабжение
2 варианта
Высота дома
4.4 м
Высота потолков
3 м

Планировка

Фасад дома

Александр

Закажите выезд инженера

Александр

Выездной инженер
Закажите выезд инженера для точной диагностики и профессиональной консультации по инженерным системам. Специалист приедет в удобное время, проведёт осмотр, рассчитает стоимость работ и подберёт оптимальные решения для вашего дома.


    Похожие проекты

    Ипотека и
    рассрочка
    Кирпичный дом «Рождествено»
    Стоимость от:
    7 172 110
    Проект от: 50 850
    Этажей 1
    Санузлы 2
    Спальни 2
    Смотреть
    Ипотека и
    рассрочка
    Горный-59
    Стоимость от:
    8 860 560
    Проект от: 58 050
    Этажей 2
    Санузлы 2
    Спальни 5
    Смотреть
    Ипотека и
    рассрочка
    Загородный дом «Айлант»
    Стоимость от:
    10 086 720
    Проект от: 71 100
    Этажей 2
    Санузлы 2
    Спальни 4
    Смотреть
    Ипотека и
    рассрочка
    А-100 combo из газоблока с мастер-спальней
    Стоимость от:
    6 765 000
    Проект от: 40 500
    Этажей 1
    Санузлы 2
    Спальни 3
    Смотреть
    Ипотека и
    рассрочка
    Дом из клееного бруса «Щелково»
    Стоимость от:
    13 921 200
    Проект от: 96 750
    Этажей 2
    Санузлы 3
    Спальни 3
    Смотреть
    Ипотека и
    рассрочка
    Кейптаун
    Стоимость от:
    5 854 970
    Проект от: 45 450
    Этажей 1
    Санузлы 2
    Спальни 3
    Смотреть

    Как узнать стоимость дома

    back
    Оставляете заявку
    Вы заполняете форму на сайте или звоните нам. Менеджер Лайвкрафт связывается с вами для уточнения деталей: тип дома, площадь, материалы, участок строительства.
    back
    Консультация и подбор решения
    Наш специалист помогает выбрать оптимальный тип дома и конструкцию с учётом бюджета, сроков и целей — будь то дом для постоянного проживания или дача.
    back
    Расчёт предварительной стоимости
    Инженер делает первичный расчёт стоимости строительства по вашим параметрам: фундамент, коробка, кровля, отделка. Вы получаете смету с разбивкой по этапам.
    back
    Корректировка и утверждение сметы
    При необходимости вносим изменения — например, замену материалов или сокращение этапов. После согласования формируется окончательная фиксированная смета.
    back
    Заключение договора и старт работ
    После утверждения сметы заключаем официальный договор с гарантией. Вы получаете прозрачный график и точную стоимость — без скрытых расходов.

    Заказать конусльтацию по:Современное шале -Электрогорск

    Фото 1 Современное шале -Электрогорск


      Наши
      контакты

      Дмитров
      Опорный проезд 28Б
      (индустриальный парк Ниагара)
      9:00 до 18:00

      Корзина