4.9
Рейтинг на основании 120 отзывов
Дмитров
Опорный проезд 28Б
(индустриальный парк Ниагара)
Бренд "Дмитров-Дело" c 2008 года на рынке строительства в Дмитрове
Звоните 9:00 до 18:00 8 (915) 055-33-61
Бренд "Дмитров-Дело" c 2008 года на рынке строительства в Дмитрове

ДомPRO 96-3К-КТ

Стоимость проекта от:
43 200 ₽
БЕСПЛАТНО! ПРИ ЗАКАЗЕ СТРОИТЕЛЬСТВА
Стоимость строительства от:
7 641 920 ₽
Артикул ART-20372
Дата 26.12.2025
Архитектурный стиль Классический
Количество надземных этажей 1
Круглогодичное проживание Да
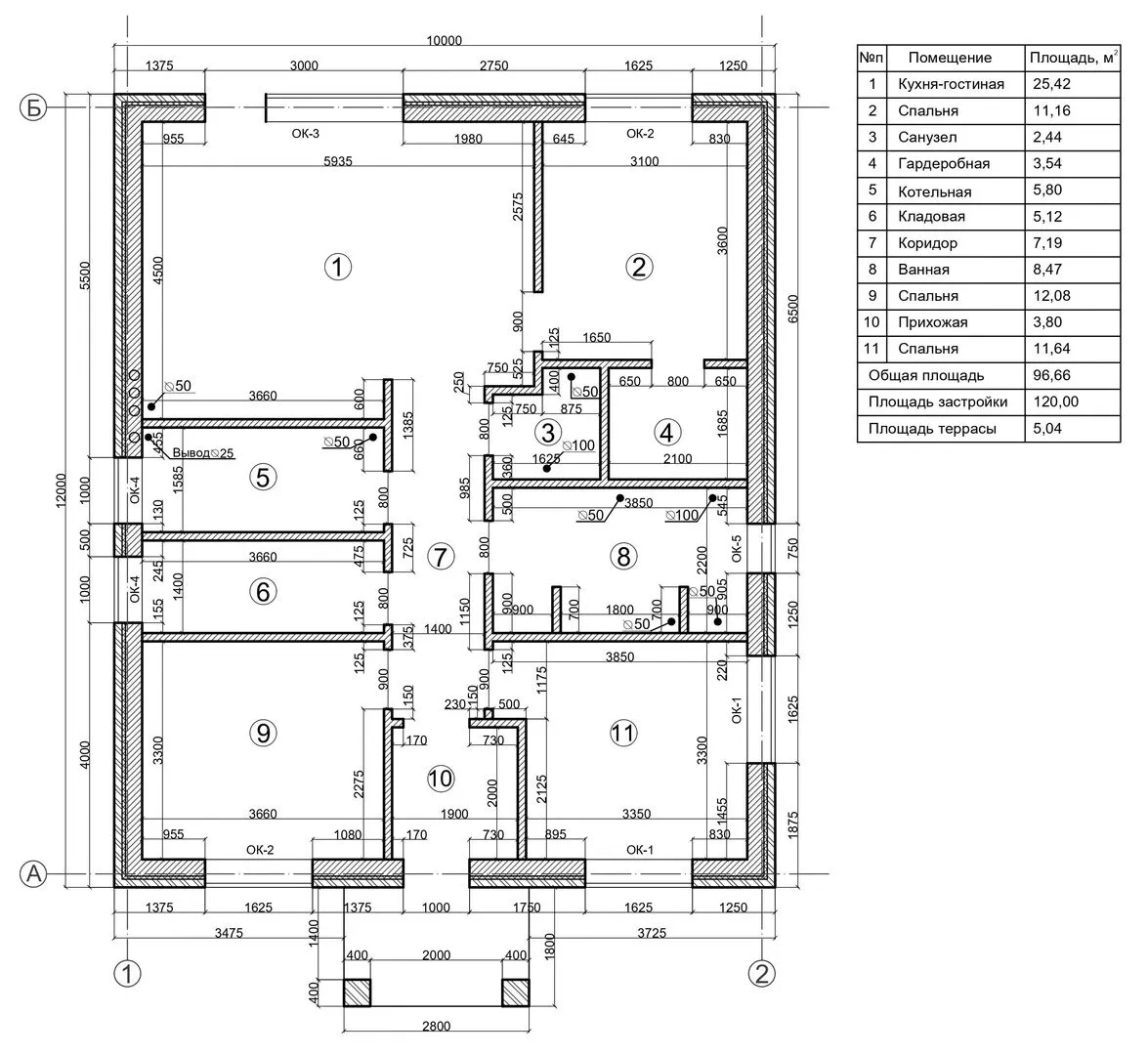
Площадь дома 96 м2
Санузлы 2
Спальни 3

Описание

**ДомPRO 96‑3К‑КТ** – это воплощение уютного классического стиля в компактном, но функциональном решении, позволяющем жить в полном комфорте круглый год. Спроектирован с учётом современных потребностей семьи, он предлагает просторную, светлую террасу для любимых вечеров на свежем воздухе, а также практичное чердачное помещение, которое можно превратить в гардеробный, кладовую или уютный уголок творчества. Низкая крытина и простые, но прочные кирпичные стены обеспечивают теплоизоляцию и долгий срок службы, а четырёхскатная (вальмовая) крыша подчёркивает элегантный, но без лишних деталей образ дома. Без балконов и веранды, но с большим открытым пространством, – ДомPRO станет идеальным местом для тех, кто ценит простоту и уют. Однонадземный этаж с продуманной планировкой позволяет легко приспособиться под любые жизненные сценарии, а классический фасад гарантирует стиль и гармонию с прилегающей средой. Такой дом – это не только функциональность, но и эстетика, созданная для того, чтобы вы чувствовали себя дома, наслаждаясь каждым моментом в своем собственном уголке покоя и безопасности.

Характеристики дома

Архитектурный стиль
Автоматизированное регулирование параметров теплоносителя
Нет
Балконы/лоджии
Отсутствуют
Чердачное помещение
Да
Датчики протечки воды
Нет
Эксплуатируемая или зеленая кровля
Нет
Электроснабжение
Не предусмотрено
Газоснабжение
Не предусмотрено
Изоляция воздушного шума
Нет
Камин
Нет
Класс энергоэффективности
-
Класс энергосбережения
-
Количество надземных этажей
1
Круглогодичное проживание
Да
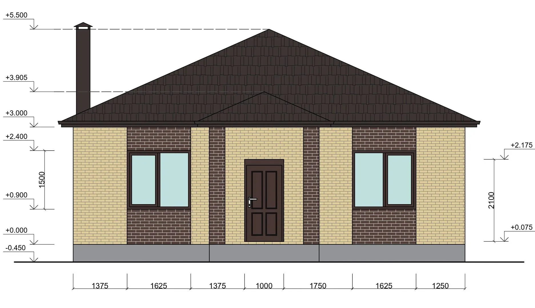
Материал кровли
Металлочерепица
Материал перекрытий
Деревянные
Материал внешних стен
Материал внутренних перегородок
Кирпичные
Модульное строительство с конструкциями заводского изготовления
Нет
Объем надземной части
596 м3
Основной материал фасадов
Облицовочный кирпич
Отопление
Не предусмотрено
Площадь дома
96 м2
Площадь застройки
120 м2
Подвальное помещение
Нет
Показатель компактности здания
-
Приборы учета тепловой энергии
Нет
Пристроенный гараж/крытая автостоянка
Нет
Противопожарная система
Нет
Санузлы
2
Совмещенная кухня-гостиная
Да
Спальни
3
Терраса
Да
Тип фундамента
Ленточный
Толщина внешних стен
420 мм
Толщина внутренних перегородок
120 мм
Улучшенные шумовые характеристики
Нет
Вентиляция
Естественная
Веранда
Нет
Водоотведение
Не предусмотрено
Водоснабжение
Не предусмотрено
Высота дома
5.5 м
Высота потолков
3 м

Планировка

Фасад дома

Александр

Закажите выезд инженера

Александр

Выездной инженер
Закажите выезд инженера для точной диагностики и профессиональной консультации по инженерным системам. Специалист приедет в удобное время, проведёт осмотр, рассчитает стоимость работ и подберёт оптимальные решения для вашего дома.


    Похожие проекты

    Ипотека и
    рассрочка
    Швеция 150
    Стоимость от:
    10 707 840
    Проект от: 70 200
    Этажей 2
    Санузлы 3
    Спальни 4
    Смотреть
    Ипотека и
    рассрочка
    Индивидуальный жилой дом АТЛАНТ-2
    Стоимость от:
    4 652 560
    Проект от: 30 600
    Этажей 1
    Санузлы 1
    Спальни 2
    Смотреть
    Ипотека и
    рассрочка
    80м2
    Стоимость от:
    5 838 800
    Проект от: 36 000
    Этажей 1
    Санузлы 1
    Спальни 3
    Смотреть
    Ипотека и
    рассрочка
    Домета_80
    Стоимость от:
    8 975 120
    Проект от: 52 200
    Этажей 1
    Санузлы 2
    Спальни 2
    Смотреть
    Ипотека и
    рассрочка
    Коттедж со встроенным гаражом
    Стоимость от:
    16 278 000
    Проект от: 101 250
    Этажей 2
    Санузлы 3
    Спальни 4
    Смотреть
    Ипотека и
    рассрочка
    Е-146 Одноэтажный жилой дом
    Стоимость от:
    11 612 920
    Проект от: 65 700
    Этажей 1
    Санузлы 2
    Спальни 3
    Смотреть

    Как узнать стоимость дома

    back
    Оставляете заявку
    Вы заполняете форму на сайте или звоните нам. Менеджер Лайвкрафт связывается с вами для уточнения деталей: тип дома, площадь, материалы, участок строительства.
    back
    Консультация и подбор решения
    Наш специалист помогает выбрать оптимальный тип дома и конструкцию с учётом бюджета, сроков и целей — будь то дом для постоянного проживания или дача.
    back
    Расчёт предварительной стоимости
    Инженер делает первичный расчёт стоимости строительства по вашим параметрам: фундамент, коробка, кровля, отделка. Вы получаете смету с разбивкой по этапам.
    back
    Корректировка и утверждение сметы
    При необходимости вносим изменения — например, замену материалов или сокращение этапов. После согласования формируется окончательная фиксированная смета.
    back
    Заключение договора и старт работ
    После утверждения сметы заключаем официальный договор с гарантией. Вы получаете прозрачный график и точную стоимость — без скрытых расходов.

    Заказать конусльтацию по:ДомPRO 96-3К-КТ

    Фото 1 ДомPRO 96-3К-КТ


      Наши
      контакты

      Дмитров
      Опорный проезд 28Б
      (индустриальный парк Ниагара)
      9:00 до 18:00

      Корзина