4.9
Рейтинг на основании 120 отзывов
Дмитров
Опорный проезд 28Б
(индустриальный парк Ниагара)
Бренд "Дмитров-Дело" c 2008 года на рынке строительства в Дмитрове
Звоните 9:00 до 18:00 8 (915) 055-33-61
Бренд "Дмитров-Дело" c 2008 года на рынке строительства в Дмитрове

ССК Светлое поле

Стоимость проекта от:
72 000 ₽
БЕСПЛАТНО! ПРИ ЗАКАЗЕ СТРОИТЕЛЬСТВА
Стоимость строительства от:
9 275 200 ₽
Артикул ART-14930
Дата 25.12.2025
Архитектурный стиль Американский/Канадский
Количество надземных этажей 1
Круглогодичное проживание Да
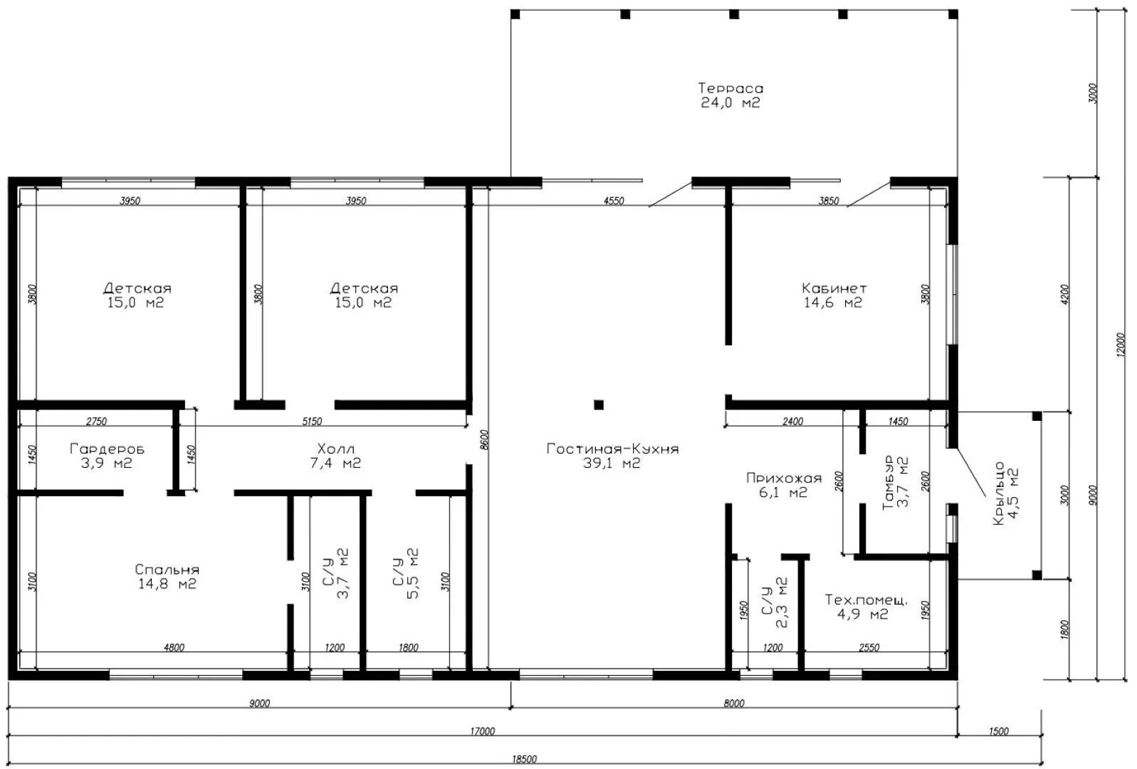
Площадь дома 160 м2
Санузлы 3
Спальни 3

Описание

**Добро пожаловать в «Светлое поле» – ваш уютный уголок в мире современного комфорта и традиционной американской эстетики.** Этот одноповерхный дом идеально подходит для круглогодичного проживания, ведь его просторные и светлые помещения создают атмосферу тепла даже в самые прохладные дни. Внешний вид в стиле американского и канадского дизайна подчёркивается элегантной двускатной крышей и древесными каркасными стенами, от которых доносится свежий, природный аромат. Просторный терраса, открытая наружу, приглашает к романтическим вечерам и угощениям на свежем воздухе, а отсутствие веранд и балконов делает пространство более приватным и сосредоточенным на внутренней гармонии. **Уют и практичность в каждом элементе** Круглогодичная живучесть дома обеспечена качественной изоляцией и высокотемпературно-устойчивыми материалами, а отсутствие прицепного гаража снимает лишнюю тревогу о хранении автомобиля: вы можете наслаждаться свободой перемещаться по городу, не думая о технике. Деревянные каркасы и крыша в классическом американском стиле создают ощущение домашней тёплой атмосферы, а отсутствие чердака и лоджий делает проект более компактным и удобным для ремонта и обслуживания. Это место, где каждый уголок пропитан заботой о комфорте и стиле, а каждая деталь пронизана историей и традицией, обещающая долгие счастливые годы в вашем новом доме.

Характеристики дома

Архитектурный стиль
Автоматизированное регулирование параметров теплоносителя
Нет
Балконы/лоджии
Отсутствуют
Чердачное помещение
Нет
Датчики протечки воды
Нет
Эксплуатируемая или зеленая кровля
Нет
Электроснабжение
Центральное
Газоснабжение
Не предусмотрено
Изоляция воздушного шума
Нет
Камин
Нет
Класс энергоэффективности
-
Класс энергосбережения
-
Количество надземных этажей
1
Круглогодичное проживание
Да
Материал кровли
Металлочерепица
Материал перекрытий
Деревянные
Материал внешних стен
Материал внутренних перегородок
Гипсокартонные
Модульное строительство с конструкциями заводского изготовления
Нет
Объем надземной части
-
Основной материал фасадов
Сайдинг
Отопление
Индивидуальное
Площадь дома
160 м2
Площадь застройки
222 м2
Подвальное помещение
Нет
Показатель компактности здания
-
Приборы учета тепловой энергии
Нет
Пристроенный гараж/крытая автостоянка
Нет
Противопожарная система
Нет
Санузлы
3
Совмещенная кухня-гостиная
Да
Спальни
3
Терраса
Да
Тип фундамента
Свайный
Тип кровли
Толщина внешних стен
200 мм
Толщина внутренних перегородок
100 мм
Улучшенные шумовые характеристики
Да
Вентиляция
Естественная
Веранда
Нет
Водоотведение
Локальные очистные сооружения
Водоснабжение
Индивидуальное
Высота дома
5 м
Высота потолков
2.5 м

Планировка

Фасад дома

Александр

Закажите выезд инженера

Александр

Выездной инженер
Закажите выезд инженера для точной диагностики и профессиональной консультации по инженерным системам. Специалист приедет в удобное время, проведёт осмотр, рассчитает стоимость работ и подберёт оптимальные решения для вашего дома.


    Похожие проекты

    Ипотека и
    рассрочка
    Красная горка
    Стоимость от:
    6 614 960
    Проект от: 39 600
    Этажей 1
    Санузлы 1
    Спальни 3
    Смотреть
    Ипотека и
    рассрочка
    МАГДЕБУРГ-164
    Стоимость от:
    12 666 000
    Проект от: 78 750
    Этажей 2
    Санузлы 3
    Спальни 3
    Смотреть
    Ипотека и
    рассрочка
    Двухэтажный прямоугольный коттедж S3-119-1 (Z302)
    Стоимость от:
    10 319 520
    Проект от: 62 100
    Этажей 2
    Санузлы 3
    Спальни 4
    Смотреть
    Ипотека и
    рассрочка
    «Шустов»
    Стоимость от:
    6 885 960
    Проект от: 51 750
    Этажей 2
    Санузлы 2
    Спальни 4
    Смотреть
    Ипотека и
    рассрочка
    Микея
    Стоимость от:
    8 474 400
    Проект от: 54 000
    Этажей 1
    Санузлы 2
    Спальни 3
    Смотреть
    Ипотека и
    рассрочка
    Дом из клееного бруса Можайск-2
    Стоимость от:
    10 946 040
    Проект от: 74 700
    Этажей 2
    Санузлы 3
    Спальни 4
    Смотреть

    Как узнать стоимость дома

    back
    Оставляете заявку
    Вы заполняете форму на сайте или звоните нам. Менеджер Лайвкрафт связывается с вами для уточнения деталей: тип дома, площадь, материалы, участок строительства.
    back
    Консультация и подбор решения
    Наш специалист помогает выбрать оптимальный тип дома и конструкцию с учётом бюджета, сроков и целей — будь то дом для постоянного проживания или дача.
    back
    Расчёт предварительной стоимости
    Инженер делает первичный расчёт стоимости строительства по вашим параметрам: фундамент, коробка, кровля, отделка. Вы получаете смету с разбивкой по этапам.
    back
    Корректировка и утверждение сметы
    При необходимости вносим изменения — например, замену материалов или сокращение этапов. После согласования формируется окончательная фиксированная смета.
    back
    Заключение договора и старт работ
    После утверждения сметы заключаем официальный договор с гарантией. Вы получаете прозрачный график и точную стоимость — без скрытых расходов.

    Заказать конусльтацию по:ССК Светлое поле

    Фото 1 ССК Светлое поле


      Наши
      контакты

      Дмитров
      Опорный проезд 28Б
      (индустриальный парк Ниагара)
      9:00 до 18:00

      Корзина