4.9
Рейтинг на основании 120 отзывов
Дмитров
Опорный проезд 28Б
(индустриальный парк Ниагара)
Бренд "Дмитров-Дело" c 2008 года на рынке строительства в Дмитрове
Звоните 9:00 до 18:00 8 (915) 055-33-61
Бренд "Дмитров-Дело" c 2008 года на рынке строительства в Дмитрове

Свой дом М-125

Стоимость проекта от:
54 450 ₽
БЕСПЛАТНО! ПРИ ЗАКАЗЕ СТРОИТЕЛЬСТВА
Стоимость строительства от:
7 256 040 ₽
Артикул ART-10428
Дата 25.12.2025
Архитектурный стиль Скандинавский
Количество надземных этажей 2
Круглогодичное проживание Да
Площадь дома 121 м2
Санузлы 2
Спальни 4

Описание

Заслужив ваш запрос, позвольте представить «Свой дом М‑125» – элегантный оазис скандинавского минимализма, где каждая деталь отточена до совершенства. В его двух надземных этажах гармонично сочетается простота и функциональность: просторные открытые пространства, большие панорамные окна, наполняющие комнаты природным светом, и тепло деревянного каркаса, создающего ощущение уюта и близости к природе. Сочетание светлых тонов, натуральных материалов и аккуратных линий позволяет легко подобрать интерьер любой стилистики, от классического до современного. Этот дом предназначен для круглогодичного проживания: от теплоизоляционной эффективности до тщательно продуманной вентиляции, всё обеспечивает комфорт даже в холодные зимние дни. Без балконов, веранд и прицепных гаражей, дом сохраняет чистую и лаконичную форму, а на открытой террасе, окружённой живописным садом, можно проводить время с семьёй, наслаждаясь свежим воздухом и видом на природу. Двускатная крыша добавляет традиционного очарования, а деревянные стены делают структуру устойчивой и натуральной, идеально вписываясь в современный экодизайн. Этот дом – воплощение элегантности, комфорта и экологической ответственности, созданный для того, чтобы стать вашим уютным убежищем в суете современного мира.

Характеристики дома

Архитектурный стиль
Автоматизированное регулирование параметров теплоносителя
Нет
Балконы/лоджии
Отсутствуют
Чердачное помещение
Нет
Датчики протечки воды
Нет
Эксплуатируемая или зеленая кровля
Нет
Электроснабжение
Центральное
Газоснабжение
Центральное
Изоляция воздушного шума
Нет
Камин
Нет
Класс энергоэффективности
-
Класс энергосбережения
-
Количество надземных этажей
2
Круглогодичное проживание
Да
Материал кровли
Металлочерепица
Материал перекрытий
Деревянные
Материал внешних стен
Материал внутренних перегородок
Деревянные
Модульное строительство с конструкциями заводского изготовления
Нет
Объем надземной части
410 м3
Основной материал фасадов
Дерево
Отопление
Индивидуальное
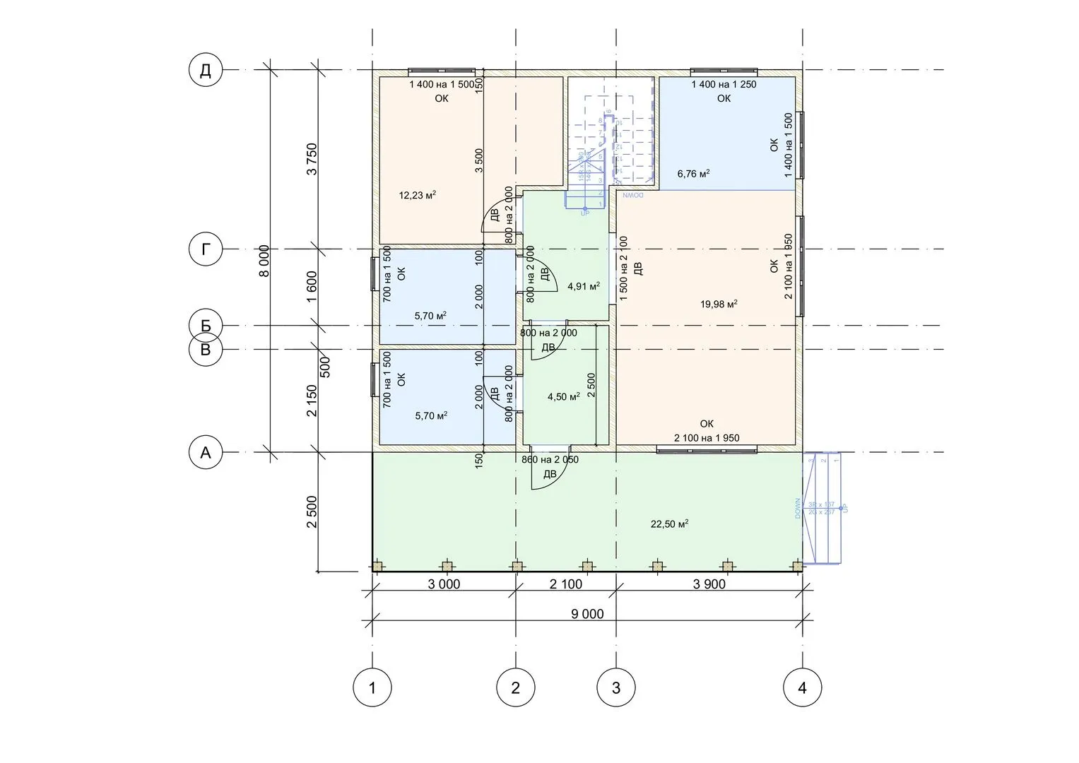
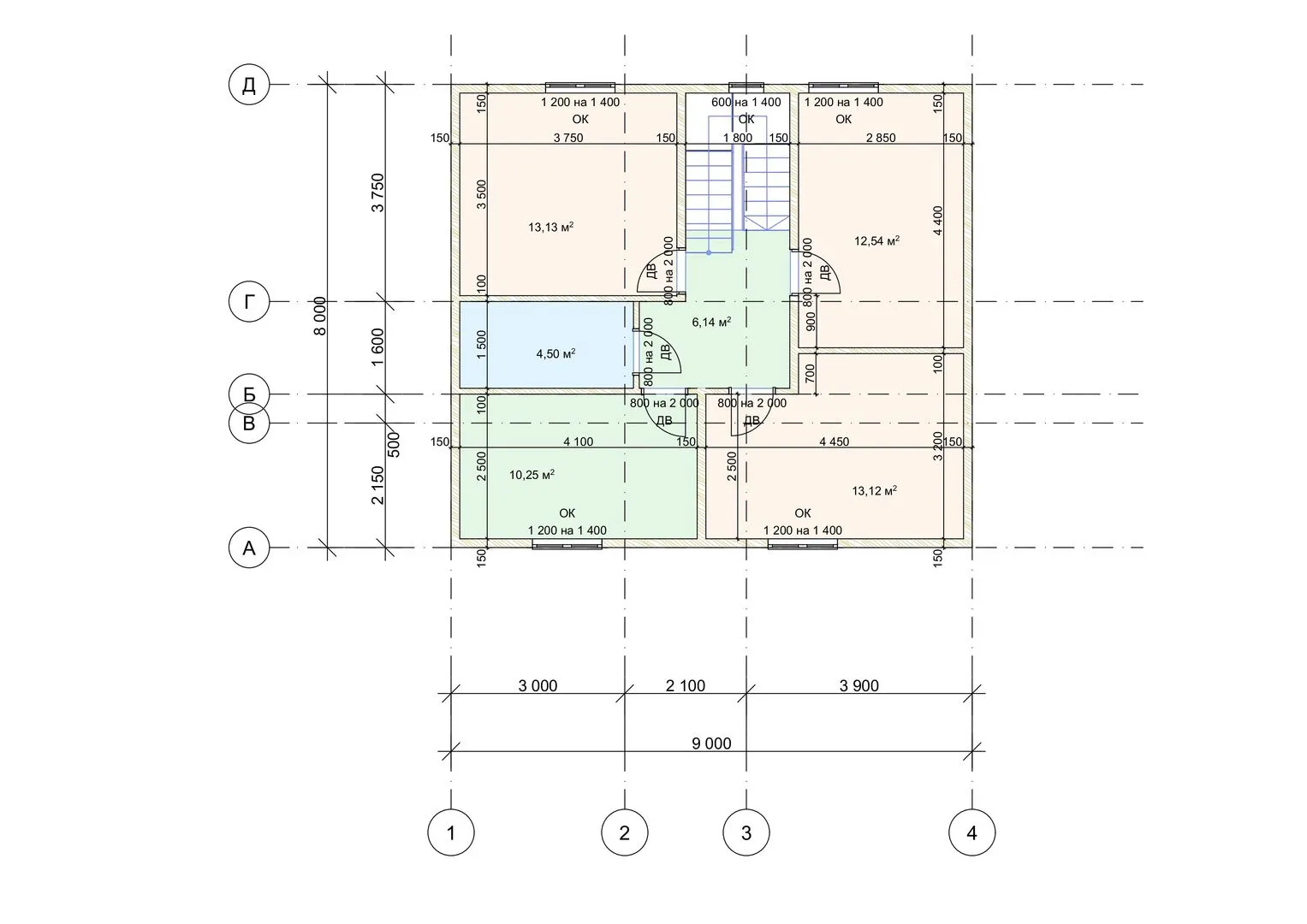
Площадь дома
121 м2
Площадь застройки
94 м2
Подвальное помещение
Нет
Показатель компактности здания
-
Приборы учета тепловой энергии
Нет
Пристроенный гараж/крытая автостоянка
Нет
Противопожарная система
Нет
Санузлы
2
Совмещенная кухня-гостиная
Да
Спальни
4
Терраса
Да
Тип фундамента
Свайный
Тип кровли
Толщина внешних стен
200 мм
Толщина внутренних перегородок
100 мм
Улучшенные шумовые характеристики
Нет
Вентиляция
Естественная
Веранда
Нет
Водоотведение
Локальные очистные сооружения
Водоснабжение
Индивидуальное
Высота дома
6.45 м
Высота потолков
2.7 м

Планировка

Фасад дома

Александр

Закажите выезд инженера

Александр

Выездной инженер
Закажите выезд инженера для точной диагностики и профессиональной консультации по инженерным системам. Специалист приедет в удобное время, проведёт осмотр, рассчитает стоимость работ и подберёт оптимальные решения для вашего дома.


    Похожие проекты

    Ипотека и
    рассрочка
    Барнхаус-10
    Стоимость от:
    4 942 080
    Проект от: 32 400
    Этажей 2
    Санузлы 2
    Спальни 2
    Смотреть
    Ипотека и
    рассрочка
    Проект одноэтажного дома РЛ-55
    Стоимость от:
    5 414 640
    Проект от: 32 400
    Этажей 1
    Санузлы 1
    Спальни 2
    Смотреть
    Ипотека и
    рассрочка
    Горный-59
    Стоимость от:
    8 860 560
    Проект от: 58 050
    Этажей 2
    Санузлы 2
    Спальни 5
    Смотреть
    Ипотека и
    рассрочка
    Загородный дом «Джек»
    Стоимость от:
    6 840 460
    Проект от: 53 100
    Этажей 1
    Санузлы 1
    Спальни 2
    Смотреть
    Ипотека и
    рассрочка
    Проект дома С032
    Стоимость от:
    16 252 060
    Проект от: 100 350
    Этажей 1
    Санузлы 3
    Спальни 4
    Смотреть
    Ипотека и
    рассрочка
    Торонто 90
    Стоимость от:
    6 355 800
    Проект от: 40 500
    Этажей 1
    Санузлы 2
    Спальни 3
    Смотреть

    Как узнать стоимость дома

    back
    Оставляете заявку
    Вы заполняете форму на сайте или звоните нам. Менеджер Лайвкрафт связывается с вами для уточнения деталей: тип дома, площадь, материалы, участок строительства.
    back
    Консультация и подбор решения
    Наш специалист помогает выбрать оптимальный тип дома и конструкцию с учётом бюджета, сроков и целей — будь то дом для постоянного проживания или дача.
    back
    Расчёт предварительной стоимости
    Инженер делает первичный расчёт стоимости строительства по вашим параметрам: фундамент, коробка, кровля, отделка. Вы получаете смету с разбивкой по этапам.
    back
    Корректировка и утверждение сметы
    При необходимости вносим изменения — например, замену материалов или сокращение этапов. После согласования формируется окончательная фиксированная смета.
    back
    Заключение договора и старт работ
    После утверждения сметы заключаем официальный договор с гарантией. Вы получаете прозрачный график и точную стоимость — без скрытых расходов.

    Заказать конусльтацию по:Свой дом М-125

    Фото 1 Свой дом М-125


      Наши
      контакты

      Дмитров
      Опорный проезд 28Б
      (индустриальный парк Ниагара)
      9:00 до 18:00

      Корзина