4.9
Рейтинг на основании 120 отзывов
Дмитров
Опорный проезд 28Б
(индустриальный парк Ниагара)
Бренд "Дмитров-Дело" c 2008 года на рынке строительства в Дмитрове
Звоните 9:00 до 18:00 8 (915) 055-33-61
Бренд "Дмитров-Дело" c 2008 года на рынке строительства в Дмитрове

TALO NEO 73-3

Стоимость проекта от:
59 400 ₽
БЕСПЛАТНО! ПРИ ЗАКАЗЕ СТРОИТЕЛЬСТВА
Стоимость строительства от:
8 378 040 ₽
Артикул ART-15604
Дата 25.12.2025
Архитектурный стиль Европейский
Количество надземных этажей 1
Круглогодичное проживание Да
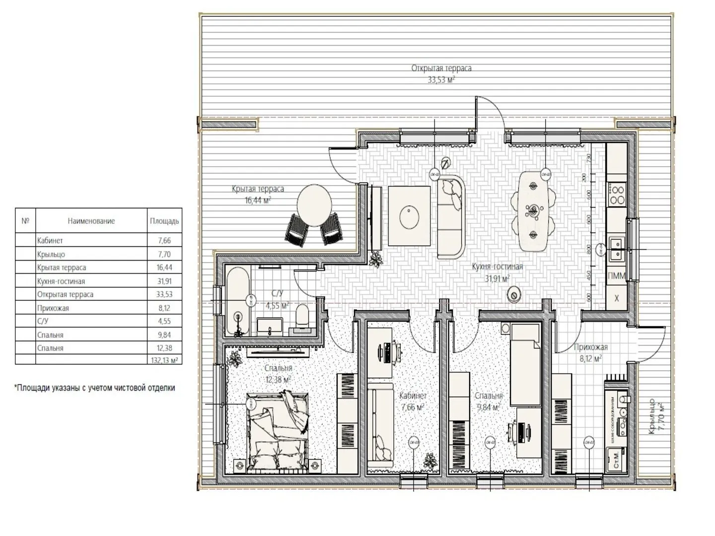
Площадь дома 132 м2
Санузлы 1
Спальни 2

Описание

**Дом TALO NEO 73‑3 – элегантность европейского дизайна, созданная для жизни круглый год** Вас ждёт не просто жильё, а пространство, в котором каждый уголок обрел вдохновение. Архитектурный стиль дома отражает утончённое европейское наследие: строгие линии, гармоничные пропорции и изысканные детали создают атмосферу спокойствия и уюта. Благодаря каркасно‑панельной технологии внешние стены сохраняют тепло в холодную пору и отражают солнечную энергию летом, обеспечивая комфорт в любое время года. Двускатная крыша добавляет не только визуальной привлекательности, но и защищает от непогоды, а наличие просторной террасы позволяет наслаждаться свежим воздухом и живописными видами прямо на своей территории. **Удобство и простота без лишних приёмов** Дом TALO NEO 73‑3 спроектирован с учётом современных требований к функциональности и удобству. Оставив балконы, лоджии и веранду, архитектор создал более открытый интерьер, где естественный свет свободно циркулирует по комнатам. Крытая автостоянка и прицепный гараж не предусмотрены, однако это предоставляет уникальную возможность оформить свой двёрок и придать дому более естественный и просторный вид. Терраса, которая стала главным акцентом в дизайне, открывает двери в зелёный мир и делает каждое утро и вечер особенным. **Ваша новая сказка начинается здесь** С TALO NEO 73‑3 вы получаете полноценный семейный дом, где уют и практичность идут рука об руку. Каждый сантиметр этого дома продуман до мелочей: от выбора материалов до распределения пространства, чтобы вы чувствовали себя дома даже в самые холодные ночи. Откройте новые горизонты для семьи, друзей и отдыха – ваш дом на стыке европейского стиля и современных технологий уже ждёт, чтобы стать вашим новым очутлением.

Характеристики дома

Архитектурный стиль
Автоматизированное регулирование параметров теплоносителя
Да
Балконы/лоджии
Отсутствуют
Чердачное помещение
Нет
Датчики протечки воды
Нет
Эксплуатируемая или зеленая кровля
Нет
Электроснабжение
Индивидуальное
Газоснабжение
Индивидуальное
Изоляция воздушного шума
Да
Камин
Нет
Класс энергоэффективности
-
Класс энергосбережения
-
Количество надземных этажей
1
Круглогодичное проживание
Да
Материал кровли
Металлочерепица
Материал перекрытий
Деревянные
Материал внешних стен
Материал внутренних перегородок
Деревянные
Модульное строительство с конструкциями заводского изготовления
Нет
Объем надземной части
-
Основной материал фасадов
Дерево
Отопление
Индивидуальное
Площадь дома
132 м2
Площадь застройки
132 м2
Подвальное помещение
Нет
Показатель компактности здания
-
Приборы учета тепловой энергии
Нет
Пристроенный гараж/крытая автостоянка
Нет
Противопожарная система
Нет
Санузлы
1
Совмещенная кухня-гостиная
Да
Спальни
2
Терраса
Да
Тип фундамента
Свайный
Тип кровли
Толщина внешних стен
205 мм
Толщина внутренних перегородок
150 мм
Улучшенные шумовые характеристики
Да
Вентиляция
3 варианта
Веранда
Нет
Водоотведение
Локальные очистные сооружения
Водоснабжение
Индивидуальное
Высота дома
5 м
Высота потолков
2.8 м

Планировка

Фасад дома

Александр

Закажите выезд инженера

Александр

Выездной инженер
Закажите выезд инженера для точной диагностики и профессиональной консультации по инженерным системам. Специалист приедет в удобное время, проведёт осмотр, рассчитает стоимость работ и подберёт оптимальные решения для вашего дома.


    Похожие проекты

    Ипотека и
    рассрочка
    Каменный одноэтажный дом с террасой 71 «Комфорт»
    Стоимость от:
    166 980
    Проект от: 31 050
    Этажей 1
    Санузлы 1
    Спальни 1
    Смотреть
    Ипотека и
    рассрочка
    Жилой дом s-75
    Стоимость от:
    6 464 920
    Проект от: 38 700
    Этажей 1
    Санузлы 1
    Спальни 2
    Смотреть
    Ипотека и
    рассрочка
    Одноэтажный дом «Дзен 68»
    Стоимость от:
    4 802 160
    Проект от: 30 600
    Этажей 1
    Санузлы 1
    Спальни 2
    Смотреть
    Ипотека и
    рассрочка
    Династия
    Стоимость от:
    7 495 800
    Проект от: 56 250
    Этажей 2
    Санузлы 3
    Спальни 4
    Смотреть
    Ипотека и
    рассрочка
    Остфольд
    Стоимость от:
    7 184 100
    Проект от: 47 250
    Этажей 1
    Санузлы 2
    Спальни 3
    Смотреть
    Ипотека и
    рассрочка
    Серия Олимп, загородный дом Рея
    Стоимость от:
    6 708 900
    Проект от: 42 750
    Этажей 1
    Санузлы 2
    Спальни 3
    Смотреть

    Как узнать стоимость дома

    back
    Оставляете заявку
    Вы заполняете форму на сайте или звоните нам. Менеджер Лайвкрафт связывается с вами для уточнения деталей: тип дома, площадь, материалы, участок строительства.
    back
    Консультация и подбор решения
    Наш специалист помогает выбрать оптимальный тип дома и конструкцию с учётом бюджета, сроков и целей — будь то дом для постоянного проживания или дача.
    back
    Расчёт предварительной стоимости
    Инженер делает первичный расчёт стоимости строительства по вашим параметрам: фундамент, коробка, кровля, отделка. Вы получаете смету с разбивкой по этапам.
    back
    Корректировка и утверждение сметы
    При необходимости вносим изменения — например, замену материалов или сокращение этапов. После согласования формируется окончательная фиксированная смета.
    back
    Заключение договора и старт работ
    После утверждения сметы заключаем официальный договор с гарантией. Вы получаете прозрачный график и точную стоимость — без скрытых расходов.

    Заказать конусльтацию по:TALO NEO 73-3

    Фото 1 TALO NEO 73-3


      Наши
      контакты

      Дмитров
      Опорный проезд 28Б
      (индустриальный парк Ниагара)
      9:00 до 18:00

      Корзина