4.9
Рейтинг на основании 120 отзывов
Дмитров
Опорный проезд 28Б
(индустриальный парк Ниагара)
Бренд "Дмитров-Дело" c 2008 года на рынке строительства в Дмитрове
Звоните 9:00 до 18:00 8 (915) 055-33-61
Бренд "Дмитров-Дело" c 2008 года на рынке строительства в Дмитрове

ТКБ-203

Стоимость проекта от:
91 350 ₽
БЕСПЛАТНО! ПРИ ЗАКАЗЕ СТРОИТЕЛЬСТВА
Стоимость строительства от:
14 688 720 ₽
Артикул ART-13469
Дата 25.12.2025
Архитектурный стиль Европейский
Количество надземных этажей 2
Круглогодичное проживание Да
Площадь дома 203 м2
Санузлы 3
Спальни 3

Описание

Погрузитесь в уют и элегантность европейского стиля с нашим предложением – дом ТКБ‑203. В этом двухэтажном творении каждый элемент продуман до последнего сантиметра: от крепкой керамической блоковой кладки, которая гарантирует тепло и защиту от неблагоприятных погодных условий, до уютного, четырёхскатного (вальмового) крыша, которая придаёт дому живописный профиль и обеспечивает обильный свет. Ваша семья будет наслаждаться круглогодичным комфортом, ведь дом разработан с учётом всех климатических особенностей вашего региона. Особое внимание в доме отведено практичности и приятным моментам жизни. Пристроенный гараж и крытая автостоянка позволяют вам не беспокоиться о погоде, а собственная терраса создаёт уголок для релакса – будь то семейный ужин под открытым небом или тихие часы чтения. Несмотря на современный функционал, дом сохраняет атмосферу уюта: отсутствие балконов и веранд делает интерьер более закрытым и защищённым, а просторные комнаты, оптимально расположенные между двумя этажами, создают ощущение свободы и простора. Именно этот подход к дизайну и строительству делает ТКБ‑203 идеальным выбором для тех, кто ценит сочетание европейской эстетики и практической комфортабельности в одном жилье. Он ждёт вас, чтобы стать тем местом, куда вы захотите возвращаться снова и снова.

Характеристики дома

Архитектурный стиль
Автоматизированное регулирование параметров теплоносителя
Нет
Балконы/лоджии
Отсутствуют
Чердачное помещение
Нет
Датчики протечки воды
Нет
Эксплуатируемая или зеленая кровля
Нет
Электроснабжение
Центральное
Газоснабжение
Центральное
Изоляция воздушного шума
Да
Камин
Нет
Класс энергоэффективности
-
Класс энергосбережения
-
Количество надземных этажей
2
Круглогодичное проживание
Да
Материал кровли
Металлочерепица
Материал перекрытий
Сборные железобетонные
Материал внешних стен
Материал внутренних перегородок
Блочные
Модульное строительство с конструкциями заводского изготовления
Нет
Объем надземной части
1476 м3
Основной материал фасадов
Искусственный камень
Отопление
Индивидуальное
Площадь дома
203 м2
Площадь застройки
155 м2
Подвальное помещение
Нет
Показатель компактности здания
-
Приборы учета тепловой энергии
Нет
Пристроенный гараж/крытая автостоянка
Да
Противопожарная система
Нет
Санузлы
3
Совмещенная кухня-гостиная
Да
Спальни
3
Терраса
Да
Тип фундамента
Свайно-ростверковый
Толщина внешних стен
380 мм
Толщина внутренних перегородок
100 мм
Улучшенные шумовые характеристики
Да
Вентиляция
Естественная
Веранда
Нет
Водоотведение
Локальные очистные сооружения
Водоснабжение
Индивидуальное
Высота дома
8.9 м
Высота потолков
2.8 м

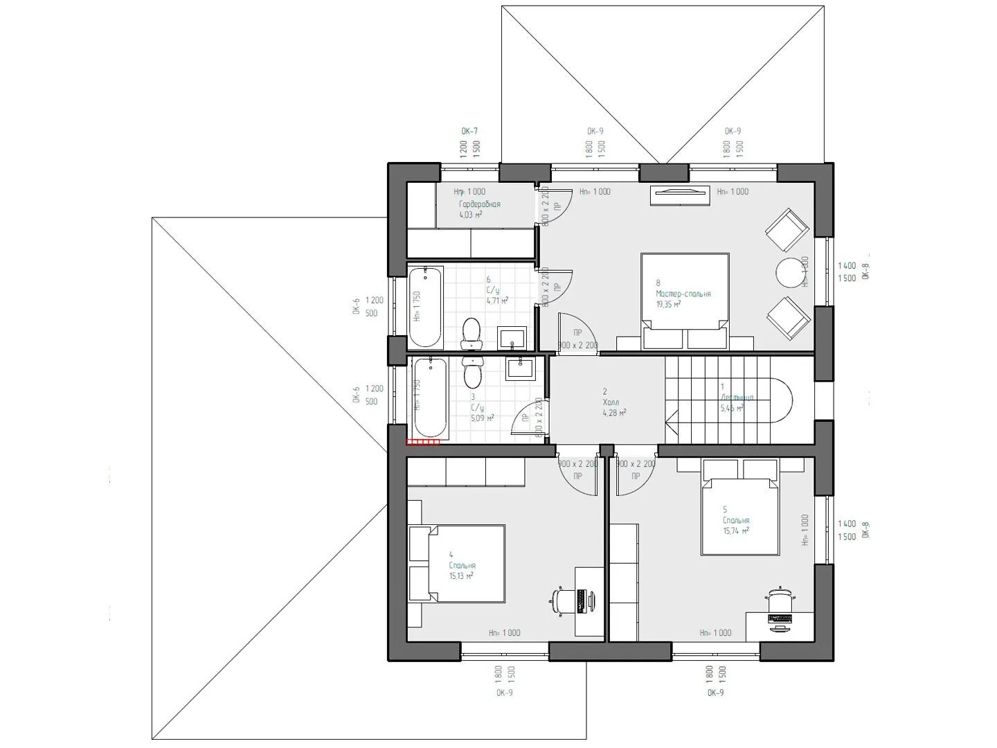
Планировка

Фасад дома

Александр

Закажите выезд инженера

Александр

Выездной инженер
Закажите выезд инженера для точной диагностики и профессиональной консультации по инженерным системам. Специалист приедет в удобное время, проведёт осмотр, рассчитает стоимость работ и подберёт оптимальные решения для вашего дома.


    Похожие проекты

    Ипотека и
    рассрочка
    Килпи газобетон
    Стоимость от:
    6 638 280
    Проект от: 42 300
    Этажей 1
    Санузлы 2
    Спальни 3
    Смотреть
    Ипотека и
    рассрочка
    Дом Зигрид 150
    Стоимость от:
    8 340 750
    Проект от: 67 500
    Этажей 1
    Санузлы 1
    Спальни 2
    Смотреть
    Ипотека и
    рассрочка
    Одноэтажный дом СД_0924
    Стоимость от:
    225 060
    Проект от: 41 850
    Этажей 1
    Санузлы 1
    Спальни 3
    Смотреть
    Ипотека и
    рассрочка
    ОД-75
    Стоимость от:
    5 474 700
    Проект от: 33 750
    Этажей 1
    Санузлы 3
    Спальни 2
    Смотреть
    Ипотека и
    рассрочка
    Двухэтажный дом в скандинавском стиле «Светлячок»
    Стоимость от:
    9 929 160
    Проект от: 76 050
    Этажей 2
    Санузлы 2
    Спальни 4
    Смотреть
    Ипотека и
    рассрочка
    Мадэра 120
    Стоимость от:
    7 616 400
    Проект от: 54 000
    Этажей 1
    Санузлы 2
    Спальни 3
    Смотреть

    Как узнать стоимость дома

    back
    Оставляете заявку
    Вы заполняете форму на сайте или звоните нам. Менеджер Лайвкрафт связывается с вами для уточнения деталей: тип дома, площадь, материалы, участок строительства.
    back
    Консультация и подбор решения
    Наш специалист помогает выбрать оптимальный тип дома и конструкцию с учётом бюджета, сроков и целей — будь то дом для постоянного проживания или дача.
    back
    Расчёт предварительной стоимости
    Инженер делает первичный расчёт стоимости строительства по вашим параметрам: фундамент, коробка, кровля, отделка. Вы получаете смету с разбивкой по этапам.
    back
    Корректировка и утверждение сметы
    При необходимости вносим изменения — например, замену материалов или сокращение этапов. После согласования формируется окончательная фиксированная смета.
    back
    Заключение договора и старт работ
    После утверждения сметы заключаем официальный договор с гарантией. Вы получаете прозрачный график и точную стоимость — без скрытых расходов.

    Заказать конусльтацию по:ТКБ-203

    Фото 1 ТКБ-203


      Наши
      контакты

      Дмитров
      Опорный проезд 28Б
      (индустриальный парк Ниагара)
      9:00 до 18:00

      Корзина