4.9
Рейтинг на основании 120 отзывов
Дмитров
Опорный проезд 28Б
(индустриальный парк Ниагара)
Бренд "Дмитров-Дело" c 2008 года на рынке строительства в Дмитрове
Звоните 9:00 до 18:00 8 (915) 055-33-61
Бренд "Дмитров-Дело" c 2008 года на рынке строительства в Дмитрове

Томас 83

Стоимость проекта от:
37 350 ₽
Стоимость строительства от:
5 861 460 ₽
Артикул ART-12314
Дата 25.12.2025
Архитектурный стиль Классический
Количество надземных этажей 1
Круглогодичное проживание Да
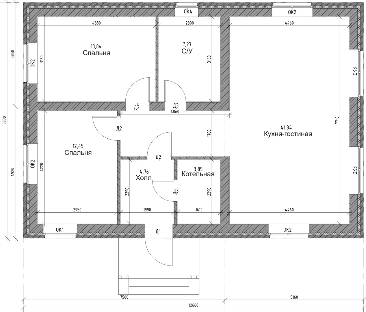
Площадь дома 83 м2
Санузлы 1
Спальни 2

Описание

**Томас 83 – дом, в котором классика встречается с комфортом** Приходите в уютный уголок, где традиционный стиль и современный комфорт образуют единое целое. На первом этаже вы найдёте просторную гостиную, открытая кухню и несколько светлых комнат, каждая из которых пропитана теплым, домашним светом. Пространство обустроено так, чтобы каждое окно смотрелось как картина, а двери открывали новый уровень уюта в любую погоду. Вечный комфорт — вот главное достоинство этого дома. Пастельные тона фасада, сделанные из керамзитобетонных блоков, обеспечивают отличную тепло- и звуковую изоляцию, а двойная скатная крыша легко отводит снег и дождь, сохраняя ваш дом в надлежащем состоянии в любое время года. Плюс — без лишних балконов и веранд, всё внимание сконцентрировано на уюте внутри, что делает каждое помещение идеальным для круглогодичного проживания. Выбирая «Томас 83», вы открываете дверь в семейный уют, в простор, где каждый уголок дышит надежностью и теплом. Поставьте свои семейные планы на фундамент, который сочетается с классическим дизайном и практичными материалами. Это ваш шанс купить дом, где всё сделано так, чтобы каждый день начинался и заканчивался с улыбкой.

Характеристики дома

Архитектурный стиль
Классический
Автоматизированное регулирование параметров теплоносителя
Нет
Балконы/лоджии
Отсутствуют
Чердачное помещение
Нет
Датчики протечки воды
Нет
Эксплуатируемая или зеленая кровля
Нет
Электроснабжение
Центральное
Газоснабжение
Не предусмотрено
Изоляция воздушного шума
Да
Камин
Нет
Класс энергоэффективности
-
Класс энергосбережения
-
Количество надземных этажей
1
Круглогодичное проживание
Да
Материал кровли
Металлочерепица
Материал перекрытий
Деревянные
Материал внешних стен
Керамзитобетонные блоки
Материал внутренних перегородок
Блочные
Модульное строительство с конструкциями заводского изготовления
Нет
Объем надземной части
123 м3
Основной материал фасадов
Облицовочный кирпич
Отопление
Индивидуальное
Площадь дома
83 м2
Площадь застройки
108 м2
Подвальное помещение
Нет
Показатель компактности здания
-
Приборы учета тепловой энергии
Нет
Пристроенный гараж/крытая автостоянка
Нет
Противопожарная система
Нет
Санузлы
1
Совмещенная кухня-гостиная
Да
Спальни
2
Терраса
Нет
Тип фундамента
Плитный
Тип кровли
Двускатная
Толщина внешних стен
300 мм
Толщина внутренних перегородок
100 мм
Улучшенные шумовые характеристики
Да
Вентиляция
Принудительная
Веранда
Нет
Водоотведение
Локальные очистные сооружения
Водоснабжение
Индивидуальное
Высота дома
5.8 м
Высота потолков
3 м

Планировка

Фасад дома

Александр

Закажите выезд инженера

Александр

Выездной инженер
Закажите выезд инженера для точной диагностики и профессиональной консультации по инженерным системам. Специалист приедет в удобное время, проведёт осмотр, рассчитает стоимость работ и подберёт оптимальные решения для вашего дома.


    Похожие проекты

    Ипотека и
    рассрочка
    Проект одноэтажного дома «ДИМИЯ-ГЧх» 15,0х9,0
    Стоимость от:
    6 842 000
    Проект от: 45 000
    Этажей 1
    Санузлы 1
    Спальни 3
    Смотреть
    Ипотека и
    рассрочка
    Дом Каролина
    Стоимость от:
    4 682 205
    Проект от: 36 450
    Этажей 1
    Санузлы 1
    Спальни 2
    Смотреть
    Ипотека и
    рассрочка
    Ивановка 147
    Стоимость от:
    10 440 980
    Проект от: 62 550
    Этажей 1
    Санузлы 2
    Спальни 3
    Смотреть
    Ипотека и
    рассрочка
    Одноэтажный дом в стиле Хайтек №1
    Стоимость от:
    10 717 740
    Проект от: 66 150
    Этажей 1
    Санузлы 2
    Спальни 3
    Смотреть
    Ипотека и
    рассрочка
    Дом из сборного железобетона FP-8 «Optima»
    Стоимость от:
    7 115 680
    Проект от: 46 800
    Этажей 1
    Санузлы 1
    Спальни 3
    Смотреть
    Ипотека и
    рассрочка
    Дачник 7х9
    Стоимость от:
    5 688 960
    Проект от: 42 750
    Этажей 2
    Санузлы 1
    Спальни 3
    Смотреть

    Как узнать стоимость дома

    back
    Оставляете заявку
    Вы заполняете форму на сайте или звоните нам. Менеджер Лайвкрафт связывается с вами для уточнения деталей: тип дома, площадь, материалы, участок строительства.
    back
    Консультация и подбор решения
    Наш специалист помогает выбрать оптимальный тип дома и конструкцию с учётом бюджета, сроков и целей — будь то дом для постоянного проживания или дача.
    back
    Расчёт предварительной стоимости
    Инженер делает первичный расчёт стоимости строительства по вашим параметрам: фундамент, коробка, кровля, отделка. Вы получаете смету с разбивкой по этапам.
    back
    Корректировка и утверждение сметы
    При необходимости вносим изменения — например, замену материалов или сокращение этапов. После согласования формируется окончательная фиксированная смета.
    back
    Заключение договора и старт работ
    После утверждения сметы заключаем официальный договор с гарантией. Вы получаете прозрачный график и точную стоимость — без скрытых расходов.

    Заказать конусльтацию по:Томас 83

    Фото 1 Томас 83


      Наши
      контакты

      Дмитров
      Опорный проезд 28Б
      (индустриальный парк Ниагара)
      9:00 до 18:00