4.9
Рейтинг на основании 120 отзывов
Дмитров
Опорный проезд 28Б
(индустриальный парк Ниагара)
Бренд "Дмитров-Дело" c 2008 года на рынке строительства в Дмитрове
Звоните 9:00 до 18:00 8 (915) 055-33-61
Бренд "Дмитров-Дело" c 2008 года на рынке строительства в Дмитрове

Уникальный

Стоимость проекта от:
41 850 ₽
Стоимость строительства от:
5 375 865 ₽
Артикул ART-16061
Дата 25.12.2025
Архитектурный стиль Шале
Количество надземных этажей 1
Круглогодичное проживание Да
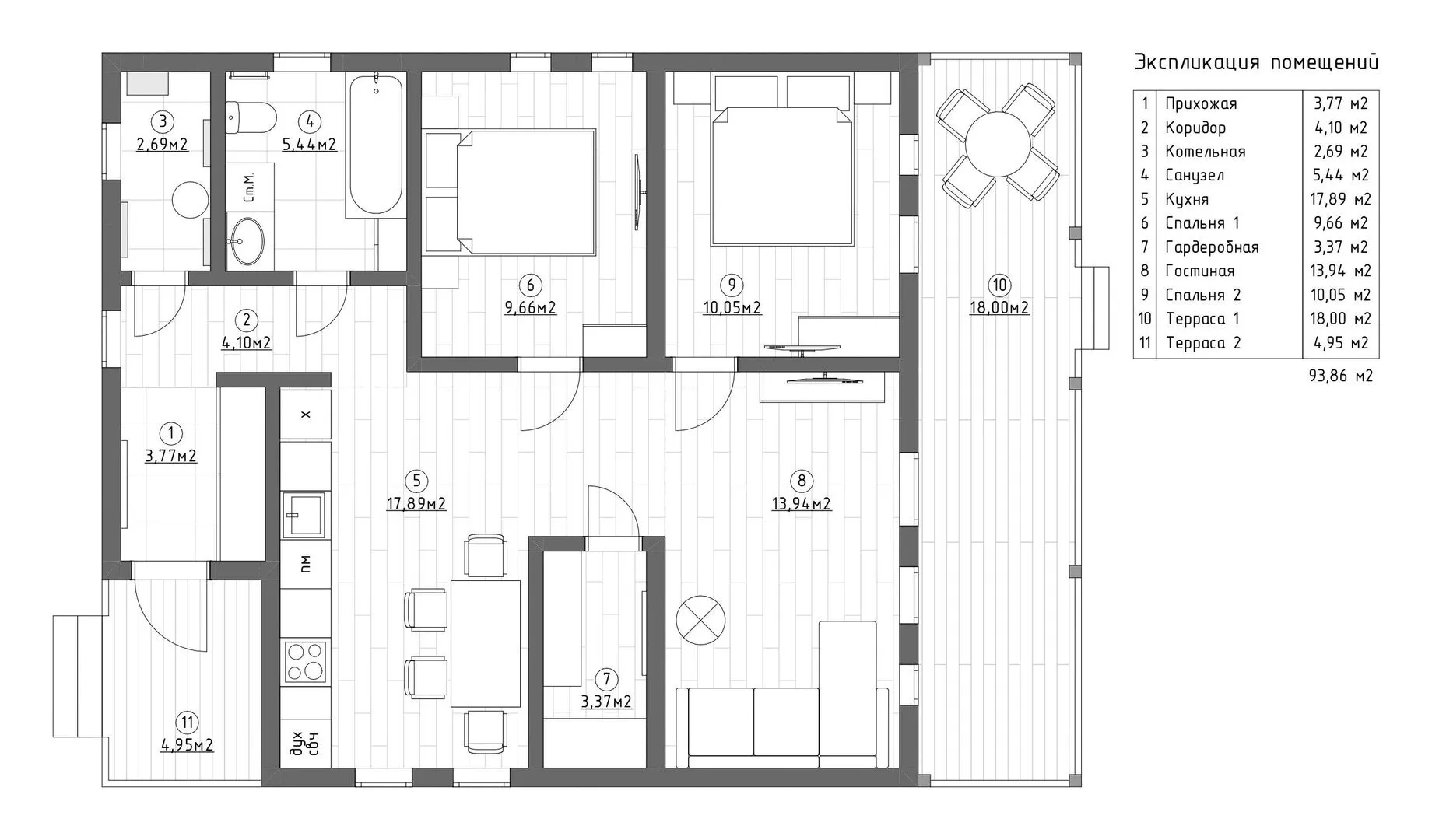
Площадь дома 93 м2
Санузлы 1
Спальни 2

Описание

Вам предстоит открыть дверь в уют, где каждая деталь создана с заботой о комфорте и природе. Этот одиннадцатый дом в стиле шале обнимает вас тепло деревянного каркаса и мягкими оттенками, словно швейцарская долина, но уже в городской застройке. Его планировка с одним надземным этажом — идеальное решение для круглогодичного проживания: в холодные зимы вы будете наслаждаться огненным очагом, а в летние летние вечера — открывать два балкона, чтобы впустить свежий ветер. На заднем дворе открывается просторная терраса, где можно устроить барбекю или просто отдохнуть, послушав звуки прохладной ночи. Шале-стиль здесь сочетается с новаторскими решениями: комбинированная кровля скрывает структуру от непогоды, придавая дому элегантный силуэт. Внешний вид в деревянных каркасных стенах гармонирует с окружающей природой, создавая чувство спокойствия и вечного очарования. Даже в отсутствие пристроенного гаража вы найдете удобство: свободные пространства позволяют организовать парковку под крыши или воспользоваться общественными транспортными средствами так, как вам удобно. Если вы мечтаете о доме, где каждый уголок говорит о качественном проживании и непревзойденной эстетике, этот шале станет вашим идеальным убежищем. Просторные балконы и терраса приглашают к раздумьям, а простота и практичность без лишних конструкций обеспечат вам безмятежный отдых в любое время года. Это не просто здание — это место, где жизнь встречается с уютом и гармонией.

Характеристики дома

Архитектурный стиль
Шале
Автоматизированное регулирование параметров теплоносителя
Да
Балконы/лоджии
2
Чердачное помещение
Нет
Датчики протечки воды
Нет
Эксплуатируемая или зеленая кровля
Нет
Электроснабжение
Центральное
Газоснабжение
Центральное
Изоляция воздушного шума
Да
Камин
Нет
Класс энергоэффективности
-
Класс энергосбережения
-
Количество надземных этажей
1
Круглогодичное проживание
Да
Материал кровли
Металлочерепица
Материал перекрытий
Деревянные
Материал внешних стен
Деревянные каркасные
Материал внутренних перегородок
Деревянные
Модульное строительство с конструкциями заводского изготовления
Нет
Объем надземной части
-
Основной материал фасадов
Дерево
Отопление
Индивидуальное
Площадь дома
93 м2
Площадь застройки
98 м2
Подвальное помещение
Нет
Показатель компактности здания
-
Приборы учета тепловой энергии
Да
Пристроенный гараж/крытая автостоянка
Нет
Противопожарная система
Нет
Санузлы
1
Совмещенная кухня-гостиная
Да
Спальни
2
Терраса
Да
Тип фундамента
Свайно-винтовой
Тип кровли
Комбинированная
Толщина внешних стен
240 мм
Толщина внутренних перегородок
180 мм
Улучшенные шумовые характеристики
Да
Вентиляция
Принудительная
Веранда
Нет
Водоотведение
Локальные очистные сооружения
Водоснабжение
Индивидуальное
Высота дома
-
Высота потолков
2.6 м

Планировка

Фасад дома

Александр

Закажите выезд инженера

Александр

Выездной инженер
Закажите выезд инженера для точной диагностики и профессиональной консультации по инженерным системам. Специалист приедет в удобное время, проведёт осмотр, рассчитает стоимость работ и подберёт оптимальные решения для вашего дома.


    Похожие проекты

    Ипотека и
    рассрочка
    Каркасный дом Елагино 21НШ08.00
    Стоимость от:
    11 268 720
    Проект от: 84 600
    Этажей 2
    Санузлы 3
    Спальни 4
    Смотреть
    Ипотека и
    рассрочка
    Проект Двухэтажный дом с эркером
    Стоимость от:
    10 273 680
    Проект от: 66 150
    Этажей 2
    Санузлы 2
    Спальни 3
    Смотреть
    Ипотека и
    рассрочка
    SVOI-24-1-83 Одноэтажный дом 83 кв.м.
    Стоимость от:
    6 239 860
    Проект от: 37 350
    Этажей 1
    Санузлы 1
    Спальни 2
    Смотреть
    Ипотека и
    рассрочка
    Отдых
    Стоимость от:
    3 011 580
    Проект от: 24 300
    Этажей 1
    Санузлы 1
    Спальни 1
    Смотреть
    Ипотека и
    рассрочка
    «Арлингтон (К-1-38)»
    Стоимость от:
    2 762 880
    Проект от: 21 150
    Этажей 2
    Санузлы 1
    Спальни 1
    Смотреть
    Ипотека и
    рассрочка
    Двухэтажный дом «Лугано» 113 м2
    Стоимость от:
    8 187 120
    Проект от: 50 850
    Этажей 2
    Санузлы 2
    Спальни 4
    Смотреть

    Как узнать стоимость дома

    back
    Оставляете заявку
    Вы заполняете форму на сайте или звоните нам. Менеджер Лайвкрафт связывается с вами для уточнения деталей: тип дома, площадь, материалы, участок строительства.
    back
    Консультация и подбор решения
    Наш специалист помогает выбрать оптимальный тип дома и конструкцию с учётом бюджета, сроков и целей — будь то дом для постоянного проживания или дача.
    back
    Расчёт предварительной стоимости
    Инженер делает первичный расчёт стоимости строительства по вашим параметрам: фундамент, коробка, кровля, отделка. Вы получаете смету с разбивкой по этапам.
    back
    Корректировка и утверждение сметы
    При необходимости вносим изменения — например, замену материалов или сокращение этапов. После согласования формируется окончательная фиксированная смета.
    back
    Заключение договора и старт работ
    После утверждения сметы заключаем официальный договор с гарантией. Вы получаете прозрачный график и точную стоимость — без скрытых расходов.

    Заказать конусльтацию по:Уникальный

    Фото 1 Уникальный


      Наши
      контакты

      Дмитров
      Опорный проезд 28Б
      (индустриальный парк Ниагара)
      9:00 до 18:00