4.9
Рейтинг на основании 120 отзывов
Дмитров
Опорный проезд 28Б
(индустриальный парк Ниагара)
Бренд "Дмитров-Дело" c 2008 года на рынке строительства в Дмитрове
Звоните 9:00 до 18:00 8 (915) 055-33-61
Бренд "Дмитров-Дело" c 2008 года на рынке строительства в Дмитрове

«Ваш дом #1»

Стоимость проекта от:
36 000 ₽
БЕСПЛАТНО! ПРИ ЗАКАЗЕ СТРОИТЕЛЬСТВА
Стоимость строительства от:
5 649 600 ₽
Артикул ART-6172
Дата 26.12.2025
Архитектурный стиль Классический
Количество надземных этажей 1
Круглогодичное проживание Да
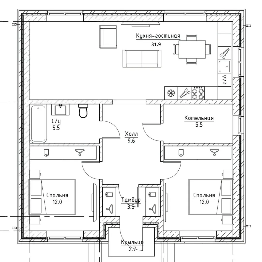
Площадь дома 80 м2
Санузлы 1
Спальни 2

Описание

«Ваш дом № 1» — это классическое решение для тех, кто ценит уют и гармонию в каждой детали. Дом единого уровня придаёт ощущения простора и тепла: ровные линии фасада, симметричные окна и изящные карнизы создают строгую, но при этом приветливую среду. Благодаря выбору керамзитобетонных блоков зовариваются надёжность и отличная теплоизоляция, а вальмовая полированная крыша гарантирует долговечность и ровное распределение нагрузки. Внутреннее пространство продумано до мелочей: широкие коридоры, светлые комнаты и функциональная планировка позволяют обустроить дом под любой образ жизни. Одноэтажный вариант обеспечивает комфортное путешествие по дому без лестниц, а круглогодичная пригодность подтверждает качество монтажа и материалы, использованные как в стенах, так и в крыше. Вместо балконов и веранд дом раскрывает свой внутренний мир: здесь каждый уголок становится пространством для отдыха или творчества. Этот «Дом № 1» приглашает в атмосферу спокойствия и стабильности. Его классический дизайн легко впишется в любой городский ландшафт, а отсутствие лишних поверхностей, как порты гаражей, подбирает именно для жителей, которые ценят чистую архитектуру и простоту. Воспользуйтесь шансом обрести дом, где традиции сочетаются с современными материалами, а уют и тепло обретут своё место в каждой комнате.

Характеристики дома

Архитектурный стиль
Автоматизированное регулирование параметров теплоносителя
Нет
Балконы/лоджии
Отсутствуют
Чердачное помещение
Нет
Датчики протечки воды
Нет
Эксплуатируемая или зеленая кровля
Нет
Электроснабжение
Центральное
Газоснабжение
Не предусмотрено
Изоляция воздушного шума
Нет
Камин
Нет
Класс энергоэффективности
-
Класс энергосбережения
-
Количество надземных этажей
1
Круглогодичное проживание
Да
Материал кровли
Металлочерепица
Материал перекрытий
Иной вид материалов перекрытий
Материал внешних стен
Материал внутренних перегородок
Блочные
Модульное строительство с конструкциями заводского изготовления
Нет
Объем надземной части
476 м3
Основной материал фасадов
Облицовочный кирпич
Отопление
Индивидуальное
Площадь дома
80 м2
Площадь застройки
105 м2
Подвальное помещение
Нет
Показатель компактности здания
-
Приборы учета тепловой энергии
Нет
Пристроенный гараж/крытая автостоянка
Нет
Противопожарная система
Нет
Санузлы
1
Совмещенная кухня-гостиная
Да
Спальни
2
Терраса
Нет
Тип фундамента
Плитный
Толщина внешних стен
490 мм
Толщина внутренних перегородок
120 мм
Улучшенные шумовые характеристики
Нет
Вентиляция
Естественная
Веранда
Нет
Водоотведение
Локальные очистные сооружения
Водоснабжение
Индивидуальное
Высота дома
6 м
Высота потолков
2.8 м

Планировка

Фасад дома

Александр

Закажите выезд инженера

Александр

Выездной инженер
Закажите выезд инженера для точной диагностики и профессиональной консультации по инженерным системам. Специалист приедет в удобное время, проведёт осмотр, рассчитает стоимость работ и подберёт оптимальные решения для вашего дома.


    Похожие проекты

    Ипотека и
    рассрочка
    24Д-Б7.5х9.5
    Стоимость от:
    6 003 840
    Проект от: 40 950
    Этажей 2
    Санузлы 2
    Спальни 3
    Смотреть
    Ипотека и
    рассрочка
    Каркасный дом «Лион»
    Стоимость от:
    5 565 120
    Проект от: 43 200
    Этажей 1
    Санузлы 1
    Спальни 3
    Смотреть
    Ипотека и
    рассрочка
    Загородный дом АР Каипы
    Стоимость от:
    10 215 920
    Проект от: 61 200
    Этажей 1
    Санузлы 2
    Спальни 3
    Смотреть
    Ипотека и
    рассрочка
    ЭКОДОМ
    Стоимость от:
    4 814 480
    Проект от: 28 800
    Этажей 1
    Санузлы 1
    Спальни 2
    Смотреть
    Ипотека и
    рассрочка
    Двухэтажный каменный дом «Веритате»
    Стоимость от:
    9 776 400
    Проект от: 60 750
    Этажей 2
    Санузлы 1
    Спальни 2
    Смотреть
    Ипотека и
    рассрочка
    Дом Партнер — 1
    Стоимость от:
    6 450 620
    Проект от: 36 450
    Этажей 1
    Санузлы 2
    Спальни 4
    Смотреть

    Как узнать стоимость дома

    back
    Оставляете заявку
    Вы заполняете форму на сайте или звоните нам. Менеджер Лайвкрафт связывается с вами для уточнения деталей: тип дома, площадь, материалы, участок строительства.
    back
    Консультация и подбор решения
    Наш специалист помогает выбрать оптимальный тип дома и конструкцию с учётом бюджета, сроков и целей — будь то дом для постоянного проживания или дача.
    back
    Расчёт предварительной стоимости
    Инженер делает первичный расчёт стоимости строительства по вашим параметрам: фундамент, коробка, кровля, отделка. Вы получаете смету с разбивкой по этапам.
    back
    Корректировка и утверждение сметы
    При необходимости вносим изменения — например, замену материалов или сокращение этапов. После согласования формируется окончательная фиксированная смета.
    back
    Заключение договора и старт работ
    После утверждения сметы заключаем официальный договор с гарантией. Вы получаете прозрачный график и точную стоимость — без скрытых расходов.

    Заказать конусльтацию по:«Ваш дом #1»

    Фото 1 «Ваш дом #1»


      Наши
      контакты

      Дмитров
      Опорный проезд 28Б
      (индустриальный парк Ниагара)
      9:00 до 18:00

      Корзина