4.9
Рейтинг на основании 120 отзывов
Дмитров
Опорный проезд 28Б
(индустриальный парк Ниагара)
Бренд "Дмитров-Дело" c 2008 года на рынке строительства в Дмитрове
Звоните 9:00 до 18:00 8 (915) 055-33-61
Бренд "Дмитров-Дело" c 2008 года на рынке строительства в Дмитрове

VH «118-13» Сангрия

Стоимость проекта от:
20 250 ₽
БЕСПЛАТНО! ПРИ ЗАКАЗЕ СТРОИТЕЛЬСТВА
Стоимость строительства от:
2 757 150 ₽
Артикул ART-17854
Дата 26.12.2025
Архитектурный стиль Классический
Количество надземных этажей 1
Круглогодичное проживание Да
Площадь дома 45 м2
Санузлы 1
Спальни 2

Описание

Нежный классический дом VH “118‑13” — это истинное воплощение гармонии между уютом и простотой. Одна надземная элегантная этажа спроектирована таким образом, чтобы каждый уголок напоминал о timeless beauty и приглашаем о теплом семейном тепле. Современные SIP‑панели, обвязанные классическими крамбами, обеспечивают превосходную тепло- и звукозапорную изоляцию, позволяя наслаждаться комфортом при любой погоде: от холодных зимних вечеров до летних летних дней. Внутри ощущается чистота линий и простота пространств: открытая светлая площадка, куда легко вписываются как семейный обед, так и уютный вечер у камина. Уникальное чердачное пространство привлекает своей многофункциональностью — от хранения до небольшого уютного уголка для творчества. Ограниченные внешние зоны – отсутствие балконов и веранд – только подчёркивают классический характер дома, превращая его в тихую гавань от городской суеты. VH “118‑13” в гармонии с двускатной крышей создает образ уюта и надёжности, а его недоступный к гаражу дизайн мотивирует владельца на создание личного уголка уличного пространства. Здесь каждый гость, прибывая в атмосферу изысканного стиля и тепла, ощущает, что нашёл свой особенный уголок в мире.

Характеристики дома

Архитектурный стиль
Автоматизированное регулирование параметров теплоносителя
Да
Балконы/лоджии
Отсутствуют
Чердачное помещение
Да
Датчики протечки воды
Нет
Эксплуатируемая или зеленая кровля
Нет
Электроснабжение
Центральное
Газоснабжение
Центральное
Изоляция воздушного шума
Да
Камин
Нет
Класс энергоэффективности
A
Класс энергосбережения
A
Количество надземных этажей
1
Круглогодичное проживание
Да
Материал кровли
Металлические листовые гофрированные профили
Материал перекрытий
Деревянные
Материал внешних стен
Материал внутренних перегородок
Гипсокартонные
Модульное строительство с конструкциями заводского изготовления
Нет
Объем надземной части
279 м3
Основной материал фасадов
Фасадная плитка
Отопление
Индивидуальное
Площадь дома
45 м2
Площадь застройки
60 м2
Подвальное помещение
Нет
Показатель компактности здания
1
Приборы учета тепловой энергии
Да
Пристроенный гараж/крытая автостоянка
Нет
Противопожарная система
Нет
Санузлы
1
Совмещенная кухня-гостиная
Да
Спальни
2
Терраса
Нет
Тип фундамента
Свайный
Тип кровли
Толщина внешних стен
174 мм
Толщина внутренних перегородок
124 мм
Улучшенные шумовые характеристики
Да
Вентиляция
Естественная
Веранда
Нет
Водоотведение
Локальные очистные сооружения
Водоснабжение
Центральное
Высота дома
5.5 м
Высота потолков
2.8 м

Планировка

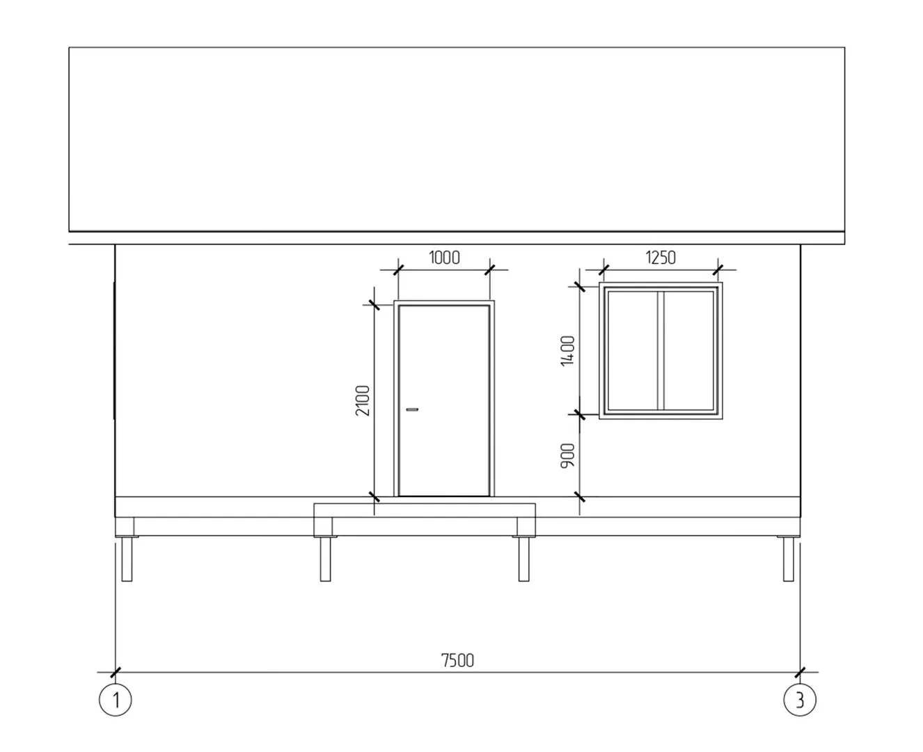
Фасад дома

Александр

Закажите выезд инженера

Александр

Выездной инженер
Закажите выезд инженера для точной диагностики и профессиональной консультации по инженерным системам. Специалист приедет в удобное время, проведёт осмотр, рассчитает стоимость работ и подберёт оптимальные решения для вашего дома.


    Похожие проекты

    Ипотека и
    рассрочка
    Загородный дом PRO-86
    Стоимость от:
    7 389 360
    Проект от: 48 600
    Этажей 1
    Санузлы 1
    Спальни 3
    Смотреть
    Ипотека и
    рассрочка
    Одноэтажный дом Смарт 9х9
    Стоимость от:
    5 256 240
    Проект от: 32 400
    Этажей 1
    Санузлы 1
    Спальни 2
    Смотреть
    Ипотека и
    рассрочка
    Индивидуальный жилой дом Терем
    Стоимость от:
    321 860
    Проект от: 59 850
    Этажей 1
    Санузлы 2
    Спальни 3
    Смотреть
    Ипотека и
    рассрочка
    Каркасный дом Aria
    Стоимость от:
    5 458 420
    Проект от: 38 700
    Этажей 1
    Санузлы 1
    Спальни 3
    Смотреть
    Ипотека и
    рассрочка
    Никс
    Стоимость от:
    4 237 200
    Проект от: 27 000
    Этажей 1
    Санузлы 1
    Спальни 2
    Смотреть
    Ипотека и
    рассрочка
    Коттедж 19
    Стоимость от:
    8 898 120
    Проект от: 56 700
    Этажей 1
    Санузлы 1
    Спальни 2
    Смотреть

    Как узнать стоимость дома

    back
    Оставляете заявку
    Вы заполняете форму на сайте или звоните нам. Менеджер Лайвкрафт связывается с вами для уточнения деталей: тип дома, площадь, материалы, участок строительства.
    back
    Консультация и подбор решения
    Наш специалист помогает выбрать оптимальный тип дома и конструкцию с учётом бюджета, сроков и целей — будь то дом для постоянного проживания или дача.
    back
    Расчёт предварительной стоимости
    Инженер делает первичный расчёт стоимости строительства по вашим параметрам: фундамент, коробка, кровля, отделка. Вы получаете смету с разбивкой по этапам.
    back
    Корректировка и утверждение сметы
    При необходимости вносим изменения — например, замену материалов или сокращение этапов. После согласования формируется окончательная фиксированная смета.
    back
    Заключение договора и старт работ
    После утверждения сметы заключаем официальный договор с гарантией. Вы получаете прозрачный график и точную стоимость — без скрытых расходов.

    Заказать конусльтацию по:VH «118-13» Сангрия

    Фото 1 VH «118-13» Сангрия


      Наши
      контакты

      Дмитров
      Опорный проезд 28Б
      (индустриальный парк Ниагара)
      9:00 до 18:00

      Корзина