4.9
Рейтинг на основании 120 отзывов
Дмитров
Опорный проезд 28Б
(индустриальный парк Ниагара)
Бренд "Дмитров-Дело" c 2008 года на рынке строительства в Дмитрове
Звоните 9:00 до 18:00 8 (915) 055-33-61
Бренд "Дмитров-Дело" c 2008 года на рынке строительства в Дмитрове

Виктория 45

Стоимость проекта от:
20 250 ₽
Стоимость строительства от:
3 078 900 ₽
Артикул ART-14593
Дата 25.12.2025
Архитектурный стиль Американский/Канадский
Количество надземных этажей 1
Круглогодичное проживание Да
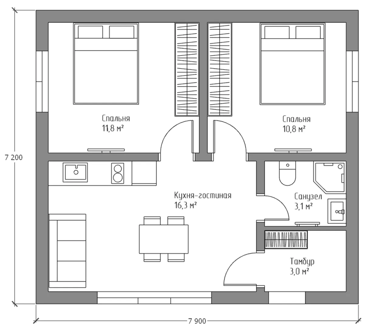
Площадь дома 45 м2
Санузлы 1
Спальни 2

Описание

**Виктория 45 – уют в сердце города, где комфорт встречает стиль** Погрузитесь в атмосферу уюта в доме, где каждое пространство пропитано качеством и продуманной планировкой. На первом этаже расположился единственный уровень, открывающий полный контроль над внешней средой: приёмные зоны, полностью отшумленные стены и изолированные от холода окна создают ощущение тепла и уединения. Весь дом рассчитан на круглогодичное проживание, поэтому даже в зимние и влажные периоды он будет светлым и сухим, поддерживая идеальный микроклимат. **Американско‑канадская элегантность и функциональность** Виктория 45 выполнена в лаконичном американско‑канадском стиле, где строгие линии сочетаются с мягкими оттенками, придавая интерьеру тепло и гостеприимство. Внешние стены, обработанные газобетонными блоками, обеспечивают надежную звуко- и теплоизоляцию, а односкатная крыша не только подчёркивает современный дизайн, но и защищает от непогоды. Без балконов и веранд, но благодаря продуманной планировке и просторным комнатам, вы ощутите лёгкость дыхания и простоту в повседневной жизни. **Удобство и безопасность** Дом не содержит прицепного гаража или пристроенной автостоянки, но для посетителей предусмотрено удобное место для парковки рядом с входом. Отсутствие чердака и террасы позволяет сосредоточиться на функциональном жилом пространстве, а отсутствие балконов освобождает от дополнительных расходов на обслуживание. Виктория 45 – ваш новый дом, где каждый день начинается с ощущения лёгкости, уюта и уверенности, что ваш дом полностью готов к любым жизненным событиям.

Характеристики дома

Архитектурный стиль
Американский/Канадский
Автоматизированное регулирование параметров теплоносителя
Нет
Балконы/лоджии
Отсутствуют
Чердачное помещение
Нет
Датчики протечки воды
Нет
Эксплуатируемая или зеленая кровля
Нет
Электроснабжение
Центральное
Газоснабжение
Не предусмотрено
Изоляция воздушного шума
Нет
Камин
Нет
Класс энергоэффективности
-
Класс энергосбережения
-
Количество надземных этажей
1
Круглогодичное проживание
Да
Материал кровли
Металлические листовые гофрированные профили
Материал перекрытий
Деревянные
Материал внешних стен
Газобетонные блоки
Материал внутренних перегородок
Блочные
Модульное строительство с конструкциями заводского изготовления
Нет
Объем надземной части
200 м3
Основной материал фасадов
Сайдинг
Отопление
Индивидуальное
Площадь дома
45 м2
Площадь застройки
57 м2
Подвальное помещение
Нет
Показатель компактности здания
-
Приборы учета тепловой энергии
Нет
Пристроенный гараж/крытая автостоянка
Нет
Противопожарная система
Нет
Санузлы
1
Совмещенная кухня-гостиная
Да
Спальни
2
Терраса
Нет
Тип фундамента
Плитный
Тип кровли
Односкатная
Толщина внешних стен
300 мм
Толщина внутренних перегородок
200 мм
Улучшенные шумовые характеристики
Нет
Вентиляция
2 варианта
Веранда
Нет
Водоотведение
Локальные очистные сооружения
Водоснабжение
Индивидуальное
Высота дома
4.2 м
Высота потолков
2.8 м

Планировка

Фасад дома

Александр

Закажите выезд инженера

Александр

Выездной инженер
Закажите выезд инженера для точной диагностики и профессиональной консультации по инженерным системам. Специалист приедет в удобное время, проведёт осмотр, рассчитает стоимость работ и подберёт оптимальные решения для вашего дома.


    Похожие проекты

    Ипотека и
    рассрочка
    Деревянный дом Тим 84,2м2
    Стоимость от:
    4 869 480
    Проект от: 37 800
    Этажей 1
    Санузлы 1
    Спальни 2
    Смотреть
    Ипотека и
    рассрочка
    Двухэтажный дом КР-1121-3
    Стоимость от:
    6 526 860
    Проект от: 49 050
    Этажей 2
    Санузлы 2
    Спальни 4
    Смотреть
    Ипотека и
    рассрочка
    24-708 Кадро
    Стоимость от:
    6 376 700
    Проект от: 49 500
    Этажей 1
    Санузлы 1
    Спальни 3
    Смотреть
    Ипотека и
    рассрочка
    Мечта 92
    Стоимость от:
    6 512 000
    Проект от: 45 000
    Этажей 1
    Санузлы 1
    Спальни 3
    Смотреть
    Ипотека и
    рассрочка
    Дом Европа
    Стоимость от:
    6 886 080
    Проект от: 41 400
    Этажей 2
    Санузлы 1
    Спальни 1
    Смотреть
    Ипотека и
    рассрочка
    Светлый 36
    Стоимость от:
    2 080 980
    Проект от: 16 200
    Этажей 1
    Санузлы 1
    Спальни 2
    Смотреть

    Как узнать стоимость дома

    back
    Оставляете заявку
    Вы заполняете форму на сайте или звоните нам. Менеджер Лайвкрафт связывается с вами для уточнения деталей: тип дома, площадь, материалы, участок строительства.
    back
    Консультация и подбор решения
    Наш специалист помогает выбрать оптимальный тип дома и конструкцию с учётом бюджета, сроков и целей — будь то дом для постоянного проживания или дача.
    back
    Расчёт предварительной стоимости
    Инженер делает первичный расчёт стоимости строительства по вашим параметрам: фундамент, коробка, кровля, отделка. Вы получаете смету с разбивкой по этапам.
    back
    Корректировка и утверждение сметы
    При необходимости вносим изменения — например, замену материалов или сокращение этапов. После согласования формируется окончательная фиксированная смета.
    back
    Заключение договора и старт работ
    После утверждения сметы заключаем официальный договор с гарантией. Вы получаете прозрачный график и точную стоимость — без скрытых расходов.

    Заказать конусльтацию по:Виктория 45

    Фото 1 Виктория 45


      Наши
      контакты

      Дмитров
      Опорный проезд 28Б
      (индустриальный парк Ниагара)
      9:00 до 18:00