4.9
Рейтинг на основании 120 отзывов
Дмитров
Опорный проезд 28Б
(индустриальный парк Ниагара)
Бренд "Дмитров-Дело" c 2008 года на рынке строительства в Дмитрове
Звоните 9:00 до 18:00 8 (915) 055-33-61
Бренд "Дмитров-Дело" c 2008 года на рынке строительства в Дмитрове

«Волжанин 5К» 6х9 м. с террасой 2х9 м

Стоимость проекта от:
44 550 ₽
БЕСПЛАТНО! ПРИ ЗАКАЗЕ СТРОИТЕЛЬСТВА
Стоимость строительства от:
5 937 360 ₽
Артикул ART-13344
Дата 25.12.2025
Архитектурный стиль Классический
Количество надземных этажей 2
Круглогодичное проживание Да
Площадь дома 99 м2
Санузлы 1
Спальни 3

Описание

В «Волжанин 5К» каждый метр превратился в уголок уюта и стиля. Здание, выполненное в классическом стиле, сочетает в себе простоту и элегантность: строгие линии деревянного каркаса, ровный двускатный крыша создают атмосферу домашнего тепла, а два надземных этажа позволяют максимально использовать пространство. Идеально подойдет как для семейной жизни, так и для тех, кто ищет комфортное и спокойное жильё в сердце города. Круглогодичное проживание – ключевой козырь этой модели. Внутренние помещения обставлены так, чтобы сохранять тепло зимой и прохладу летом, а просторные комнаты позволяют не только жить, но и создавать уютную атмосферу домашнего очага. Отсутствие балконов и веранд не мешает насладиться природой: принадлежащая терраса 2 × 9 м станет вашим личным маленьким садом, где можно уединиться с чашкой кофе, читать книгу или просто любоваться видом, открываясь под вечерний закат. Терраса и классический интерьер делают дом «Волжанин 5К» привлекательным для тех, кто ценит простоту, функциональность и комфорт. Забудьте о лишних сложностях – здесь каждый элемент служит только вам. Если вы ищете место, где каждая деталь говорит о заботе и внимании к деталям, это именно ваш выбор.

Характеристики дома

Архитектурный стиль
Автоматизированное регулирование параметров теплоносителя
Нет
Балконы/лоджии
Отсутствуют
Чердачное помещение
Нет
Датчики протечки воды
Нет
Эксплуатируемая или зеленая кровля
Нет
Электроснабжение
Не предусмотрено
Газоснабжение
Не предусмотрено
Изоляция воздушного шума
Нет
Камин
Нет
Класс энергоэффективности
-
Класс энергосбережения
-
Количество надземных этажей
2
Круглогодичное проживание
Да
Материал кровли
Металлочерепица
Материал перекрытий
Деревянные
Материал внешних стен
Материал внутренних перегородок
Деревянные
Модульное строительство с конструкциями заводского изготовления
Нет
Объем надземной части
351 м3
Основной материал фасадов
Дерево
Отопление
Не предусмотрено
Площадь дома
99 м2
Площадь застройки
72 м2
Подвальное помещение
Нет
Показатель компактности здания
-
Приборы учета тепловой энергии
Нет
Пристроенный гараж/крытая автостоянка
Нет
Противопожарная система
Нет
Санузлы
1
Совмещенная кухня-гостиная
Да
Спальни
3
Терраса
Да
Тип фундамента
Свайный
Тип кровли
Толщина внешних стен
200 мм
Толщина внутренних перегородок
100 мм
Улучшенные шумовые характеристики
Нет
Вентиляция
Естественная
Веранда
Нет
Водоотведение
Не предусмотрено
Водоснабжение
Не предусмотрено
Высота дома
6.9 м
Высота потолков
2.7 м

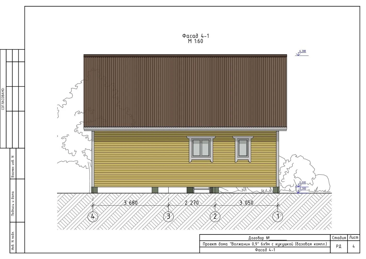
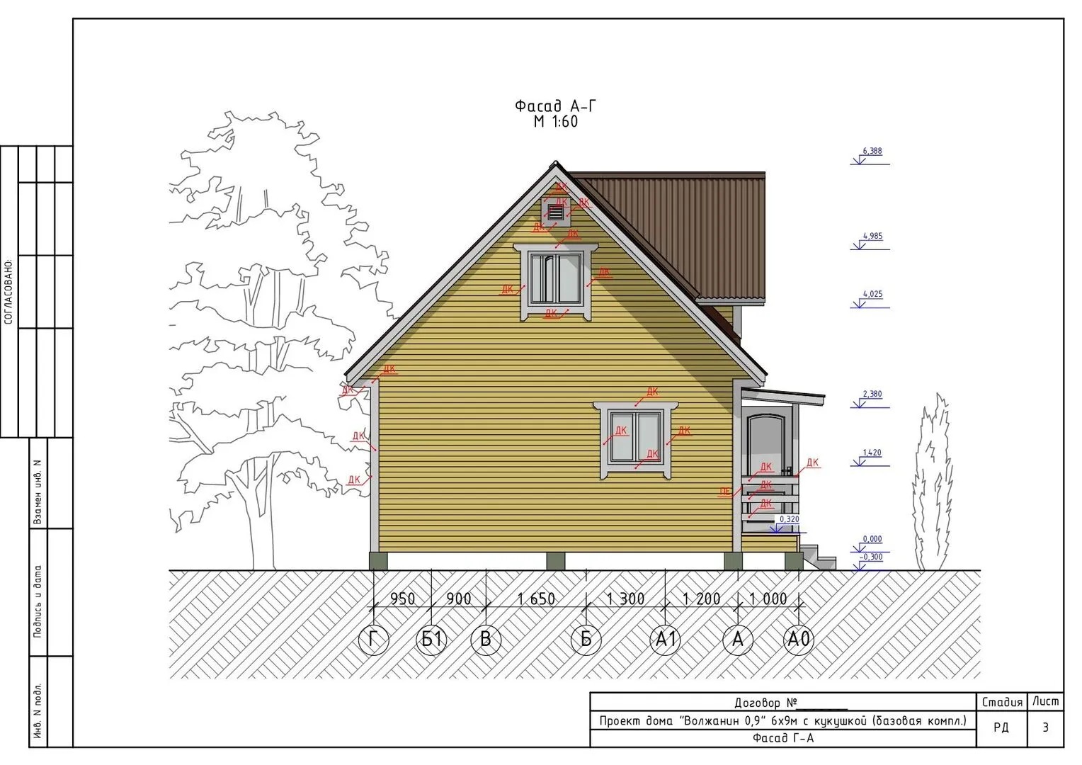
Планировка

Фасад дома

Александр

Закажите выезд инженера

Александр

Выездной инженер
Закажите выезд инженера для точной диагностики и профессиональной консультации по инженерным системам. Специалист приедет в удобное время, проведёт осмотр, рассчитает стоимость работ и подберёт оптимальные решения для вашего дома.


    Похожие проекты

    Ипотека и
    рассрочка
    Симгоры
    Стоимость от:
    9 045 960
    Проект от: 69 300
    Этажей 2
    Санузлы 1
    Спальни 4
    Смотреть
    Ипотека и
    рассрочка
    Грата Барн 2-140
    Стоимость от:
    11 139 360
    Проект от: 69 300
    Этажей 2
    Санузлы 2
    Спальни 4
    Смотреть
    Ипотека и
    рассрочка
    Проект загородного дома NHD-132
    Стоимость от:
    8 331 600
    Проект от: 51 750
    Этажей 2
    Санузлы 3
    Спальни 3
    Смотреть
    Ипотека и
    рассрочка
    Одноэтажный «Эконом-100»
    Стоимость от:
    7 076 740
    Проект от: 43 650
    Этажей 1
    Санузлы 2
    Спальни 3
    Смотреть
    Ипотека и
    рассрочка
    Сканди 23-24КД
    Стоимость от:
    10 751 520
    Проект от: 73 350
    Этажей 2
    Санузлы 2
    Спальни 4
    Смотреть
    Ипотека и
    рассрочка
    SVOI-115 кв.м.
    Стоимость от:
    8 640 500
    Проект от: 51 750
    Этажей 1
    Санузлы 2
    Спальни 3
    Смотреть

    Как узнать стоимость дома

    back
    Оставляете заявку
    Вы заполняете форму на сайте или звоните нам. Менеджер Лайвкрафт связывается с вами для уточнения деталей: тип дома, площадь, материалы, участок строительства.
    back
    Консультация и подбор решения
    Наш специалист помогает выбрать оптимальный тип дома и конструкцию с учётом бюджета, сроков и целей — будь то дом для постоянного проживания или дача.
    back
    Расчёт предварительной стоимости
    Инженер делает первичный расчёт стоимости строительства по вашим параметрам: фундамент, коробка, кровля, отделка. Вы получаете смету с разбивкой по этапам.
    back
    Корректировка и утверждение сметы
    При необходимости вносим изменения — например, замену материалов или сокращение этапов. После согласования формируется окончательная фиксированная смета.
    back
    Заключение договора и старт работ
    После утверждения сметы заключаем официальный договор с гарантией. Вы получаете прозрачный график и точную стоимость — без скрытых расходов.

    Заказать конусльтацию по:«Волжанин 5К» 6х9 м. с террасой 2х9 м

    Фото 1 «Волжанин 5К» 6х9 м. с террасой 2х9 м


      Наши
      контакты

      Дмитров
      Опорный проезд 28Б
      (индустриальный парк Ниагара)
      9:00 до 18:00

      Корзина