4.9
Рейтинг на основании 120 отзывов
Дмитров
Опорный проезд 28Б
(индустриальный парк Ниагара)
Бренд "Дмитров-Дело" c 2008 года на рынке строительства в Дмитрове
Звоните 9:00 до 18:00 8 (915) 055-33-61
Бренд "Дмитров-Дело" c 2008 года на рынке строительства в Дмитрове

Загородный дом

Стоимость проекта от:
42 300 ₽
БЕСПЛАТНО! ПРИ ЗАКАЗЕ СТРОИТЕЛЬСТВА
Стоимость строительства от:
7 035 360 ₽
Артикул ART-18329
Дата 26.12.2025
Архитектурный стиль Классический
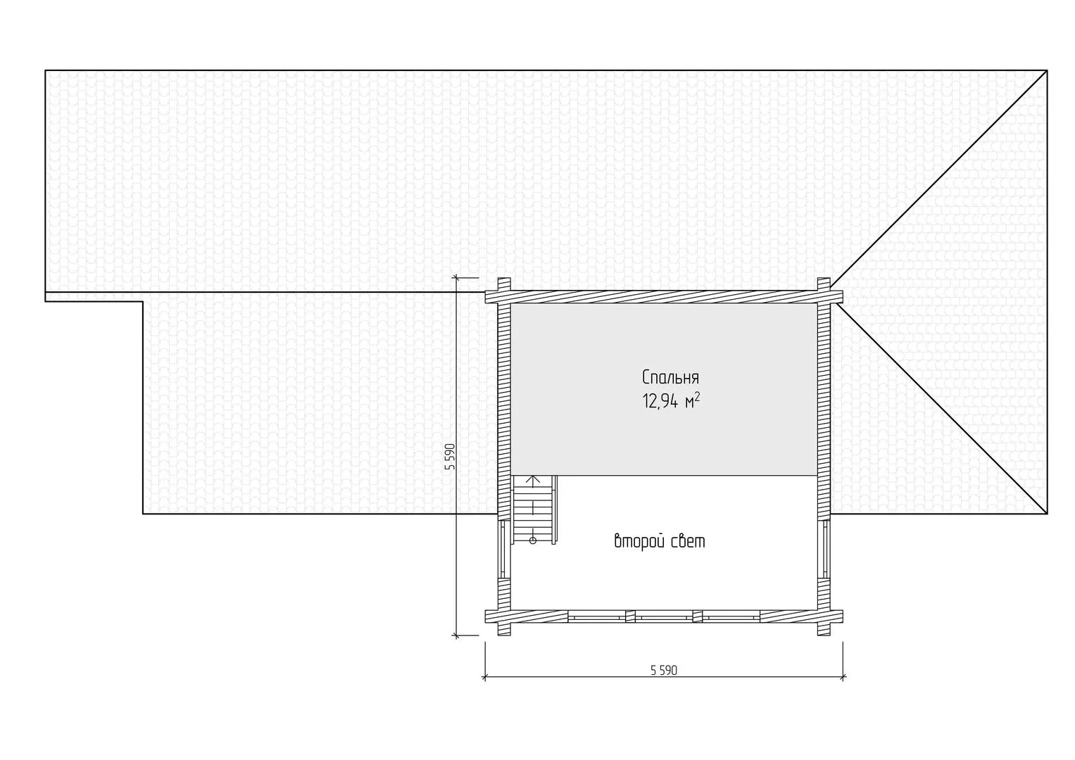
Количество надземных этажей 2
Круглогодичное проживание Да
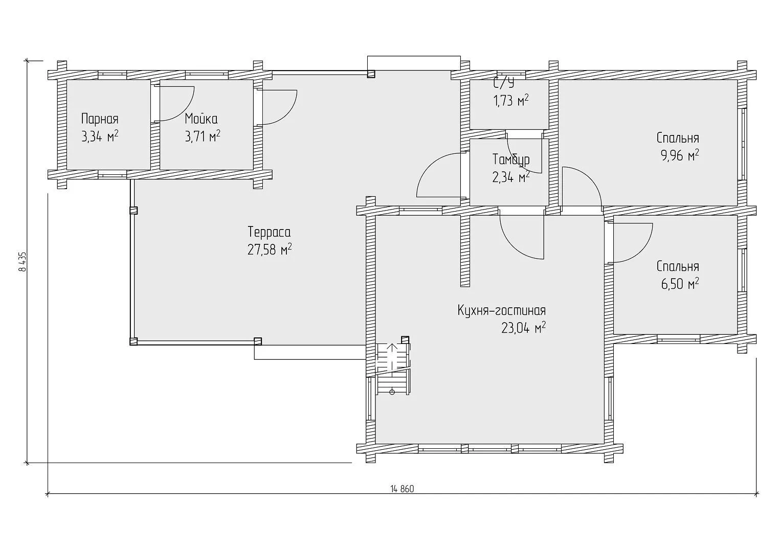
Площадь дома 94 м2
Санузлы 1
Спальни 3

Описание

Едва можно назвать этот загородный дом просто «квартирой‑свободной». Он представляет собой истинный произведение классической архитектуры, где каждый элемент – от высочного, четко очертенного крыше до аккуратно обрезанного печёного бруса – вдохновлен временем, прошедшим в гармонии с природой. Две надземные строчки, спроектированные так, чтобы в течение любого сезона они обеспечивают тепло и свет, делают обитание здесь круглогодичным удовольствием. Вход в уютный внутренний двор, где мягкий колокольчик двери напоминает о начале новой истории, а наружные стены из полированного бруса, словно живьё, хранят тепло в холодных ветра́х и прохладой осени. Отсутствие веранды, балконов и пристроенного гаража смягчается практичностью просторного крытого помещения – чердаче, где каждая полка подстраивается под нужды семьи, будь то хранилище сена, книги или детские игрушки. Ощущение простора усиливается благодаря яркой тропичной террасе, где можно провести вечер под звёздами, наблюдая за светом, который в течение дня проникает сквозь широкую панель. А уникальная вальмовая крыша из четырёх склонов не только придает зданию изысканную silhouette в рассветном свете, но и позволяет собирать дождевую воду, добавляя функциональности к его красоте. Этот дом – идеальное сочетание традиционализма и удобства современного живения. Если вам хочется обрести уголок спокойствия, где каждый день начинается и заканчивается ароматом хвои и свежего воздуха, где тепло в спальнях согревает душу даже в самую холодную зиму, то этот загородный дом подойдёт как раз для вас. Уникальное сочетание классического стиля, натуральных материалов и практичных деталей создаёт атмосферу уюта и надёжности, которые остаются неизменными и спустя годы. Вы не просто покупаете недвижимость – вы инвестируете в пространство, где будет воспитываться семья, а воспоминания останутся на всю жизнь.

Характеристики дома

Архитектурный стиль
Автоматизированное регулирование параметров теплоносителя
Нет
Балконы/лоджии
Отсутствуют
Чердачное помещение
Да
Датчики протечки воды
Нет
Эксплуатируемая или зеленая кровля
Нет
Электроснабжение
Центральное
Газоснабжение
Индивидуальное
Изоляция воздушного шума
Нет
Камин
Нет
Класс энергоэффективности
-
Класс энергосбережения
-
Количество надземных этажей
2
Круглогодичное проживание
Да
Материал кровли
Металлочерепица
Материал перекрытий
Деревянные
Материал внешних стен
Материал внутренних перегородок
Деревянные
Модульное строительство с конструкциями заводского изготовления
Нет
Объем надземной части
125 м3
Основной материал фасадов
Дерево
Отопление
Индивидуальное
Площадь дома
94 м2
Площадь застройки
94 м2
Подвальное помещение
Нет
Показатель компактности здания
-
Приборы учета тепловой энергии
Нет
Пристроенный гараж/крытая автостоянка
Нет
Противопожарная система
Нет
Санузлы
1
Совмещенная кухня-гостиная
Да
Спальни
3
Терраса
Да
Тип фундамента
Ленточный
Толщина внешних стен
150 мм
Толщина внутренних перегородок
100 мм
Улучшенные шумовые характеристики
Нет
Вентиляция
Естественная
Веранда
Нет
Водоотведение
Локальные очистные сооружения
Водоснабжение
Индивидуальное
Высота дома
5.87 м
Высота потолков
2.6 м

Планировка

Фасад дома

Александр

Закажите выезд инженера

Александр

Выездной инженер
Закажите выезд инженера для точной диагностики и профессиональной консультации по инженерным системам. Специалист приедет в удобное время, проведёт осмотр, рассчитает стоимость работ и подберёт оптимальные решения для вашего дома.


    Похожие проекты

    Ипотека и
    рассрочка
    Каменный дом «Волна»
    Стоимость от:
    5 179 900
    Проект от: 29 250
    Этажей 1
    Санузлы 1
    Спальни 2
    Смотреть
    Ипотека и
    рассрочка
    Одноэтажный дом Швеция 130
    Стоимость от:
    11 107 250
    Проект от: 78 750
    Этажей 1
    Санузлы 2
    Спальни 4
    Смотреть
    Ипотека и
    рассрочка
    SB-98
    Стоимость от:
    6 776 520
    Проект от: 50 850
    Этажей 2
    Санузлы 2
    Спальни 3
    Смотреть
    Ипотека и
    рассрочка
    ТН-185
    Стоимость от:
    10 048 280
    Проект от: 73 800
    Этажей 1
    Санузлы 2
    Спальни 3
    Смотреть
    Ипотека и
    рассрочка
    Проект 4
    Стоимость от:
    9 016 560
    Проект от: 58 050
    Этажей 2
    Санузлы 3
    Спальни 4
    Смотреть
    Ипотека и
    рассрочка
    Одноэтажный дом с большой кухней-гостинной
    Стоимость от:
    5 712 300
    Проект от: 40 500
    Этажей 1
    Санузлы 1
    Спальни 3
    Смотреть

    Как узнать стоимость дома

    back
    Оставляете заявку
    Вы заполняете форму на сайте или звоните нам. Менеджер Лайвкрафт связывается с вами для уточнения деталей: тип дома, площадь, материалы, участок строительства.
    back
    Консультация и подбор решения
    Наш специалист помогает выбрать оптимальный тип дома и конструкцию с учётом бюджета, сроков и целей — будь то дом для постоянного проживания или дача.
    back
    Расчёт предварительной стоимости
    Инженер делает первичный расчёт стоимости строительства по вашим параметрам: фундамент, коробка, кровля, отделка. Вы получаете смету с разбивкой по этапам.
    back
    Корректировка и утверждение сметы
    При необходимости вносим изменения — например, замену материалов или сокращение этапов. После согласования формируется окончательная фиксированная смета.
    back
    Заключение договора и старт работ
    После утверждения сметы заключаем официальный договор с гарантией. Вы получаете прозрачный график и точную стоимость — без скрытых расходов.

    Заказать конусльтацию по:Загородный дом

    Фото 1 Загородный дом


      Наши
      контакты

      Дмитров
      Опорный проезд 28Б
      (индустриальный парк Ниагара)
      9:00 до 18:00

      Корзина