4.9
Рейтинг на основании 120 отзывов
Дмитров
Опорный проезд 28Б
(индустриальный парк Ниагара)
Бренд "Дмитров-Дело" c 2008 года на рынке строительства в Дмитрове
Звоните 9:00 до 18:00 8 (915) 055-33-61
Бренд "Дмитров-Дело" c 2008 года на рынке строительства в Дмитрове

Загородный дом АС-222

Стоимость проекта от:
101 250 ₽
БЕСПЛАТНО! ПРИ ЗАКАЗЕ СТРОИТЕЛЬСТВА
Стоимость строительства от:
15 721 200 ₽
Артикул ART-17148
Дата 26.12.2025
Архитектурный стиль Американский/Канадский
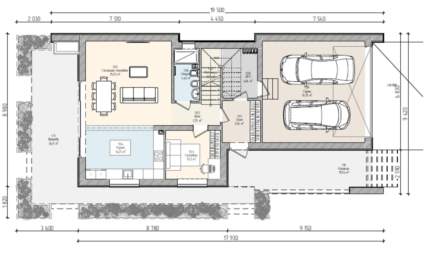
Количество надземных этажей 2
Круглогодичное проживание Да
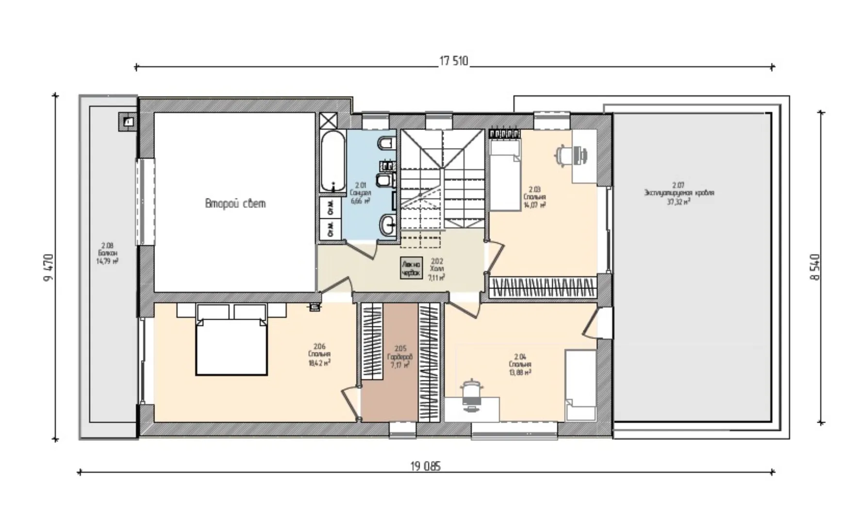
Площадь дома 225 м2
Санузлы 2
Спальни 3

Описание

Пусть ваш идеальный загородный дом окажется не просто построенной площадью, а настоящим убежищем для души и тела. Дом АС‑222, созданный в живописном американско‑канадском стиле, предлагает комфорт и тепло на протяжении всего года. Два надземных этажа открывают простор для семейных уединений, где в каждой комнате царит безмятежность, а высокие потолки и большие окна наполняют пространство естественным светом. Классический четырехскатный (вальмовой) слой крыши, покрытый качественными материалами, гарантирует надежность и эстетичную защиту от непогоды, а уютные веранда и лоджия создают непереводимый шанс насладиться летними вечерами и осенними рассадками на свежем воздухе. Ваш новый дом оснащён всеми удобствами для круглогодичного проживания: прицепленный гараж с крытой стоянкой обеспечивает безопасность автомобиля даже в самый холодный зимний день, а вместительное чердачное помещение открывает потенциал для личных проектов, мастерской или дополнительной спальни. Звёздный материал внешних стен – керамзитобетонные блоки – сочетается с изысканным американско‑канадским дизайном, создавая прочную, энергоэффективную стену, которая при сохранении тепла экономит ваши средства. В доме АС‑222 вы найдёте не простую недвижимость, а гармоничное пространство, где дизайн, качество строительства и современный комфорт объединяются в идеальное семейное убежище.

Характеристики дома

Архитектурный стиль
Автоматизированное регулирование параметров теплоносителя
Нет
Балконы/лоджии
1
Чердачное помещение
Да
Датчики протечки воды
Нет
Эксплуатируемая или зеленая кровля
Нет
Электроснабжение
Центральное
Газоснабжение
Индивидуальное
Изоляция воздушного шума
Нет
Камин
Нет
Класс энергоэффективности
-
Класс энергосбережения
-
Количество надземных этажей
2
Круглогодичное проживание
Да
Материал кровли
Металлочерепица
Материал перекрытий
Монолитные железобетонные
Материал внешних стен
Материал внутренних перегородок
Блочные
Модульное строительство с конструкциями заводского изготовления
Нет
Объем надземной части
1164 м3
Основной материал фасадов
Штукатурка
Отопление
Индивидуальное
Площадь дома
225 м2
Площадь застройки
219 м2
Подвальное помещение
Нет
Показатель компактности здания
-
Приборы учета тепловой энергии
Нет
Пристроенный гараж/крытая автостоянка
Да
Противопожарная система
Нет
Санузлы
2
Совмещенная кухня-гостиная
Да
Спальни
3
Терраса
Нет
Тип фундамента
Плитный
Толщина внешних стен
380 мм
Толщина внутренних перегородок
300 мм
Улучшенные шумовые характеристики
Нет
Вентиляция
Естественная
Веранда
Да
Водоотведение
Локальные очистные сооружения
Водоснабжение
Центральное
Высота дома
9.25 м
Высота потолков
3 м

Планировка

Фасад дома

Александр

Закажите выезд инженера

Александр

Выездной инженер
Закажите выезд инженера для точной диагностики и профессиональной консультации по инженерным системам. Специалист приедет в удобное время, проведёт осмотр, рассчитает стоимость работ и подберёт оптимальные решения для вашего дома.


    Похожие проекты

    Ипотека и
    рассрочка
    Рашель
    Стоимость от:
    8 436 120
    Проект от: 47 700
    Этажей 1
    Санузлы 1
    Спальни 2
    Смотреть
    Ипотека и
    рассрочка
    Дом из сборного железобетона FP-4 «Репино»
    Стоимость от:
    13 684 000
    Проект от: 90 000
    Этажей 1
    Санузлы 2
    Спальни 4
    Смотреть
    Ипотека и
    рассрочка
    Одноэтажный дом в классическом стиле Геката
    Стоимость от:
    9 251 220
    Проект от: 58 950
    Этажей 1
    Санузлы 2
    Спальни 3
    Смотреть
    Ипотека и
    рассрочка
    Одноэтажный дом LV-95
    Стоимость от:
    7 065 080
    Проект от: 42 300
    Этажей 1
    Санузлы 2
    Спальни 3
    Смотреть
    Ипотека и
    рассрочка
    Загородный дом-Z500
    Стоимость от:
    11 365 680
    Проект от: 70 650
    Этажей 2
    Санузлы 2
    Спальни 4
    Смотреть
    Ипотека и
    рассрочка
    Уютная классика Г-107
    Стоимость от:
    9 284 000
    Проект от: 54 000
    Этажей 1
    Санузлы 2
    Спальни 4
    Смотреть

    Как узнать стоимость дома

    back
    Оставляете заявку
    Вы заполняете форму на сайте или звоните нам. Менеджер Лайвкрафт связывается с вами для уточнения деталей: тип дома, площадь, материалы, участок строительства.
    back
    Консультация и подбор решения
    Наш специалист помогает выбрать оптимальный тип дома и конструкцию с учётом бюджета, сроков и целей — будь то дом для постоянного проживания или дача.
    back
    Расчёт предварительной стоимости
    Инженер делает первичный расчёт стоимости строительства по вашим параметрам: фундамент, коробка, кровля, отделка. Вы получаете смету с разбивкой по этапам.
    back
    Корректировка и утверждение сметы
    При необходимости вносим изменения — например, замену материалов или сокращение этапов. После согласования формируется окончательная фиксированная смета.
    back
    Заключение договора и старт работ
    После утверждения сметы заключаем официальный договор с гарантией. Вы получаете прозрачный график и точную стоимость — без скрытых расходов.

    Заказать конусльтацию по:Загородный дом АС-222

    Фото 1 Загородный дом АС-222


      Наши
      контакты

      Дмитров
      Опорный проезд 28Б
      (индустриальный парк Ниагара)
      9:00 до 18:00

      Корзина