4.9
Рейтинг на основании 120 отзывов
Дмитров
Опорный проезд 28Б
(индустриальный парк Ниагара)
Бренд "Дмитров-Дело" c 2008 года на рынке строительства в Дмитрове
Звоните 9:00 до 18:00 8 (915) 055-33-61
Бренд "Дмитров-Дело" c 2008 года на рынке строительства в Дмитрове

Загородный дом АС-228

Стоимость проекта от:
44 550 ₽
БЕСПЛАТНО! ПРИ ЗАКАЗЕ СТРОИТЕЛЬСТВА
Стоимость строительства от:
7 175 760 ₽
Артикул ART-17270
Дата 26.12.2025
Архитектурный стиль Европейский
Количество надземных этажей 2
Круглогодичное проживание Да
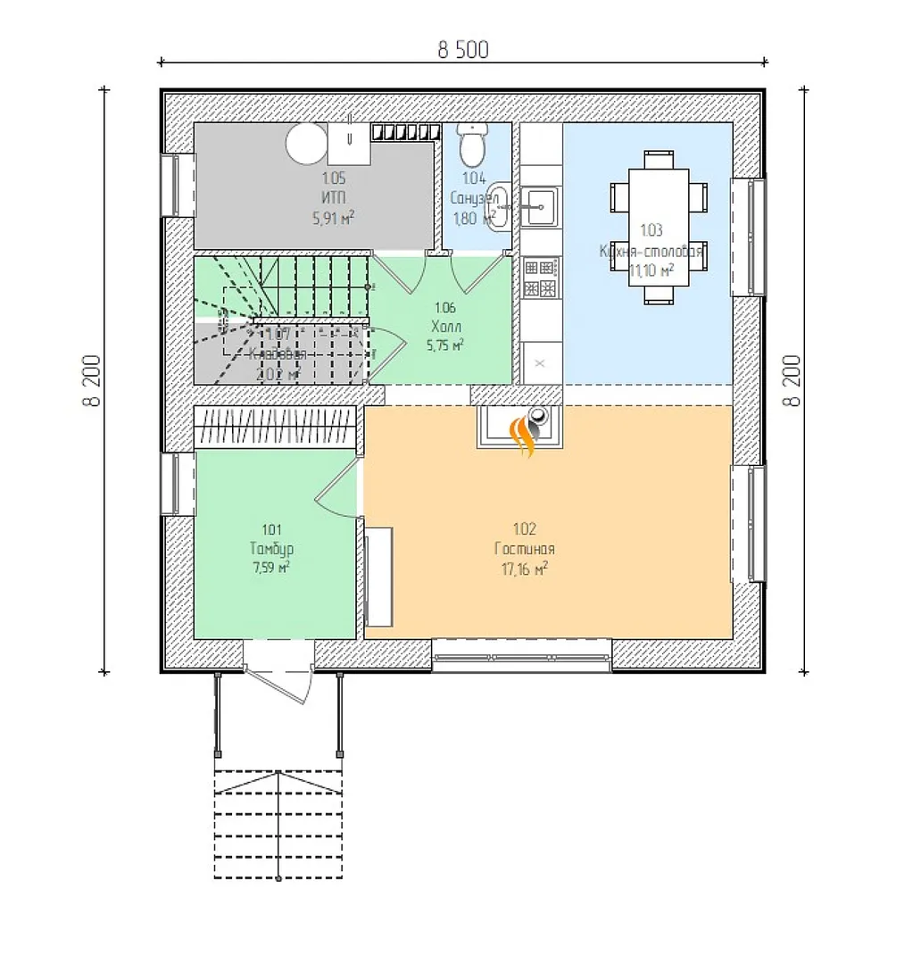
Площадь дома 99 м2
Санузлы 2
Спальни 3

Описание

Загородный дом АС‑228 – это воплощение европейской элегантности и простоты жизни в круглый год. Два надземных этажа простираются над уютной землёй, где каждая комната наполняется светом и воздухом, а просторный чердак открывает дополнительные возможности для хранения или творчества. Изящные газобетонные блоки внешних стен придают дому надёжность и теплоизоляцию, а двускатная крыша, выполненная в классическом европейском стиле, подчеркивает гармоничную линию и создаёт ощущение уюта. Дом предназначен для тех, кто ценит качество и спокойствие, отказываясь от лишних акцентов – балконов, веранд и гаражей. Вместо этого он дарит ощущение большего пространства внутри: открытые планы, высокие потолки и много функциональных квадратных метров делают каждую зону гибкой и практичной. Отсутствие гаража не ограничивает удобства: к дому можно прицепить небольшую коттеджную стоянку, а доступ к чердачному помещению позволяет использовать его как кабинет, спортзал или детскую комнату по вашему желанию. Погрузившись в атмосферу этого загородного дома, вы почувствуете, как современный комфорт сочетается с природными очарованиями. Это идеальное место для семейных встреч, отдыха и развития творческого потенциала, где каждый элемент гармонично вписывается в целостную картину уютной жизни вдали от городской суеты.

Характеристики дома

Архитектурный стиль
Автоматизированное регулирование параметров теплоносителя
Нет
Балконы/лоджии
Отсутствуют
Чердачное помещение
Да
Датчики протечки воды
Нет
Эксплуатируемая или зеленая кровля
Нет
Электроснабжение
Центральное
Газоснабжение
Индивидуальное
Изоляция воздушного шума
Нет
Камин
Да
Класс энергоэффективности
-
Класс энергосбережения
-
Количество надземных этажей
2
Круглогодичное проживание
Да
Материал кровли
Металлочерепица
Материал перекрытий
Иной вид материалов перекрытий
Материал внешних стен
Материал внутренних перегородок
Блочные
Модульное строительство с конструкциями заводского изготовления
Нет
Объем надземной части
487 м3
Основной материал фасадов
Фасадная плитка
Отопление
Индивидуальное
Площадь дома
99 м2
Площадь застройки
69 м2
Подвальное помещение
Нет
Показатель компактности здания
-
Приборы учета тепловой энергии
Нет
Пристроенный гараж/крытая автостоянка
Нет
Противопожарная система
Нет
Санузлы
2
Совмещенная кухня-гостиная
Нет
Спальни
3
Терраса
Нет
Тип фундамента
Свайно-ростверковый
Тип кровли
Толщина внешних стен
400 мм
Толщина внутренних перегородок
100 мм
Улучшенные шумовые характеристики
Нет
Вентиляция
Естественная
Веранда
Нет
Водоотведение
Локальные очистные сооружения
Водоснабжение
Центральное
Высота дома
8.24 м
Высота потолков
2.7 м

Планировка

Фасад дома

Александр

Закажите выезд инженера

Александр

Выездной инженер
Закажите выезд инженера для точной диагностики и профессиональной консультации по инженерным системам. Специалист приедет в удобное время, проведёт осмотр, рассчитает стоимость работ и подберёт оптимальные решения для вашего дома.


    Похожие проекты

    Ипотека и
    рассрочка
    Tobhous-90
    Стоимость от:
    6 355 800
    Проект от: 40 500
    Этажей 1
    Санузлы 2
    Спальни 3
    Смотреть
    Ипотека и
    рассрочка
    Двухэтажное шале 128м2
    Стоимость от:
    6 890 400
    Проект от: 49 500
    Этажей 2
    Санузлы 2
    Спальни 3
    Смотреть
    Ипотека и
    рассрочка
    Компактный дом ДМ-05
    Стоимость от:
    4 283 460
    Проект от: 29 250
    Этажей 2
    Санузлы 3
    Спальни 3
    Смотреть
    Ипотека и
    рассрочка
    Йонкерс
    Стоимость от:
    8 033 700
    Проект от: 54 900
    Этажей 2
    Санузлы 2
    Спальни 4
    Смотреть
    Ипотека и
    рассрочка
    Астра
    Стоимость от:
    9 575 280
    Проект от: 61 650
    Этажей 2
    Санузлы 2
    Спальни 4
    Смотреть
    Ипотека и
    рассрочка
    Волга
    Стоимость от:
    6 257 240
    Проект от: 39 150
    Этажей 1
    Санузлы 1
    Спальни 3
    Смотреть

    Как узнать стоимость дома

    back
    Оставляете заявку
    Вы заполняете форму на сайте или звоните нам. Менеджер Лайвкрафт связывается с вами для уточнения деталей: тип дома, площадь, материалы, участок строительства.
    back
    Консультация и подбор решения
    Наш специалист помогает выбрать оптимальный тип дома и конструкцию с учётом бюджета, сроков и целей — будь то дом для постоянного проживания или дача.
    back
    Расчёт предварительной стоимости
    Инженер делает первичный расчёт стоимости строительства по вашим параметрам: фундамент, коробка, кровля, отделка. Вы получаете смету с разбивкой по этапам.
    back
    Корректировка и утверждение сметы
    При необходимости вносим изменения — например, замену материалов или сокращение этапов. После согласования формируется окончательная фиксированная смета.
    back
    Заключение договора и старт работ
    После утверждения сметы заключаем официальный договор с гарантией. Вы получаете прозрачный график и точную стоимость — без скрытых расходов.

    Заказать конусльтацию по:Загородный дом АС-228

    Фото 1 Загородный дом АС-228


      Наши
      контакты

      Дмитров
      Опорный проезд 28Б
      (индустриальный парк Ниагара)
      9:00 до 18:00

      Корзина