4.9
Рейтинг на основании 120 отзывов
Дмитров
Опорный проезд 28Б
(индустриальный парк Ниагара)
Бренд "Дмитров-Дело" c 2008 года на рынке строительства в Дмитрове
Звоните 9:00 до 18:00 8 (915) 055-33-61
Бренд "Дмитров-Дело" c 2008 года на рынке строительства в Дмитрове

Загородный дом АС-258

Стоимость проекта от:
148 950 ₽
БЕСПЛАТНО! ПРИ ЗАКАЗЕ СТРОИТЕЛЬСТВА
Стоимость строительства от:
22 725 840 ₽
Артикул ART-17849
Дата 26.12.2025
Архитектурный стиль Хайтек
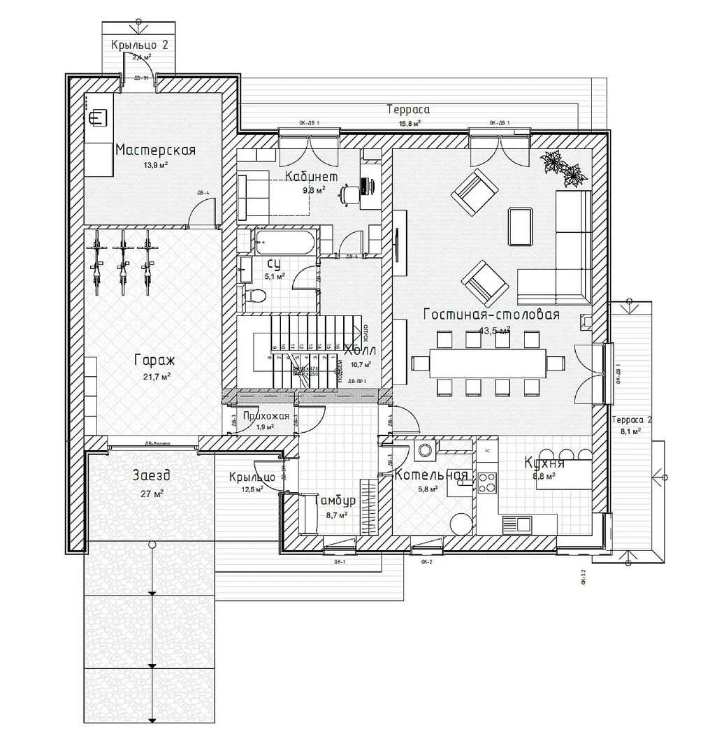
Количество надземных этажей 2
Круглогодичное проживание Да
Площадь дома 331 м2
Санузлы 3
Спальни 3

Описание

Добро пожаловать в современный загородный дом АС‑258 — ода стилю хай‑тек, где каждая деталь продумана для комфорта и уюта. Грациозные линии крыши и кристальные фасады из газобетонных блоков создают чистый, яркий и светлый облик, способный притянуть ваше внимание даже издалека. Два надземных этажа позволяют разбить пространство на зоны: просторный открытый холл, уютные семейные комнаты, современная кухня с панорамным видом на природу. Дом построен для круглогодичного проживания: утепленные стены и плоская крыша обеспечивают тепло зимой и прохладу летом, а два просторных балкона и терраса предлагают идеальные места для релакса и семейных вечеров под открытым небом. Пристроенный гараж и крытая автостоянка гарантируют безопасность вашего автомобиля и обеспечивают удобство в любой сезон. Кроме того, в здании предусмотрено чердачное помещение, которое легко можно превратить в гостевой номер, рабочий кабинет или уютную игротеку. Эстетика и практичность идут рука об руку в АС‑258: лаконичные формы, современные технологии и продуманная планировка делают этот загородный дом идеальным местом для тех, кто ценит живописный отдых в сочетании с высоким уровнем комфорта. Приглашаем вас открыть дверь в будущее вашего семейного уюта и открыть для себя этот уникальный уголок природы, где классический вид и современные тренды нашли идеальное сочетание.

Характеристики дома

Архитектурный стиль
Автоматизированное регулирование параметров теплоносителя
Нет
Балконы/лоджии
2
Чердачное помещение
Да
Датчики протечки воды
Нет
Эксплуатируемая или зеленая кровля
Нет
Электроснабжение
Центральное
Газоснабжение
Индивидуальное
Изоляция воздушного шума
Нет
Камин
Нет
Класс энергоэффективности
-
Класс энергосбережения
-
Количество надземных этажей
2
Круглогодичное проживание
Да
Материал кровли
ПВХ мембраны
Материал перекрытий
Монолитные железобетонные
Материал внешних стен
Материал внутренних перегородок
Блочные
Модульное строительство с конструкциями заводского изготовления
Нет
Объем надземной части
450 м3
Основной материал фасадов
Штукатурка
Отопление
Индивидуальное
Площадь дома
331 м2
Площадь застройки
220 м2
Подвальное помещение
Нет
Показатель компактности здания
-
Приборы учета тепловой энергии
Нет
Пристроенный гараж/крытая автостоянка
Да
Противопожарная система
Нет
Санузлы
3
Совмещенная кухня-гостиная
Да
Спальни
3
Терраса
Да
Тип фундамента
Плитный
Тип кровли
Толщина внешних стен
400 мм
Толщина внутренних перегородок
100 мм
Улучшенные шумовые характеристики
Нет
Вентиляция
Естественная
Веранда
Нет
Водоотведение
Локальные очистные сооружения
Водоснабжение
Центральное
Высота дома
6.9 м
Высота потолков
2.78 м

Планировка

Фасад дома

Александр

Закажите выезд инженера

Александр

Выездной инженер
Закажите выезд инженера для точной диагностики и профессиональной консультации по инженерным системам. Специалист приедет в удобное время, проведёт осмотр, рассчитает стоимость работ и подберёт оптимальные решения для вашего дома.


    Похожие проекты

    Ипотека и
    рассрочка
    Суслов24
    Стоимость от:
    15 581 520
    Проект от: 100 350
    Этажей 2
    Санузлы 3
    Спальни 4
    Смотреть
    Ипотека и
    рассрочка
    Загородный дом с керамической облицовкой S3-163-1 (Zx24)
    Стоимость от:
    12 990 240
    Проект от: 83 700
    Этажей 2
    Санузлы 2
    Спальни 5
    Смотреть
    Ипотека и
    рассрочка
    Одноэтажный дом FIXPLANS — 1610
    Стоимость от:
    9 165 640
    Проект от: 54 900
    Этажей 1
    Санузлы 2
    Спальни 3
    Смотреть
    Ипотека и
    рассрочка
    Загородный дом по проекту «Харвин».
    Стоимость от:
    11 491 200
    Проект от: 81 000
    Этажей 2
    Санузлы 2
    Спальни 3
    Смотреть
    Ипотека и
    рассрочка
    Беломарит
    Стоимость от:
    11 119 440
    Проект от: 67 950
    Этажей 2
    Санузлы 2
    Спальни 3
    Смотреть
    Ипотека и
    рассрочка
    Дом из клееного бруса САвонлинна
    Стоимость от:
    20 952 000
    Проект от: 135 000
    Этажей 2
    Санузлы 4
    Спальни 5
    Смотреть

    Как узнать стоимость дома

    back
    Оставляете заявку
    Вы заполняете форму на сайте или звоните нам. Менеджер Лайвкрафт связывается с вами для уточнения деталей: тип дома, площадь, материалы, участок строительства.
    back
    Консультация и подбор решения
    Наш специалист помогает выбрать оптимальный тип дома и конструкцию с учётом бюджета, сроков и целей — будь то дом для постоянного проживания или дача.
    back
    Расчёт предварительной стоимости
    Инженер делает первичный расчёт стоимости строительства по вашим параметрам: фундамент, коробка, кровля, отделка. Вы получаете смету с разбивкой по этапам.
    back
    Корректировка и утверждение сметы
    При необходимости вносим изменения — например, замену материалов или сокращение этапов. После согласования формируется окончательная фиксированная смета.
    back
    Заключение договора и старт работ
    После утверждения сметы заключаем официальный договор с гарантией. Вы получаете прозрачный график и точную стоимость — без скрытых расходов.

    Заказать конусльтацию по:Загородный дом АС-258

    Фото 1 Загородный дом АС-258


      Наши
      контакты

      Дмитров
      Опорный проезд 28Б
      (индустриальный парк Ниагара)
      9:00 до 18:00

      Корзина