4.9
Рейтинг на основании 120 отзывов
Дмитров
Опорный проезд 28Б
(индустриальный парк Ниагара)
Бренд "Дмитров-Дело" c 2008 года на рынке строительства в Дмитрове
Звоните 9:00 до 18:00 8 (915) 055-33-61
Бренд "Дмитров-Дело" c 2008 года на рынке строительства в Дмитрове

Фаворит 7×9

Стоимость проекта от:
50 400 ₽
БЕСПЛАТНО! ПРИ ЗАКАЗЕ СТРОИТЕЛЬСТВА
Стоимость строительства от:
6 703 200 ₽
Артикул ART-16536
Дата 26.12.2025
Архитектурный стиль Европейский
Количество надземных этажей 2
Круглогодичное проживание Да
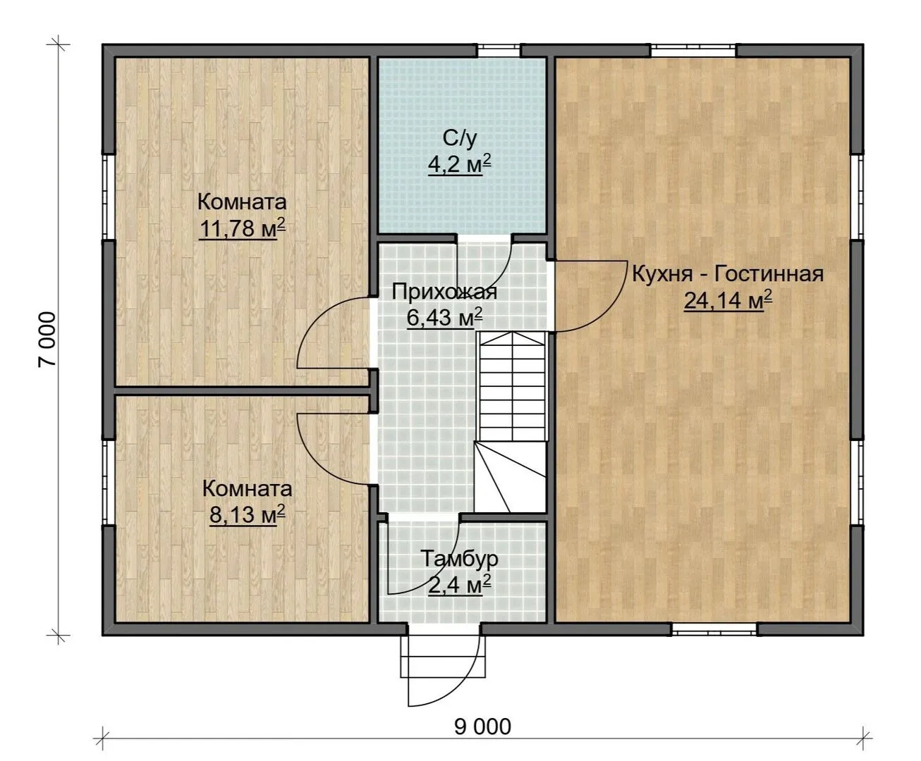
Площадь дома 112 м2
Санузлы 1
Спальни 4

Описание

Войдя в дом Favorite (7×9 м), вы сразу погружаетесь в атмосферу европейского уюта: изящно оформленные окна с коваными рамами, просторные внутренние помещения и мягкое деревянное убранство создают ощущение тепла и спокойствия. Двухэтажная планировка позволяет организовать отдельные зоны для работы и отдыха — от светлой гостиной на первом этаже до тихого уголка для чтения на втором. Каждый квадратный метр продуман до мелочей, а натуральный древесный каркас внешних стен усиливает гармонию с природой, обеспечивая теплоизоляцию и звукоизоляцию даже в холодные месяцы. Стиль дома воплощает классическую европейскую элегантность: гладкая двускатная крыша с резной крышей, типичный для традиционных замковых построек, отсылает к архитектурным традициям Европы, придавая фасаду строгость и простоту одновременно. Несмотря на отсутствие балконов, веранд и гаража, окна большего размера позволяют заливаться светом и открывают живописные виды на окружающую природу. Внутренние помещения оборудованы современными удобствами, но в каждой детали ощущается органичная легкость, характерная для дерева. Дом Favorite — идеальный выбор для тех, кто ценит качество, уют и эстетику в сочетании с практичностью. Идеально подходит для семейного проживания, где каждый найдет своё место: от обильного света и тишины до тёплой атмосферы, создаваемой деревянным каркасом. Это место, где европейская традиция встречается с комфортом нового времени, даря вам ощущение дома уже с первого шага.

Характеристики дома

Архитектурный стиль
Автоматизированное регулирование параметров теплоносителя
Нет
Балконы/лоджии
Отсутствуют
Чердачное помещение
Нет
Датчики протечки воды
Нет
Эксплуатируемая или зеленая кровля
Нет
Электроснабжение
Индивидуальное
Газоснабжение
Не предусмотрено
Изоляция воздушного шума
Нет
Камин
Нет
Класс энергоэффективности
-
Класс энергосбережения
-
Количество надземных этажей
2
Круглогодичное проживание
Да
Материал кровли
Металлочерепица
Материал перекрытий
Деревянные
Материал внешних стен
Материал внутренних перегородок
Деревянные
Модульное строительство с конструкциями заводского изготовления
Нет
Объем надземной части
-
Основной материал фасадов
Сайдинг
Отопление
Индивидуальное
Площадь дома
112 м2
Площадь застройки
63 м2
Подвальное помещение
Нет
Показатель компактности здания
-
Приборы учета тепловой энергии
Нет
Пристроенный гараж/крытая автостоянка
Нет
Противопожарная система
Нет
Санузлы
1
Совмещенная кухня-гостиная
Да
Спальни
4
Терраса
Нет
Тип фундамента
Свайно-винтовой
Тип кровли
Толщина внешних стен
235 мм
Толщина внутренних перегородок
122 мм
Улучшенные шумовые характеристики
Нет
Вентиляция
Естественная
Веранда
Нет
Водоотведение
Локальные очистные сооружения
Водоснабжение
Индивидуальное
Высота дома
-
Высота потолков
2.5 м

Планировка

Фасад дома

Александр

Закажите выезд инженера

Александр

Выездной инженер
Закажите выезд инженера для точной диагностики и профессиональной консультации по инженерным системам. Специалист приедет в удобное время, проведёт осмотр, рассчитает стоимость работ и подберёт оптимальные решения для вашего дома.


    Похожие проекты

    Ипотека и
    рассрочка
    Арден
    Стоимость от:
    7 639 320
    Проект от: 53 100
    Этажей 2
    Санузлы 2
    Спальни 4
    Смотреть
    Ипотека и
    рассрочка
    Словения
    Стоимость от:
    9 432 720
    Проект от: 64 350
    Этажей 2
    Санузлы 2
    Спальни 4
    Смотреть
    Ипотека и
    рассрочка
    Сказка 160
    Стоимость от:
    10 891 920
    Проект от: 68 850
    Этажей 2
    Санузлы 2
    Спальни 4
    Смотреть
    Ипотека и
    рассрочка
    Двухэтажный дом «Тетрис XXXL»
    Стоимость от:
    13 733 520
    Проект от: 86 850
    Этажей 2
    Санузлы 2
    Спальни 5
    Смотреть
    Ипотека и
    рассрочка
    Времена Года. Весна, лето, зима, осень. Комплектация базовая.
    Стоимость от:
    474 300
    Проект от: 45 900
    Этажей 2
    Санузлы 2
    Спальни 2
    Смотреть
    Ипотека и
    рассрочка
    Уютный загородный дом П-80.24
    Стоимость от:
    6 227 040
    Проект от: 38 700
    Этажей 2
    Санузлы 1
    Спальни 3
    Смотреть

    Как узнать стоимость дома

    back
    Оставляете заявку
    Вы заполняете форму на сайте или звоните нам. Менеджер Лайвкрафт связывается с вами для уточнения деталей: тип дома, площадь, материалы, участок строительства.
    back
    Консультация и подбор решения
    Наш специалист помогает выбрать оптимальный тип дома и конструкцию с учётом бюджета, сроков и целей — будь то дом для постоянного проживания или дача.
    back
    Расчёт предварительной стоимости
    Инженер делает первичный расчёт стоимости строительства по вашим параметрам: фундамент, коробка, кровля, отделка. Вы получаете смету с разбивкой по этапам.
    back
    Корректировка и утверждение сметы
    При необходимости вносим изменения — например, замену материалов или сокращение этапов. После согласования формируется окончательная фиксированная смета.
    back
    Заключение договора и старт работ
    После утверждения сметы заключаем официальный договор с гарантией. Вы получаете прозрачный график и точную стоимость — без скрытых расходов.

    Заказать конусльтацию по:Фаворит 7×9

    Фото 1 Фаворит 7×9


      Наши
      контакты

      Дмитров
      Опорный проезд 28Б
      (индустриальный парк Ниагара)
      9:00 до 18:00

      Корзина