4.9
Рейтинг на основании 120 отзывов
Дмитров
Опорный проезд 28Б
(индустриальный парк Ниагара)
Бренд "Дмитров-Дело" c 2008 года на рынке строительства в Дмитрове
Звоните 9:00 до 18:00 8 (915) 055-33-61
Бренд "Дмитров-Дело" c 2008 года на рынке строительства в Дмитрове

Загородный дом ДАЛИ

Стоимость проекта от:
52 650 ₽
БЕСПЛАТНО! ПРИ ЗАКАЗЕ СТРОИТЕЛЬСТВА
Стоимость строительства от:
7 168 590 ₽
Артикул ART-10261
Дата 25.12.2025
Архитектурный стиль Барнхаус
Количество надземных этажей 1
Круглогодичное проживание Да
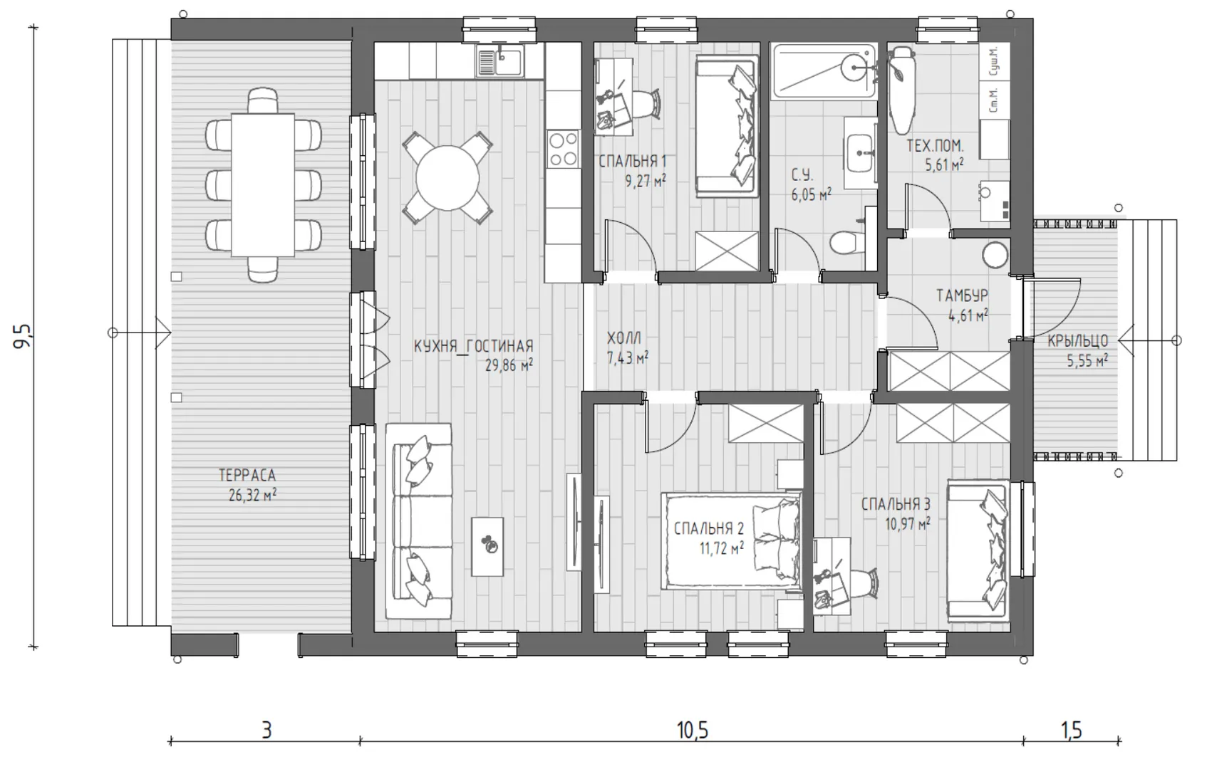
Площадь дома 117 м2
Санузлы 1
Спальни 3

Описание

В сердце живописного уголка страны, где зелёные холмы встречаются с небесными скромностями, возведён загородный дом ДАЛИ. Это одна элегантная башня из классической барнхаусной эстетики, созданная для круговой защиты от погоды и удобного проживания в любой сезон. Откройте для себя простоту и уют, где каждый уголок пронизан светом, а отсутствие балконов и веранд сосредоточивает энергию на самом значимом – гармоничном взаимодействии с внутренним пространством. Дом обрамлён каркасно‑панельной кладкой, что дарит не только тепло и прочность, но и изящный современный вид. Двускатная крыша придаёт ему характерный «дом-каркас» вид, напоминающий традиционные старины, но в сочетании с новыми технологиями обеспечивает экономию энергии и долговечность. Крупные панельные окна привносят в интерьер воздушность и естественное освещение, а отсутствие лишних конструкций позволяет максимально использовать пространство: просторные комнаты, открытая кухня и удобные зоны для семейных встреч. Терраса дома – идеальное место для уединённого отдыха, вечерних грилёных барбекю или прослушивания шёпота в тишине природы. Она приглашает к созданию уютного сада, где можно растить собственные овощи и цветы, а также устраивать барбекю и семейные праздники. Дом ДАЛИ – это не просто жильё, это образ жизни, который позволяет наслаждаться каждым мгновением, находясь в гармонии с природой и современным комфортом.

Характеристики дома

Архитектурный стиль
Автоматизированное регулирование параметров теплоносителя
Да
Балконы/лоджии
Отсутствуют
Чердачное помещение
Нет
Датчики протечки воды
Да
Эксплуатируемая или зеленая кровля
Нет
Электроснабжение
2 варианта
Газоснабжение
2 варианта
Изоляция воздушного шума
Да
Камин
Нет
Класс энергоэффективности
-
Класс энергосбережения
-
Количество надземных этажей
1
Круглогодичное проживание
Да
Материал кровли
Битумная черепица
Материал перекрытий
Деревянные
Материал внешних стен
Материал внутренних перегородок
Деревянные
Модульное строительство с конструкциями заводского изготовления
Да
Объем надземной части
-
Основной материал фасадов
Дерево
Отопление
2 варианта
Площадь дома
117 м2
Площадь застройки
142 м2
Подвальное помещение
Нет
Показатель компактности здания
-
Приборы учета тепловой энергии
Да
Пристроенный гараж/крытая автостоянка
Нет
Противопожарная система
Да
Санузлы
1
Совмещенная кухня-гостиная
Да
Спальни
3
Терраса
Да
Тип фундамента
Свайный
Тип кровли
Толщина внешних стен
300 мм
Толщина внутренних перегородок
150 мм
Улучшенные шумовые характеристики
Да
Вентиляция
3 варианта
Веранда
Нет
Водоотведение
2 варианта
Водоснабжение
2 варианта
Высота дома
7.5 м
Высота потолков
4 м

Планировка

Фасад дома

Александр

Закажите выезд инженера

Александр

Выездной инженер
Закажите выезд инженера для точной диагностики и профессиональной консультации по инженерным системам. Специалист приедет в удобное время, проведёт осмотр, рассчитает стоимость работ и подберёт оптимальные решения для вашего дома.


    Похожие проекты

    Ипотека и
    рассрочка
    Одноэтажный каркасный дом 12х10м
    Стоимость от:
    5 607 085
    Проект от: 43 650
    Этажей 1
    Санузлы 2
    Спальни 3
    Смотреть
    Ипотека и
    рассрочка
    Домик Уюта
    Стоимость от:
    3 724 160
    Проект от: 21 600
    Этажей 1
    Санузлы 1
    Спальни 3
    Смотреть
    Ипотека и
    рассрочка
    Д 20
    Стоимость от:
    12 486 540
    Проект от: 70 650
    Этажей 1
    Санузлы 2
    Спальни 3
    Смотреть
    Ипотека и
    рассрочка
    Одноэтажный дом с гаражом АС-86/ОД-207,44/24
    Стоимость от:
    15 542 340
    Проект от: 93 150
    Этажей 1
    Санузлы 2
    Спальни 3
    Смотреть
    Ипотека и
    рассрочка
    Твинхаус 192
    Стоимость от:
    14 350 080
    Проект от: 86 400
    Этажей 2
    Санузлы 3
    Спальни 6
    Смотреть
    Ипотека и
    рассрочка
    Дом из клееного бруса «Вологда»
    Стоимость от:
    23 306 400
    Проект от: 162 000
    Этажей 2
    Санузлы 1
    Спальни 5
    Смотреть

    Как узнать стоимость дома

    back
    Оставляете заявку
    Вы заполняете форму на сайте или звоните нам. Менеджер Лайвкрафт связывается с вами для уточнения деталей: тип дома, площадь, материалы, участок строительства.
    back
    Консультация и подбор решения
    Наш специалист помогает выбрать оптимальный тип дома и конструкцию с учётом бюджета, сроков и целей — будь то дом для постоянного проживания или дача.
    back
    Расчёт предварительной стоимости
    Инженер делает первичный расчёт стоимости строительства по вашим параметрам: фундамент, коробка, кровля, отделка. Вы получаете смету с разбивкой по этапам.
    back
    Корректировка и утверждение сметы
    При необходимости вносим изменения — например, замену материалов или сокращение этапов. После согласования формируется окончательная фиксированная смета.
    back
    Заключение договора и старт работ
    После утверждения сметы заключаем официальный договор с гарантией. Вы получаете прозрачный график и точную стоимость — без скрытых расходов.

    Заказать конусльтацию по:Загородный дом ДАЛИ

    Фото 1 Загородный дом ДАЛИ


      Наши
      контакты

      Дмитров
      Опорный проезд 28Б
      (индустриальный парк Ниагара)
      9:00 до 18:00

      Корзина