4.9
Рейтинг на основании 120 отзывов
Дмитров
Опорный проезд 28Б
(индустриальный парк Ниагара)
Бренд "Дмитров-Дело" c 2008 года на рынке строительства в Дмитрове
Звоните 9:00 до 18:00 8 (915) 055-33-61
Бренд "Дмитров-Дело" c 2008 года на рынке строительства в Дмитрове

Загородный дом «Елена»

Стоимость проекта от:
50 850 ₽
БЕСПЛАТНО! ПРИ ЗАКАЗЕ СТРОИТЕЛЬСТВА
Стоимость строительства от:
7 980 060 ₽
Артикул ART-4670
Дата 26.12.2025
Архитектурный стиль Классический
Количество надземных этажей 1
Круглогодичное проживание Да
Площадь дома 113 м2
Санузлы 2
Спальни 3

Описание

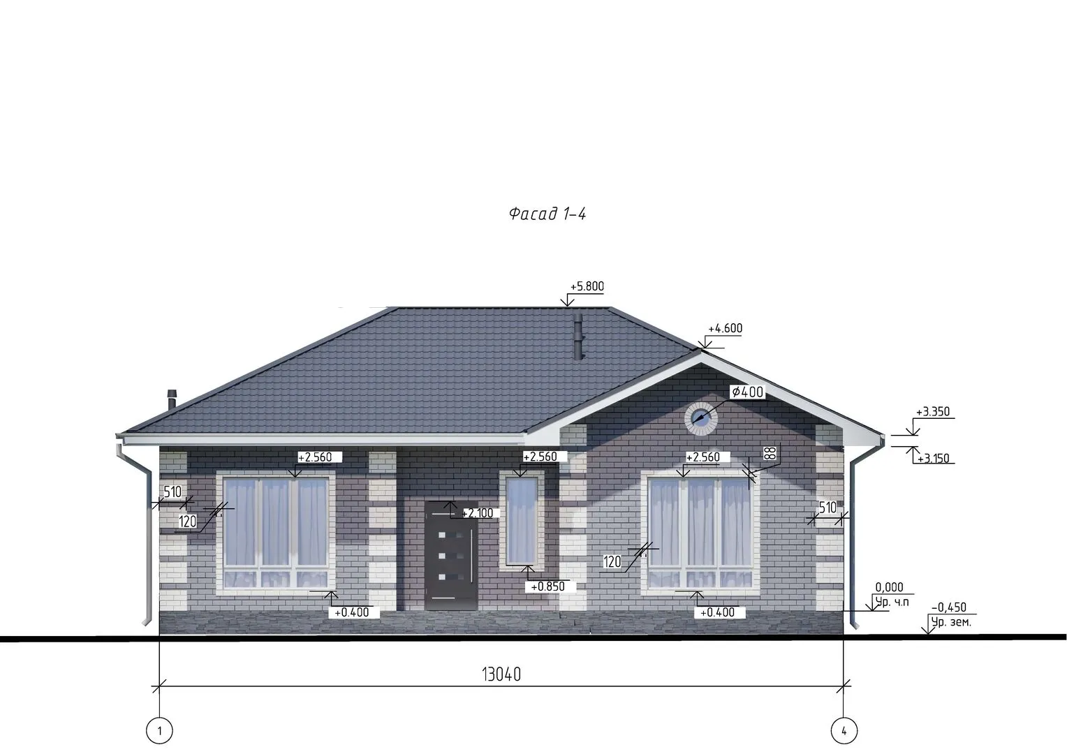
Загородный дом «Елена» – это уютная, но внушительная резиденция, созданная для тех, кто ценит гармонию пространства и комфорт круглый год. Сочетая традиционный классический фасад с современной практичностью, он приглашает в мир спокойствия и безмятежности, где каждое утро начинается с приятного аромата свежего воздуха с заднего двора и заката над лесными просторами. Дом построен на одном надземном этаже, но в нём предусмотрено чердачное помещение, которое можно превратить в кабинет, игровую комнату или дополнительную спальню – гибкость, которая позволит адаптировать пространство под любые потребности. Внешние стены из керамзитобетонных блоков придают зданию прочность и теплоизоляцию, а вальмовая четырехскатная крыша, выполненная по классическому канону, создаёт ощущение уюта и величия одновременно. Заточенные деревянные перегородки и большие окна открывают светлые, светлые интерьеры с мягким естественным освещением. В «Елене» отсутствуют балконы и веранда, однако наличие террасы добавляет практичности – это небольшое убежище, где можно провести несколько часов за книгой, наслаждаясь свежим воздухом. Отсутствие прилагаемого гаража или крытой автостоянки не уменьшает привлекательности дома, ведь в непосредственной близости есть несколько парковочных мест, а большая участковость позволяет разместить авто под надежной тенью. Всё это делает «Елену» идеальным выбором для семей, которые стремятся к гармонии с природой, но не хотят отказываться от удобств и современного комфорта.

Характеристики дома

Архитектурный стиль
Автоматизированное регулирование параметров теплоносителя
-
Балконы/лоджии
Отсутствуют
Чердачное помещение
Да
Датчики протечки воды
-
Эксплуатируемая или зеленая кровля
-
Электроснабжение
2 варианта
Газоснабжение
2 варианта
Изоляция воздушного шума
-
Камин
Нет
Класс энергоэффективности
-
Класс энергосбережения
-
Количество надземных этажей
1
Круглогодичное проживание
Да
Материал кровли
Металлочерепица
Материал перекрытий
Монолитные железобетонные
Материал внешних стен
Материал внутренних перегородок
Блочные
Модульное строительство с конструкциями заводского изготовления
Нет
Объем надземной части
280 м3
Основной материал фасадов
Облицовочный кирпич
Отопление
Индивидуальное
Площадь дома
113 м2
Площадь застройки
160 м2
Подвальное помещение
Нет
Показатель компактности здания
-
Приборы учета тепловой энергии
-
Пристроенный гараж/крытая автостоянка
Нет
Противопожарная система
Нет
Санузлы
2
Совмещенная кухня-гостиная
Да
Спальни
3
Терраса
Да
Тип фундамента
Плитный
Толщина внешних стен
520 мм
Толщина внутренних перегородок
100 мм
Улучшенные шумовые характеристики
-
Вентиляция
Естественная
Веранда
Нет
Водоотведение
2 варианта
Водоснабжение
Индивидуальное
Высота дома
5.6 м
Высота потолков
3.15 м

Планировка

Фасад дома

Александр

Закажите выезд инженера

Александр

Выездной инженер
Закажите выезд инженера для точной диагностики и профессиональной консультации по инженерным системам. Специалист приедет в удобное время, проведёт осмотр, рассчитает стоимость работ и подберёт оптимальные решения для вашего дома.


    Похожие проекты

    Ипотека и
    рассрочка
    Ирбис 1
    Стоимость от:
    6 371 200
    Проект от: 36 000
    Этажей 1
    Санузлы 1
    Спальни 3
    Смотреть
    Ипотека и
    рассрочка
    Проект№2
    Стоимость от:
    8 191 920
    Проект от: 52 200
    Этажей 1
    Санузлы 1
    Спальни 3
    Смотреть
    Ипотека и
    рассрочка
    2х этажный кирпичный дом 262м2
    Стоимость от:
    17 983 680
    Проект от: 117 900
    Этажей 2
    Санузлы 3
    Спальни 4
    Смотреть
    Ипотека и
    рассрочка
    Загородный дом В-222
    Стоимость от:
    8 277 280
    Проект от: 46 800
    Этажей 1
    Санузлы 1
    Спальни 4
    Смотреть
    Ипотека и
    рассрочка
    Чекара
    Стоимость от:
    4 696 780
    Проект от: 33 300
    Этажей 1
    Санузлы 1
    Спальни 2
    Смотреть
    Ипотека и
    рассрочка
    Одноэтажный дом FIXPLANS — 0836
    Стоимость от:
    8 545 020
    Проект от: 54 450
    Этажей 1
    Санузлы 2
    Спальни 3
    Смотреть

    Как узнать стоимость дома

    back
    Оставляете заявку
    Вы заполняете форму на сайте или звоните нам. Менеджер Лайвкрафт связывается с вами для уточнения деталей: тип дома, площадь, материалы, участок строительства.
    back
    Консультация и подбор решения
    Наш специалист помогает выбрать оптимальный тип дома и конструкцию с учётом бюджета, сроков и целей — будь то дом для постоянного проживания или дача.
    back
    Расчёт предварительной стоимости
    Инженер делает первичный расчёт стоимости строительства по вашим параметрам: фундамент, коробка, кровля, отделка. Вы получаете смету с разбивкой по этапам.
    back
    Корректировка и утверждение сметы
    При необходимости вносим изменения — например, замену материалов или сокращение этапов. После согласования формируется окончательная фиксированная смета.
    back
    Заключение договора и старт работ
    После утверждения сметы заключаем официальный договор с гарантией. Вы получаете прозрачный график и точную стоимость — без скрытых расходов.

    Заказать конусльтацию по:Загородный дом «Елена»

    Фото 1 Загородный дом «Елена»


      Наши
      контакты

      Дмитров
      Опорный проезд 28Б
      (индустриальный парк Ниагара)
      9:00 до 18:00

      Корзина