4.9
Рейтинг на основании 120 отзывов
Дмитров
Опорный проезд 28Б
(индустриальный парк Ниагара)
Бренд "Дмитров-Дело" c 2008 года на рынке строительства в Дмитрове
Звоните 9:00 до 18:00 8 (915) 055-33-61
Бренд "Дмитров-Дело" c 2008 года на рынке строительства в Дмитрове

Загородный дом «Эстет»

Стоимость проекта от:
47 700 ₽
БЕСПЛАТНО! ПРИ ЗАКАЗЕ СТРОИТЕЛЬСТВА
Стоимость строительства от:
6 344 100 ₽
Артикул ART-13516
Дата 25.12.2025
Архитектурный стиль Европейский
Количество надземных этажей 2
Круглогодичное проживание Да
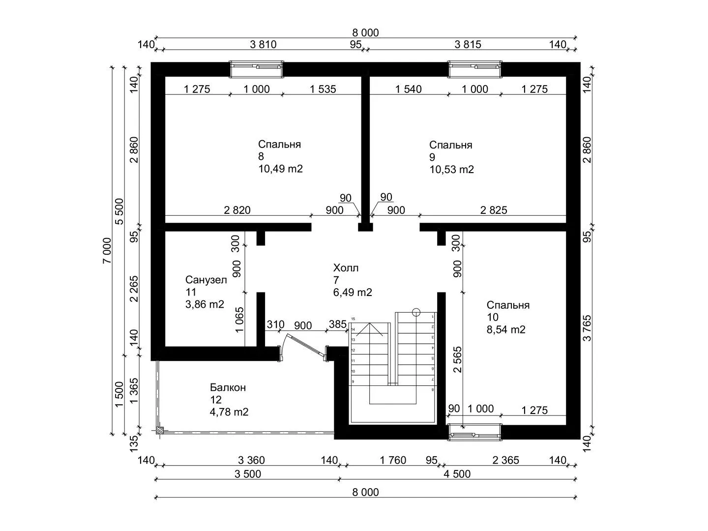
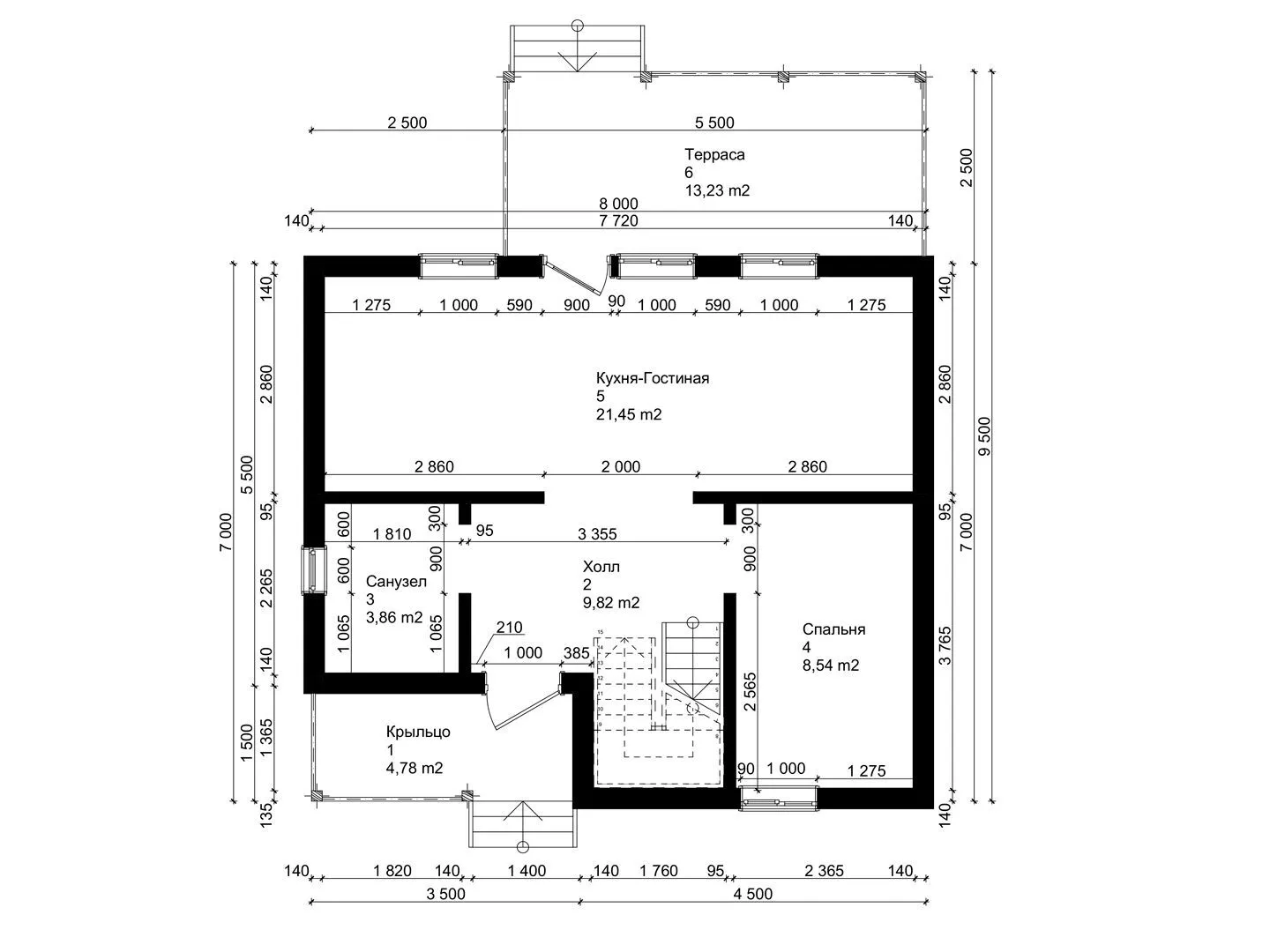
Площадь дома 106 м2
Санузлы 2
Спальни 4

Описание

**Загородный дом “Эстет”** — словно сказка, воплощённая в архитектуре. На два надземных этажа возведён дом, созданный в духе европейского стиля: изящные линии, крупные окна, которые словно приглашат просветить комнату теплом родного солнца. Благодаря деревянному каркасу фасад ощущается живой, природный акцент: мягкие ноты дерева, контрастирующие с нежно-складными кутями крыши, покрытой традиционной двускатной черепицей. Такое сочетание дарит ощущение уюта и гармонии с окружающей природой, делая каждый рассвет и закат особенным. Дом спроектирован для круглогодичного уюта: тепло от изоляции и хорошая вентиляция позволяют радоваться летним дням, а мягкий свет в зимний период создаёт уютную атмосферу. Просторная терраса выступает как продолжение внутреннего пространства – здесь можно провести вечерние беседы, обжарить сковороду со свежими овощами или просто наслаждаться бесконечными видами леса. Один балкон, обрамленный французскими ставнями, дарит личный уголок уединения с видом на пруд или поле. “Эстет” – это не просто дом, а стиль жизни: простота без лишних привилегий, а главное, открытость к природе и семейным ценностям. Для тех, кто ищет гармонию, простоту и элегантность в одном месте, каждый уголок этого дома становится местом вдохновения и благополучия. Приглашаем вас почувствовать, насколько прекрасна жизнь в таком убежище, где каждый день начинается и заканчивается в тепле и красоте.

Характеристики дома

Архитектурный стиль
Автоматизированное регулирование параметров теплоносителя
Нет
Балконы/лоджии
1
Чердачное помещение
Нет
Датчики протечки воды
Нет
Эксплуатируемая или зеленая кровля
Нет
Электроснабжение
Не предусмотрено
Газоснабжение
Не предусмотрено
Изоляция воздушного шума
Да
Камин
Нет
Класс энергоэффективности
-
Класс энергосбережения
-
Количество надземных этажей
2
Круглогодичное проживание
Да
Материал кровли
Металлочерепица
Материал перекрытий
Деревянные
Материал внешних стен
Материал внутренних перегородок
Деревянные
Модульное строительство с конструкциями заводского изготовления
Нет
Объем надземной части
337 м3
Основной материал фасадов
Сайдинг
Отопление
Не предусмотрено
Площадь дома
106 м2
Площадь застройки
69 м2
Подвальное помещение
Нет
Показатель компактности здания
-
Приборы учета тепловой энергии
Нет
Пристроенный гараж/крытая автостоянка
Нет
Противопожарная система
Нет
Санузлы
2
Совмещенная кухня-гостиная
Да
Спальни
4
Терраса
Да
Тип фундамента
Свайно-винтовой
Тип кровли
Толщина внешних стен
265 мм
Толщина внутренних перегородок
155 мм
Улучшенные шумовые характеристики
Да
Вентиляция
Рекуперация
Веранда
Нет
Водоотведение
Не предусмотрено
Водоснабжение
Не предусмотрено
Высота дома
6.91 м
Высота потолков
2.7 м

Планировка

Фасад дома

Александр

Закажите выезд инженера

Александр

Выездной инженер
Закажите выезд инженера для точной диагностики и профессиональной консультации по инженерным системам. Специалист приедет в удобное время, проведёт осмотр, рассчитает стоимость работ и подберёт оптимальные решения для вашего дома.


    Похожие проекты

    Ипотека и
    рассрочка
    Конти 217
    Стоимость от:
    17 276 280
    Проект от: 117 900
    Этажей 2
    Санузлы 3
    Спальни 5
    Смотреть
    Ипотека и
    рассрочка
    Одноэтажный дом Смарт 6
    Стоимость от:
    4 964 960
    Проект от: 30 600
    Этажей 1
    Санузлы 1
    Спальни 2
    Смотреть
    Ипотека и
    рассрочка
    Проект загородного дома с террасой и гаражом на 2 машины S-292
    Стоимость от:
    20 672 640
    Проект от: 133 200
    Этажей 2
    Санузлы 3
    Спальни 3
    Смотреть
    Ипотека и
    рассрочка
    СЕРИЯ «БАРНХАУС» ПРОЕКТ КД-19
    Стоимость от:
    7 334 880
    Проект от: 52 650
    Этажей 2
    Санузлы 2
    Спальни 4
    Смотреть
    Ипотека и
    рассрочка
    Загородный дом — 121
    Стоимость от:
    8 191 920
    Проект от: 52 200
    Этажей 1
    Санузлы 2
    Спальни 3
    Смотреть
    Ипотека и
    рассрочка
    Волга
    Стоимость от:
    6 980 100
    Проект от: 47 700
    Этажей 2
    Санузлы 1
    Спальни 3
    Смотреть

    Как узнать стоимость дома

    back
    Оставляете заявку
    Вы заполняете форму на сайте или звоните нам. Менеджер Лайвкрафт связывается с вами для уточнения деталей: тип дома, площадь, материалы, участок строительства.
    back
    Консультация и подбор решения
    Наш специалист помогает выбрать оптимальный тип дома и конструкцию с учётом бюджета, сроков и целей — будь то дом для постоянного проживания или дача.
    back
    Расчёт предварительной стоимости
    Инженер делает первичный расчёт стоимости строительства по вашим параметрам: фундамент, коробка, кровля, отделка. Вы получаете смету с разбивкой по этапам.
    back
    Корректировка и утверждение сметы
    При необходимости вносим изменения — например, замену материалов или сокращение этапов. После согласования формируется окончательная фиксированная смета.
    back
    Заключение договора и старт работ
    После утверждения сметы заключаем официальный договор с гарантией. Вы получаете прозрачный график и точную стоимость — без скрытых расходов.

    Заказать конусльтацию по:Загородный дом «Эстет»

    Фото 1 Загородный дом «Эстет»


      Наши
      контакты

      Дмитров
      Опорный проезд 28Б
      (индустриальный парк Ниагара)
      9:00 до 18:00

      Корзина