4.9
Рейтинг на основании 120 отзывов
Дмитров
Опорный проезд 28Б
(индустриальный парк Ниагара)
Бренд "Дмитров-Дело" c 2008 года на рынке строительства в Дмитрове
Звоните 9:00 до 18:00 8 (915) 055-33-61
Бренд "Дмитров-Дело" c 2008 года на рынке строительства в Дмитрове

Загородный дом «Москва»

Стоимость проекта от:
44 100 ₽
БЕСПЛАТНО! ПРИ ЗАКАЗЕ СТРОИТЕЛЬСТВА
Стоимость строительства от:
5 681 060 ₽
Артикул ART-14714
Дата 25.12.2025
Архитектурный стиль Европейский
Количество надземных этажей 1
Круглогодичное проживание Да
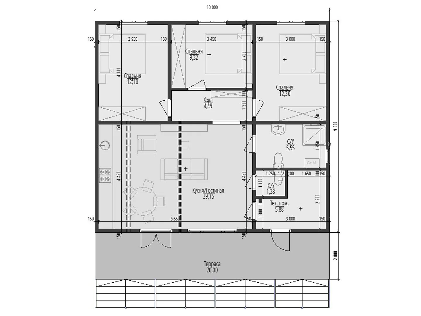
Площадь дома 98 м2
Санузлы 2
Спальни 3

Описание

Загородный дом «Москва» – это воплощение европейской элегантности в гармонии с природой. Построен на одну надземную палубу, он отличается невысокими габаритами, которые создают ощущение уюта и гостеприимства. Каркас из древесины, обрамленный мягкими линиями двускатной крыши, наполняет пространство тёплым, семейным характером, достойным круготраного проживания. Внутри дома вы найдёте просторную чердачную площадку, превратившуюся в уютный уголок для творчества или гостей. Открытая терраса приглашает к приятным беседам на свежем воздухе, а отсутствие балконов, веранд и прицепа для автомобилей лишь подчёркивает аккуратный, лаконичный дизайн. Внутреннее убранство обрамлено светлые тона, создавая атмосферу лёгкости и безмятежности. Деревянный каркас и простая, но изысканная архитектура придают дому характер и уют, которым хочется делиться с близкими. «Москва» – идеальное место для тех, кто ценит спокойствие, комфорт и эстетику европейского стиля в тихой застройке. Этот дом приглашает к полноценной жизни в ритме природы, где каждый день начинается и заканчивается в теплом, благополучном пространстве. Не упустите шанс стать владельцем уютного уголка, гармонично вписанного в живописную природу.

Характеристики дома

Архитектурный стиль
Автоматизированное регулирование параметров теплоносителя
Нет
Балконы/лоджии
Отсутствуют
Чердачное помещение
Да
Датчики протечки воды
Нет
Эксплуатируемая или зеленая кровля
Нет
Электроснабжение
Не предусмотрено
Газоснабжение
Не предусмотрено
Изоляция воздушного шума
Нет
Камин
Нет
Класс энергоэффективности
-
Класс энергосбережения
-
Количество надземных этажей
1
Круглогодичное проживание
Да
Материал кровли
Металлочерепица
Материал перекрытий
Деревянные
Материал внешних стен
Материал внутренних перегородок
Деревянные
Модульное строительство с конструкциями заводского изготовления
Нет
Объем надземной части
261 м3
Основной материал фасадов
Дерево
Отопление
Не предусмотрено
Площадь дома
98 м2
Площадь застройки
110 м2
Подвальное помещение
Нет
Показатель компактности здания
-
Приборы учета тепловой энергии
Нет
Пристроенный гараж/крытая автостоянка
Нет
Противопожарная система
Нет
Санузлы
2
Совмещенная кухня-гостиная
Да
Спальни
3
Терраса
Да
Тип фундамента
Свайный
Тип кровли
Толщина внешних стен
203 мм
Толщина внутренних перегородок
175 мм
Улучшенные шумовые характеристики
Нет
Вентиляция
Естественная
Веранда
Нет
Водоотведение
Не предусмотрено
Водоснабжение
Не предусмотрено
Высота дома
4.8 м
Высота потолков
2.5 м

Планировка

Фасад дома

Александр

Закажите выезд инженера

Александр

Выездной инженер
Закажите выезд инженера для точной диагностики и профессиональной консультации по инженерным системам. Специалист приедет в удобное время, проведёт осмотр, рассчитает стоимость работ и подберёт оптимальные решения для вашего дома.


    Похожие проекты

    Ипотека и
    рассрочка
    Одноэтажный кирпичный Дом NODO-88, с навесом и площадкой
    Стоимость от:
    6 614 960
    Проект от: 39 600
    Этажей 1
    Санузлы 1
    Спальни 2
    Смотреть
    Ипотека и
    рассрочка
    СЕМЕЙНЫЙ
    Стоимость от:
    9 180 600
    Проект от: 58 500
    Этажей 1
    Санузлы 2
    Спальни 3
    Смотреть
    Ипотека и
    рассрочка
    Загородный дом К-5
    Стоимость от:
    7 590 220
    Проект от: 45 450
    Этажей 1
    Санузлы 1
    Спальни 1
    Смотреть
    Ипотека и
    рассрочка
    Фаворит 6х7 с террасой
    Стоимость от:
    4 731 360
    Проект от: 35 550
    Этажей 2
    Санузлы 1
    Спальни 4
    Смотреть
    Ипотека и
    рассрочка
    Морейн 85
    Стоимость от:
    6 164 840
    Проект от: 36 900
    Этажей 1
    Санузлы 1
    Спальни 2
    Смотреть
    Ипотека и
    рассрочка
    Индивидуальный жилой дом площадью 132м2 с террасой площадью 15м2
    Стоимость от:
    11 692 340
    Проект от: 66 150
    Этажей 1
    Санузлы 2
    Спальни 3
    Смотреть

    Как узнать стоимость дома

    back
    Оставляете заявку
    Вы заполняете форму на сайте или звоните нам. Менеджер Лайвкрафт связывается с вами для уточнения деталей: тип дома, площадь, материалы, участок строительства.
    back
    Консультация и подбор решения
    Наш специалист помогает выбрать оптимальный тип дома и конструкцию с учётом бюджета, сроков и целей — будь то дом для постоянного проживания или дача.
    back
    Расчёт предварительной стоимости
    Инженер делает первичный расчёт стоимости строительства по вашим параметрам: фундамент, коробка, кровля, отделка. Вы получаете смету с разбивкой по этапам.
    back
    Корректировка и утверждение сметы
    При необходимости вносим изменения — например, замену материалов или сокращение этапов. После согласования формируется окончательная фиксированная смета.
    back
    Заключение договора и старт работ
    После утверждения сметы заключаем официальный договор с гарантией. Вы получаете прозрачный график и точную стоимость — без скрытых расходов.

    Заказать конусльтацию по:Загородный дом «Москва»

    Фото 1 Загородный дом «Москва»


      Наши
      контакты

      Дмитров
      Опорный проезд 28Б
      (индустриальный парк Ниагара)
      9:00 до 18:00

      Корзина