4.9
Рейтинг на основании 120 отзывов
Дмитров
Опорный проезд 28Б
(индустриальный парк Ниагара)
Бренд "Дмитров-Дело" c 2008 года на рынке строительства в Дмитрове
Звоните 9:00 до 18:00 8 (915) 055-33-61
Бренд "Дмитров-Дело" c 2008 года на рынке строительства в Дмитрове

Одноэтажный дом КД-30

Стоимость проекта от:
41 850 ₽
БЕСПЛАТНО! ПРИ ЗАКАЗЕ СТРОИТЕЛЬСТВА
Стоимость строительства от:
5 391 210 ₽
Артикул ART-4193
Дата 26.12.2025
Архитектурный стиль Классический
Количество надземных этажей 1
Круглогодичное проживание Да
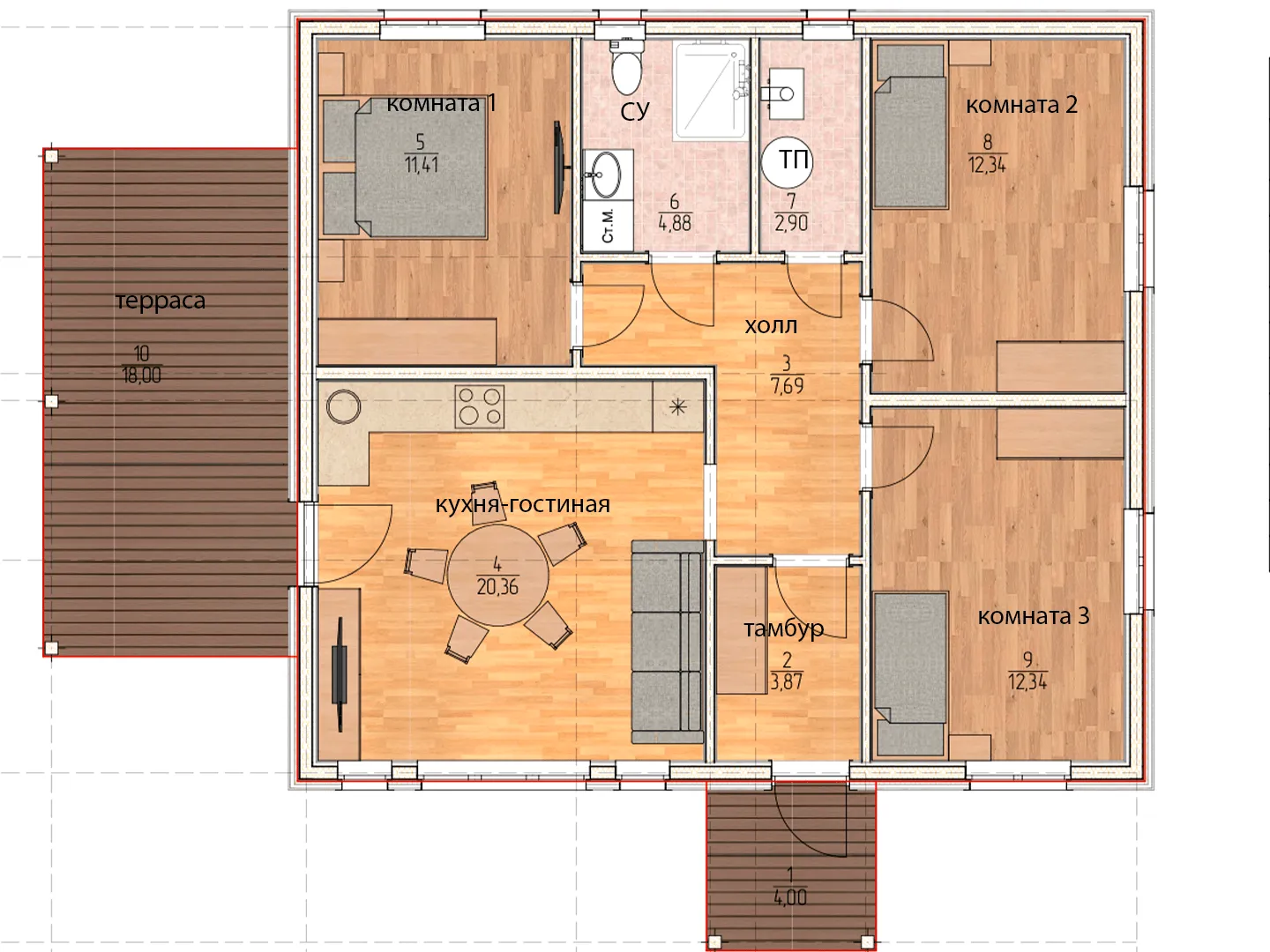
Площадь дома 93 м2
Санузлы 1
Спальни 3

Описание

Откройте дверь в атмосферу уюта и классической гармонии с нашим одностадовым домом КД‑30. Его открытая планировка, скроющая всё в объятиях одного надземного этажа, создаёт идеальную основу для круглогодичного проживания: просторная гостиная, светло‑теплый зал, где каждый момент превращается в праздник семейной жизни. Величественная двухскатная крыша и деревянный каркас, выполненный из высококачественных материалов, дарят не только надежность, но и элегантный внешний вид, словно сказочный замок из сказки. Без лишних балконов и веранд, дом сосредотачивается на истинном смысле гармонии – больших окнах, пропускающих мягкий свет, и просторном внутреннем пространстве, где каждая деталь продумана на миллион. Тёплый и уютный, он словно обнимает обитателей своими стенами, сохраняя тепло в холодные зимы и прохладу в летние полдня. Легко адаптируемость – благодаря деревянной структуре, возможны дополнительные модификации, а отсутствие гаража и чердака делает планировку более чистой и свободной от лишних деталей. И всё это вы можете наслаждаться на собственной уютной террасе – уголке, где можно разместить гамак, поставить стол для завтраков на рассвете или устроить вечерние посиделки под звёздами. В таком доме каждый день становится вдохновляющим приключением: мягкое утреннее солнце, колеблющиеся лучи сквозь окна, и чувство, что здесь, в этом просторном и светлом уголке, ваш дом действительно дома.

Характеристики дома

Архитектурный стиль
Автоматизированное регулирование параметров теплоносителя
Нет
Балконы/лоджии
Отсутствуют
Чердачное помещение
Нет
Датчики протечки воды
Нет
Эксплуатируемая или зеленая кровля
Нет
Электроснабжение
Центральное
Газоснабжение
Индивидуальное
Изоляция воздушного шума
Да
Камин
Нет
Класс энергоэффективности
-
Класс энергосбережения
-
Количество надземных этажей
1
Круглогодичное проживание
Да
Материал кровли
Металлочерепица
Материал перекрытий
Деревянные
Материал внешних стен
Материал внутренних перегородок
Деревянные
Модульное строительство с конструкциями заводского изготовления
Нет
Объем надземной части
-
Основной материал фасадов
Дерево
Отопление
Индивидуальное
Площадь дома
93 м2
Площадь застройки
112 м2
Подвальное помещение
Нет
Показатель компактности здания
-
Приборы учета тепловой энергии
Нет
Пристроенный гараж/крытая автостоянка
Нет
Противопожарная система
Нет
Санузлы
1
Совмещенная кухня-гостиная
Да
Спальни
3
Терраса
Да
Тип фундамента
Свайный
Тип кровли
Толщина внешних стен
290 мм
Толщина внутренних перегородок
150 мм
Улучшенные шумовые характеристики
Да
Вентиляция
Естественная
Веранда
Нет
Водоотведение
Локальные очистные сооружения
Водоснабжение
Индивидуальное
Высота дома
5.36 м
Высота потолков
2.8 м

Планировка

Фасад дома

Александр

Закажите выезд инженера

Александр

Выездной инженер
Закажите выезд инженера для точной диагностики и профессиональной консультации по инженерным системам. Специалист приедет в удобное время, проведёт осмотр, рассчитает стоимость работ и подберёт оптимальные решения для вашего дома.


    Похожие проекты

    Ипотека и
    рассрочка
    Дом с 4 спальнями и большой террасой Ц-1004
    Стоимость от:
    12 396 720
    Проект от: 84 600
    Этажей 2
    Санузлы 2
    Спальни 4
    Смотреть
    Ипотека и
    рассрочка
    Одноэтажный дом в стиле Барнхаус «Sodaar-104»
    Стоимость от:
    6 293 815
    Проект от: 46 350
    Этажей 1
    Санузлы 1
    Спальни 2
    Смотреть
    Ипотека и
    рассрочка
    Каркасный дом «Агнес»
    Стоимость от:
    5 218 080
    Проект от: 39 150
    Этажей 2
    Санузлы 1
    Спальни 3
    Смотреть
    Ипотека и
    рассрочка
    Беркли-98,82
    Стоимость от:
    7 065 080
    Проект от: 42 300
    Этажей 1
    Санузлы 2
    Спальни 3
    Смотреть
    Ипотека и
    рассрочка
    949
    Стоимость от:
    6 110 500
    Проект от: 45 000
    Этажей 1
    Санузлы 1
    Спальни 3
    Смотреть
    Ипотека и
    рассрочка
    Загородный дом Примула — 143
    Стоимость от:
    13 067 780
    Проект от: 76 050
    Этажей 1
    Санузлы 2
    Спальни 4
    Смотреть

    Как узнать стоимость дома

    back
    Оставляете заявку
    Вы заполняете форму на сайте или звоните нам. Менеджер Лайвкрафт связывается с вами для уточнения деталей: тип дома, площадь, материалы, участок строительства.
    back
    Консультация и подбор решения
    Наш специалист помогает выбрать оптимальный тип дома и конструкцию с учётом бюджета, сроков и целей — будь то дом для постоянного проживания или дача.
    back
    Расчёт предварительной стоимости
    Инженер делает первичный расчёт стоимости строительства по вашим параметрам: фундамент, коробка, кровля, отделка. Вы получаете смету с разбивкой по этапам.
    back
    Корректировка и утверждение сметы
    При необходимости вносим изменения — например, замену материалов или сокращение этапов. После согласования формируется окончательная фиксированная смета.
    back
    Заключение договора и старт работ
    После утверждения сметы заключаем официальный договор с гарантией. Вы получаете прозрачный график и точную стоимость — без скрытых расходов.

    Заказать конусльтацию по:Одноэтажный дом КД-30

    Фото 1 Одноэтажный дом КД-30


      Наши
      контакты

      Дмитров
      Опорный проезд 28Б
      (индустриальный парк Ниагара)
      9:00 до 18:00

      Корзина