Загородный дом по проекту «Винсент»
Описание
Характеристики дома
Архитектурный стиль
Автоматизированное регулирование параметров теплоносителя
-
Балконы/лоджии
Отсутствуют
Чердачное помещение
Да
Датчики протечки воды
-
Эксплуатируемая или зеленая кровля
-
Электроснабжение
2 варианта
Газоснабжение
2 варианта
Изоляция воздушного шума
-
Камин
Нет
Класс энергоэффективности
-
Класс энергосбережения
-
Количество надземных этажей
1
Круглогодичное проживание
Да
Материал кровли
Металлочерепица
Материал перекрытий
Деревянные
Материал внешних стен
Материал внутренних перегородок
Деревянные
Модульное строительство с конструкциями заводского изготовления
Нет
Объем надземной части
930 м3
Основной материал фасадов
Дерево
Отопление
2 варианта
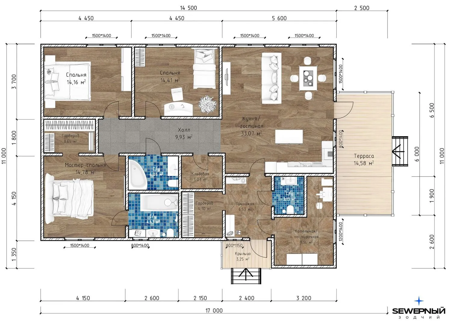
Площадь дома
163 м2
Площадь застройки
159 м2
Подвальное помещение
Нет
Показатель компактности здания
-
Приборы учета тепловой энергии
-
Пристроенный гараж/крытая автостоянка
Нет
Противопожарная система
Нет
Санузлы
3
Совмещенная кухня-гостиная
Да
Спальни
3
Терраса
Да
Тип фундамента
Плитный
Тип кровли
Толщина внешних стен
200 мм
Толщина внутренних перегородок
150 мм
Улучшенные шумовые характеристики
-
Вентиляция
2 варианта
Веранда
Да
Водоотведение
2 варианта
Водоснабжение
2 варианта
Высота дома
5.95 м
Высота потолков
2.7 м
Категории проекта
Строительство деревянных каркасных домов под ключ в ДмитровеСтроительство домовСтроительство домов без балкона или лоджииСтроительство домов без верандыСтроительство домов без гаражаСтроительство домов в Скандинавском стилеСтроительство домов для круглогодичного проживанияСтроительство домов с двускатной крышейСтроительство домов с террасойСтроительство домов с чердакомСтроительство одноэтажных домов
Закажите выезд инженера
Александр
Выездной инженер
Закажите выезд инженера для точной диагностики и профессиональной консультации по инженерным
системам. Специалист приедет в удобное время, проведёт осмотр, рассчитает стоимость работ и подберёт
оптимальные решения для вашего дома.
Как узнать стоимость дома
Заказать конусльтацию по:Загородный дом по проекту «Винсент»
Наши
контакты
Дмитров
Опорный проезд 28Б
(индустриальный парк Ниагара)
Опорный проезд 28Б
(индустриальный парк Ниагара)
9:00 до 18:00