4.9
Рейтинг на основании 120 отзывов
Дмитров
Опорный проезд 28Б
(индустриальный парк Ниагара)
Бренд "Дмитров-Дело" c 2008 года на рынке строительства в Дмитрове
Звоните 9:00 до 18:00 8 (915) 055-33-61
Бренд "Дмитров-Дело" c 2008 года на рынке строительства в Дмитрове

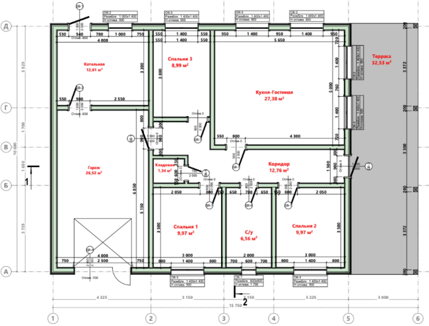
Загородный дом с гаражом 10,6х15,75

Стоимость проекта от:
66 600 ₽
БЕСПЛАТНО! ПРИ ЗАКАЗЕ СТРОИТЕЛЬСТВА
Стоимость строительства от:
8 579 560 ₽
Артикул ART-15533
Дата 25.12.2025
Архитектурный стиль Шале
Количество надземных этажей 1
Круглогодичное проживание Да
Площадь дома 148 м2
Санузлы 1
Спальни 3

Описание

Представляем вашему вниманию уютный загородный дом, в который хочется влюбиться с первого взгляда. Он выполнен в элегантном шале‑стиле и объединяет в себе тёплую деревенскую атмосферу с практичностью современного проекта. Однопотаговый, но вместительный, дом обустроен так, чтобы обеспечить круглогодичное проживание: теплоизоляция, качественная стеклопакетная конструкция и доброжелательная древесная отделка создают комфорт в любое время года. Специально предусмотренный гараж (10,6 × 15,75 м) защищает транспорт от непогоды, а закрытая автостоянка позволяет быстро и безболезненно войти в уютное пространство дома. Чердачное помещение открывает дополнительные идеи для творчества или хранения, а просторная терраса приглашает насладиться закатом, устроить барбекю или просто провести вечер у камина. Деревянные каркасные стены и классическая четырёхскатная крыша придают дому характерную аутентичность и гармонично вписываются в природный ландшафт. Величественная и функциональная — эта загородная резиденция станет идеальным убежищем для тех, кто ищет гармонию среди природы, а также практичное решение для хранения и отдыха. Сочетание эстетики шале, современной инфраструктуры и природных материалов делает этот дом идеальным выбором для семейного уединения, гостей в отпуск или как дополнительную резиденцию. Откройте для себя уют, в котором каждая деталь заботится о ваших потребностях и желаниях.

Характеристики дома

Архитектурный стиль
Автоматизированное регулирование параметров теплоносителя
Нет
Балконы/лоджии
Отсутствуют
Чердачное помещение
Да
Датчики протечки воды
Нет
Эксплуатируемая или зеленая кровля
Нет
Электроснабжение
Не предусмотрено
Газоснабжение
Не предусмотрено
Изоляция воздушного шума
Нет
Камин
Нет
Класс энергоэффективности
-
Класс энергосбережения
-
Количество надземных этажей
1
Круглогодичное проживание
Да
Материал кровли
Металлочерепица
Материал перекрытий
Деревянные
Материал внешних стен
Материал внутренних перегородок
Деревянные
Модульное строительство с конструкциями заводского изготовления
Нет
Объем надземной части
148 м3
Основной материал фасадов
Фасадная плитка
Отопление
Не предусмотрено
Площадь дома
148 м2
Площадь застройки
172 м2
Подвальное помещение
Нет
Показатель компактности здания
-
Приборы учета тепловой энергии
Нет
Пристроенный гараж/крытая автостоянка
Да
Противопожарная система
Нет
Санузлы
1
Совмещенная кухня-гостиная
Да
Спальни
3
Терраса
Да
Тип фундамента
Свайный
Толщина внешних стен
200 мм
Толщина внутренних перегородок
150 мм
Улучшенные шумовые характеристики
Нет
Вентиляция
Естественная
Веранда
Нет
Водоотведение
Не предусмотрено
Водоснабжение
Не предусмотрено
Высота дома
4.69 м
Высота потолков
2.74 м

Планировка

Фасад дома

Александр

Закажите выезд инженера

Александр

Выездной инженер
Закажите выезд инженера для точной диагностики и профессиональной консультации по инженерным системам. Специалист приедет в удобное время, проведёт осмотр, рассчитает стоимость работ и подберёт оптимальные решения для вашего дома.


    Похожие проекты

    Ипотека и
    рассрочка
    S.Dom-210-2
    Стоимость от:
    13 595 400
    Проект от: 94 500
    Этажей 2
    Санузлы 2
    Спальни 3
    Смотреть
    Ипотека и
    рассрочка
    Одноэтажный дом со вторым светом УД9
    Стоимость от:
    6 371 200
    Проект от: 36 000
    Этажей 1
    Санузлы 1
    Спальни 2
    Смотреть
    Ипотека и
    рассрочка
    Просторный Одноэтажник
    Стоимость от:
    11 136 400
    Проект от: 63 000
    Этажей 1
    Санузлы 1
    Спальни 3
    Смотреть
    Ипотека и
    рассрочка
    Одноэтажный дом №2
    Стоимость от:
    8 118 440
    Проект от: 45 900
    Этажей 1
    Санузлы 2
    Спальни 2
    Смотреть
    Ипотека и
    рассрочка
    Одноэтажный кирпичный дом LITTLE — 78 m2 (Белый облицовочный кирпич)
    Стоимость от:
    4 385 700
    Проект от: 24 750
    Этажей 1
    Санузлы 1
    Спальни 2
    Смотреть
    Ипотека и
    рассрочка
    Каркасный дом «Азимут»
    Стоимость от:
    6 666 550
    Проект от: 51 750
    Этажей 1
    Санузлы 2
    Спальни 3
    Смотреть

    Как узнать стоимость дома

    back
    Оставляете заявку
    Вы заполняете форму на сайте или звоните нам. Менеджер Лайвкрафт связывается с вами для уточнения деталей: тип дома, площадь, материалы, участок строительства.
    back
    Консультация и подбор решения
    Наш специалист помогает выбрать оптимальный тип дома и конструкцию с учётом бюджета, сроков и целей — будь то дом для постоянного проживания или дача.
    back
    Расчёт предварительной стоимости
    Инженер делает первичный расчёт стоимости строительства по вашим параметрам: фундамент, коробка, кровля, отделка. Вы получаете смету с разбивкой по этапам.
    back
    Корректировка и утверждение сметы
    При необходимости вносим изменения — например, замену материалов или сокращение этапов. После согласования формируется окончательная фиксированная смета.
    back
    Заключение договора и старт работ
    После утверждения сметы заключаем официальный договор с гарантией. Вы получаете прозрачный график и точную стоимость — без скрытых расходов.

    Заказать конусльтацию по:Загородный дом с гаражом 10,6х15,75

    Фото 1 Загородный дом с гаражом 10,6х15,75


      Наши
      контакты

      Дмитров
      Опорный проезд 28Б
      (индустриальный парк Ниагара)
      9:00 до 18:00

      Корзина