4.9
Рейтинг на основании 120 отзывов
Дмитров
Опорный проезд 28Б
(индустриальный парк Ниагара)
Бренд "Дмитров-Дело" c 2008 года на рынке строительства в Дмитрове
Звоните 9:00 до 18:00 8 (915) 055-33-61
Бренд "Дмитров-Дело" c 2008 года на рынке строительства в Дмитрове

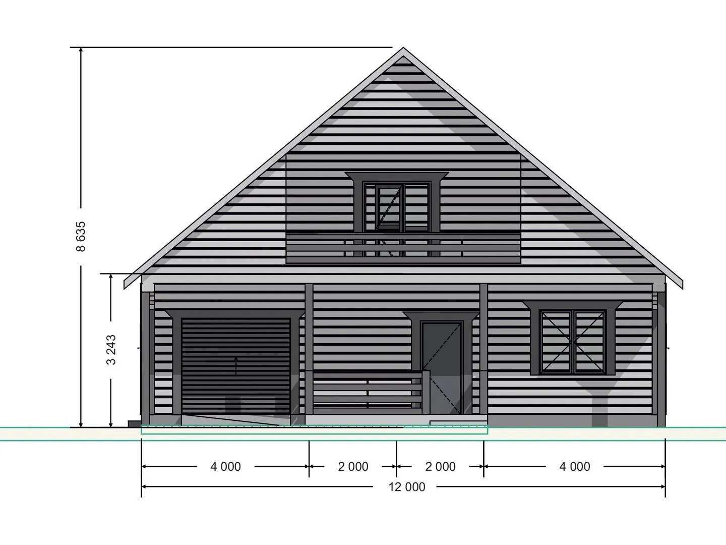
Загородный дом «Семейный»

Стоимость проекта от:
54 900 ₽
Стоимость строительства от:
9 125 280 ₽
Артикул ART-16303
Дата 26.12.2025
Архитектурный стиль Классический
Количество надземных этажей 2
Круглогодичное проживание Да
Площадь дома 122 м2
Санузлы 1
Спальни 3

Описание

Встречайте очаровательный загородный дом «Семейный» – идеальное решение для тех, кто ищет уют и практичность со стилем и характером. Строительство в классическом стиле придает ему безупречную элегантность и прочное основание для долгих лет совместной жизни. Двухэтажный дом с профильным брусом и двускатной крышей обеспечивает надежность и тепло в любую пору года, гарантируя круглогодичное проживание без лишних забот. Особенности дома превращают его в настоящий оазис комфорта: обустроенные внутренние помещения с чердачным пространством, где можно реализовать свои идеи – будь то кабинет, игровая зона или гардероб. Небольшой, но приятный балкон/лоджия позволяет наслаждаться свежим воздухом и видами на окрестности, а просторная терраса создаёт идеальное место для семейных ужинов и вечеринок на открытом воздухе. Пристроенный гараж и крытая автостоянка обеспечивают защиту вашего автомобиля от непогоды, а простая, но функциональная планировка делает каждый уголок дома удобным для жизни. Если вы цените классический шик, надежность и удобства, дом «Семейный» станет вашим лучшим выбором. Здесь каждый элемент продуман до мелочей, чтобы вы могли чувствовать себя в безопасности и роскоши в каждом дне. Позвольте этому дому стать местом, где создаются воспоминания и начинается новая глава вашей семейной истории.

Характеристики дома

Архитектурный стиль
Классический
Автоматизированное регулирование параметров теплоносителя
Да
Балконы/лоджии
1
Чердачное помещение
Да
Датчики протечки воды
Да
Эксплуатируемая или зеленая кровля
Нет
Электроснабжение
Центральное
Газоснабжение
2 варианта
Изоляция воздушного шума
Да
Камин
Нет
Класс энергоэффективности
A++
Класс энергосбережения
A++
Количество надземных этажей
2
Круглогодичное проживание
Да
Материал кровли
Металлочерепица
Материал перекрытий
Деревянные
Материал внешних стен
Профилированный брус
Материал внутренних перегородок
Деревянные
Модульное строительство с конструкциями заводского изготовления
Нет
Объем надземной части
207 м3
Основной материал фасадов
Дерево
Отопление
Индивидуальное
Площадь дома
122 м2
Площадь застройки
144 м2
Подвальное помещение
Нет
Показатель компактности здания
0.69
Приборы учета тепловой энергии
Да
Пристроенный гараж/крытая автостоянка
Да
Противопожарная система
Да
Санузлы
1
Совмещенная кухня-гостиная
Да
Спальни
3
Терраса
Да
Тип фундамента
Ленточный
Тип кровли
Двускатная
Толщина внешних стен
180 мм
Толщина внутренних перегородок
180 мм
Улучшенные шумовые характеристики
Да
Вентиляция
Принудительная
Веранда
Нет
Водоотведение
2 варианта
Водоснабжение
2 варианта
Высота дома
8.6 м
Высота потолков
2.7 м

Планировка

Фасад дома

Александр

Закажите выезд инженера

Александр

Выездной инженер
Закажите выезд инженера для точной диагностики и профессиональной консультации по инженерным системам. Специалист приедет в удобное время, проведёт осмотр, рассчитает стоимость работ и подберёт оптимальные решения для вашего дома.


    Похожие проекты

    Ипотека и
    рассрочка
    Проект 3
    Стоимость от:
    9 745 560
    Проект от: 62 100
    Этажей 1
    Санузлы 1
    Спальни 2
    Смотреть
    Ипотека и
    рассрочка
    Загородный дом «Расим»
    Стоимость от:
    4 901 600
    Проект от: 36 000
    Этажей 1
    Санузлы 1
    Спальни 3
    Смотреть
    Ипотека и
    рассрочка
    M.BARN 75
    Стоимость от:
    4 448 400
    Проект от: 36 000
    Этажей 1
    Санузлы 1
    Спальни 2
    Смотреть
    Ипотека и
    рассрочка
    СЕРИЯ «КЛАССИКА» ПРОЕКТ КД-13
    Стоимость от:
    5 027 400
    Проект от: 37 800
    Этажей 2
    Санузлы 1
    Спальни 3
    Смотреть
    Ипотека и
    рассрочка
    Одноэтажный дом NEO_65
    Стоимость от:
    4 652 560
    Проект от: 30 600
    Этажей 1
    Санузлы 1
    Спальни 2
    Смотреть
    Ипотека и
    рассрочка
    Двухэтажный дом в стиле Барнхаус Домодедово М297
    Стоимость от:
    14 977 680
    Проект от: 93 150
    Этажей 2
    Санузлы 3
    Спальни 4
    Смотреть

    Как узнать стоимость дома

    back
    Оставляете заявку
    Вы заполняете форму на сайте или звоните нам. Менеджер Лайвкрафт связывается с вами для уточнения деталей: тип дома, площадь, материалы, участок строительства.
    back
    Консультация и подбор решения
    Наш специалист помогает выбрать оптимальный тип дома и конструкцию с учётом бюджета, сроков и целей — будь то дом для постоянного проживания или дача.
    back
    Расчёт предварительной стоимости
    Инженер делает первичный расчёт стоимости строительства по вашим параметрам: фундамент, коробка, кровля, отделка. Вы получаете смету с разбивкой по этапам.
    back
    Корректировка и утверждение сметы
    При необходимости вносим изменения — например, замену материалов или сокращение этапов. После согласования формируется окончательная фиксированная смета.
    back
    Заключение договора и старт работ
    После утверждения сметы заключаем официальный договор с гарантией. Вы получаете прозрачный график и точную стоимость — без скрытых расходов.

    Заказать конусльтацию по:Загородный дом «Семейный»

    Фото 1 Загородный дом «Семейный»


      Наши
      контакты

      Дмитров
      Опорный проезд 28Б
      (индустриальный парк Ниагара)
      9:00 до 18:00