4.9
Рейтинг на основании 120 отзывов
Дмитров
Опорный проезд 28Б
(индустриальный парк Ниагара)
Бренд "Дмитров-Дело" c 2008 года на рынке строительства в Дмитрове
Звоните 9:00 до 18:00 8 (915) 055-33-61
Бренд "Дмитров-Дело" c 2008 года на рынке строительства в Дмитрове

Загородный дом со вторым светом КР-105

Стоимость проекта от:
62 100 ₽
БЕСПЛАТНО! ПРИ ЗАКАЗЕ СТРОИТЕЛЬСТВА
Стоимость строительства от:
7 999 860 ₽
Артикул ART-13962
Дата 25.12.2025
Архитектурный стиль Скандинавский
Количество надземных этажей 1
Круглогодичное проживание Да
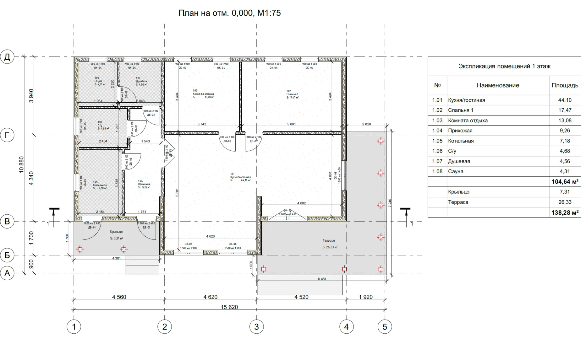
Площадь дома 138 м2
Санузлы 2
Спальни 2

Описание

Добро пожаловать в уют и гармонию загородного дома, созданного для тех, кто ценит простоту, но не хочет отказываться от современных удобств. Это первый этаж – 1‑этажный дом, оформленный в скандинавском стиле, где свет и открытость становятся главными героями интерьера. Чистые линии, большие окна и деревянный каркас создают ощущение лёгкости и связи с природой, а комбинированная крыша защищает ваше жильё от любых погодных условий, делая его идеальным вариантом круглогодичного проживания. Внутреннее пространство пропитано теплом и уютом благодаря тщательно продуманному планировочному решению: здесь нет лишних барьеров, а каждая деталь – от пола до потолка – продумана для комфорта и функциональности. Прекрасные породы дерева и светлые тона гармонично сочетаются, создавая пространство, где хочется возвращаться. Отсутствие балконов и веранд не ограничивает возможности – вместо этого, в доме предусмотрена живописная терраса, открывающая панорамный вид на окрестности и привносящая свежий аромат весеннего леса прямо в ваш дом. Сделав ставку на простоту и практичность, мы исключили встроенный гараж и чердачное помещение, чтобы ваш дом был меньше технических узлов и больше пространства для жизни. Дом со вторым светом КР‑105 – это ваш шанс насладиться спокойствием загородной жизни, не жертвуя комфортом и стилем. Позвольте себе ощутить настоящее вдохновение в каждом уголке этого особенного жилья.

Характеристики дома

Архитектурный стиль
Автоматизированное регулирование параметров теплоносителя
Нет
Балконы/лоджии
Отсутствуют
Чердачное помещение
Нет
Датчики протечки воды
Нет
Эксплуатируемая или зеленая кровля
Нет
Электроснабжение
2 варианта
Газоснабжение
2 варианта
Изоляция воздушного шума
Нет
Камин
Нет
Класс энергоэффективности
-
Класс энергосбережения
-
Количество надземных этажей
1
Круглогодичное проживание
Да
Материал кровли
Металлочерепица
Материал перекрытий
Деревянные
Материал внешних стен
Материал внутренних перегородок
Деревянные
Модульное строительство с конструкциями заводского изготовления
Нет
Объем надземной части
832 м3
Основной материал фасадов
Дерево
Отопление
Индивидуальное
Площадь дома
138 м2
Площадь застройки
155 м2
Подвальное помещение
Нет
Показатель компактности здания
-
Приборы учета тепловой энергии
Нет
Пристроенный гараж/крытая автостоянка
Нет
Противопожарная система
Нет
Санузлы
2
Совмещенная кухня-гостиная
Да
Спальни
2
Терраса
Да
Тип фундамента
Свайный
Тип кровли
Толщина внешних стен
300 мм
Толщина внутренних перегородок
150 мм
Улучшенные шумовые характеристики
Нет
Вентиляция
2 варианта
Веранда
Нет
Водоотведение
2 варианта
Водоснабжение
2 варианта
Высота дома
5.34 м
Высота потолков
3.2 м

Планировка

Фасад дома

Александр

Закажите выезд инженера

Александр

Выездной инженер
Закажите выезд инженера для точной диагностики и профессиональной консультации по инженерным системам. Специалист приедет в удобное время, проведёт осмотр, рассчитает стоимость работ и подберёт оптимальные решения для вашего дома.


    Похожие проекты

    Ипотека и
    рассрочка
    Одноэтажный кирпичный дом ИП-145
    Стоимость от:
    10 290 940
    Проект от: 61 650
    Этажей 1
    Санузлы 2
    Спальни 3
    Смотреть
    Ипотека и
    рассрочка
    Типовой проект № 2 1-этаж
    Стоимость от:
    6 132 940
    Проект от: 34 650
    Этажей 1
    Санузлы 1
    Спальни 2
    Смотреть
    Ипотека и
    рассрочка
    Одноэтажный каркасный дом
    Стоимость от:
    4 811 510
    Проект от: 37 350
    Этажей 1
    Санузлы 2
    Спальни 2
    Смотреть
    Ипотека и
    рассрочка
    БарнХаус 22-22КД
    Стоимость от:
    3 982 550
    Проект от: 29 250
    Этажей 1
    Санузлы 1
    Спальни 2
    Смотреть
    Ипотека и
    рассрочка
    Одноэтажный дом от компании UNIT серии Премиум 124 TK
    Стоимость от:
    10 353 640
    Проект от: 63 900
    Этажей 1
    Санузлы 2
    Спальни 3
    Смотреть
    Ипотека и
    рассрочка
    Белфаст 106
    Стоимость от:
    6 127 330
    Проект от: 47 700
    Этажей 1
    Санузлы 1
    Спальни 4
    Смотреть

    Как узнать стоимость дома

    back
    Оставляете заявку
    Вы заполняете форму на сайте или звоните нам. Менеджер Лайвкрафт связывается с вами для уточнения деталей: тип дома, площадь, материалы, участок строительства.
    back
    Консультация и подбор решения
    Наш специалист помогает выбрать оптимальный тип дома и конструкцию с учётом бюджета, сроков и целей — будь то дом для постоянного проживания или дача.
    back
    Расчёт предварительной стоимости
    Инженер делает первичный расчёт стоимости строительства по вашим параметрам: фундамент, коробка, кровля, отделка. Вы получаете смету с разбивкой по этапам.
    back
    Корректировка и утверждение сметы
    При необходимости вносим изменения — например, замену материалов или сокращение этапов. После согласования формируется окончательная фиксированная смета.
    back
    Заключение договора и старт работ
    После утверждения сметы заключаем официальный договор с гарантией. Вы получаете прозрачный график и точную стоимость — без скрытых расходов.

    Заказать конусльтацию по:Загородный дом со вторым светом КР-105

    Фото 1 Загородный дом со вторым светом КР-105


      Наши
      контакты

      Дмитров
      Опорный проезд 28Б
      (индустриальный парк Ниагара)
      9:00 до 18:00

      Корзина